...
Überbauung Im Rheinacker

Copyright: Barbara Bühler Fotografie
Die Anfang der 60-er Jahre erbaute Siedlung «Im Rheinacker», im Besitz der IBS (Immobilien Basel-Stadt), erforderte eine umfassende Sanierung u. konsistente Neugestaltung der 11 Gebäude und Freianlagen. Gemäss den Leitlinien der IBS zur Förderung der wirtschaftlichen, ökologischen und gesellschaftlichen Nachhaltigkeit, ist der Erhalt der Gebäude, ihre energetische Sanierung, eine bodenschonende Verdichtung u. die Erstellung preisgünstigen Wohnraums, diesen Zielen verpflichtet. In diesem Sinne wurden Gebäude ertüchtigt (Gebäudehülle), Bauteile ergänzt (Balkone), Wohnraum geschaffen (Aufstockung) u. bestehende Mietverhältnisse erhalten. Die haustechnische Sanierung betraf den Anschluss an die neue Heizversorgung durch Sole-Wasser-Wärmepumpen in Kombination mit der Dämmung der Gebäudehüllen u. neuen Photovoltaikanlagen auf allen Dächern. Massnahmen zur Luftzirkulation in den Wohnungen reduzieren die Luftfeuchte u. verhindern damit einhergehende Schäden.
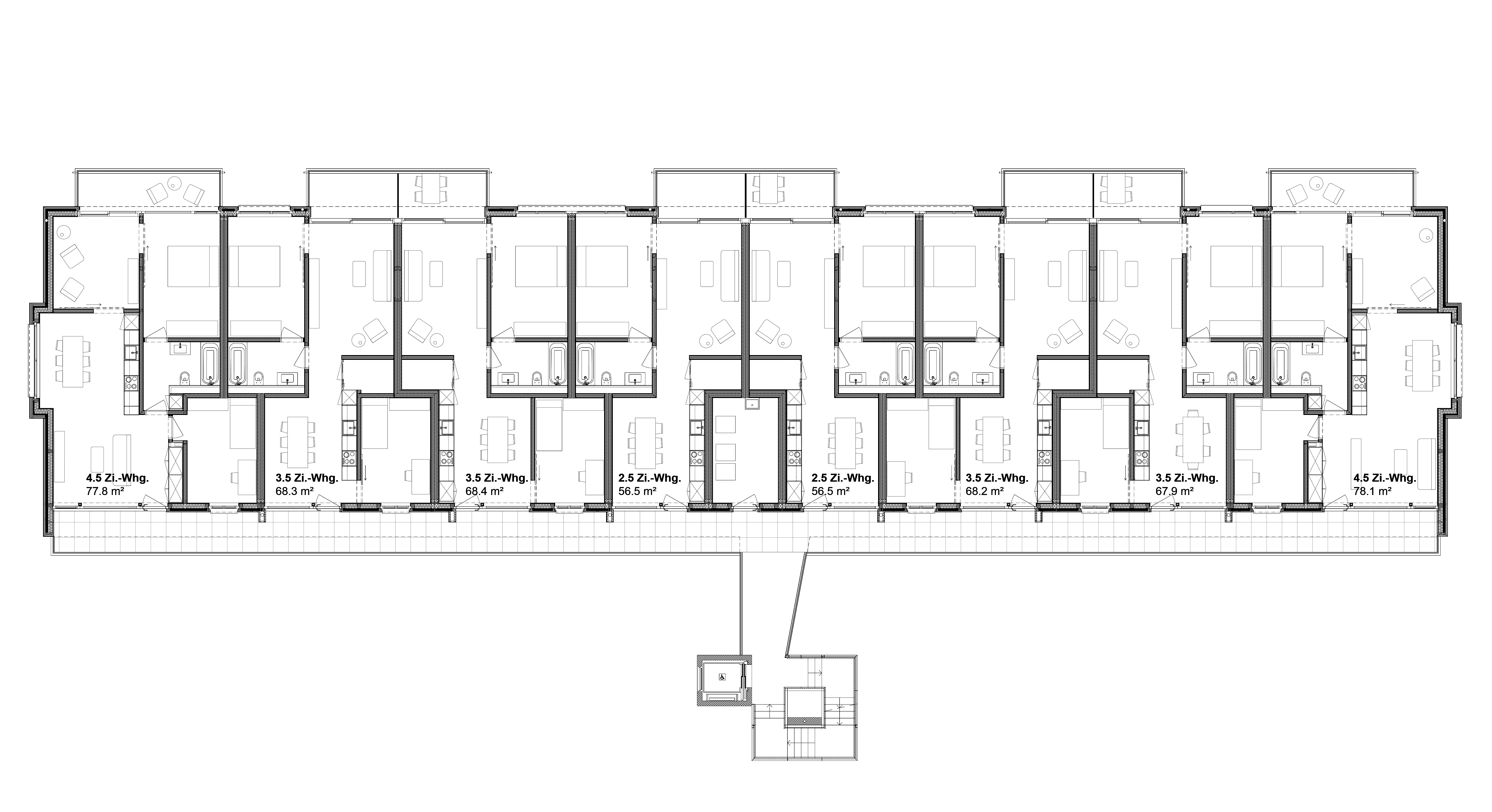
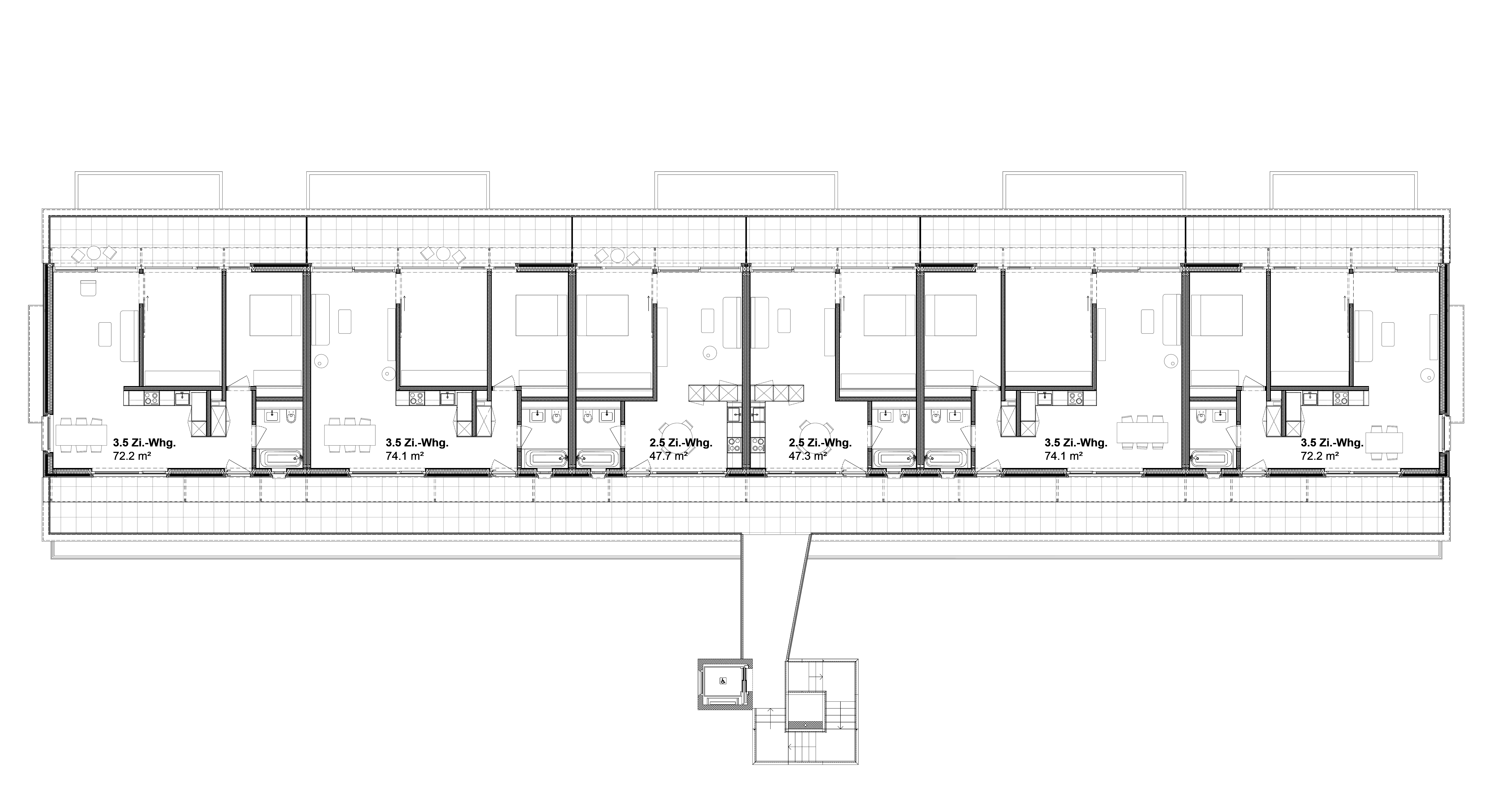
Drei der Gebäude werden mit zwei Etagen aufgestockt. Ein «statischer Tisch» vermeidet Eingriffe in die Bestandswohnungen u. ermöglicht die Realisierung in bewohntem Zustand. Die auf dem «Tisch» stehende, leichte Holzelementkonstruktion ist effizient zu montieren u. minimiert die Bauzeit. Die jeweiligen Tischkonstruktionen lasten auch auf den Betonscheiben, beidseitig der bestehenden Hauseingänge. Sie prägen, zusammen mit den freistehenden Lift- / Treppentürmen und Brücken zu den Laubengängen, die Erscheinung der Gebäude u. machen die Erneuerung der Siedlung deutlich sichtbar.
Das übergreifende Farbkonzept bestimmt die Farben der Fassaden, Hauszugänge und Sonnenmarkisen. Architektonische Verwandtschaften der verschieden hohen Gebäudegruppen werden erhalten, individuelle Unterschiede farblich betont.
Die Erneuerung findet in den Aussenanlagen ihre nachhaltige Fortsetzung, mit der Ergänzung des Pflanz- u. Baumbestands, neuen Spiel- u. Sitzbereichen oder weiteren Nistplätzen zur Förderung der Mehlschwalbenkolonie.
Drei der Gebäude werden mit zwei Etagen aufgestockt. Ein «statischer Tisch» vermeidet Eingriffe in die Bestandswohnungen u. ermöglicht die Realisierung in bewohntem Zustand. Die auf dem «Tisch» stehende, leichte Holzelementkonstruktion ist effizient zu montieren u. minimiert die Bauzeit. Die jeweiligen Tischkonstruktionen lasten auch auf den Betonscheiben, beidseitig der bestehenden Hauseingänge. Sie prägen, zusammen mit den freistehenden Lift- / Treppentürmen und Brücken zu den Laubengängen, die Erscheinung der Gebäude u. machen die Erneuerung der Siedlung deutlich sichtbar.
Das übergreifende Farbkonzept bestimmt die Farben der Fassaden, Hauszugänge und Sonnenmarkisen. Architektonische Verwandtschaften der verschieden hohen Gebäudegruppen werden erhalten, individuelle Unterschiede farblich betont.
Die Erneuerung findet in den Aussenanlagen ihre nachhaltige Fortsetzung, mit der Ergänzung des Pflanz- u. Baumbestands, neuen Spiel- u. Sitzbereichen oder weiteren Nistplätzen zur Förderung der Mehlschwalbenkolonie.





.JPG)




.jpg)
Copyright général des photographies: Barbara Bühler Fotografie












Copyright général des plans / schémas / graphiques: LOST Architekten GmbH BSA
Copyright: LOST Architekten GmbH BSA
Textes Critères de Davos
Gouvernance
Die Sanierung u. partielle Aufstockung der Gebäude dienen dem Erhalt, der Aufwertung u. der Erstellung preisgünstiger Wohnungen mit massvoller Verdichtung. Die Durchführung der Baumassnahme erfolgte im bewohnten Zustand (Erhalt Sozialstruktur) u. beinhaltet die Integration betreuter Wohnformen (LIV). Die Realisierung des Projekts verlangte einen iterativen Prozess der Koordination in dem Bewohner u. Projektleitung ihre Anliegen kontinuierlich u. zielführend abstimmten.
Fonctionnalité
Die Aufstockung, mit Wohnungen entlang von Laubengängen u. Terrassen, erfordert eine leichte u. effizient zu montierende Holzkonstruktion, die es ermöglichte helle Wohnungen mit offenen Koch-, Ess- u. Wohnbereichen u. der geforderten Zimmerzahl kompakt zu organisieren. Die Planung der Aufstockung war von folgenden Parametern bestimmt:
> Erhalt der besteh. Wohnungen u. Treppenhäuser
> Effiziente Erschliessung pro Aufstockung ein Lift- u. Treppenturm
> Ertüchtigung der best. Gebäudekonstruktion.
> Erhalt der besteh. Wohnungen u. Treppenhäuser
> Effiziente Erschliessung pro Aufstockung ein Lift- u. Treppenturm
> Ertüchtigung der best. Gebäudekonstruktion.
Environnement
Der Erhalt der 60-Jahre Siedlung «Im Rheinacker», ihre energetische Sanierung u. Verdichtung ist ein der Nachhaltigkeit verpflichtetes Projekt. Bestehendes wird lediglich ergänzt (Balkone) oder, im Bereich der Aufstockung, nachhaltig konstruiert (Holz). Die Wärmeerzeugung erfolgt mittels Sole-Wasser-Wärmepumpen in Kombination mit Photovoltaikanlagen auf den Dächern. Weitere Massnahmen betreffen die umfassende Ergänzung des Pflanz- u. Baumbestands sowie die Förderung der Schwalbenkolonie.
Économie
Die Immobilien BS verwirklicht mit der Neugestaltung der Siedlung «Im Rheinacker» die Umsetzung ihrer Leitlinien für den Wohnungsbau: Erstellung preisgünstigen Wohnraums, haushälterischer Umgang mit dem Boden, langfristige Bewirtschaftung der Liegenschaften, ressourcenschonender Umgang u. Reduktion der Umweltbelastungen.
Planung u. Realisierung des Projekts im bewohnten Zustand stellten hohe Anforderungen an die Organisation der Baumassnahmen zur Minimierung der Lasten für die Mieterschaft.
Planung u. Realisierung des Projekts im bewohnten Zustand stellten hohe Anforderungen an die Organisation der Baumassnahmen zur Minimierung der Lasten für die Mieterschaft.
Diversité
Die neuen Wohnungen der Aufstockung, inkl. der Waschräume, liegen an breiten Laubengängen, die zugleich Orte der Begegnung u. des Verweilens sind. Die Wohnungen unterliegen der Wohnraumförderung u. bieten preisgünstigen Wohnraum für benachteiligte Personen. Auf Wunsch der Eigentümerschaft, ist in einem der Gebäude mit neuer Aufstockung das «LIV» (Leben in Vielfalt) untergebracht, eine Fördereinrichtung für Menschen mit Beeinträchtigungen.
Contexte
Die nachhaltige Sanierung u. Neugestaltung der Siedlungsanlage mit neuen Aufstockungen von 3 der 11 Zeilenbauten vollziehen einen überfälligen Schritt, der die Gebäude auf ein nachhaltiges und seinem reizvollen Umfeld entsprechendes Niveau hebt. Der nahe Uferbereich des Rheins mit dem ikonografischen Wasserkraftwerk (Arch. H. Hofmann), die umliegenden Kleingärten und das angrenzende Sportzentrum «Rankhof» (Arch. M. Alder)
Esprit du lieu
Die Siedlung der 60er Jahre wurde als Wohnstätte für «Minderbemittelte» gebaut. Die weitläufigen Rasen- u. Pflanzflächen um die 11 Zeilenbauten unterschiedlicher Höhe, die umliegenden Kleingartenanlagen u. Sportplätze standen auch den Bewohnern zur Verfügung. Die schlichten, zweckmässigen u. weiss gestrichenen Zeilenbauten bilden im Wesentlichen die Blaupause für das vorliegende Projekt, der energetischen Sanierung, Neugestaltung u. Verdichtung durch Aufstockung der 2-stöckigen Riegelbauten.
Beauté
Wenn Schönheit Wahrhaftigkeit u. Wahrheit einschliesst, wird eine nachhaltige Neugestaltung der Gebäude der 60er Jahre ihre schlichte Architektur u. Erscheinung respektieren u. Neues daraus ableiten. Die Neugestaltung der Eingänge u. Erweiterung der Loggien der Gebäude sowie die Aufstockung der ehemals zweigeschossigen Zeilengebäude sind abgeleitet von den farblichen, funktionalen u. konstruktiven Gegebenheiten. Architektonische Verwandtschaften werden erhalten, individuelle Unterschiede betont.
Caractéristiques
Lieu
Basel
Catégorie d'ouvrage (SIA 102)
Habitat
Type de tâche
Transformation
Type de procédure
Concours
Type de concours
Concours ouvert
Coût de construction en CHF (SIA 416)
46'000'000
Surface de plancher en m² (SIA 416)
31'078
Planification
2019 → 2022
Réalisation
2022 → 2024
Année de mise en service
2024
Soumissionnaire(s) | Intervenants
Maître d'ouvrage
Directions des travaux
Génie civil
Génie civil
Conception électrique
Technique du bâtiment
Prägnant GmbH
Technique du bâtiment
Wenger + Ott
Physique du bâtiment
Architecture du paysage
Autre