...
Crèche et cantine de Prangins

Copyright: Philippe Le Roy
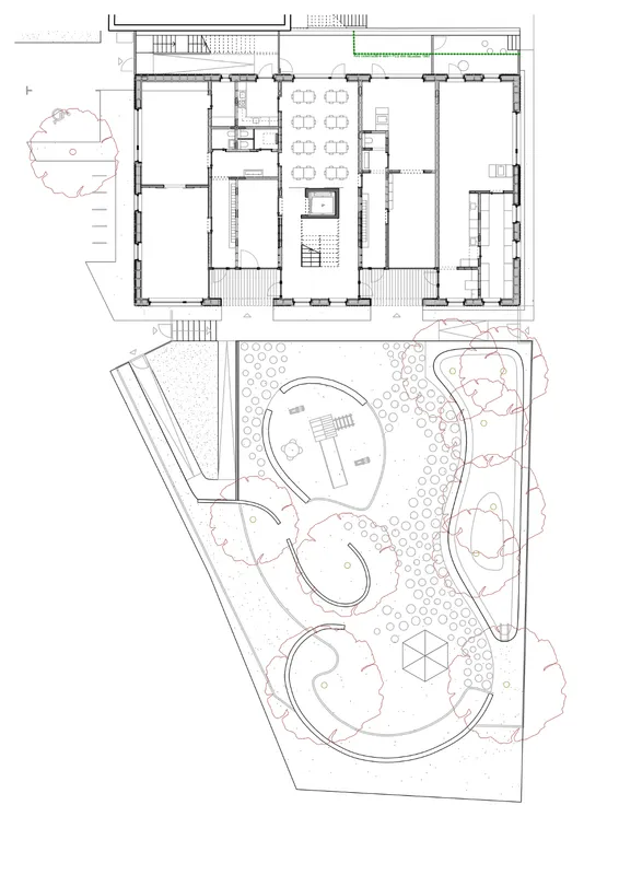
Le projet établit un lien entre le domaine scolaire et le quartier d’habitations du village en qualifiant un préau bordé par la nouvelle crèche. Situé entre l’école des Morettes, les villas à l’est et les immeubles des années 1980 au sud, le projet s’implante le long de la façade borgne existante afin de libérer un espace central, véritable lieu de rencontre entre l’école et le village, rappelant la cour des fermes vaudoises.
La toiture à deux pans reprend la silhouette traditionnelle du village et s’intègre au tissu bâti environnant. Cette forme familière évoque la maison de l’imaginaire collectif des enfants, favorisant un rapport sensible à l’architecture.
Par souci de densité et de préservation du territoire, la crèche et la cantine scolaire sont réunies dans un même bâtiment. Ce regroupement permet d’offrir un espace extérieur généreux et qualitatif tout en limitant l’emprise au sol. Le plan rectangulaire s’inspire de la composition tripartite des fermes vaudoises : la salle à manger centrale relie les secteurs des enfants, des trotteurs et des bébés, tandis qu’à l’étage se trouvent la cantine, la cuisine et les espaces administratifs.
Les matériaux locaux et écologiques jouent un rôle essentiel : structure et charpente en bois suisse, isolation en paille insufflée dans des caissons bois, favorisant confort, faible empreinte carbone et rapidité de montage.
Enfin, le préau-jardiné, situé entre la crèche et l’école, devient un espace de vie partagé. Agrémenté d’un arbre, d’un muret de jeux en brique et d’un bac à sable, il offre aux enfants et aux habitants un lieu d’appropriation et de convivialité tourné vers le lac.
La toiture à deux pans reprend la silhouette traditionnelle du village et s’intègre au tissu bâti environnant. Cette forme familière évoque la maison de l’imaginaire collectif des enfants, favorisant un rapport sensible à l’architecture.
Par souci de densité et de préservation du territoire, la crèche et la cantine scolaire sont réunies dans un même bâtiment. Ce regroupement permet d’offrir un espace extérieur généreux et qualitatif tout en limitant l’emprise au sol. Le plan rectangulaire s’inspire de la composition tripartite des fermes vaudoises : la salle à manger centrale relie les secteurs des enfants, des trotteurs et des bébés, tandis qu’à l’étage se trouvent la cantine, la cuisine et les espaces administratifs.
Les matériaux locaux et écologiques jouent un rôle essentiel : structure et charpente en bois suisse, isolation en paille insufflée dans des caissons bois, favorisant confort, faible empreinte carbone et rapidité de montage.
Enfin, le préau-jardiné, situé entre la crèche et l’école, devient un espace de vie partagé. Agrémenté d’un arbre, d’un muret de jeux en brique et d’un bac à sable, il offre aux enfants et aux habitants un lieu d’appropriation et de convivialité tourné vers le lac.












Copyright général des photographies: Valentin Rey









Copyright général des plans / schémas / graphiques: Philippe Le Roy architectes
Textes Critères de Davos
Gouvernance
La municipalité, la direction de la crèche et les usagers ont été associés aux décisions tout au long du processus. Leur présence garantit que le projet reste connecté aux attentes du territoire, aux pratiques quotidiennes et aux besoins des familles. Une visite organisée ensemble d’un projet en paille à Lausanne a notamment permis de sensibiliser et de fédérer les différents acteurs autour de ce choix alternatif.
Fonctionnalité
Le bâtiment se développe à partir des besoins essentiels de l’enfant.
Sa forme, une suite de petites maisons à deux pans, reprend une image simple et familière, immédiatement lisible. Chaque âge y trouve un lieu dédié, avec sa propre entrée de plain-pied et un accès direct à un extérieur généreux, essentiel pour l’enfant, comme une 2ème maison.
Le bois et la paille insufflée offrent une atmosphère intérieure douce, stable et accueillante, adaptée aux plus jeunes dans un environnement sain.
Sa forme, une suite de petites maisons à deux pans, reprend une image simple et familière, immédiatement lisible. Chaque âge y trouve un lieu dédié, avec sa propre entrée de plain-pied et un accès direct à un extérieur généreux, essentiel pour l’enfant, comme une 2ème maison.
Le bois et la paille insufflée offrent une atmosphère intérieure douce, stable et accueillante, adaptée aux plus jeunes dans un environnement sain.
Environnement
La structure en bois massif contreventée par des colombages et l’isolation en paille insufflée constituent une réponse simple et directe à la réduction de l’énergie grise. Les matériaux proviennent de filières locales — bois vaudois, paille régionale via Isostroh — renforçant l’ancrage territorial de la crèche.
La compacité du bâtiment limite l’emprise au sol et libère un large extérieur dédié aux enfants et maximise la pleine terre. Le bâtiment, sans sous-sol, n’a nécessité aucune excavation.
La compacité du bâtiment limite l’emprise au sol et libère un large extérieur dédié aux enfants et maximise la pleine terre. Le bâtiment, sans sous-sol, n’a nécessité aucune excavation.
Économie
Rassembler toutes les fonctions dans un volume unique permet une gestion rationnelle de la matière, des surfaces et des coûts d’entretien, tout en laissant la possibilité d’une future évolution du site.
Le recours à des ressources locales soutient les filières du territoire et facilite l’entretien dans le temps.
La préfabrication en bois massif et la mise en œuvre de la paille en atelier réduisent la durée du chantier et ses aléas, renforçant ainsi la fiabilité économique du projet.
Le recours à des ressources locales soutient les filières du territoire et facilite l’entretien dans le temps.
La préfabrication en bois massif et la mise en œuvre de la paille en atelier réduisent la durée du chantier et ses aléas, renforçant ainsi la fiabilité économique du projet.
Diversité
Le préau jardiné devient un lieu de passage et de rencontre entre l’école des Morettes, la crèche et le quartier d’habitation.
Le paysage de jeux, murets, reliefs, cachettes, zones plus ouvertes accueille différents usages et différents âges.
Ce lieu partagé, vivant sans être bruyant, s’inscrit comme un espace du quotidien, où enfants, parents et habitants se croisent naturellement et cohabite.
Le projet dépasse le strict cadre programmatique et enrichi ainsi la vie du quartier.
Le paysage de jeux, murets, reliefs, cachettes, zones plus ouvertes accueille différents usages et différents âges.
Ce lieu partagé, vivant sans être bruyant, s’inscrit comme un espace du quotidien, où enfants, parents et habitants se croisent naturellement et cohabite.
Le projet dépasse le strict cadre programmatique et enrichi ainsi la vie du quartier.
Contexte
L’implantation du bâtiment répond aux conditions du site : façade aveugle à l’ouest, villas à l’est, immeubles au sud et école au nord. En se plaçant le long de la limite, et en s’appuyant sur la façade borgne, le bâtiment libère un cœur extérieur clair et protégé. La crèche prolonge ainsi l’ordre contigu typique du village de Prangins.
La toiture en plusieurs pans dialogue avec les volumes voisins et s’ajuste à leurs échelles.
La trame constructive est inspirée des fermes vaudoises.
La toiture en plusieurs pans dialogue avec les volumes voisins et s’ajuste à leurs échelles.
La trame constructive est inspirée des fermes vaudoises.
Esprit du lieu
Le projet unifie un site fragmenté pour en faire un ensemble cohérent.
L’implantation crée un seuil clair entre l’école, les habitations et la crèche : un espace identifiable, facile à habiter.
Le jardin central, structuré par des murets et des plantations, devient un repère pour le quartier.
Le bâtiment, en ordre contigu, dégage un vide actif qui donne une nouvelle respiration au site.
L’implantation crée un seuil clair entre l’école, les habitations et la crèche : un espace identifiable, facile à habiter.
Le jardin central, structuré par des murets et des plantations, devient un repère pour le quartier.
Le bâtiment, en ordre contigu, dégage un vide actif qui donne une nouvelle respiration au site.
Beauté
La beauté du projet se trouve dans sa simplicité.
Des volumes lisibles, une toiture à deux pans, l’image familière de la maison, proche du dessin que ferait un enfant.
L’ensemble compose une architecture calme, ancrée, accueillante : une présence juste, respectueuse du village, tout en affirmant une expression contemporaine douce et précise.
Des volumes lisibles, une toiture à deux pans, l’image familière de la maison, proche du dessin que ferait un enfant.
L’ensemble compose une architecture calme, ancrée, accueillante : une présence juste, respectueuse du village, tout en affirmant une expression contemporaine douce et précise.
Caractéristiques
Lieu
Prangins VD
Catégorie d'ouvrage (SIA 102)
Enseignement, formation, recherche
Type de tâche
Nouvelle construction
Type de procédure
Concours
Type de concours
Concours ouvert
Coût de construction en CHF (SIA 416)
4'600'000
Surface de plancher en m² (SIA 416)
780
Planification
2020 → 2023
Réalisation
2023 → 2025
Année de mise en service
2025
Soumissionnaire(s) | Intervenants
Architecture du paysage
Génie civil
Maître d'ouvrage
Construction bois
Construction béton
Physique du bâtiment
Génie et planification de l'environnement
Photographie
Valentin Rey