...
bluefactory

Copyright: Corinne Cuendet
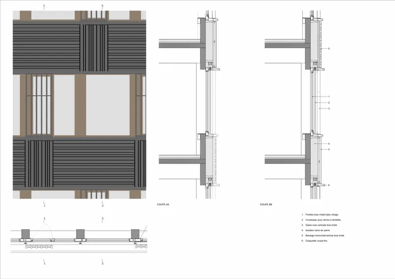
Implanté sur le site de l’ancienne brasserie Cardinal à Fribourg, bluefactory valorise le patrimoine industriel en s’articulant autour de la cheminée et du silo, renforçant la centralité de l’espace public. Sa façade en bois brûlé et sa structure porteuse en bois fribourgeois, rare pour un bâtiment de cette taille, affirment une identité contemporaine et durable. Les aménagements extérieurs (étang urbain, toitures végétalisées, surfaces perméables) favorisent biodiversité et confort climatique. Le programme mixte associe restaurant, conférences, ateliers, bureaux et laboratoires dans une trame bois modulable et préfabriquée. Labellisé Minergie-P-Eco et Bois Suisse, le projet recourt à des énergies 100 % renouvelables et intègre des innovations majeures : gestion locale des eaux (ville-éponge), récupération des eaux pluviales, toilettes à séparation de flux. bluefactory incarne une vision durable et inclusive, mêlant entreprises, recherche et culture.
















.pdf.webp)
 - corr.pdf.webp)


Copyright général des plans / schémas / graphiques: Ferrari Architectes
Textes Critères de Davos
Gouvernance
Alors qu’une structure en béton permet une grande liberté de percements, dans une structure bois, les passages possibles sont plus restreints et demandent une parfaite planification en amont. Un point de coordination majeur s’est concentré sur les réseaux d’eaux usées. Selon le concept de ville éponge ceux-ci sont séparés en eaux grises, jaunes, brunes et eaux laboratoires démultipliant les réseaux. Cette coordination a été rendue possible grâce aux maquettes numériques partagées.
Fonctionnalité
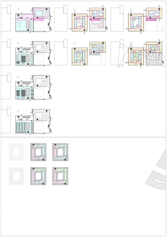
Le programme comprend un rez-de-chaussée avec restaurant, salles de conférences et ateliers de prototypage. Les étages abritent bureaux et laboratoires légers. L’autonomie fonctionnelle du bâtiment B est renforcée tout en valorisant les infrastructures existantes du bâtiment A. Le système constructif poteaux-poutres bois maximise la préfabrication, la rationalisation structurelle et la flexibilité d’usage sur le long terme grâce à sa modularité.
Environnement
Etang urbain, toitures végétalisées et espaces verts perméables favorisent biodiversité et confort climatique, contribuant à la convivialité. Le bâtiment est labelisé Minergie P-Eco A et Bois Suisse. Il jouit d’un réseau de chaleur et de froid à distance à 100% renouvelable. La gestion de l’eau est exemplaire (concept de ville-éponge). Les toilettes sont à séparation de flux (eaux jaunes/brunes traitées sur site). L’eau de pluie (eau grise) est utilisée pour les chasses d’eau.
Économie
Le rez-de-chaussée du bâtiment B s’accole autour du noyau du bâtiment existant A. Une possible extension future est prise en considération dans l’aménagement. Ces points projectuels permettent de créer d’importantes synergies. La modularité des espaces, assurée par la trame régulière et l’absence d’éléments porteurs entre façades, assure une longue durée de vie par la possibilité d’évolution des espaces. Le bois brûlé est également synonyme de longévité, par sa préservation naturelle du bois.
Diversité
L’intégration urbaine, la mixité identitaire, la diversité des animations et l’originalité des infrastructures font de bluefactory un lieu d’innovation vivant. Le quartier accueille entreprises innovantes, institutions académiques, artisans, restaurants, jardins partagés et acteurs culturels, créant un tissu vivant et inclusif. En tant que premier bâtiment pérenne du site, le bâtiment B incarne toutes ces valeurs et permet à bluefactory de s’implanter solidement dans le paysage fribourgeois.
Contexte
Le projet s’inscrit dans le site emblématique de l’ancienne brasserie Cardinal à Fribourg aujourd’hui siège de la société bluefactory. L’implantation du nouveau bâtiment B autour de la cheminée et du silo revalorise l’identité patrimoniale du lieu. Les deux volumes du bâtiment existant A et du nouveau bâtiment B offrent ainsi un ensemble cohérent renforçant la centralité de l’espace public du site. Visibles depuis les voies ferroviaires (axe Lausanne-Fribourg), ils marquent l’entrée de la ville.
Esprit du lieu
L’esprit du lieu est fortement alimenté par les vestiges industriels de l’ancienne brasserie Cardinal ainsi que par la nouvelle identité de quartier innovant, mixte et technologique. Ce mélange éclectique, adouci par ses aménagements extérieurs soignés, permet de redonner vie à un site historique cher à Fribourg. Le site, longtemps abandonné, récupère ainsi sa grande importance pour le développement économique de la ville et du canton assurant sa mise en valeur pour prochaines décennies.
Beauté
Le bois brûlé contraste fortement avec la façade patrimoniale du bâtiment A et ainsi la souligne. Son relief, sa mise en œuvre et ses nuances de couleurs apportent une vibration à cette façade à caractère industriel. L’ensemble du programme jouit d’une lumière en premier jour. Les circulations bénéficient de liaisons à travers le patio et offrent des dégagements sur la cheminée, le silo, les rails renforçant ainsi un sentiment d’affection et d’appartenance au lieu.
Caractéristiques
Lieu
Fribourg
Catégorie d'ouvrage (SIA 102)
Commerce et administration
Type de tâche
Nouvelle construction
Type de procédure
Appel d'offre
Coût de construction en CHF (SIA 416)
25 mio
Surface de plancher en m² (SIA 416)
8'428
Planification
2019 → 2021
Réalisation
2022 → 2024
Année de mise en service
2024
Soumissionnaire(s) | Intervenants
Entreprise générale
Génie civil
Construction bois
Technique du bâtiment
Conception électrique
Architecture du paysage
Photographie
Photographie
Corinne Cuendet
Photographie
Architecture