...
Arnia - Scuola dell’infanzia a Lamone

Copyright: Krausbeck Santagostino Margarido Architetti
La nuova scuola dell’infanzia Arnia, rappresenta un’opera pubblica centrale per la comunità di Lamone, concepita come un’unità abitativa dedicata ai bambini e capace di integrarsi in modo sensibile nel tessuto urbano e paesaggistico esistente. L’edificio si configura come uno spazio educativo aperto e accogliente, in grado di favorire l’apprendimento, la socialità e il rapporto con la natura.
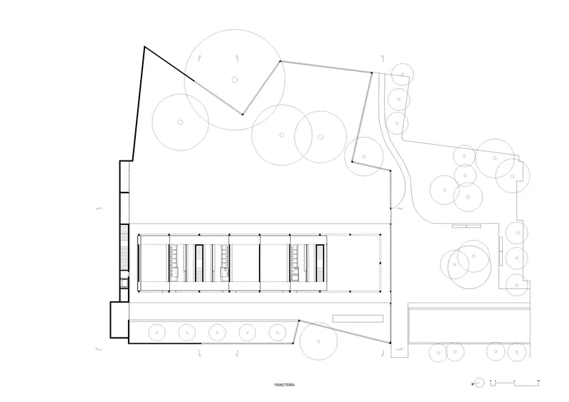
Il progetto valorizza l’identità del luogo, inserendosi tra i recinti preesistenti che definiscono gli spazi collettivi del centro - cimitero, sagrato e cortile parrocchiale - e introducendo nuovo elemento: la scuola e il suo giardino. Questo nuovo recinto genera un parco urbano qualificato, integrato in modo interstiziale nel sito. La geometria del recinto dialoga con le alberature esistenti, adattandosi al loro tracciato e rafforzando il valore paesaggistico dell’area.
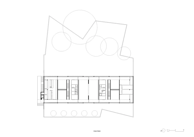
L’edificio si sviluppa su due livelli fuori terra, la cui disposizione asimmetrica consente la creazione di due giardini scolastici con atmosfere e funzioni diverse. Al piano terra, ampie vetrate protette da portici definiscono spazi di gioco coperti e favoriscono una relazione diretta e continua tra interno ed esterno. Il volume arretrato e trasparente del piano terreno conferisce leggerezza all’insieme, producendo un effetto di sospensione del volume superiore. Le distribuzioni lungo le facciate garantiscono spazi fluidi, scanditi da una sequenza ritmica di ambienti educativi.
Il progetto si fonda su un sistema modulare regolare che assicura elevata flessibilità d’uso e adattabilità nel tempo. Il calcestruzzo armato faccia a vista costituisce l’elemento caratterizzante del linguaggio architettonico dell’intero complesso, declinato in diverse componenti compositive e capace di conferire al progetto una forte identità materica e sensoriale.
Il progetto valorizza l’identità del luogo, inserendosi tra i recinti preesistenti che definiscono gli spazi collettivi del centro - cimitero, sagrato e cortile parrocchiale - e introducendo nuovo elemento: la scuola e il suo giardino. Questo nuovo recinto genera un parco urbano qualificato, integrato in modo interstiziale nel sito. La geometria del recinto dialoga con le alberature esistenti, adattandosi al loro tracciato e rafforzando il valore paesaggistico dell’area.
L’edificio si sviluppa su due livelli fuori terra, la cui disposizione asimmetrica consente la creazione di due giardini scolastici con atmosfere e funzioni diverse. Al piano terra, ampie vetrate protette da portici definiscono spazi di gioco coperti e favoriscono una relazione diretta e continua tra interno ed esterno. Il volume arretrato e trasparente del piano terreno conferisce leggerezza all’insieme, producendo un effetto di sospensione del volume superiore. Le distribuzioni lungo le facciate garantiscono spazi fluidi, scanditi da una sequenza ritmica di ambienti educativi.
Il progetto si fonda su un sistema modulare regolare che assicura elevata flessibilità d’uso e adattabilità nel tempo. Il calcestruzzo armato faccia a vista costituisce l’elemento caratterizzante del linguaggio architettonico dell’intero complesso, declinato in diverse componenti compositive e capace di conferire al progetto una forte identità materica e sensoriale.












Copyright général des photographies: Francesca Iovene











Copyright général des plans / schémas / graphiques: Krausbeck Santagostino Margarido Architetti
Textes Critères de Davos
Gouvernance
Il progetto nasce da un concorso promosso dal Comune di Lamone, che ha selezionato un gruppo interdisciplinare di architetti e ingegneri, che hanno proposto la soluzione più adeguata per inserimento territoriale, qualità architettonica, sostenibilità ed economia. La collaborazione con le istituzioni e la comunità ha permesso di definire un’opera coerente con le esigenze funzionali e l’identità del luogo.
Fonctionnalité
L’edificio, sviluppato su due livelli, integra spazi esterni distinti e ambienti interni fluidi promovendo diversi modo di abitare. Gli spazi, con percorsi leggibili, portici protetti e rapporto diretto coi giardini, rispondono ai bisogni quotidiani dei bambini. La modularità degli spazi e la flessibilità distributiva consentono l’ampliamento futuro senza compromettere la qualità spaziale e funzionale dell’intervento.
Environnement
L’impiego di materiali durevoli, tecniche costruttive e impiantistiche virtuose riduce l’impatto ambientale, valorizzando la relazione tra costruito e paesaggio. L’inserimento tra alberature e recinti preesistenti genera un parco urbano qualificato, integrato in modo interstiziale nel sito e rafforzando il valore paesaggistico.
Économie
L’impiego di calcestruzzo armato a vista e elementi prefabbricati garantisce durabilità, manutenzione controllata e un utilizzo efficiente delle risorse. La qualità dei materiali e la flessibilità degli spazi assicurano un investimento di lungo periodo con ritorno in termini di valore d’uso. La costruzione compatta e razionale riduce sprechi e garantisce efficienza nel tempo, unendo qualità architettonica e sostenibilità gestionale.
Diversité
Gli spazi esterni configurati come parco urbano favorisce l’inclusione e la condivisione sociale.
Il piano superiore, accessibile anche dall’esterno, ospita funzioni comunitari oltre l’orario scolastico, ampliando così le possibilità d’incontro e partecipazione, e favorendo l’iterazione tra diverse fasce d’età.
Il piano superiore, accessibile anche dall’esterno, ospita funzioni comunitari oltre l’orario scolastico, ampliando così le possibilità d’incontro e partecipazione, e favorendo l’iterazione tra diverse fasce d’età.
Contexte
L’edificio dialoga con il contesto storico e paesaggistico, rispettando la sua struttura aperta e comunitaria. Il nuovo recinto riprende le logiche dei muri antichi e si adatta alle alberature, integrandosi nel grande isolato verde. La composizione volumetrica e la espressività dei materiali proposti si inseriscono armoniosamente nel tessuto urbano, valorizzando le caratteristiche locali.
Esprit du lieu
L’intervento interpreta e rafforza l’identità del luogo trasformando uno spazio interstiziale in un nuovo fulcro comunitario, dove il rapporto tra natura, recinti e percorsi costruisce un’atmosfera accogliente. La matericità del calcestruzzo a vista, la composizione dei volumi e l’organizzazione degli spazi aperti creano un’esperienza riconoscibile e un forte senso di appartenenza.
Beauté
La chiarezza del ritmo strutturale, la luce filtrata dagli elementi prefabbricati ‘cobogó’ e la trasparenza del piano terra conferiscono all’edificio un carattere distintivo. La continuità spaziale, i pieni e vuoti e la percezione della luce valorizzano l’esperienza sensoriale, elevando la qualità dello spazio e del contesto circostante. Le distribuzioni lungo le facciate permettono una spazialità interna aperta e fluida, definendo il ritmo e garantendo una continuità spaziale armoniosa.
Caractéristiques
Lieu
Lamone
Catégorie d'ouvrage (SIA 102)
Enseignement, formation, recherche
Type de tâche
Nouvelle construction
Type de procédure
Concours
Type de concours
Concours ouvert
Coût de construction en CHF (SIA 416)
Surface de plancher en m² (SIA 416)
2.600
Planification
2020 → 2022
Réalisation
2022 → 2024
Année de mise en service
2024
Soumissionnaire(s) | Intervenants
Maître d'ouvrage
Comune di Lamone
Génie civil
CSD Ingegneri SA
Technique du bâtiment
CSD Ingegneri SA
Conception électrique
Piona Engineering SA
Entreprise générale
Quadri SA
Architecture du paysage
Giorgio Benichio