...
Umnutzung Messehalle 9
Nina Baisch.jpg)
Copyright: Nina Baisch
Die Stadt Zürich verzeichnet ein hohes Schüler- und Bevölkerungswachstum, wodurch die Ausweichflächen für den obligatorischen Schulsport immer knapper werden. Gleichzeitig steigt der Bedarf an Flächen für den Vereinssport.
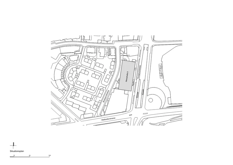
Der Umbau der unter Denkmalschutz stehenden Messehalle 9, zwischen Birnbaum- und Thurgauerstrasse, soll diese benötigten Flächen bereitstellen. Die 1962 vom Zürcher Architekten Werner Stüchli erbaute Halle besteht aus einem dreischiffigen Querschnitt mit einem 6 Meter hohen Hauptschiff und zwei niedrigeren Seitenschiffen. Die Tragkonstruktion, welche die markante Dachsilhouette aus Graben- und Pultdächern beschreibt, besteht aus elf gleichen Betonrahmen. Über zwei Fensterbänder an der West- und Ostfassade wird die Halle gleichmässig belichtet.
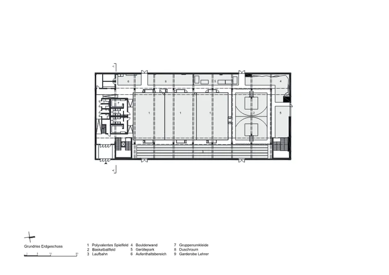
Illiz architektur wandelte die ehemalige Messehalle mit einfachen, kostengünstigen Mitteln in eine multifunktionale Sportstätte um. Im Sinne eines möglichst breiten und vielfältigen Angebots wurden drei Spielfelder für Ballsportarten, ein Polysportbereich, eine 50m-Laufbahn und eine Boulderwand integriert. Durch die Nutzung von Vorhängen und Trennnetzen konnte der einprägsame Charakter der Halle und die Grosszügigkeit des Tragwerks erhalten bleiben. Alle notwendigen Einbauten verstehen sich als additive Zutaten, die sich vom Bestand klar abheben. So wurde auch die zweigeschossige Garderobenbox in Holz-Leichtbauweise wie ein als „Haus im Haus” in die Halle eingestellt.
Der Umbau der unter Denkmalschutz stehenden Messehalle 9, zwischen Birnbaum- und Thurgauerstrasse, soll diese benötigten Flächen bereitstellen. Die 1962 vom Zürcher Architekten Werner Stüchli erbaute Halle besteht aus einem dreischiffigen Querschnitt mit einem 6 Meter hohen Hauptschiff und zwei niedrigeren Seitenschiffen. Die Tragkonstruktion, welche die markante Dachsilhouette aus Graben- und Pultdächern beschreibt, besteht aus elf gleichen Betonrahmen. Über zwei Fensterbänder an der West- und Ostfassade wird die Halle gleichmässig belichtet.
Illiz architektur wandelte die ehemalige Messehalle mit einfachen, kostengünstigen Mitteln in eine multifunktionale Sportstätte um. Im Sinne eines möglichst breiten und vielfältigen Angebots wurden drei Spielfelder für Ballsportarten, ein Polysportbereich, eine 50m-Laufbahn und eine Boulderwand integriert. Durch die Nutzung von Vorhängen und Trennnetzen konnte der einprägsame Charakter der Halle und die Grosszügigkeit des Tragwerks erhalten bleiben. Alle notwendigen Einbauten verstehen sich als additive Zutaten, die sich vom Bestand klar abheben. So wurde auch die zweigeschossige Garderobenbox in Holz-Leichtbauweise wie ein als „Haus im Haus” in die Halle eingestellt.
Nina Baisch.jpg)
Nina Baisch.jpg)
Nina Baisch.jpg)
Nina Baisch.jpg)
Nina Baisch.jpg)
NinaBaisch.jpg)
NinaBaisch.jpg)
NinaBaisch.jpg)
Nina Baisch.jpg)
Nina Baisch.jpg)
Copyright général des photographies: Nina Baisch





Copyright général des plans / schémas / graphiques: illiz architektur GmbH
Textes Critères de Davos
Gouvernance
Die umgenutzte Messehalle steht untertags dem obligatorischen Schulsport und abends für Vereine zur Verfügung. An Wochenenden wird die Halle für die gesamte Bevölkerung geöffnet, wodurch die bestehende Infrastruktur mehrfach genutzt und einer breiten Nutzer*innenschaft zugänglich gemacht wird. So wird auch auf sozialer Ebene die Nachhaltigkeit seitens der Stadt Zürich gefördert, und das Projekt kann in diesem Sinne eine Vorbildfunktion für andere Bauten einnehmen.
Fonctionnalité
Die denkmalgeschützte Messehalle weist aufgrund ihrer weit spannenden Betontragkonstruktion und klarer Tektonik eine hohe funktionale Flexibilität auf und ermöglicht dadurch unterschiedliche Nutzungen ohne bauliche Eingriffe in die Struktur. Die Halle wurde im Laufe ihrer Zeit mehrfach umgenutzt und konnte nun mit minimalen Massnahmen als multifunktionale Sporthalle adaptiert werden. Eine temporäre Sporthalle mit vielseitigem Angebot, jederzeit rückbaubar.
Environnement
Der Umbau basiert auf der Weiterverwendung des Bestands. Neue Einbauten verstehen sich als additive Zutaten, ohne anzudocken. So wurde auch die zweigeschossige Garderobenbox in Holz-Leichtbauweise wie ein „Haus im Haus” in die Halle eingestellt. Die Holzbauelemente, aufliegende Sportböden und textile Raumtrenner ermöglichen einen späteren Rückbau, ohne Eingriffe in die Tragstruktur vornehmen zu müssen. Dadurch wird der Materialeinsatz minimiert und die Substanz des Bestands langfristig genutzt.
Économie
Die Umnutzung der Messehalle stellt eine wirtschaftlich effiziente Lösung zur Bereitstellung dringend benötigter Sportflächen dar. Durch einfache Konstruktionen, geringe bauliche Eingriffe und einen klar definierten Nutzungszeitraum konnten niedrige Erstellungskosten realisiert werden. Die robuste Grundstruktur des Bestands ermöglicht Anpassungen an wechselnde Anforderungen und sichert eine langfristige Nutzbarkeit, ohne zusätzliche Investitionen in Neubauten.
Diversité
Die Messehalle wurde im Zuge der Umbauarbeiten auch auf die aktuell gültigen Behindertennormen angepasst, sodass die Turnhalle eine inklusive Gesellschaft fördert. Im Sinne eines möglichst breiten und vielfältigen Angebots wurden drei Spielfelder für Ballsportarten, ein Polysportbereich, eine 50m-Laufbahn und eine Boulderwand in die multifunktionale Halle integriert. Gemischte Nutzergruppen und Sportarten prägen die Halle und tragen zu einer gleichzeitigen Vielfalt bei.
Contexte
Erbaut 1962 von Werner Stüchli, präsentiert sich die Halle mit einem dreischiffigen Querschnitt mit 6m hohen Hauptschiff und zwei niedrigeren Seitenschiffen. Die Tragkonstruktion, welche die markante Dachsilhouette aus Graben- und Pultdächern beschreibt, besteht aus elf gleichen Betonrahmen. Sämtliche Einbauten werden als reversible Bauteile kompakt in der Halle vorgesehen und erhalten die Wichtigkeit des baukulturellen Erbes. Alt und Neu treten in einen neuen, funktionalen Dialog.
Esprit du lieu
Das äussere Erscheinungsbild und die räumliche Grundstruktur der denkmalgeschützten Messehalle blieben trotz unterschiedlichster Nutzungen über die Jahre erhalten. Dadurch besteht sie als Ankerpunkt und behält ihren Wiedererkennungswert im Gebiet über Generationen bei. Der Bedarf an erweiterten Sportflächen und die somit einhergehende Umnutzung stärkt in diesem Sinne die „inneren Werte“ der Halle.
Beauté
In einem stark wandelnden Umfeld behauptet sich die Messehalle vergleichsweise als "am Boden geblieben" und wirkt als Gegenpol zu den dahinterliegenden Hochhäusern. Lichte Textilvorhänge und Trennnetze betonen weiterhin den einprägsamen Charakter der Halle und die Grosszügigkeit des Tragwerks. Das räumliche Zusammenspiel, gleichmässige Belichtung, widerstandsfähige Materialien und die Mischung aus Holz- und Betonoberflächen schaffen eine motivierte und sportliche Atmosphäre.
Caractéristiques
Lieu
Zürich
Catégorie d'ouvrage (SIA 102)
Loisirs, sport et détente
Type de tâche
Réutilisation
Type de procédure
Mandat direct
Coût de construction en CHF (SIA 416)
5'640’000 CHF
Surface de plancher en m² (SIA 416)
3'584 m2
Planification
2020 → 2023
Réalisation
2023 → 2024
Année de mise en service
2024
Soumissionnaire(s) | Intervenants
Technique du bâtiment
Todt Gmür + Partner AG
Conception électrique
Physique du bâtiment
Directions des travaux
Génie civil
Technique du bâtiment
Photographie