...
Restaurant Caumasee, Flims

Copyright: Ralph Feiner
Der Caumasee wird seit den Anfängen des alpinen Sommertourismus im frühen 19. Jahrhundert als Kur- und Badesee genutzt. Aufgrund der Veränderung des alpinen Lebensraums durch den Klimawandel sucht die Gemeinde Flims mit dem neuen Restaurant – als Ersatz nach einem Brand – Alternativen zum Wintertourismus. Der Holzbau stapelt die unterschiedlichen Nutzungen zu einem Körper, der sich im Rhythmus der Jahreszeiten verändert.
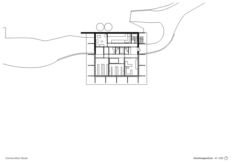
Infrastrukturbauten bildeten über die Zeit unterschiedliche Bezüge zu den starken landschaftlichen Elementen von Wasser, Wald und Fels. Im Interesse des Landschaftsschutzes fügt sich der neue Baukörper in den Saum des Waldes und spielt den Uferraum frei. Mit möglichst kleinem Fussabdruck werden die Nutzungen übereinandergestapelt. Das steile Giebeldach macht den Körper zur ruhenden Form am Waldrand. Neben dieser Identitätsstiftung, ist der Wald die lokale Materialressource der Baukonstruktion. Das Tragwerk wird den unterschiedlichen Räumen als Stützen- und Scheibenstruktur präzise eingeschrieben. Die aus linearen Elementen gefügte Konstruktion schafft im Innern starke, tektonische Räume. Unter einem Dach werden das ganzjährige Restaurant und die Küche gefasst, Hängesäulen und A-Stützen treten als Figuren in den Raum. Das kleinteilige Blindgeschoss für Technik und Lager überträgt als Rost die Kräfte auf das Erdgeschoss, wo sich der selbstbediente Sommer-Kiosk befindet. Außen erzeugen klapp- und schiebbare Fassadenelemente eine Anpassbarkeit des Baukörpers an den Rhythmus der Jahreszeiten und den sich stark verändernden Betrieb am See. Diese mechanische Eigenschaft erzeugt eine vermittelnde Schicht zwischen Innen und Aussen, die Räume im Sommer erweitert und im Winter schrumpft. Die dunkel lasierte Fassade löst den Baukörper vor dem Hintergrund des Waldes auf. Das dünne, wie ein Papier aufgesetzte Aluminiumdach bricht je nach Perspektive und Licht seine Körperhaftigkeit.
Infrastrukturbauten bildeten über die Zeit unterschiedliche Bezüge zu den starken landschaftlichen Elementen von Wasser, Wald und Fels. Im Interesse des Landschaftsschutzes fügt sich der neue Baukörper in den Saum des Waldes und spielt den Uferraum frei. Mit möglichst kleinem Fussabdruck werden die Nutzungen übereinandergestapelt. Das steile Giebeldach macht den Körper zur ruhenden Form am Waldrand. Neben dieser Identitätsstiftung, ist der Wald die lokale Materialressource der Baukonstruktion. Das Tragwerk wird den unterschiedlichen Räumen als Stützen- und Scheibenstruktur präzise eingeschrieben. Die aus linearen Elementen gefügte Konstruktion schafft im Innern starke, tektonische Räume. Unter einem Dach werden das ganzjährige Restaurant und die Küche gefasst, Hängesäulen und A-Stützen treten als Figuren in den Raum. Das kleinteilige Blindgeschoss für Technik und Lager überträgt als Rost die Kräfte auf das Erdgeschoss, wo sich der selbstbediente Sommer-Kiosk befindet. Außen erzeugen klapp- und schiebbare Fassadenelemente eine Anpassbarkeit des Baukörpers an den Rhythmus der Jahreszeiten und den sich stark verändernden Betrieb am See. Diese mechanische Eigenschaft erzeugt eine vermittelnde Schicht zwischen Innen und Aussen, die Räume im Sommer erweitert und im Winter schrumpft. Die dunkel lasierte Fassade löst den Baukörper vor dem Hintergrund des Waldes auf. Das dünne, wie ein Papier aufgesetzte Aluminiumdach bricht je nach Perspektive und Licht seine Körperhaftigkeit.












Copyright général des photographies: Ralph Feiner / Leonardo Finotti










mkp.pdf.webp)
mkp.pdf.webp)
Copyright général des plans / schémas / graphiques: Corinna Menn Studio
Textes Critères de Davos
Gouvernance
Der von der Gemeinde Flims 2019 lancierte Architekturwettbewerb stellt ein erstes, fachlich breit abgestütztes Instrument der «Gouvernanz» dar. Die politischen Vertreter der Gemeinde, Fachbehörden des Kantons, Umweltverbände und Architektur-Fachpersonen wählten das Projekt im Diskurs. Die Volksabstimmung zum Projekt – und damit verbundene Mitwirkungsanlässe - bezogen den Souverän als Akteur ein.
Fonctionnalité
Freizeit, Erholung und kulinarisch-soziales Zusammentreffen sind die Zwecke des Baus. Die Infrastruktur am Badesee steht in einer gut 150-jährigen Kultur des alpinen Sommertourismus, die Menschen inklusiv (Zugang des Ortes durch einen Schräglift seit 1937) und Generationen übergreifend verbindet, TouristInnen wie Einheimische.
Environnement
Effiziente Bodennutzung, lokale Ressource und Reversibilität: Der Ersatzneubau (nach einem Brand) besetzt den Boden punktuell konzentriert, er sitzt am Ort des Bestandes und kommt ohne Untergeschoss aus. Der Holzbau verwendet die lokale, nachwachsende Ressource des Flimser Holzes (Vollholz). Das Design-for-Disassembly verfolgt das Prinzip der langlebigen Erneuerung von Bauteilen und der Reversibilität.
Mobilität: Der Ort ist ausschliesslich zu Fuss und über den öffentlichen Lift zugänglich.
Mobilität: Der Ort ist ausschliesslich zu Fuss und über den öffentlichen Lift zugänglich.
Économie
Der Bau und der Betrieb - die Nutzungsphase - trägt zur langanhaltenden, lokalen wirtschaftlichen Wertschöpfung und einer qualitätsvollen Tourismus-Kultur bei. Das Restaurant ist ein nachhaltiger Beitrag zur Förderung des alpinen Sommertourismus und es stellt eine Alternative zum sich verändernden Wintertourismus dar.
Diversité
Der Caumasee, mit der Aktivität des Badens und des Speisens, ist ein Ort des niederschwelligen und inklusiven Zugangs. Er fördert die soziale Kohäsion über alle Generationen und sozialen Schichten, insbesondere zwischen einheimischen und touristischen Gästen.
Contexte
Der Bau versteht sich als fortschreibendes Element der Kur- und Badegeschichte am Caumasee und des alpinen Sommertourismus. Mit seiner Setzung im Saum des Waldes und mit der dunkel lasierten Fassade nimmt sich der Körper zurück. Er lässt dem fragilen Ökosystem des Wassers, das mit der stark verändernden Pegeldifferenz die Landschaft saisonal verändert, seinen Raum.
Esprit du lieu
Durch seine ikonische Gestalt und Materialität und die Motive der Übergangsräume zwischen Innen und Aussen, bezieht sich der Bau auf das historische Holzbad. Er weckt Assoziationen und Identifikation, vor allem bei älteren und lokal verwurzelten Menschen. Gleichzeitig spielt der Bau durch die saisonale Anpassbarkeit der Fassade mit der zeitgenössischen Mehrfachnutzung und -bedeutung in einem sich wandelnden Kontext.
Beauté
Die Schönheit liegt im Ort, der topografischen Senke und seinen Naturelementen von Wasser, Wald, Fels und Himmel. Dieser verpflichtet, ordnet die archetypische, ruhige Form ein. Die Anpassbarkeit der Fassade verbindet und trennt Räume für die saisonal unterschiedlichen Aktivitäten und trägt zur adaptiven Wirkung im landschaftlichen Kontext bei. Das integrativ-Performative steht für Schönheit.
Caractéristiques
Lieu
Flims Waldhaus GR
Catégorie d'ouvrage (SIA 102)
Hôtellerie et tourisme
Type de tâche
Nouvelle construction
Type de procédure
Concours
Type de concours
Concours sur invitation
Coût de construction en CHF (SIA 416)
7.8 Mio
Surface de plancher en m² (SIA 416)
776
Planification
2022 → 2024
Réalisation
2023 → 2024
Année de mise en service
2024
Soumissionnaire(s) | Intervenants
Maître d'ouvrage
Architecture du paysage
Génie civil
Génie civil
Technique du bâtiment
Technique du bâtiment
Technique du bâtiment
Technique du bâtiment
Conception électrique
Physique du bâtiment
Conception lumière
Signalétique
Autre
Directions des travaux