...
LysP8 - Wohnhaus mit Gewerbe

Copyright: Federico Farinatti
Die Parzelle 8 ist das zuletzt realisierte Gebäude auf dem Areal «Lysbüchel Süd», das die Stiftung Habitat schrittweise zu einem lebendigen, vielfältigen Quartier entwickelt hat. Günstige Wohnungen, gemeinschaftliche Angebote und eine bunte Architektur prägen den Ort, in den sich das Wohnhaus «LysP8» selbstverständlich einfügt.
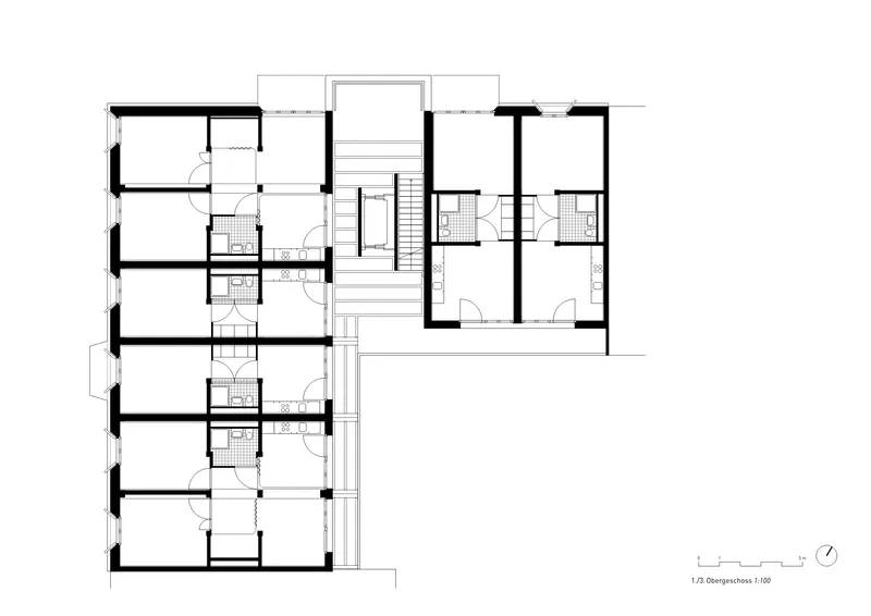
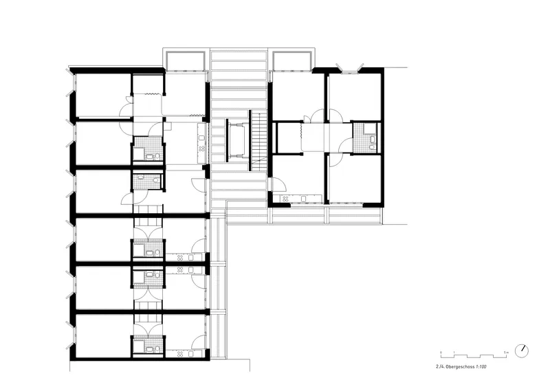
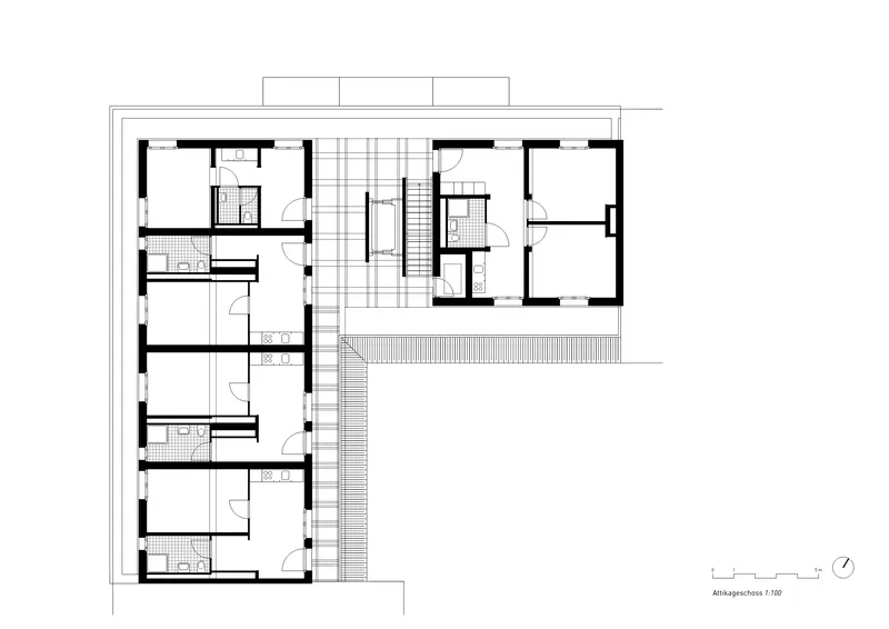
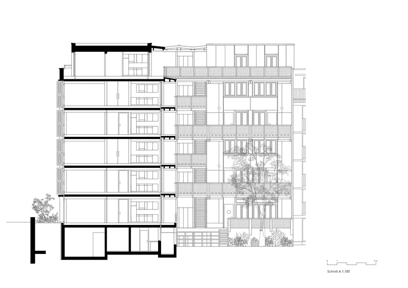
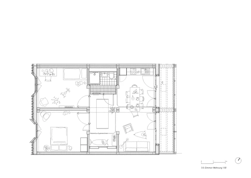
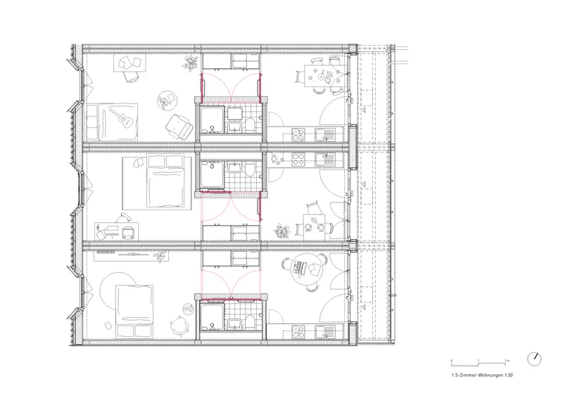
Die architektonische Antwort auf Städtebau und Programm ist eine beschwingte Combo aus Punkthaus am Quartierplatz Volta Nord, strassenbegleitendem Langhaus an der Lothringerstrasse und einem verbindenden Erschliessungsgerüst. In ihrem Zusammenspiel entstehen je nach Lage zu Platz, Strasse oder Hof spezifische Fassaden. Zum Quartierplatz hin verweben sich die Balkone der grösseren Wohnungen mit den gemeinschaftlichen auskragenden Podesten zu einem markanten, zeichenhaften Eingang. Treppen, Laubengänge, Terrassen und Balkone verbinden die Geschosse zu einer dreidimensionalen Hauspromenade und laden die Bewohnerinnen und Bewohner zum gegenseitigen informellen Austausch ein.
Die 27 kostengünstigen Wohnungen basieren auf einem einfachen, zweiseitig orientierten Raummodul und ermöglichen flexible Typen für Singles, Paare, WGs oder Familien. Gewohnt wird zum Hof, geschlafen zur ruhigen Strasse. Eine Mittelzone nimmt Bad und Reduit auf; bei den kleinsten Einheiten lässt sich die Dusche zu einem barrierefreien Nassraum erweitern. Äusserst kompakte Grundrisse, offene Treppenhäuser und die Laubengangerschliessung reduzieren die Energiebezugsfläche pro Person auf ein Minimum.
Den hohen Anforderungen an Nachhaltigkeit und Ökonomie wird das Projekt auf verschiedensten Ebenen gerecht. Die Tragstruktur und der Ausbau aus Holz folgen konsequent dem Prinzip «Design to Disassembly»: sichtbar verschraubt, demontierbar und von Beginn an auf Wiederverwendung ausgelegt. Rund 30 Re-Use-Bauteile – von Küchen über Fassadenplatten bis zu Sanitärelementen und Fensterläden – finden im LysP8 eine neue Verwendung und ermöglichen eine Einsparung von rund 100 Tonnen CO₂.
Die architektonische Antwort auf Städtebau und Programm ist eine beschwingte Combo aus Punkthaus am Quartierplatz Volta Nord, strassenbegleitendem Langhaus an der Lothringerstrasse und einem verbindenden Erschliessungsgerüst. In ihrem Zusammenspiel entstehen je nach Lage zu Platz, Strasse oder Hof spezifische Fassaden. Zum Quartierplatz hin verweben sich die Balkone der grösseren Wohnungen mit den gemeinschaftlichen auskragenden Podesten zu einem markanten, zeichenhaften Eingang. Treppen, Laubengänge, Terrassen und Balkone verbinden die Geschosse zu einer dreidimensionalen Hauspromenade und laden die Bewohnerinnen und Bewohner zum gegenseitigen informellen Austausch ein.
Die 27 kostengünstigen Wohnungen basieren auf einem einfachen, zweiseitig orientierten Raummodul und ermöglichen flexible Typen für Singles, Paare, WGs oder Familien. Gewohnt wird zum Hof, geschlafen zur ruhigen Strasse. Eine Mittelzone nimmt Bad und Reduit auf; bei den kleinsten Einheiten lässt sich die Dusche zu einem barrierefreien Nassraum erweitern. Äusserst kompakte Grundrisse, offene Treppenhäuser und die Laubengangerschliessung reduzieren die Energiebezugsfläche pro Person auf ein Minimum.
Den hohen Anforderungen an Nachhaltigkeit und Ökonomie wird das Projekt auf verschiedensten Ebenen gerecht. Die Tragstruktur und der Ausbau aus Holz folgen konsequent dem Prinzip «Design to Disassembly»: sichtbar verschraubt, demontierbar und von Beginn an auf Wiederverwendung ausgelegt. Rund 30 Re-Use-Bauteile – von Küchen über Fassadenplatten bis zu Sanitärelementen und Fensterläden – finden im LysP8 eine neue Verwendung und ermöglichen eine Einsparung von rund 100 Tonnen CO₂.












Copyright général des photographies: Federico Farinatti












Copyright général des plans / schémas / graphiques: Loeliger Strub Architektur
Textes Critères de Davos
Gouvernance
Die Gouvernanz des LysP8 beruht auf einem gemeinwohlorientierten Zusammenspiel von Bauherrschaft, Bewohnerschaft und Betrieb. Klare Zuständigkeiten, transparente Entscheide und partizipative Formate stärken Vertrauen und Mitverantwortung. Die Stitftung Habitat sichert langfristig soziale Durchmischung, bezahlbare Mieten und nachhaltigen Unterhalt. So entsteht ein stabiles, lernfähiges Gefüge zwischen individueller Freiheit und kollektiver Verantwortung.
Fonctionnalité
Eine klare, effiziente Organisation, die Alltagstauglichkeit und Flexibilität verbindet, zeichnet das Projekt aus. Ein einfaches Raummodul bildet die Grundlage für unterschiedlichste Wohnungstypen und ermöglicht eine wirtschaftliche Nutzung der Flächen. Die Trennung von Wohn- und Schlafbereichen, kurze Erschliessungswege und gut nutzbare Gemeinschaftszonen unterstützen vielfältige Lebensweisen. Das offene Erschliessungsgerüst verbindet die verschiedenen Funktionen räumlich und sozial.
Environnement
Das LysP8 versteht Umweltverantwortung als integralen Bestandteil von Entwurf, Bau und Betrieb. Die Holztragstruktur, kompakte Grundrisse und die Laubengangerschliessung reduzieren Ressourcen- und Energieverbrauch. Das Prinzip «Design to Disassembly» sowie der Einsatz zahlreicher Re-Use-Bauteile senken den CO₂-Fussabdruck erheblich und ermöglichen zukünftige Weiterverwendung. Das Projekt dient als "Shining Example" für das IEA-EBC Annex 89 und als Vorzeigebeispiel für den Klimapfad SIA 390/1.
Économie
Die Wirtschaftlichkeit des LysP8 basiert auf Einfachheit, Dauerhaftigkeit und der individuellen Ausstauschbarkeit von Bauteilen. Die kompakten Grundrisse, das repetitive Raummodul und die effiziente Erschliessung senken Bau- und Betriebskosten nachhaltig. Die Holzbauweise, der Einsatz von Re-Use-Bauteilen und das «Design to Disassembly» reduzieren graue Energie und gewährleisten langfristig geringe Unterhaltskosten. So entsteht bezahlbarer Wohnraum für verschiedenste Bewohnergruppen.
Diversité
Das Projekt fördert Vielfalt durch soziale Durchmischung, flexible Wohnformen und gemeinschaftliche Angebote. Unterschiedliche Wohnungstypen für Singles, Familien, WGs und betreutes Wohnen ermöglichen ein inklusives Zusammenleben. Gemeinschaftsräume, begegnugsfördernde Laubengänge und gemeinschaftliche Logen unterstützen den sozialen Austausch. Architektur, Nutzung und Bewohnerschaft bilden ein vielfältiges und lebendiges Gefüge, das Integration, Begegnung und Chancengleichheit unterstützt.
Contexte
Das LysP8 reagiert sensibel auf seinen städtebaulichen und sozialen Kontext. Der Baukörper komplettiert die heterogene Blockrandbebauung, gleichzeitig fördert er mit einer grossen Öffnung vom Quartierplatz zum Hof die Porosität der Bebauung. Unterschiedliche Fassaden und die Höhenstaffelung des Erdgeschosses fügen das Haus harmonisch in die Umgebung ein. Es entsteht ein Wohnhaus, das sowohl in den räumlichen als auch in den sozialen Kontext eingebettet ist und das Quartier nachhaltig bereichert.
Esprit du lieu
Das Projekt LysP8 greift die städtebauliche und soziale Struktur von Lysbüchel Süd auf. Die Setzung zwischen Quartierplatz, Lothringerstrasse und Hof reagiert präzise auf den städtebaulichen Kontext. Unterschiedliche Fassaden, Laubengänge und gemeinschaftliche Räume unterstützen Begegnung und alltägliche Nutzung. Die nachhaltige Holzbauweise und der Einsatz von Re-Use-Bauteilen verankern das Gebäude auch ökologisch und sozial im Ort.
Beauté
Die Schönheit des LysP8 liegt in der lebendigen Vielfalt von Form, Material und Farbe. Differenzierte Fassaden, auskragende Podeste und das expressive Erschliessungsgerüst schaffen markante, erkennbare Orte. Harmonisch auf Quartierplatz, Strasse und Hof abgestimmt, verbinden sich Funktionalität und Ästhetik. Sichtbares Holz, offene Laubengänge und abwechslungsreiche Perspektiven erzeugen eine sinnliche, einladende Atmosphäre für Bewohner:innen und Passant:innen.
Caractéristiques
Lieu
Weinlagerstrasse 33, 4056 Basel
Catégorie d'ouvrage (SIA 102)
Habitat
Type de tâche
Nouvelle construction
Type de procédure
Concours
Type de concours
Concours sur invitation
Coût de construction en CHF (SIA 416)
BKP 1-9 inkl. MwSt. 10'820'000 CHF (Schlussrechnung noch nicht vorhanden)
Surface de plancher en m² (SIA 416)
2'252
Planification
2021 → 2023
Réalisation
2023 → 2025
Année de mise en service
2025
Soumissionnaire(s) | Intervenants
Maître d'ouvrage
Directions des travaux
Construction bois
Génie civil
Physique du bâtiment
Technique du bâtiment
Technique du bâtiment
Gemperle S-Plan GmbH
Conception électrique
Autre