...
Pavillon provisoire pour le Centre de Formation Professionnelle Santé et sociale (CFPS)

Copyright: Eric Maria Architectes SA
Ce projet concerne la construction d’un pavillon provisoire pour la filière de formation professionnelle des technicien(ne)s d’analyses biomédicales du CFPS sur le site Gérard-de-Ternier, à Lancy, en attendant la création du nouveau centre à Champel.
Le projet, dès son programme, a été pensé comme modulaire et modulable par une construction métal/bois reprenant les principes d’une construction par bloc et permettant une réalisation sur 12 mois, dont la construction des charpentes en périodes hivernales.
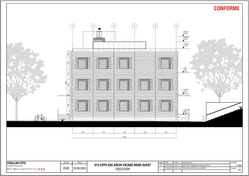
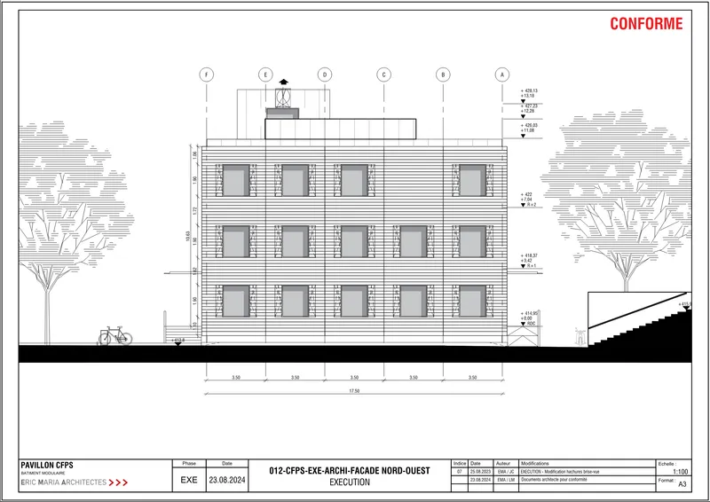
La proposition architecturale se lit comme un empilage de modules par le marquage des joints issus d’une préfabrication, les blocs comprenant ou non une fenêtre suivant le programme.
Les fenêtres ont été pensées en fonction de l’usage d’une classe et de la nécessité d’une ventilation dans une grille horizontale de bois fixe la protégeant de l’intrusion, donnant à la façade une préciosité dans une surface monolithique. Le bois de la façade a été prématurément vieilli afin d’éviter avec le temps des décolorations. Les intérieurs correspondent aux matériaux des panneaux en bois préfabriqués, simplement vernis, les sols étant recouverts d’un revêtement protecteur aux acides pour un usage de laboratoire. Les charpentes visibles et les parties métalliques reprennent la couleur de la rouille pour rester dans des tons naturels des matériaux. Les sanitaires et les appareillages sont entièrement habillés d’inox, afin d’accompagner solidité et facilité d’entretien.
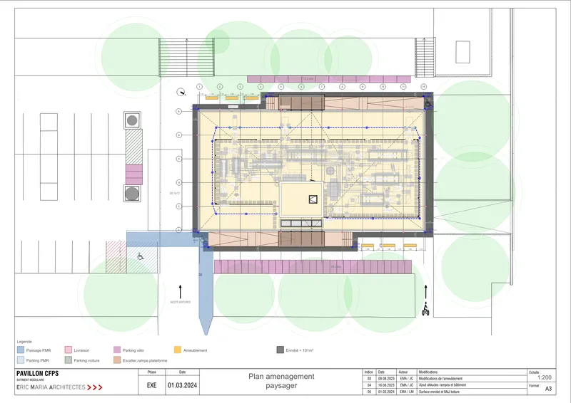
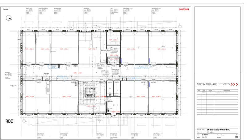
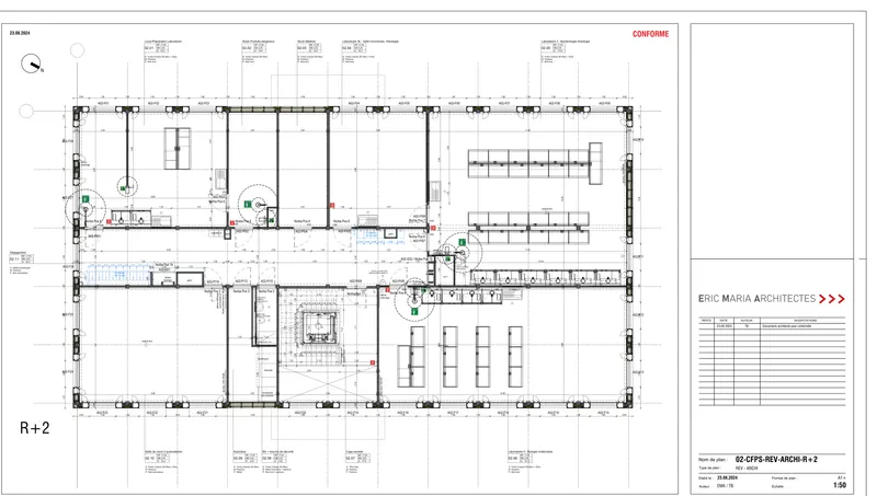
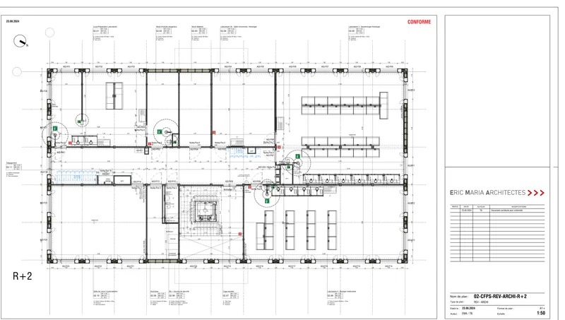
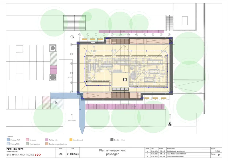
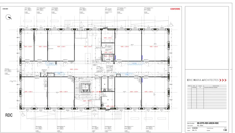
Le pavillon, composé de 3 niveaux hors sol (R+2) et d’une emprise au sol de 17.8 m x 30.0 m, est conçu dans une démarche durable et inclusive, répondant aux normes énergétiques genevoises et à l’accessibilité HAU/SIA 500. Le pavillon est transformable afin d’être réutilisé dans un autre contexte et posé sur le site avec les fondations les plus succinctes possible, afin de pouvoir impacter le site au minimum. Les arbres du parking ont été conservés et certains transplantés le long du projet afin de contextualiser.
Le projet, dès son programme, a été pensé comme modulaire et modulable par une construction métal/bois reprenant les principes d’une construction par bloc et permettant une réalisation sur 12 mois, dont la construction des charpentes en périodes hivernales.
La proposition architecturale se lit comme un empilage de modules par le marquage des joints issus d’une préfabrication, les blocs comprenant ou non une fenêtre suivant le programme.
Les fenêtres ont été pensées en fonction de l’usage d’une classe et de la nécessité d’une ventilation dans une grille horizontale de bois fixe la protégeant de l’intrusion, donnant à la façade une préciosité dans une surface monolithique. Le bois de la façade a été prématurément vieilli afin d’éviter avec le temps des décolorations. Les intérieurs correspondent aux matériaux des panneaux en bois préfabriqués, simplement vernis, les sols étant recouverts d’un revêtement protecteur aux acides pour un usage de laboratoire. Les charpentes visibles et les parties métalliques reprennent la couleur de la rouille pour rester dans des tons naturels des matériaux. Les sanitaires et les appareillages sont entièrement habillés d’inox, afin d’accompagner solidité et facilité d’entretien.
Le pavillon, composé de 3 niveaux hors sol (R+2) et d’une emprise au sol de 17.8 m x 30.0 m, est conçu dans une démarche durable et inclusive, répondant aux normes énergétiques genevoises et à l’accessibilité HAU/SIA 500. Le pavillon est transformable afin d’être réutilisé dans un autre contexte et posé sur le site avec les fondations les plus succinctes possible, afin de pouvoir impacter le site au minimum. Les arbres du parking ont été conservés et certains transplantés le long du projet afin de contextualiser.












Copyright général des photographies: Hélène Maria Photographe
.pdf.webp)
.pdf.webp)
.pdf.webp)
.pdf.webp)
.pdf.webp)
.pdf.webp)
.pdf.webp)
.pdf.webp)
.pdf.webp)
.pdf.webp)
.pdf.webp)
.pdf.webp)
Copyright général des plans / schémas / graphiques: Eric Maria Architectes SA
Textes Critères de Davos
Gouvernance
La gouvernance de ce projet s'est fondé sur trois critères essentiels; partant d'un appel d'offre performanciel, l'assemblage d'une MO professionnelle de la construction, d'un architecte expérimenté en projets de contextes variés et d'une Entreprise Générale à l'écoute du client et des mandataires, ont fondé une gouvernance permettant de réaliser un projet de qualité, dans les coûts et les délais imposés. Les hommes des 3 entités, leur respect mutuel et leur écoute ont permis cette symbiose.
Fonctionnalité
Le programme du projet est fondé sur la modularité par capacité a se transformer de façon simple et durable. Le choix du bois dans sa majorité préfabriqué, accompagne ainsi un besoin d'un environnement confortable, tout en maitrisant des matériaux locaux et réutilisables. l'attachement naturel de l'homme aux références des habitats patrimoniaux confèrent ainsi par ce projet le sentiment d'une ambiance connue dans une écriture architecturale contemporaine.
Environnement
La conception du projet prend en compte dès le départ des notions environnementales. Que se soit la minimisation d'impact des fondations dans le sol, la conservation d'arbres en périphérie, l'usage de matériaux totalement recyclables comme le bois et le métal, concourent a rendre ce projet dans un cycle de vie des bâtiments promis a la pérennité, en restant économe de matériaux. L'application stricte des normes d'isolation et le lien avec le chauffage urbain finalise la note environnementale.
Économie
L'évolution démographique du Canton pousse les gestionnaires de projet à les rendre durables et transformables. Le programme modulaire par sa conception initiale de préfabrication rend ainsi aisé la modification programmatique. Pensé aujourd'hui avec des salles de formation et des laboratoires de recherche, le projet sera transformé en salles académiques dans quelques années sans impact lourd par sa conception totalement tramée en équipements d'éclairage, techniques, et d'ouvertures en façade.
Diversité
Mettre des étudiants dans des espaces de formation nécessite des dilatations spatiales pour fluidifier les échanges. La conception du projet s'articule sur deux axes; la verticalité d'un volume toute hauteur ou l'escalier favorise d'échange; l'horizontalité d'une grande circulation a chaque étage, dans laquelle bancs et casiers poussent au partage et à la sociabilisation pendant les interclasses. Ces espaces généreusement éclairés, habillés de bois transpose le charme et favorise la convivialité
Contexte
Les projets n'ont pas toujours le choix de leur emplacement. L'architecte, pour qui l'œuvre a toujours été attachée a contextualiser ses projets, reprend ici ce que la nature lui donne: une canopé de grands arbres et du vide. En jouant ainsi avec une volumétrie de façade carré ou en double carré, avec un matériau en bois neutralisé en symbiose avec le ciel genevois et la proximité des arbres qui le frôle, il contextualise ainsi le projet par un effacement discret dans ce paysage semi urbain.
Esprit du lieu
Les lieux interfèrent de façon inconsciente sur la psychologie des hommes. L'architecte propose ainsi une réappropriation de principe issus du patrimoine, fondement de l'histoire des Hommes, de celle qui rassure. Construire en bois, sur des volumétries proportionnées crée un affect certain. Le projet propose ainsi dans sa forme simple, des matériaux naturels en bois clairs , une couleur terre de sienne sur les quelques métaux apparents, lui conférant ainsi cet affect d'une appropriation désirée.
Beauté
La Beauté est dans la nature. Tout ce qui nous rapproche d'une nature peu transformée, induit ce sentiment de Beauté. L'architecte propose ainsi une matérialité et des couleurs que l'on retrouve au gré des chemins, des terres brunes, des bois clairs et grisés, qui construise ainsi une sensibilité retrouvé dans une volumétrie naturelle maitrisé. Cette symbiose entre une spatialité simple et des matériaux d'une contextualité à la nature, concoure à la Beauté du projet sans nécessité d'artifice.
Caractéristiques
Lieu
Lancy (GE)
Catégorie d'ouvrage (SIA 102)
Enseignement, formation, recherche
Type de tâche
Nouvelle construction
Type de procédure
Appel d'offre
Coût de construction en CHF (SIA 416)
12'220'000
Surface de plancher en m² (SIA 416)
1'780
Planification
2020 → 2024
Réalisation
2024 → 2025
Année de mise en service
2025
Soumissionnaire(s) | Intervenants
Maître d'ouvrage
Office Cantonal des Bâtiments de Genève
Génie civil
B+S ingénieurs SA
Technique du bâtiment
SRG ingénieurs SA
Architecture d'intérieur
EMA SA
Ingénierie acoustique
BATj SA
Photographie
Hélène Maria Photographe
Construction bois
Lanthman SA
Entreprise générale
Grisoni Zaugg SA