...
Wohngebäude HIAG Kunzareal Windisch

Copyright: Studio Gugger
Das Wohn-und Atelierhaus auf dem Kunzareal steht stellvertretend für die Herausforderung, ehemalige Industrieareale in lebendige Stadtquartiere zu verwandeln.
Der Neubau am früheren Standort des Kesselhauses interpretiert die Körnung der umliegenden Bestandbauten und bewahrt den Charme sowie die Atmosphäre des Areals. Durch das Heranrücken an die bestehenden Strukturen wird ein Quartierplatz in der Verlängerung der Dorfstrasse geschaffen.
Der weitgehend offene, bewusst nicht programmierte Platz ermöglicht eine flexible soziale und räumliche Aneignung durch die Bewohnerschaft. Versiegelte Flächen im Aussenraum sind auf funktional notwendige Bereiche für Erschliessung und Parkierung beschränkt.Ein durchgängiger Mergelbelag bildet einen klimaangepassten Aussenraum mit hoher Wasserdurchlässigkeit. Die robuste Eiche spendet Schatten, verbessert das Mikroklima und bietet Orientierung.
Der architektonische Ausdruck des Neubaus verbindet industrielle Robustheit mit wohnlicher Leichtigkeit. Die farbige Wellfaserzement-Fassade, die klar ablesbare Konstruktion sowie textile Sonnenschutzelemente und gewobene Brüstungen erzeugen ein lebendiges, identitätsstiftendes Fassadenbild.
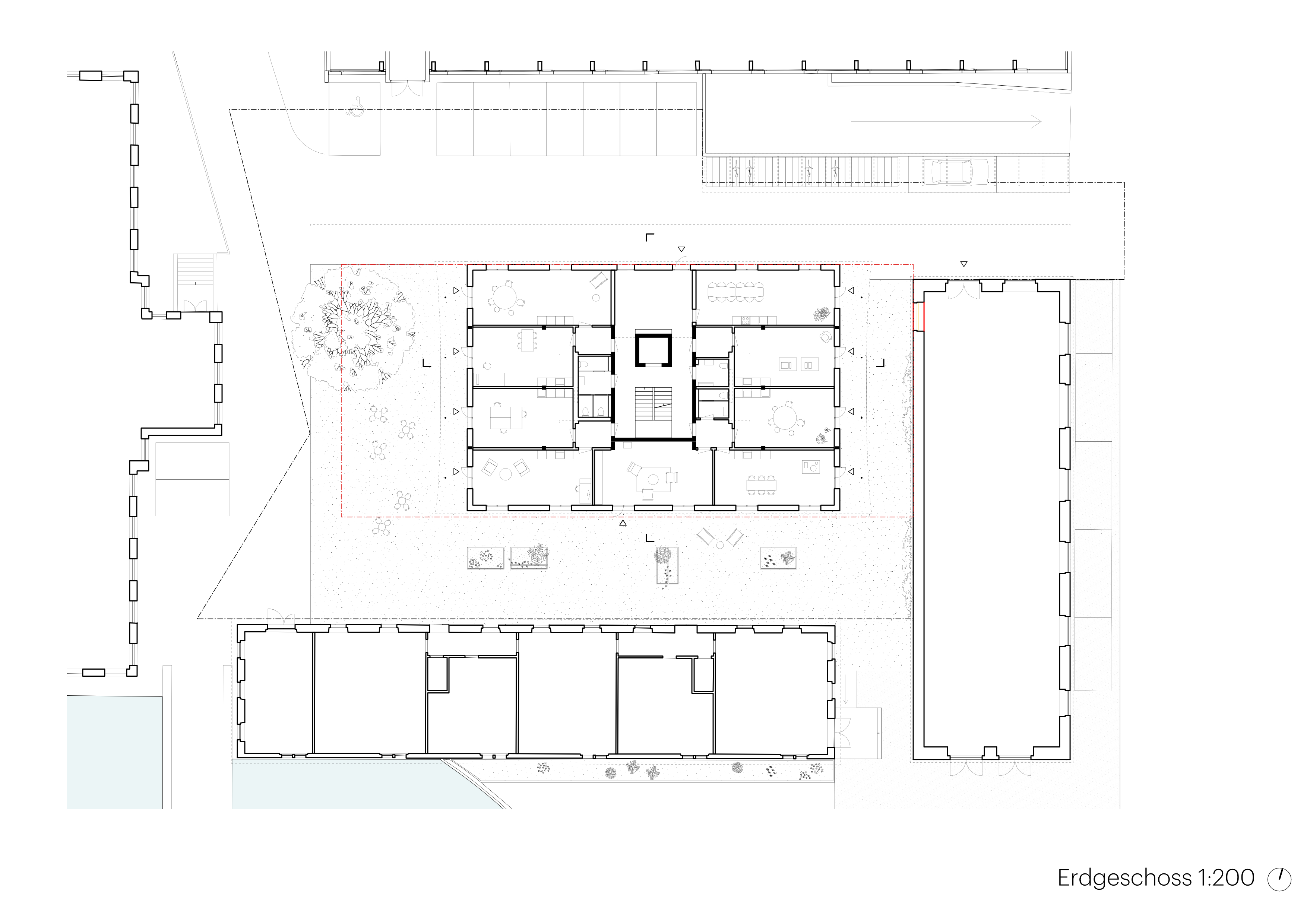
Der kompakte Bau bietet je nach Nutzungsdisposition einen effizienten 4-bzw 6-Bünder um ein zentrales Treppenhaus.Die klare Volumetrie ist Resultat und Garant einer effizienten Wohnorganisation mit hoher Flächeneffizienz und flexibler Grundrissdisposition für unterschiedliche Wohnformen. Das Erdgeschoss bietet Gemeinschafts-und Atelierräume unterschiedlicher Grösse als Ergänzung zu den Wohnflächen.
Das Gebäude ist als ressourcenschonender Holzhybridbau konzipiert.Beton wird nur dort eingesetzt,wo er konstruktiv und bauphysikalisch erforderlich ist. Holz und Holzhybridelemente bilden die oberirdische Tragstruktur und verleihen den Innenräumen Wärme und Behaglichkeit.Das Hybridsystem kombiniert Dauerhaftigkeit,Brand-und Schallschutz mit geringem CO₂-Fussabdruck, hoher Vorfertigung und angenehmem Raumklima.
Der Neubau am früheren Standort des Kesselhauses interpretiert die Körnung der umliegenden Bestandbauten und bewahrt den Charme sowie die Atmosphäre des Areals. Durch das Heranrücken an die bestehenden Strukturen wird ein Quartierplatz in der Verlängerung der Dorfstrasse geschaffen.
Der weitgehend offene, bewusst nicht programmierte Platz ermöglicht eine flexible soziale und räumliche Aneignung durch die Bewohnerschaft. Versiegelte Flächen im Aussenraum sind auf funktional notwendige Bereiche für Erschliessung und Parkierung beschränkt.Ein durchgängiger Mergelbelag bildet einen klimaangepassten Aussenraum mit hoher Wasserdurchlässigkeit. Die robuste Eiche spendet Schatten, verbessert das Mikroklima und bietet Orientierung.
Der architektonische Ausdruck des Neubaus verbindet industrielle Robustheit mit wohnlicher Leichtigkeit. Die farbige Wellfaserzement-Fassade, die klar ablesbare Konstruktion sowie textile Sonnenschutzelemente und gewobene Brüstungen erzeugen ein lebendiges, identitätsstiftendes Fassadenbild.
Der kompakte Bau bietet je nach Nutzungsdisposition einen effizienten 4-bzw 6-Bünder um ein zentrales Treppenhaus.Die klare Volumetrie ist Resultat und Garant einer effizienten Wohnorganisation mit hoher Flächeneffizienz und flexibler Grundrissdisposition für unterschiedliche Wohnformen. Das Erdgeschoss bietet Gemeinschafts-und Atelierräume unterschiedlicher Grösse als Ergänzung zu den Wohnflächen.
Das Gebäude ist als ressourcenschonender Holzhybridbau konzipiert.Beton wird nur dort eingesetzt,wo er konstruktiv und bauphysikalisch erforderlich ist. Holz und Holzhybridelemente bilden die oberirdische Tragstruktur und verleihen den Innenräumen Wärme und Behaglichkeit.Das Hybridsystem kombiniert Dauerhaftigkeit,Brand-und Schallschutz mit geringem CO₂-Fussabdruck, hoher Vorfertigung und angenehmem Raumklima.











Copyright général des photographies: Daisuke Hirabayashi










Copyright général des plans / schémas / graphiques: Studio Gugger
Textes Critères de Davos
Gouvernance
Das Projekt entwickelt das Kunzareal in einem verantwortungsvollen Transformationsprozess weiter. Städtebauliche Klarheit, soziale Offenheit und architektonische Identität entstehen im Zusammenspiel von nachhaltiger Konstruktion, ressourcenschonendem Materialeinsatz und klimaangepasster Freiraumgestaltung und stärken die langfristige Qualität des Quartiers.
Fonctionnalité
Das Gebäude erfüllt die Nutzeranforderungen klar und funktional. Kern und Keller aus Beton sichern Stabilität und Dauerhaftigkeit, Holzelemente schaffen eine wohnliche Atmosphäre. Konstruktionselemente werden materialgerecht verwendet und einfach und additiv gefügt. Die kompakte Struktur ermöglicht eine effiziente Wohnorganisation, ergänzt durch erdgeschossige Gemeinschaftsflächen und Ateliers.
Environnement
Das Gebäude ist ein ressourcenschonender Holzhybridbau. Beton wird nur eingesetzt, wo er konstruktiv und bauphysikalisch erforderlich ist. Die oberirdische Tragstruktur aus Holz(hybrid) reduziert die CO2-Emissionen in der Bauphase deutlich. Der Aussenraum mit wasserdurchlässigem Mergelbelag und minimaler Versiegelung steht für klimaangepasste Freiraumgestaltung.
Économie
Das Holz-Hybridsystem vereint Dauerhaftigkeit, Brandschutz und Schallschutz mit einem kleinen CO₂-Fussabdruck, hoher Vorfertigung und einem angenehmen Raumklima. Die klare Volumetrie und die kompakte Struktur sorgen für hohe Flächeneffizienz, flexible Grundrissdispositionen und eine wirtschaftliche Konstruktion.
Diversité
Der Neubau kombiniert Wohnen, Ateliers und Gemeinschaftsräume mit einem Aussenraum, der «Zwischennutzungscharakter» bietet. Bewohnerinnen und Nutzende können ihn flexibel für gemeinschaftliche Aktivitäten gestalten, wodurch der Neubau das Quartier vernetzt und soziale Interaktion sowie Vielfalt im ehemaligen Industrieareal stärkt.
Contexte
Inmitten geschützter Industriebauten bewahrt das Gebäude Charakter und Atmosphäre des Areals. Sein architektonischer Ausdruck reflektiert das industrielle Erbe und bietet eine zeitgemässe Antwort auf die Herausforderung, aus geschichtsträchtigen, identitätstragenden Industriearealen lebenswerte, aktive Stadtquartiere zu machen.
Esprit du lieu
Die bedachte Platzierung nahe an der Dieselwerkstatt fasst den Giessplatz als zentralen Ankunfts-, Aufenthalts- und Adressraum vor der Elektrowerkstatt neu und stärkt ihn räumlich. Bewohnende und Nutzerinnen können unterschiedliche Grade an Intimität schaffen und den städtischen Raum aktiv gestalten, z.B. zum Spielen, für Märkte oder Zusammenkünfte.
Beauté
Der Neubau verbindet industrielle Robustheit mit wohnlicher Leichtigkeit. Die farbige Wellfaserzement-Fassade, die klar ablesbare Konstruktion der Geschossplatten und Balkone, textile Sonnenschutzelemente und gewobene Brüstungen schaffen ein filigranes, lebendiges Fassadenbild mit hoher Identität.
Caractéristiques
Lieu
Alte Spinnerei 8b, 5210 Windisch, Schweiz
Catégorie d'ouvrage (SIA 102)
Habitat
Type de tâche
Nouvelle construction
Type de procédure
Concours
Type de concours
Concours sur invitation
Coût de construction en CHF (SIA 416)
Surface de plancher en m² (SIA 416)
2'461
Planification
2021 → 2021
Réalisation
2021 → 2024
Année de mise en service
2024
Soumissionnaire(s) | Intervenants
Maître d'ouvrage
Entreprise générale
Architecture du paysage
Berchtold.Lenzin Landschaftsarchitekten
Génie civil
Technique du bâtiment
Conception électrique
Photographie