...
URBANRIDE

Copyright: Nicolas Schopfer
Situé rue de l’Ancien-Port à Genève, qui relie la place de la Navigation aux quais, ce projet consiste en la rénovation et la transformation complète d’une ancienne halle artisanale et de ses garages en un équipement sportif public de proximité, dédié au spinning et à la boxe.
Longtemps abandonné et énergétiquement obsolète, le bâtiment a été entièrement réhabilité afin de s’inscrire durablement dans son quartier, non seulement en tant qu’activité, mais également en tant qu’objet architectural.
Le projet a nécessité une dérogation au RPUS genevois, tout en respectant ses exigences en matière de typologie de programme et d’organisation du plan. Une collaboration étroite avec la Ville de Genève et les différents services de l’État a donc été essentielle.
La mise aux normes énergétiques, l’ajout de nouvelles ouvertures sur rue, la suppression de l’accès arrière et la végétalisation de la toiture ont permis d’améliorer significativement le confort et la qualité de vie des riverains.
Le principal défi résidait dans la création de « boîtes dans la boîte », afin de répondre aux exigences statiques, énergétiques et acoustiques imposées par le programme, l’affectation et le site lui-même.
Longtemps abandonné et énergétiquement obsolète, le bâtiment a été entièrement réhabilité afin de s’inscrire durablement dans son quartier, non seulement en tant qu’activité, mais également en tant qu’objet architectural.
Le projet a nécessité une dérogation au RPUS genevois, tout en respectant ses exigences en matière de typologie de programme et d’organisation du plan. Une collaboration étroite avec la Ville de Genève et les différents services de l’État a donc été essentielle.
La mise aux normes énergétiques, l’ajout de nouvelles ouvertures sur rue, la suppression de l’accès arrière et la végétalisation de la toiture ont permis d’améliorer significativement le confort et la qualité de vie des riverains.
Le principal défi résidait dans la création de « boîtes dans la boîte », afin de répondre aux exigences statiques, énergétiques et acoustiques imposées par le programme, l’affectation et le site lui-même.









Copyright général des photographies: Nicolas Schopfer







Textes Critères de Davos
Gouvernance
Conçu avec une équipe complète d’ingénieurs (génie civil, CVSRE, SI, acoustique) et un maître d’ouvrage soucieux d’apporter une véritable valeur ajoutée à la ville et au quartier, tout en tenant compte des enjeux environnementaux, le projet disposait de conditions idéales pour aboutir à une réalisation cohérente.
Fonctionnalité
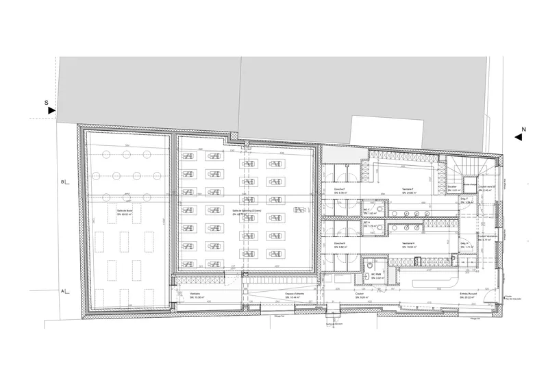
Le programme public se déploie au rez-de-chaussée, tandis que le sous-sol accueille les locaux techniques et les espaces de stockage pour le matériel de nettoyage et d’entretien, nécessaire en raison de la logistique importante liée aux cours dispensés dans le lieu. L’entrée est accueillante et bien visible depuis la rue, en venant du lac. Les vestiaires sont situés à proximité de l’entrée, tandis que les salles se trouvent à l’arrière, au fond du bâtiment.
Environnement
Le projet a bénéficié d’une transformation énergétique complète, comprenant la dépollution de l’ancien garage, la désaffectation et le démantèlement de la citerne, l’assainissement du sous-sol, l’isolation intégrale du bâtiment, l’installation d’une pompe à chaleur double flux et la végétalisation de la toiture.
Économie
Désaffecté pendant longtemps, avec des accès devenus difficiles dans le quartier pour une activité artisanale nécessitant une logistique importante, et avec un coût de travaux conséquent pour permettre une rénovation de qualité, l’enjeu pour le propriétaire était de trouver un programme cohérent. Aujourd’hui, Urbanride, une startup locale, loue les murs à un propriétaire et entrepreneur de la région, et propose un équipement accessible au public. Le modèle économique est fonctionnel.
Diversité
Lieu de rencontre ouvert tous les jours et accessible au public, tant aux membres qu’aux non-membres, il contribue à l’animation du quartier et procure un sentiment de sécurité dans les Pâquis, autrefois à éviter, notamment tôt le matin et en fin de journée, lorsqu’il fait encore sombre.
Contexte
La suppression de l’accès arrière au parking et la végétalisation de la toiture ont permis d’améliorer la qualité de vie des habitants des logements environnants.
Esprit du lieu
Le caractère industriel du bâtiment apporte une dimension « urbaine » au quartier, en parfaite adéquation avec l’équipement dédié à la boxe et au vélo-spinning. Ce programme, qui encourage la pratique sportive et le vélo, incite à prendre soin de soi tout en favorisant la mobilité douce, puisque de nombreux usagers viennent à vélo.
Beauté
Il s’agit d’une rénovation et transformation, où l’ancien se mêle au nouveau : la trame de l’édifice d’origine a été conservée et reste visible sur le bâtiment en ton sur ton. Les nouveaux percements ont été réalisés dans le respect du bâtiment d'origine. C’était notre volonté, ainsi que celle de la Ville et du Maître d’Ouvrage.
Caractéristiques
Lieu
Rue de l'Ancien-Port 11, 1201 Genève
Catégorie d'ouvrage (SIA 102)
Loisirs, sport et détente
Type de tâche
Transformation
Type de procédure
Mandat direct
Coût de construction en CHF (SIA 416)
2.1 MIO HT
Surface de plancher en m² (SIA 416)
530 Rez + Sous-sol
Planification
2021 → 2022
Réalisation
2022 → 2023
Année de mise en service
2023
Soumissionnaire(s) | Intervenants
Directions des travaux
Génie civil
Conception électrique
Ingénierie acoustique
Physique du bâtiment
Géomatique/sondage