...
La Galerie de l'Automobile à Pregny-Chambésy

Copyright: Archilab Gabriele M. Rossi SA
La nouvelle Galerie de l’Automobile est un bâtiment dédié à l’exposition d’une collection de voitures et il abrite également toutes les fonctions permettant la maintenance des véhicules et leur réparation.
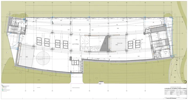
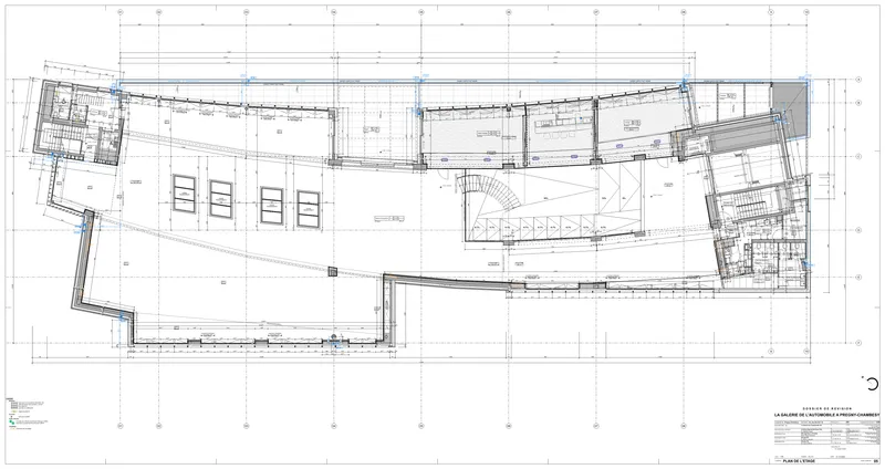
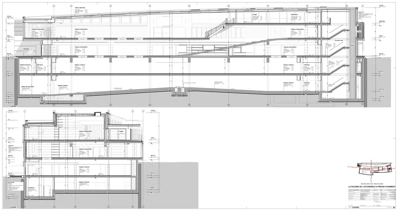
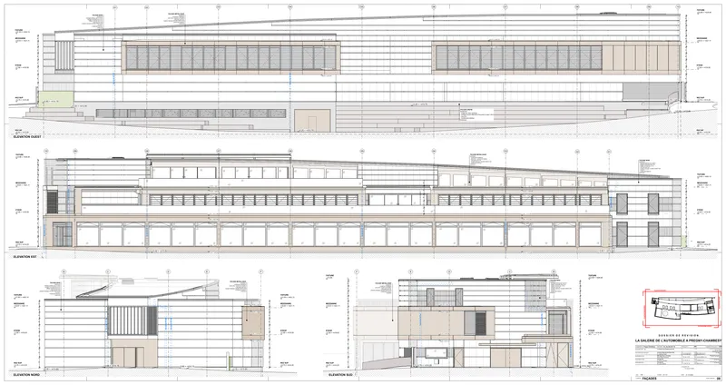
Le programme interne est divisé entre quatre étages plus un demi-niveau. En sous-sol se trouvent la plupart des équipements techniques qui servent principalement à la maintenance des véhicules et du bâtiment, les autres niveaux servent, eux, à la réception des visiteurs et à l’exposition. Le projet a été conçu comme une métaphore des différents lieux qui appartiennent à l’univers de l’automobile: ansi rampes, ponts, passerelles et routes participent à la définition dynamique et architecturale de ce bâtiment. Sur les trois étages de l'exposition des amples portions de dalles vitrées permettent une vue traversante qui renforce l'expérience visuelle.
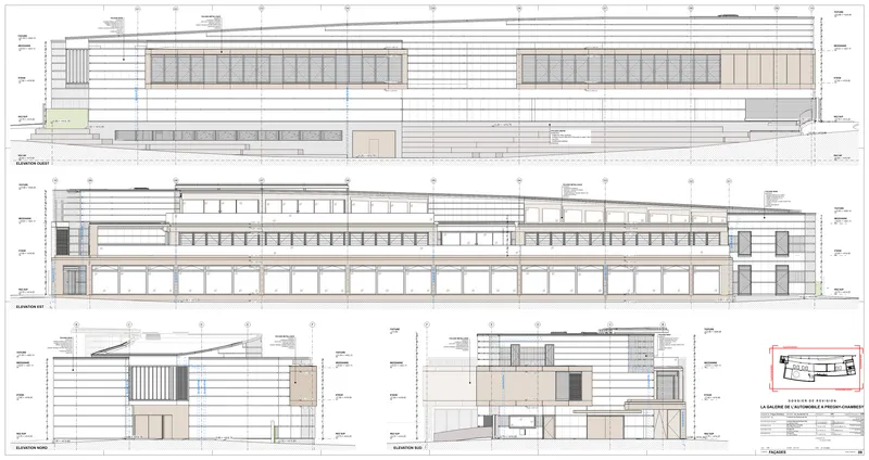
La façade Est s'ouvre sur la forêt environnante grâce à de larges fenêtres, là où la façade Ouest, qui fait face à la route et la zone résidentielle, est plus privative et discrète. Protégée par de jalousies en métal et en bois, elle se décompose en plus petites sections afin de s’adapter à l’échelle des bâtiments de petite densité lui faisant face. De grandes terrasses, qui sont adaptées à l’exposition des voitures, des loggias, principalement sur le côté Est, et l’environnement général du parc, apporte une interaction très riche entre le bâtiment et son environnement.
Une attention très importante a été réservée au choix des installations de confort, aux fins de la réduction des consommations mais aussi de leur perception dans les espaces d'exposition. Les 13 puits de géothermie de 300m de profondeur et une dotation de surfaces de captation solaire bien supérieure aux prescriptions normatives en sont un exemple. Et finalement, juste pour mentionner les aspects plus significatifs, les systèmes de sécurité anti-feu et aussi de contrôle d'accès et anti-intrusion, à la fois complexes mais parfaitement intégrés.
Le programme interne est divisé entre quatre étages plus un demi-niveau. En sous-sol se trouvent la plupart des équipements techniques qui servent principalement à la maintenance des véhicules et du bâtiment, les autres niveaux servent, eux, à la réception des visiteurs et à l’exposition. Le projet a été conçu comme une métaphore des différents lieux qui appartiennent à l’univers de l’automobile: ansi rampes, ponts, passerelles et routes participent à la définition dynamique et architecturale de ce bâtiment. Sur les trois étages de l'exposition des amples portions de dalles vitrées permettent une vue traversante qui renforce l'expérience visuelle.
La façade Est s'ouvre sur la forêt environnante grâce à de larges fenêtres, là où la façade Ouest, qui fait face à la route et la zone résidentielle, est plus privative et discrète. Protégée par de jalousies en métal et en bois, elle se décompose en plus petites sections afin de s’adapter à l’échelle des bâtiments de petite densité lui faisant face. De grandes terrasses, qui sont adaptées à l’exposition des voitures, des loggias, principalement sur le côté Est, et l’environnement général du parc, apporte une interaction très riche entre le bâtiment et son environnement.
Une attention très importante a été réservée au choix des installations de confort, aux fins de la réduction des consommations mais aussi de leur perception dans les espaces d'exposition. Les 13 puits de géothermie de 300m de profondeur et une dotation de surfaces de captation solaire bien supérieure aux prescriptions normatives en sont un exemple. Et finalement, juste pour mentionner les aspects plus significatifs, les systèmes de sécurité anti-feu et aussi de contrôle d'accès et anti-intrusion, à la fois complexes mais parfaitement intégrés.












Copyright général des photographies: Adrien Barakat












Copyright général des plans / schémas / graphiques: Archilab Gabriele M. Rossi SA
Textes Critères de Davos
Gouvernance
La demande du MO se caractérise par une claire définition des objectifs de qualité en matière de culture du bâti. Les standards élevés définis en matière d’énergie, de sécurité anti-feu, de sécurité anti-intrusion et contrôle d'accès ainsi que les attentes accrues en matière de muséographie, éclairage, acoustique et finitions, ont déterminé un cahier de charges très complexe, parfois contradictoire et dans tout cas nécessitant depuis les premières phases du projet d'une équipe multidisciplinaire
Fonctionnalité
L'organisation du projet a primé les espaces d'exposition aux fins d'optimiser l'expérience de la visite et la circulations des visiteurs, des objets exposés et des fonctions de service en relation avec l'exposition. Dans le bâtiment trouvent aussi une place convenable les ateliers de contrôle, de lavage, de réparation des voitures de la collection ainsi que les fonctions d'accueil, comprenant une cuisine, des bars et des salons pour les invités.
Environnement
Bien que le bâtiment sature le volume maximale permis sur la parcelle, son intégration dans le milieu bâti (du côté ville) et naturel (du côté forêt) est optimale. Contribuent au résultat la composition des deux façades principales, l'une déstructurée et l'autre ouverte, ainsi que le choix des matériaux, bois carbonisé vers la ville avec des volumes saillants en métal et verre, et verre sur le côté forêt. Au-delà de la limite bâtie la forêt est préservée dans son état originel.
Économie
Les investissements à long terme tels que géothermie et panneaux solaires, combinés avec des systèmes de gestion optimisée d'énergie pour l'éclairage et le fonctionnement du bâtiment, réduisent les consommations et couts d'exploitations.
Diversité
Aucune information n'a été fournie pour ce critère.
Contexte
Le bâtiment joue un rôle de transition entre la forêt et le quartier résidentiel existant, il reconnaît la valeur de ce dernier, sa petite échelle et sa silencieuse discrétion et ne cherche pas des discontinuités mais une intégration respectueuse sans dissimuler son langage contemporain.
Esprit du lieu
Aucune information n'a été fournie pour ce critère.
Beauté
Aucune information n'a été fournie pour ce critère.
Caractéristiques
Lieu
Pregny-Chambésy
Catégorie d'ouvrage (SIA 102)
Culture et vie sociale
Type de tâche
Nouvelle construction
Type de procédure
Mandat direct
Coût de construction en CHF (SIA 416)
Surface de plancher en m² (SIA 416)
6'356
Planification
2018 → 2024
Réalisation
2020 → 2025
Année de mise en service
2025
Soumissionnaire(s) | Intervenants
Génie civil
Technique du bâtiment
Conception lumière
Construction acier
Construction béton
Ingénierie acoustique