...
Wächselacher, Stans

Copyright: Seiler Linhart Architekten
Dorfraum und Perimeter
Der Perimeter befindet sich nördlich des Dorfzentrums Stans, angrenzend an eine grosse, unbebaute Matte. Auf der Parzelle steht das schutzwürdige Wächselacherhaus von 1908. Als frühes Landhaus verweist es auf die landwirtschaftliche Vergangenheit des Ortes und besitzt einen grosszügigen Aussenraum mit bestehendem Gemüsegarten.
Die Umgebung ist durch heterogene Wohnbebauung geprägt. Ziel des Projekts ist es, trotz Verdichtung die Eigenheit des Grundstücks zu bewahren. Ein einzelner kompakter Neubau im Sinne einer „modernen Hofstatt“ minimiert den Fussabdruck und erhält zusammenhängende Freiflächen. Der dreigeschossige Neubau tritt nicht in Konkurrenz zum Wächselacherhaus, sondern bildet mit diesem und einem Nebengebäude ein Ensemble um einen zentralen Hof.
Baukörper und Freiraum
Der Neubau besitzt eine kompakte Geometrie mit auskragendem Walmdach. Taillierte Fassaden, Holzfassade und zurückspringende Loggien erzeugen eine kleinteilige Wirkung; ein zurückversetzter Betonsockel verstärkt die Leichtigkeit. Französische Fenster und umlaufende Holzlauben bieten hohe Wohnqualität und starken Aussenraumbezug.
Der Freiraum wandelt sich von der offenen Wiese zu einem dörflichen Gartenraum mit klaren Grenzen. Wiesenbänder, Bäume, Hausgärten sowie Sitz- und Spielflächen prägen das Wohnumfeld. Der nordöstliche Hof dient als gemeinsamer Ankunfts- und Begegnungsort.
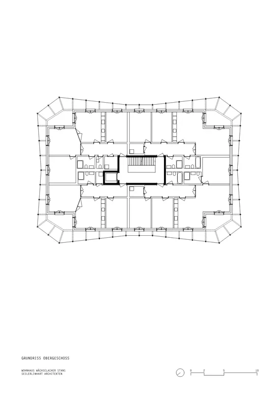
Haus, Wohnungen und Ausdruck
Der Zugang führt in ein zentral belichtetes Treppenhaus mit Lift, das zwölf Wohnungen erschliesst. Flexible Grundrisse ermöglichen unterschiedliche Wohnungstypen. Loggien sorgen für gute Belichtung und Privatsphäre. Ein Gemeinschaftsraum im Wächselacherhaus fördert das soziale Miteinander.
Der Neubau orientiert sich an lokalen Ressourcen und handwerklicher Tradition. Ab dem Betonsockel wird er in Massivholzbauweise erstellt. Unbehandelte Holzfassaden, Holzfenster und natürliche Materialien stehen für Dauerhaftigkeit, Angemessenheit und Robustheit.
Der Perimeter befindet sich nördlich des Dorfzentrums Stans, angrenzend an eine grosse, unbebaute Matte. Auf der Parzelle steht das schutzwürdige Wächselacherhaus von 1908. Als frühes Landhaus verweist es auf die landwirtschaftliche Vergangenheit des Ortes und besitzt einen grosszügigen Aussenraum mit bestehendem Gemüsegarten.
Die Umgebung ist durch heterogene Wohnbebauung geprägt. Ziel des Projekts ist es, trotz Verdichtung die Eigenheit des Grundstücks zu bewahren. Ein einzelner kompakter Neubau im Sinne einer „modernen Hofstatt“ minimiert den Fussabdruck und erhält zusammenhängende Freiflächen. Der dreigeschossige Neubau tritt nicht in Konkurrenz zum Wächselacherhaus, sondern bildet mit diesem und einem Nebengebäude ein Ensemble um einen zentralen Hof.
Baukörper und Freiraum
Der Neubau besitzt eine kompakte Geometrie mit auskragendem Walmdach. Taillierte Fassaden, Holzfassade und zurückspringende Loggien erzeugen eine kleinteilige Wirkung; ein zurückversetzter Betonsockel verstärkt die Leichtigkeit. Französische Fenster und umlaufende Holzlauben bieten hohe Wohnqualität und starken Aussenraumbezug.
Der Freiraum wandelt sich von der offenen Wiese zu einem dörflichen Gartenraum mit klaren Grenzen. Wiesenbänder, Bäume, Hausgärten sowie Sitz- und Spielflächen prägen das Wohnumfeld. Der nordöstliche Hof dient als gemeinsamer Ankunfts- und Begegnungsort.
Haus, Wohnungen und Ausdruck
Der Zugang führt in ein zentral belichtetes Treppenhaus mit Lift, das zwölf Wohnungen erschliesst. Flexible Grundrisse ermöglichen unterschiedliche Wohnungstypen. Loggien sorgen für gute Belichtung und Privatsphäre. Ein Gemeinschaftsraum im Wächselacherhaus fördert das soziale Miteinander.
Der Neubau orientiert sich an lokalen Ressourcen und handwerklicher Tradition. Ab dem Betonsockel wird er in Massivholzbauweise erstellt. Unbehandelte Holzfassaden, Holzfenster und natürliche Materialien stehen für Dauerhaftigkeit, Angemessenheit und Robustheit.
























Textes Critères de Davos
Gouvernance
Die Hofstruktur verbindet Denkmalschutz, Verdichtung und gemeinschaftlichen Freiraum zu einer kohärenten Gesamtstrategie. Das Ensemble aus Altbau, Neubau und Hof macht räumlich ablesbar, wie öffentliche, gemeinschaftliche und private Interessen ausbalanciert werden.
Fonctionnalité
Die klare Erschliessung, flexible Tragstruktur und grosszügige Aussenräume sichern Nutzungsvielfalt, Dauerhaftigkeit und soziale Alltagstauglichkeit. Funktion wird hier nicht technisch, sondern als Beitrag zu Lebensqualität und langfristiger Nutzbarkeit verstanden.
Environnement
Der kompakte Baukörper minimiert die Bodenversiegelung. Massivholzbau ohne Leim oder Chemie, unbehandelte Holzfassade und natürliche Materialien sorgen für geringe Emissionen, hohe Wärmespeicherung und nachhaltige Nutzung lokaler Ressourcen. Nachhaltigkeit wird zur integralen räumlichen und materiellen Qualität.
Économie
Die robuste Typologie, einfache Struktur und langlebige Materialien ermöglichen wirtschaftliche Erstellung und sichern niedrige Lebenszykluskosten. Wert entsteht nicht durch maximale Ausnutzung, sondern durch dauerhafte Nutzbarkeit, geringe Betriebskosten und bauliche Anpassungsfähigkeit.
Diversité
Unterschiedliche Wohnungstypen, gemeinschaftliche Räume und vielfältige Aussenräume ermöglichen soziale, räumliche und generationelle Durchmischung. Die Architektur schafft Offenheit für unterschiedliche Lebensweisen statt normierter Wohnmodelle.
Contexte
Das Projekt antwortet auf Landschaft, Dorfstruktur und das Wächselacherhaus durch Massstab, Hofbildung und Materialwahl. Es fügt sich nicht formal ein, sondern setzt den Ort durch Weiterbauen seiner Strukturen zeitgemäss fort.
Esprit du lieu
Das Ensemble nimmt die dörfliche Hofstruktur, die landwirtschaftliche Vergangenheit und den grosszügigen Gartenraum des Ortes auf. Materialität, Freiraum und Typologie übersetzen die Identität des Wächselacherhauses in eine zeitgemässe Form.
Beauté
Die taillierten Fassaden, Holzlauben, Loggien und das auskragende Walmdach erzeugen eine fein gegliederte, ruhige Erscheinung. Proportion, Materialehrlichkeit und Lichtführung schaffen eine stille, nachhaltige architektonische Qualität. Architektur wird nicht als Bild, sondern als atmosphärisch und kulturell wirksamer Lebensraum erfahrbar.
Caractéristiques
Lieu
Stans
Catégorie d'ouvrage (SIA 102)
Habitat
Type de tâche
Nouvelle construction
Type de procédure
Concours
Type de concours
Concours sélectifs
Coût de construction en CHF (SIA 416)
CHF 7.8 Mio
Surface de plancher en m² (SIA 416)
2'375
Planification
2021 → 2023
Réalisation
2023 → 2025
Année de mise en service
2025
Soumissionnaire(s) | Intervenants
Directions des travaux
Génie civil
Construction bois
Technique du bâtiment
Conception électrique
Architecture du paysage
Photographie