...
Dorfzentrum Untersiggenthal

Copyright: Bild: © Olivier Di Giambattista
Mit dem neuen Dorfzentrum erhält Untersiggenthal erstmals eine räumlich gefasste Mitte. Der Neubau von Mehrzweckhalle und Dreifachsporthalle definiert gemeinsam mit dem bestehenden Gemeindehaus einen neuen Dorfplatz und schafft einen identitätsstiftenden Ort für die gesamte Gemeinde. Wo zuvor kein Zentrum existierte, entsteht heute eine klare Adresse für Verwaltung, Schule, Sport, Kultur und öffentliches Leben.
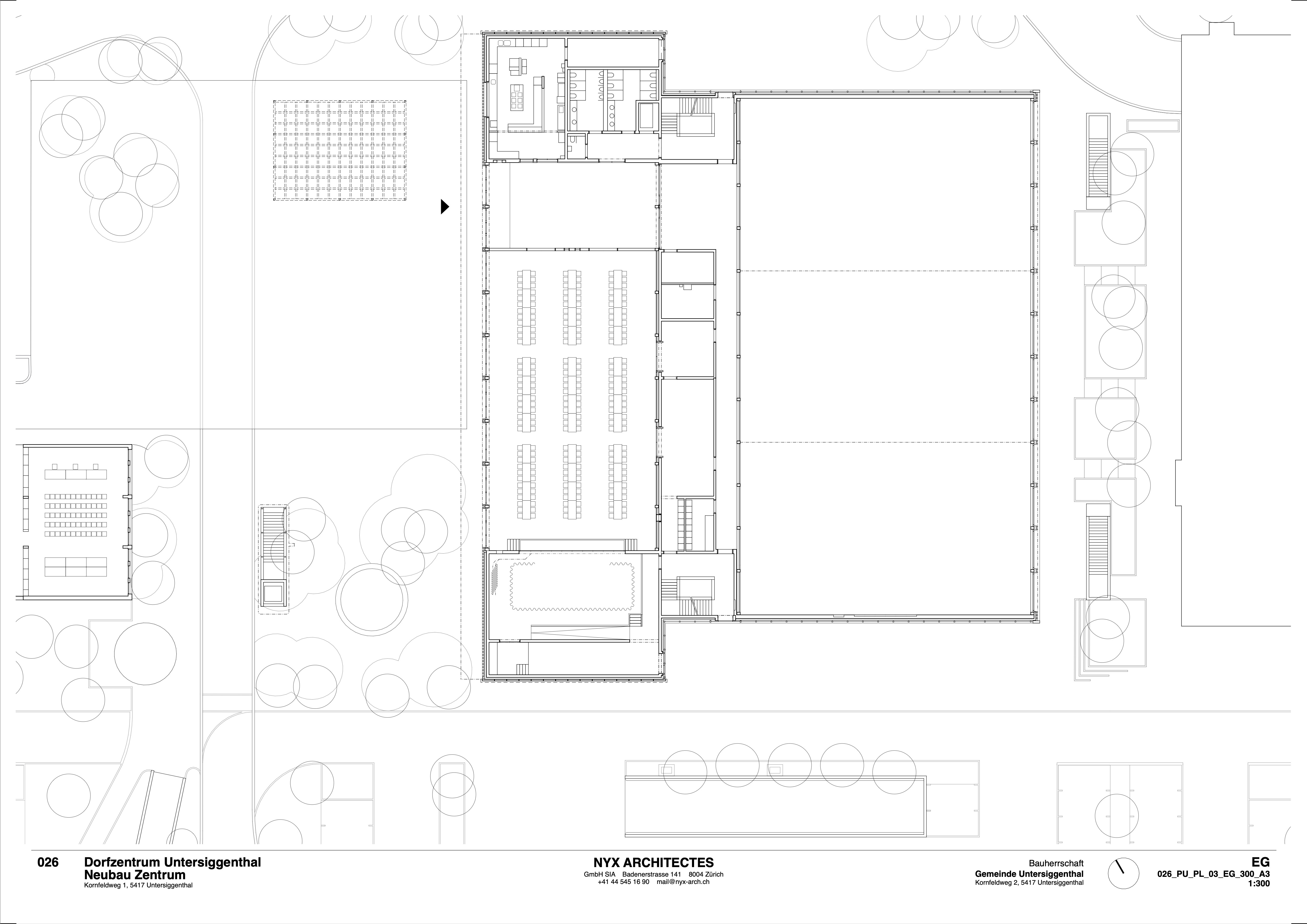
Die städtebauliche Setzung nutzt die Tiefe der Parzelle und folgt der Orientierung der bestehenden Bebauung. Blickbeziehungen von der Kantonsstrasse werden geöffnet, der Dorfplatz wird sichtbar und öffentlich wirksam. Die Mehrzweckhalle tritt als „Schaufenster“ zum Platz in Erscheinung und macht das Innenleben des Hauses Teil des öffentlichen Raums.
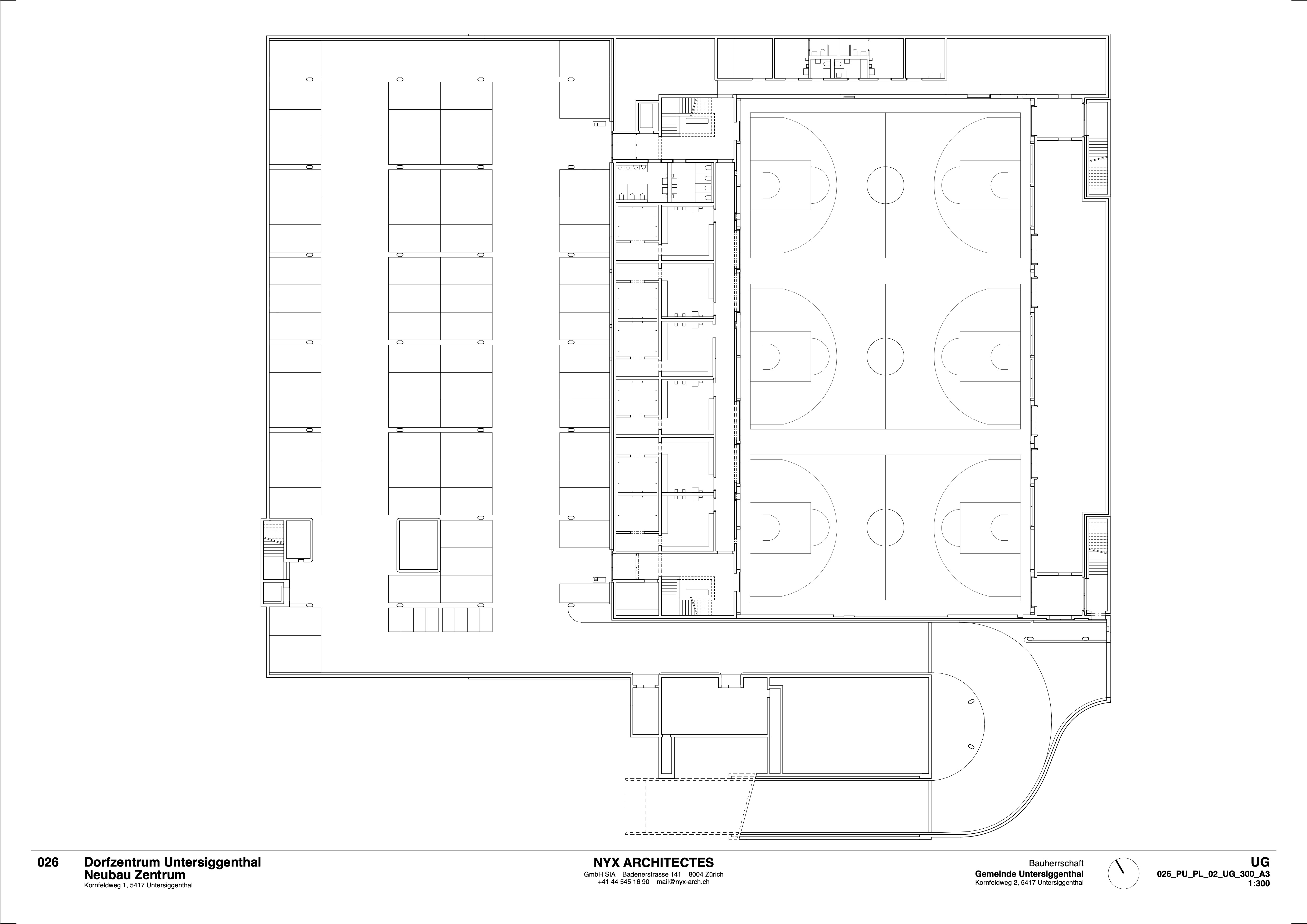
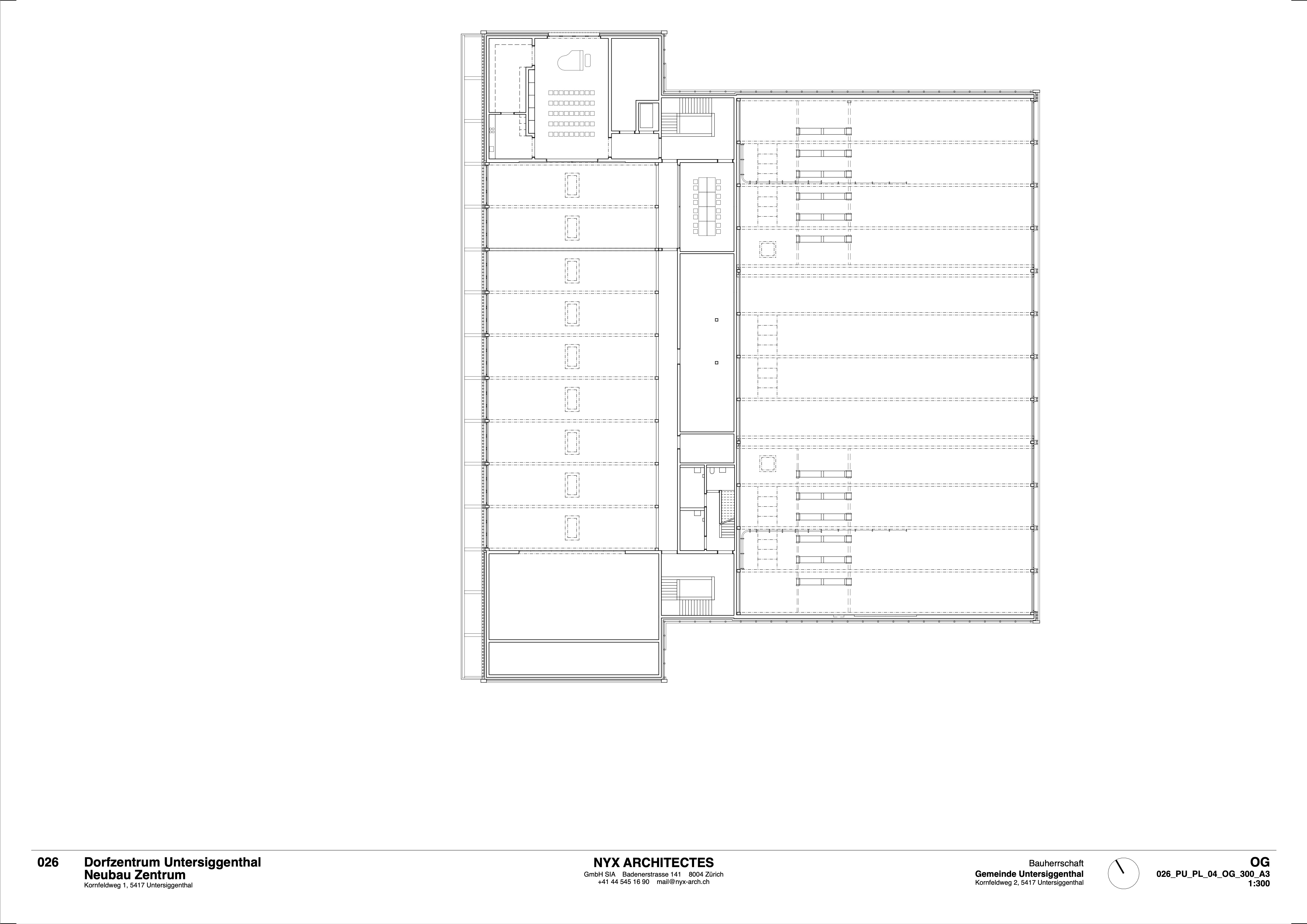
Das Projekt ist als integrales Ganzes konzipiert. Mehrzweckhalle und Dreifachsporthalle sind funktional eigenständig, nutzen jedoch gemeinsame Infrastrukturen. Das zentrale Foyer verbindet Dorfplatz, Mehrzwecksaal und Zuschauergalerie und ermöglicht flexible, gleichzeitige Nutzungen. Klare Zonierungen und kurze Wege gewährleisten Alltagstauglichkeit für Schule, Vereine und Veranstaltungen.
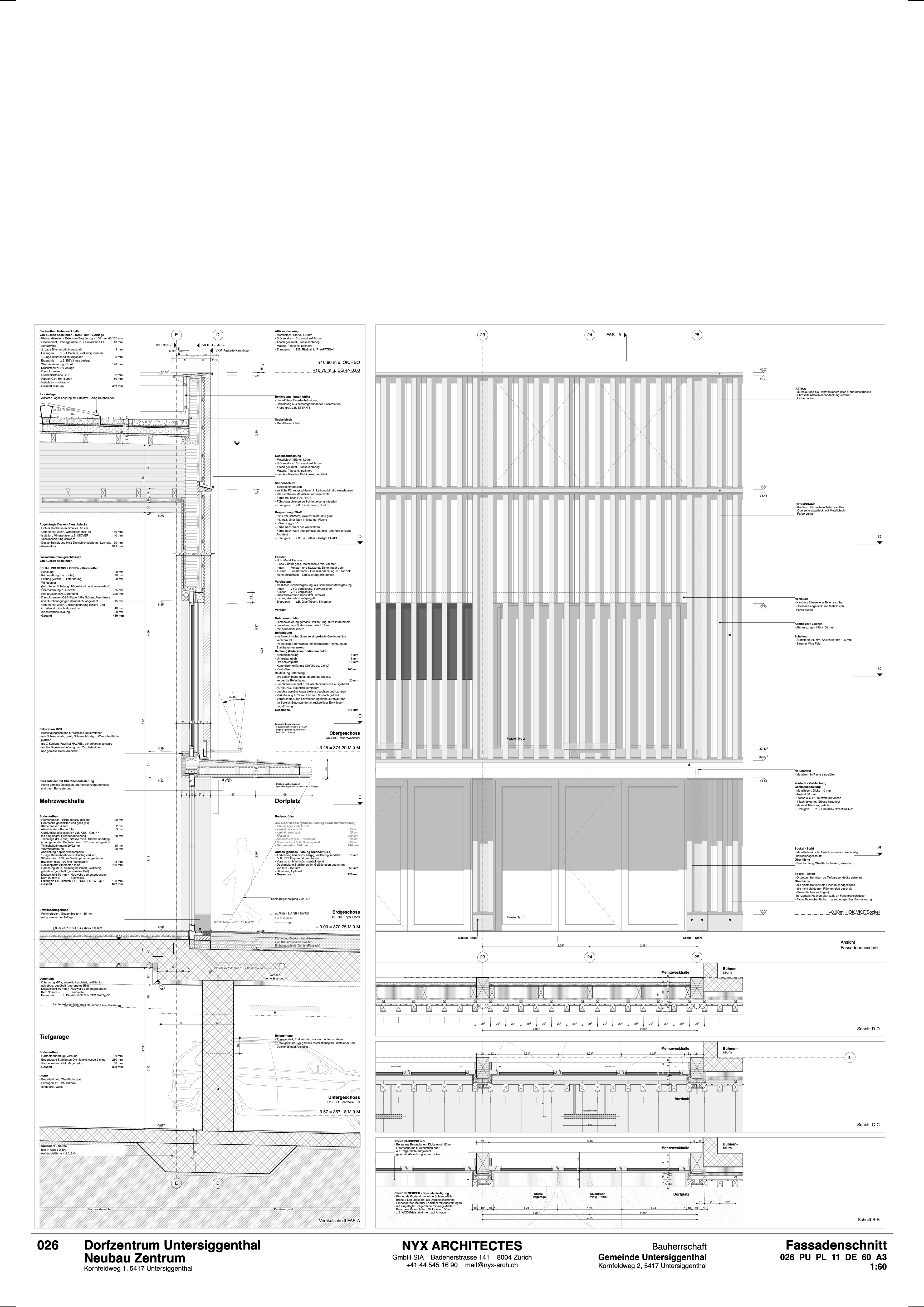
Die Architektur basiert auf einer konstruktiven Klarheit aus Beton und Holz. Beton bildet das robuste, dauerhafte Gehäuse; Holz prägt Tragstruktur, Innenräume und Fassaden. Die Holzfassade war ein expliziter Wunsch des Bauherrn. Tragstruktur, Fassaden und der Holzboden der Mehrzweckhalle stammen aus regionalem Holz, letzterer aus dem Wald von Untersiggenthal. Damit wird lokale Wertschöpfung mit nachhaltiger Bauweise verbunden.
Das Projekt wurde in einem demokratisch breit abgestützten Prozess realisiert. Projektierungs- und Baukredit wurden in Volksabstimmungen beschlossen. Das Dorfzentrum steht exemplarisch für verantwortungsvolle Baukultur, bei der räumliche Qualität, Nachhaltigkeit und gesellschaftliche Verankerung zusammenwirken und einen langlebigen Mehrwert für die Gemeinde schaffen.
Die städtebauliche Setzung nutzt die Tiefe der Parzelle und folgt der Orientierung der bestehenden Bebauung. Blickbeziehungen von der Kantonsstrasse werden geöffnet, der Dorfplatz wird sichtbar und öffentlich wirksam. Die Mehrzweckhalle tritt als „Schaufenster“ zum Platz in Erscheinung und macht das Innenleben des Hauses Teil des öffentlichen Raums.
Das Projekt ist als integrales Ganzes konzipiert. Mehrzweckhalle und Dreifachsporthalle sind funktional eigenständig, nutzen jedoch gemeinsame Infrastrukturen. Das zentrale Foyer verbindet Dorfplatz, Mehrzwecksaal und Zuschauergalerie und ermöglicht flexible, gleichzeitige Nutzungen. Klare Zonierungen und kurze Wege gewährleisten Alltagstauglichkeit für Schule, Vereine und Veranstaltungen.
Die Architektur basiert auf einer konstruktiven Klarheit aus Beton und Holz. Beton bildet das robuste, dauerhafte Gehäuse; Holz prägt Tragstruktur, Innenräume und Fassaden. Die Holzfassade war ein expliziter Wunsch des Bauherrn. Tragstruktur, Fassaden und der Holzboden der Mehrzweckhalle stammen aus regionalem Holz, letzterer aus dem Wald von Untersiggenthal. Damit wird lokale Wertschöpfung mit nachhaltiger Bauweise verbunden.
Das Projekt wurde in einem demokratisch breit abgestützten Prozess realisiert. Projektierungs- und Baukredit wurden in Volksabstimmungen beschlossen. Das Dorfzentrum steht exemplarisch für verantwortungsvolle Baukultur, bei der räumliche Qualität, Nachhaltigkeit und gesellschaftliche Verankerung zusammenwirken und einen langlebigen Mehrwert für die Gemeinde schaffen.












Copyright général des photographies: Bild: © Olivier Di Giambattista












Copyright général des plans / schémas / graphiques: © NYX ARCHITECTES
Textes Critères de Davos
Gouvernance
Das Dorfzentrum Untersiggenthal entstand in einem demokratisch breit abgestützten Prozess. Projektierungs- und Baukredit wurden in Volksabstimmungen beschlossen. Der bewusste Entscheid für Holz – gewünscht vom Bauherrn und aus der Region – zeigt, wie politische Verantwortung, Baukultur und lokale Wertschöpfung in einem öffentlichen Projekt zusammenfinden.
Fonctionnalité
Mehrzweckhalle und Dreifachsporthalle sind funktional eigenständig, nutzen jedoch gemeinsame Infrastrukturen. Das zentrale Foyer verbindet Dorfplatz, Mehrzwecksaal und Zuschauergalerie. Die Holzstruktur prägt die Hallenräume und unterstützt klare Orientierung, gute Akustik und flexible Nutzbarkeit für Sport, Kultur und Veranstaltungen.
Environnement
Holz ist zentrales Thema des Projekts. Die tragende Struktur, die Fassade und der Holzboden der Mehrzweckhalle stammen aus regionaler Herkunft; das Bodenholz kommt aus dem Wald von Untersiggenthal. In Kombination mit kompakter Bauweise, Tageslicht und langlebigen Materialien entsteht ein ressourcenschonender, nachhaltiger Bau über den gesamten Lebenszyklus.
Économie
Der Einsatz von regionalem Holz stärkt lokale Wertschöpfung und kurze Transportwege. Die robuste Konstruktion aus Beton und Holz ermöglicht einen wirtschaftlichen Bau sowie einen langlebigen, wartungsarmen Betrieb. Synergien durch die Zusammenführung der Nutzungen reduzieren Investitions- und Betriebskosten langfristig.
Diversité
Das Dorfzentrum vereint Sport, Kultur, Schule, Vereinsleben und öffentliche Anlässe. Unterschiedliche Raumtypen, flexible Nutzungen und der neue Dorfplatz ermöglichen vielfältige Aktivitäten. Die warme Holzatmosphäre schafft niederschwellige, einladende Räume für alle Generationen und fördert Begegnung und Identifikation.
Contexte
Das Projekt verankert sich räumlich und materiell im Ort. Die Setzung ordnet Gemeindehaus, Schulbauten und Landschaft neu und schafft erstmals eine klare Dorfmitte. Die Verwendung von Holz aus der Region verstärkt die Beziehung zur Umgebung und verleiht dem neuen Zentrum eine ortsspezifische, glaubwürdige Präsenz.
Esprit du lieu
Mit dem neuen Dorfplatz entsteht erstmals ein identitätsstiftendes Zentrum für Untersiggenthal. Die Holzfassade, die sichtbare Holzstruktur und der Boden aus lokalem Waldholz schaffen eine enge Verbindung zwischen Bauwerk, Ort und Bevölkerung. Architektur wird so zum Ausdruck gemeinsamer Werte und lokaler Identität. Für diesen Ansatz wurde das Projekt mit dem Aargauer Wald-Preis 2024 ausgezeichnet.
Beauté
Die Architektur lebt vom Zusammenspiel dreier Elemente: roher Beton als ruhiges Gehäuse, Holz als tragende Struktur und Holzfassade als prägendes äusseres Gesicht. Die differenzierte Fassadengliederung, Materialehrlichkeit und das Spiel von Licht auf Holzoberflächen verleihen dem Gebäude Wärme, Tiefe und zeitlose Präsenz.
Caractéristiques
Lieu
Kornfeldweg 1, 5417 Untersiggenthal
Catégorie d'ouvrage (SIA 102)
Loisirs, sport et détente
Type de tâche
Nouvelle construction
Type de procédure
Concours
Type de concours
Concours sélectifs
Coût de construction en CHF (SIA 416)
35'500'000.- BKP 1-9, exkl. MWST
Surface de plancher en m² (SIA 416)
7'200
Planification
2018 → 2022
Réalisation
2023 → 2023
Année de mise en service
2023
Soumissionnaire(s) | Intervenants
Maître d'ouvrage
Directions des travaux
Architecture du paysage
Génie civil
Construction bois
Technique du bâtiment
Technique du bâtiment
Conception électrique
Conception lumière
Physique du bâtiment
Gestion et planificaiton de la mobilité et des transports
Photographie
Autre
Autre
Autre