...
Wohnhof Colmi

Copyright: WEISSWERT
Im Sinne von „Keeping what’s good” baut das Projekt auf bestehenden Strukturen auf und entwickelt den vormals gewerblich genutzte Hofraum zu einem vielfältigen, durchmischten Stück Quartier weiter. Anstatt Bestehendes zu überschreiben, werden vorhandene Strukturen und Qualitäten weitergedacht und räumlich wie sozial aktiviert. So entstehen auf kleinstem Raum differenzierte Räume zum Wohnen und Arbeiten, ergänzt durch Gemeinschaftsnutzungen und einen biologisch vielfältig gestalteten Hof.
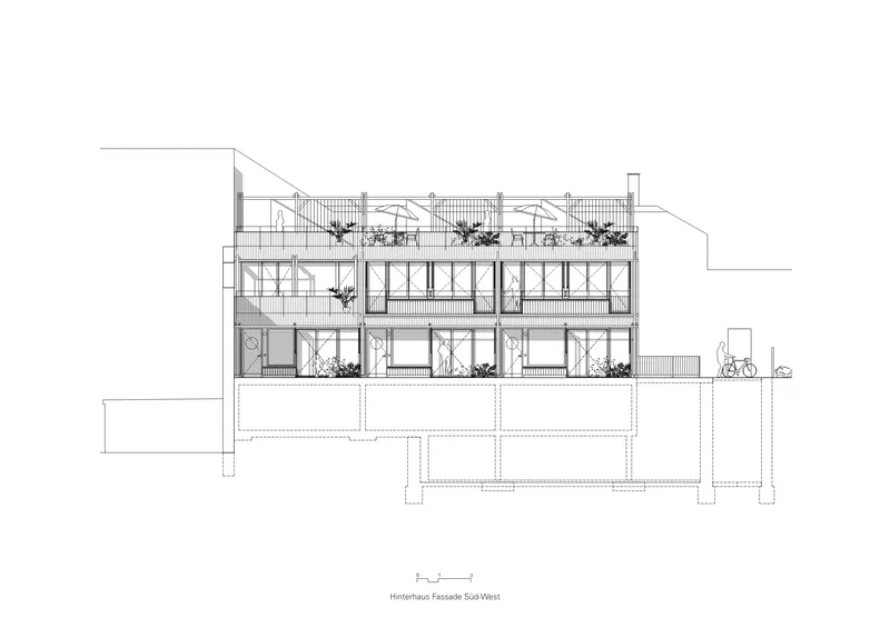
Das sechsgeschossige neue Wohnhaus im Blockrand schafft mit seiner flexiblen Grundrissstruktur viel zusätzliche Wohnfläche bei gleichzeitig hoher architektonischer Qualität. Ergänzend dazu entstanden im Hof entlang der identitätsstiftenden Bruchsteinmauern zusätzliche Holzbauten, die situativ auf den Bestand reagieren. Der ehemalige Weinkeller wurde reaktiviert, von aussen zugänglich gemacht und sinnvoll in das Nutzungskonzept integriert.
Die verschiedenen Wohnungstypen – Geschosswohnungen, Reihenhäuser und Atelierwohnungen – sind bewusst knapp und effizient geschnitten. Trotz der reduzierten und einfachen Bauweise entstehen durch sorgfältige Gestaltung, gezielte Lichtführung und eine präzise Materialisierung hochwertige, atmosphärische Räume. Die rohe Ausdruckskraft von Stein, Holz und Beton prägt den Charakter der Gebäude und wird durch ein differenziertes, auf die einzelnen Häuser abgestimmtes Farbkonzept ergänzt.
Ein multifunktionaler Pavillon, miteinander verbundene Dachterrassen und der geschützte Hofraum bieten den Mieter:innen vielfältige Möglichkeiten für Begegnung, Austausch und gemeinschaftliche Aktivitäten. Diese räumlichen Angebote und die integrierten kleinen gewerblichen Nutzungen fördern das soziale Zusammenleben nachhaltig. Seit dem Bezug der Wohnungen hat sich bereits ein feines Netz nachbarschaftlicher Beziehungen und eine lebendige Kultur des Austauschs unter den Bewohner:innen etabliert – eine Bestätigung dafür, dass die Vielfalt der Räume Gemeinschaft erzeugt.
Das sechsgeschossige neue Wohnhaus im Blockrand schafft mit seiner flexiblen Grundrissstruktur viel zusätzliche Wohnfläche bei gleichzeitig hoher architektonischer Qualität. Ergänzend dazu entstanden im Hof entlang der identitätsstiftenden Bruchsteinmauern zusätzliche Holzbauten, die situativ auf den Bestand reagieren. Der ehemalige Weinkeller wurde reaktiviert, von aussen zugänglich gemacht und sinnvoll in das Nutzungskonzept integriert.
Die verschiedenen Wohnungstypen – Geschosswohnungen, Reihenhäuser und Atelierwohnungen – sind bewusst knapp und effizient geschnitten. Trotz der reduzierten und einfachen Bauweise entstehen durch sorgfältige Gestaltung, gezielte Lichtführung und eine präzise Materialisierung hochwertige, atmosphärische Räume. Die rohe Ausdruckskraft von Stein, Holz und Beton prägt den Charakter der Gebäude und wird durch ein differenziertes, auf die einzelnen Häuser abgestimmtes Farbkonzept ergänzt.
Ein multifunktionaler Pavillon, miteinander verbundene Dachterrassen und der geschützte Hofraum bieten den Mieter:innen vielfältige Möglichkeiten für Begegnung, Austausch und gemeinschaftliche Aktivitäten. Diese räumlichen Angebote und die integrierten kleinen gewerblichen Nutzungen fördern das soziale Zusammenleben nachhaltig. Seit dem Bezug der Wohnungen hat sich bereits ein feines Netz nachbarschaftlicher Beziehungen und eine lebendige Kultur des Austauschs unter den Bewohner:innen etabliert – eine Bestätigung dafür, dass die Vielfalt der Räume Gemeinschaft erzeugt.












Copyright général des photographies: WEISSWERT










Copyright général des plans / schémas / graphiques: Rahbaran Hürzeler
Textes Critères de Davos
Gouvernance
VISION - Die private Bauherrin verfolgte von Anfang an das Ziel, ökologischen, hochwertigen und erschwinglichen Wohnraum zur Miete mitten in der Stadt Basel zu erstellen. Ausgangssituation war eine Blockrandparzelle nahe des Burgfelderplatzes mit einem von kleinen Gebäuden und Werkstätten überbauten Hof. In einem intensiven Dialog entwickelten die Architektinnen gemeinsam mit der Bauherrin eine räumlich differenzierte und nutzungsdurchmischte Verdichtung im Bestand.
Fonctionnalité
ERFINDERGEIST - Die neuen Bauten fügen sich geschickt zwischen die bestehenden Strukturen ein. Auf kleinstem Raum entsteht so eine Vielzahl an flexiblen Wohnungen, ergänzt durch ein Weiternutzen des Bestands. Ein Weinkeller wird zum Sportstudio, ein Pferdestall zum Atelier, und im Raum zur Strasse hat mit der neu angesiedelten Konditorei eine quartierdienliche Nutzung Einzug gehalten. Mitten in der Stadt entstand so zeitgemässer Wohnraum in geschützter Lage, rund um einen üppigen Gartenhof.
Environnement
REGENERATIV ROBUST - Die Neubauten sind als nachhaltige Holz- und Holz-Beton-Hybridbauten konzipiert und verzichten fast gänzlich auf Aushub. Beim Entwurf wurde darauf geachtet, materialgerecht zu konstruieren und möglichst umfassend mit nachwachsenden Materialien wie Holz zu bauen. Deshalb kommt Beton nur dort zum Einsatz, wo er statisch sinnvoll und notwendig ist. Erdsonden versorgen die Bauten im Winter mit Wärme und kühlen die Böden im Sommer, zwei PV Anlagen decken den Bedarf an Strom.
Économie
SUFFIZIENT - Die knapp geschnittenen Grundrisse sind sorgfältig entwickelt und flexibel in der Nutzung. Trotz der bescheidenen Fläche wirken die Wohnungen grosszügig und räumlich abwechslungsreich. Auf wenig Raum entsteht so eine attraktive Dichte.
Der hohe Vorfertigungsgrad des Holzbaus erleichterte den Bauablauf in der beengten städtischen Situation und führt zu schlanken Konstruktionen zugunsten von mehr Nutzfläche.
Der hohe Vorfertigungsgrad des Holzbaus erleichterte den Bauablauf in der beengten städtischen Situation und führt zu schlanken Konstruktionen zugunsten von mehr Nutzfläche.
Diversité
DICHTELUST - Das Projekt verwebt unterschiedliche Wohntypen und kleine Gewerbeeinheiten zu einem vielfältigen Ganzen. Als Vorbild dafür dient die über die Zeit gewachsene Stadt und die daraus resultierende und für städtisches Leben typische Nutzungsüberlagerungen und Dichte auf kleinstem Raum. In diesem Sinne wurden die bestehenden Strukturen weiterentwickelt und mit zusätzlichem Wohnraum verdichtet. Entstanden ist ein durchmischtes Stück Quartier.
Contexte
WEITERBAUEN - Das dichte städtische Ensemble aus Wohnen, Kleingewerbe und Ateliers befindet sich in einem typischen Basler Hinterhof. Die neuen Wohn- und Arbeitsräume sind entlang von bestehenden Hofmauern angeordnet. Sie wurden sowohl durch Umnutzung der bestehenden Strukturen als auch durch ergänzende Neubauten geschaffen. Der gemeinschaftliche Hof, der allen Bewohner:innen gleichermassen zur Verfügung steht und als Treffpunkt dient, bildet die räumliche und soziale Mitte des Projekts.
Esprit du lieu
IDENTITÄT ERHALTEN - Der räumlich gefasste Hofraum ist geprägt von den hohen Brandmauern aus Naturstein. Bestandsbauten und Neubauten ergänzen sich auf selbstverständliche Weise und bilden ein neues Ganzes. Der ökologisch gestaltete Garten bildet die gemeinsame Mitte und den sozialen Treffpunkt. Strassenseitig steht das neue Wohnhaus in Beziehung zu seinen Nachbarn aus der Jahrhundertwende: Grosse stehende Fenster und Klappläden in den Leibungen verweisen auf das nahe Frankreich.
Beauté
ÜBERLAGERUNG - Trotz ihrer kompakten Anordnung sind die Wohnungen von Durchsichten, räumlichem Reichtum und Sichtbezügen geprägt. Durch sorgfältige Detailierung und konstruktive Feinheiten kommen Materialien wie Holz, Stein und Beton in ihrer ganzen Ausdruckskraft zum Tragen. Unterstütz wird diese Reichhaltigkeit durch eine sorgfältig abgestimmte Farbigkeit und Lichtführung. Aus dieser räumlichen Vielfalt und Überlagerung der verschiedenen Zeitschichten entsteht die Schönheit des Projekts.
Caractéristiques
Lieu
Basel
Catégorie d'ouvrage (SIA 102)
Autre
Type de tâche
Autre
Type de procédure
Mandat direct
Coût de construction en CHF (SIA 416)
Surface de plancher en m² (SIA 416)
1'442.5
Planification
2020 → 2022
Réalisation
2022 → 2024
Année de mise en service
2024
Soumissionnaire(s) | Intervenants