...
Stammhaus Blumer Lehmann

Copyright: Jan Thoma / Blumer Lehmann
Stammhaus Blumer Lehmann – Nachhaltige Baukultur durch interdisziplinäre Innovation
Das Stammhaus von Blumer Lehmann in Gossau steht exemplarisch für eine zeitgenössische Baukultur, die architektonische Qualität, konstruktive Innovation und ökologische Verantwortung verbindet. Der von K&L Architekten entworfene Holzbau fungiert als identitätsstiftender Mittelpunkt des Unternehmens und als gebaute Haltung zum nachhaltigen Umgang mit Ressourcen.
Im Zentrum des Gebäudes liegt ein geschossübergreifendes Atrium mit einer frei geformten Treppenskulptur aus gekrümmten Massivholzplatten. Diese entstand in enger interdisziplinärer Zusammenarbeit zwischen Architektur, Holzbauingenieurwesen, digitaler Planung, Forschung und industrieller Fertigung, insbesondere mit dem ICD Institut für Computerbasiertes Entwerfen und Baufertigung der Universität Stuttgart. Das innovative Flächentragwerk aus CLT curved übernimmt tragende Funktionen bei minimaler Materialstärke und demonstriert das strukturelle und gestalterische Potenzial gekrümmter Holzbauteile.
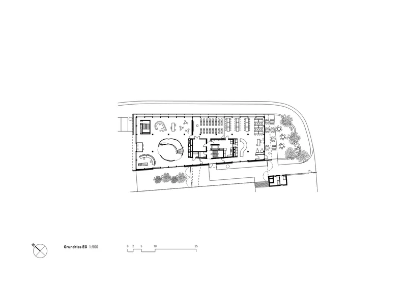
Der fünfgeschossige Holzbau bietet rund 180 Arbeitsplätze und fördert mit Transparenz, Blickbeziehungen und klar strukturierten, flexiblen Grundrissen Austausch und Identifikation. Die räumliche Organisation unterstützt soziale Interaktion und kurze Wege und stärkt damit die soziale Nachhaltigkeit des Gebäudes.
Ökologische Nachhaltigkeit zeigt sich im bewussten Verzicht auf aktive Kühlung und in einem Lowtech-Gebäudekonzept mit natürlicher Lüftung, Nachtauskühlung, geothermisch unterstützten Lehmkühldecken und wirkungsvollem Sonnenschutz durch umlaufende Balkone. Lehmwände verbessern das Raumklima und erhöhen die thermische Speicherfähigkeit.
Konstruktiv ist das Stammhaus als Holz-Skelettbau mit Betonkern ausgeführt. Eine neu entwickelte Holz-Beton-Holz-Verbunddecke reduziert den Betonanteil und kommt ohne Verklebung aus. Die vorgehängte Holzfassade übersetzt betriebliche Prozesse des benachbarten Sägewerks in eine präzise architektoni
Das Stammhaus von Blumer Lehmann in Gossau steht exemplarisch für eine zeitgenössische Baukultur, die architektonische Qualität, konstruktive Innovation und ökologische Verantwortung verbindet. Der von K&L Architekten entworfene Holzbau fungiert als identitätsstiftender Mittelpunkt des Unternehmens und als gebaute Haltung zum nachhaltigen Umgang mit Ressourcen.
Im Zentrum des Gebäudes liegt ein geschossübergreifendes Atrium mit einer frei geformten Treppenskulptur aus gekrümmten Massivholzplatten. Diese entstand in enger interdisziplinärer Zusammenarbeit zwischen Architektur, Holzbauingenieurwesen, digitaler Planung, Forschung und industrieller Fertigung, insbesondere mit dem ICD Institut für Computerbasiertes Entwerfen und Baufertigung der Universität Stuttgart. Das innovative Flächentragwerk aus CLT curved übernimmt tragende Funktionen bei minimaler Materialstärke und demonstriert das strukturelle und gestalterische Potenzial gekrümmter Holzbauteile.
Der fünfgeschossige Holzbau bietet rund 180 Arbeitsplätze und fördert mit Transparenz, Blickbeziehungen und klar strukturierten, flexiblen Grundrissen Austausch und Identifikation. Die räumliche Organisation unterstützt soziale Interaktion und kurze Wege und stärkt damit die soziale Nachhaltigkeit des Gebäudes.
Ökologische Nachhaltigkeit zeigt sich im bewussten Verzicht auf aktive Kühlung und in einem Lowtech-Gebäudekonzept mit natürlicher Lüftung, Nachtauskühlung, geothermisch unterstützten Lehmkühldecken und wirkungsvollem Sonnenschutz durch umlaufende Balkone. Lehmwände verbessern das Raumklima und erhöhen die thermische Speicherfähigkeit.
Konstruktiv ist das Stammhaus als Holz-Skelettbau mit Betonkern ausgeführt. Eine neu entwickelte Holz-Beton-Holz-Verbunddecke reduziert den Betonanteil und kommt ohne Verklebung aus. Die vorgehängte Holzfassade übersetzt betriebliche Prozesse des benachbarten Sägewerks in eine präzise architektoni












Copyright général des photographies: Jan Thoma / Blumer Lehmann












Copyright général des plans / schémas / graphiques: K&L Architekten
Copyright: Blumer Lehmann
Textes Critères de Davos
Gouvernance
Ausgehend von einem ganzheitlichen Ansatz zur Weiterentwicklung des Produktionsstandortes am Erlenhof enstand das Stammhaus in enger Zusammenarbeit zwischen Bauherrschaft, Architektinnen und Architekten, Nutzenden sowie Partnern aus Forschung und Industrie. Langfristige Unternehmenswerte, Innovationsförderung und Wissenstransfer zwischen Praxis und Wissenschaft prägten Planung, Entscheidungsprozesse und Umsetzung.
Fonctionnalité
Das Gebäude vereint Büros, Empfang, Eventräume und Cafeteria. Transparente Grundrisse, flexible Arbeitsplätze und eine zentrale Treppenskulptur fördern Kommunikation, Orientierung und effiziente Abläufe für Mitarbeitende und Besucher. Offene Bereiche, Rückzugsorte, Begegnungszonen bieten den Mitarbeitenden individuelle Arbeitsformen. Die resiliente Struktur und flexible Organisation ermöglicht eine hohe Anpassungsfähigkeit an zukünftige Entwicklungen und Bedürfnisse.
Environnement
Im Erlenhof wurde der Holzkeislauf von Sägerei, Elementbau, CLT-Produktion zum Heizkraftwerk lokal geschlossen. Der Holzbau nutzt regionale Materialien, spart Beton durch innovative Verbunddecken und setzt auf Lowtech-Klimalösungen. Durch seine Ausrichtung, natürliche Lüftung, Nachtauskühlung, Lehm als Klimaspeicher und Geothermie wird der Energiebedarf minimiert. Eine vorgehängte Fassade mit umlaufenden Balkonen und vertikalen Holzlisenen dient als Sonnen- und Blendschutz für die Arbeitsplätze.
Économie
Beim Entwurf des Projektes waren neben den effektiven Baukosten die Verwendung von nachhaltigen Materialien, lokale Produktion in den eigenen Werken und eine zukunftsoffene, langlebige Struktur zentrale Ziele, um das Projekt auch langfristig wirtschaftlich zu machen. Seine effiziente Bauweise, materialoptimierte Konstruktionen und die Entwicklung von CLT curved als marktfähiges Produkt stärken regionale Wertschöpfung, Innovationskraft und die langfristige Wettbewerbsfähigkeit des Unternehmens.
Diversité
Unterschiedliche Raumtypen – offene Büros, Rückzugsräume, Begegnungszonen und Eventflächen – ermöglichen vielfältige Nutzungen. Eine Freiform-Atriumtreppe verbindet alle Geschosse. Die Architektur unterstützt soziale Interaktion, Austausch und unterschiedliche Arbeitsformen. Im neuen Hauptsitz können viele Abteilungen unter einem Dach in einem engen Austausch treten.
Contexte
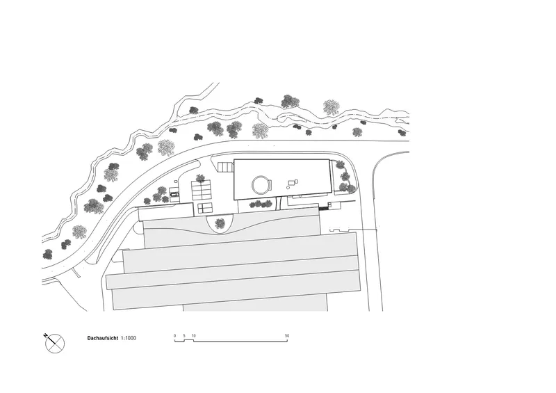
Das Gebäude fügt sich funktional und gestalterisch in den über 150 Jahre von der Sägerei zum Industrieareal gewachsenen Erlenhof ein. Den geschlossenen Werkshallen vorgelagert, zeigt sich die Fassade des Stammhauses mit grosszügigen Fensterbändern bei den Arbeitsplätzen und nimmt mit der Fassadengestaltung der geschlossenen Flächen Bezug auf das Sägewerk mit den gelagerten Holzstapeln. Mit dem Stammhaus bekommt das Areal ein neues Gesicht und Identitätsträger für das Gesamtareal.
Esprit du lieu
Das Stammhaus bildet den Auftakt und Ort der Zusammenkunft am Produktionsstandort Erlenhof – eingebettet in die Landschaft, die von Feldern, Wäldern und dem im Zuge des Projektes ökologisch aufgewerteten Bachlaufs, der ursprünglich das Sägewerk antrieb, geprägt ist. Die skulpturale Treppe als „Baumstamm“ übersetzt die Identität des Holzbauunternehmens in Architektur. Material, Form und Handwerk machen den Geist des Ortes und die Unternehmensphilosophie räumlich und haptisch erlebbar.
Beauté
Die roh belassene Holzfassade mit den vertikalen Lisenen, der vorgelagerten Balkonschicht, den Holzstapelwänden und die grosszügigen Glasflächen erzeugen eine räumliche Tiefe und verbinden den Innen- mit dem Aussenraum auf vielfältige und sinnliche Weise. Die Kombination aus klarer Gebäudestruktur und frei geformtem Atrium schafft hohe ästhetische Qualität. Licht, Holzoberflächen und präzise Details erzeugen eine sinnliche, zeitgemässe Architektur mit starker Ausdruckskraft.
Caractéristiques
Lieu
Gossau, St. Gallen
Catégorie d'ouvrage (SIA 102)
Industrie et artisanat
Type de tâche
Nouvelle construction
Type de procédure
Mandat direct
Coût de construction en CHF (SIA 416)
keine Angaben
Surface de plancher en m² (SIA 416)
5'925 m2
Planification
2021 → 2024
Réalisation
2023 → 2025
Année de mise en service
2025
Soumissionnaire(s) | Intervenants