...
Sainte-Luce 9

Copyright: Hiris sàrl Sacha di Poi
Situé avenue Sainte-Luce, au cœur d’un tissu urbain dense et historiquement constitué de Lausanne, le projet prend place sur l’ancienne parcelle du lieu de culte de la Première Église du Christ, Scientiste, édifié en 1952 par Jean Pierre Cahen. Devenu obsolète, l’édifice a laissé place à un programme mixte associant logements collectifs et espace cultuel, conformément aux conditions de cession de la parcelle.
Le projet développe une architecture sobre et mesurée, attentive à la mémoire du site et à l’identité du quartier. Dans un contexte contraint par la densité bâtie, la proximité des vis-à-vis et une luminosité limitée, la conception offre des logements lumineux et généreux. La façade nord s’ouvre sur une vaste cour intérieure arborée, permettant lumière naturelle et vues dégagées.
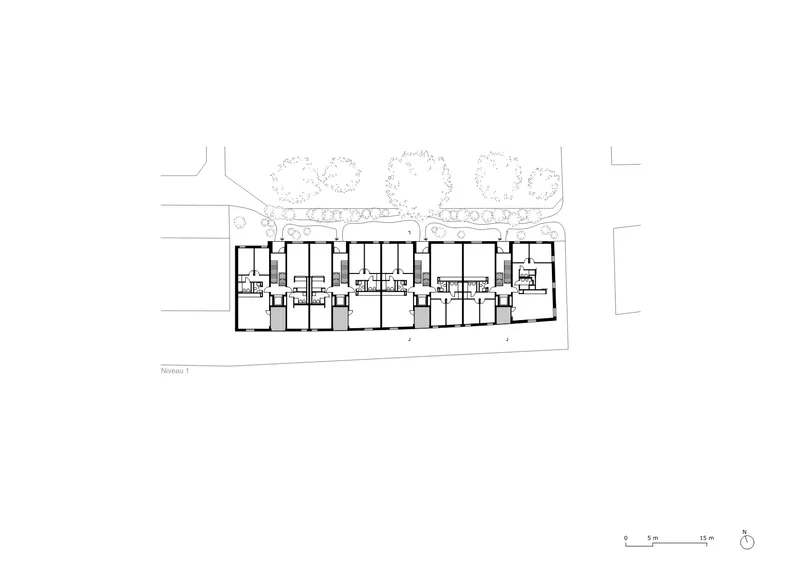
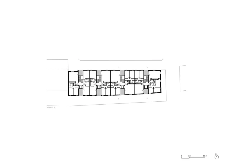
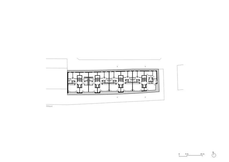
L’immeuble accueille quarante logements, du 2.5 au 4.5 pièces, organisés autour d’un axe nord-sud. La coupe du bâtiment constitue un élément structurant du projet : l’imbrication des niveaux crée des hauteurs différenciées, conférant aux séjours une spatialité accrue tout en optimisant les surfaces. Les loggias prolongent les espaces de vie, améliorent la lumière et limitent les vis-à-vis.
La façade, en bandeaux de béton préfabriqué et crépi minéral, dialogue avec le contexte tout en exprimant la logique typologique du projet. Les choix techniques et environnementaux – toiture végétalisée, panneaux photovoltaïques, pompes à chaleur et ventilation simple flux – traduisent une approche durable.
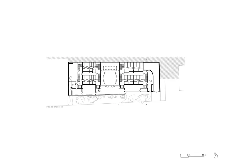
Le rez-de-chaussée accueille le lieu de culte, avec un accès indépendant et une atmosphère modulable, façonnée par la lumière naturelle, des matériaux pérennes et une grande flexibilité d’usage. Le projet propose ainsi une réponse équilibrée entre exigences urbaines, qualité d’habitation et expression architecturale contemporaine.
Le projet développe une architecture sobre et mesurée, attentive à la mémoire du site et à l’identité du quartier. Dans un contexte contraint par la densité bâtie, la proximité des vis-à-vis et une luminosité limitée, la conception offre des logements lumineux et généreux. La façade nord s’ouvre sur une vaste cour intérieure arborée, permettant lumière naturelle et vues dégagées.
L’immeuble accueille quarante logements, du 2.5 au 4.5 pièces, organisés autour d’un axe nord-sud. La coupe du bâtiment constitue un élément structurant du projet : l’imbrication des niveaux crée des hauteurs différenciées, conférant aux séjours une spatialité accrue tout en optimisant les surfaces. Les loggias prolongent les espaces de vie, améliorent la lumière et limitent les vis-à-vis.
La façade, en bandeaux de béton préfabriqué et crépi minéral, dialogue avec le contexte tout en exprimant la logique typologique du projet. Les choix techniques et environnementaux – toiture végétalisée, panneaux photovoltaïques, pompes à chaleur et ventilation simple flux – traduisent une approche durable.
Le rez-de-chaussée accueille le lieu de culte, avec un accès indépendant et une atmosphère modulable, façonnée par la lumière naturelle, des matériaux pérennes et une grande flexibilité d’usage. Le projet propose ainsi une réponse équilibrée entre exigences urbaines, qualité d’habitation et expression architecturale contemporaine.












Copyright général des photographies: Hiris sàrl Sacha di Poi









Copyright général des plans / schémas / graphiques: RDR architectes SA
Textes Critères de Davos
Gouvernance
Le projet résulte d’un dialogue étroit entre maître d’ouvrage, autorités et utilisateurs, intégrant dès les phases initiales les contraintes urbaines et patrimoniales, programmatiques et symboliques liées à la coexistence de logements et d’un lieu de culte. Cette concertation a permis une résolution équilibrée des enjeux fonctionnels, réglementaires et architecturaux.
Fonctionnalité
L’organisation claire des flux, la séparation des accès et la flexibilité des espaces garantissent un fonctionnement optimal des logements et du lieu de culte. La typologie variée, les loggias habitables et les hauteurs différenciées offrent une qualité d’usage durable et adaptable aux besoins contemporains.
Environnement
Le projet privilégie des solutions techniques sobres et efficientes : enveloppe performante, ventilation simple flux, production d’énergie renouvelable et toiture végétalisée. L’optimisation de l’apport de lumière naturelle dans un contexte dense contribue à réduire les besoins énergétiques et à améliorer le confort intérieur.
Économie
La rationalité constructive, le recours à des matériaux durables et une conception optimisée des surfaces permettent un équilibre entre qualité architecturale, coûts de réalisation et exploitation à long terme. Le projet vise une pérennité d’usage et une maîtrise des charges.
Diversité
La mixité programmatique favorise la coexistence de fonctions privées et collectives. La diversité typologique des appartements et la modularité fonctionnelle de l’espace cultuel, répondent à une pluralité d’usages et de publics.
Contexte
L’implantation, la volumétrie et l’expression architecturale s’inscrivent dans la continuité du tissu lausannois existant. Le projet dialogue avec le caractère, les gabarits et les matérialités du quartier tout en affirmant un langag contemporain.
Esprit du lieu
Le projet prolonge l’histoire du site en intégrant un nouveau lieu de culte et en respectant la mémoire de l’édifice existant. La lumière, la matérialité et la sobriété formelle participent à une atmosphère en résonance avec l’esprit du lieu.
Beauté
L’architecture se distingue par une composition mesurée, une lecture claire de la coupe et une attention portée aux détails et aux matériaux. La beauté du projet réside dans l’équilibre entre sobriété formelle, qualité des espaces et cohérence d’ensemble et tend vers une inspiration de ce projet dans la durée et le respect du patrimoine local.
Caractéristiques
Lieu
Av. Sainte-Luce 9
Catégorie d'ouvrage (SIA 102)
Habitat
Type de tâche
Nouvelle construction
Type de procédure
Mandat direct
Coût de construction en CHF (SIA 416)
Surface de plancher en m² (SIA 416)
6'650
Planification
2012 → 2021
Réalisation
2021 → 2024
Année de mise en service
2024
Soumissionnaire(s) | Intervenants
Directions des travaux
Physique du bâtiment
Géologie/géotechnique
Conception électrique
Génie civil
Ingénierie acoustique
Architecture du paysage