...
Transformation d’une ferme protégée à
Grandvillard

Copyright: David BARD
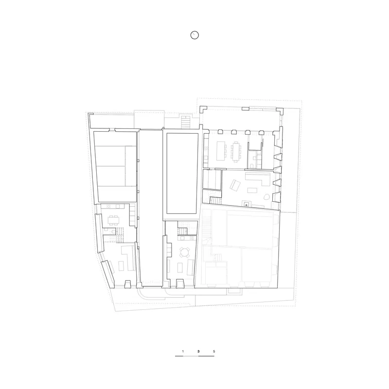
Le projet consiste en la création de trois appartements dans une ferme du XVIIIe siècle. Les fermes fribourgeoises de cette époque abritent sous une toiture unique le logement et le rural, composé de deux écuries encadrant une fourragère, espace traversant destiné à nourrir le bétail. La particularité de cette ferme : un doublement du dispositif en profondeur offrait initialement à l’édifice un second logement.
À la suite d’une extension du rural, cette spécificité avait toutefois disparu. Le projet vise ainsi à restituer la cohérence de l’ensemble en reconstruisant l’habitation disparue et en transformant la surface du rural étendue au-delà du logement démoli en un espace intermédiaire, entre intérieur et extérieur. Les deux autres appartements occupent quant à eux les anciennes écuries, permettant à la fourragère, convertie en espace de distribution, de conserver sa spatialité.
La recomposition du logement disparu s’opère par analogie avec ses principes initiaux, tout en intégrant des éléments contemporains afin d’optimiser la luminosité du plan et ses qualités spatiales. Le mur central, reconstruit en béton, est largement ouvert afin de favoriser la relation entre les espaces du rez-de-chaussée, tandis que la façade nord, réédifiée, voit ses ouvertures agrandies jusqu’au seuil entre mur maçonné percé et grille structurelle.
Les appartements occupant les écuries s’ancrent dans la logique de la façade sud. Bien que rurale, celle-ci intégrait dès l’origine une série de fenêtres au-dessus des ouvertures pour le bétail, lui conférant une dimension domestique. Sa modénature suggère la présence de deux maisonnettes de part et d’autre de la fourragère — lecture que le projet prolonge en adoptant une organisation correspondante.
À la suite d’une extension du rural, cette spécificité avait toutefois disparu. Le projet vise ainsi à restituer la cohérence de l’ensemble en reconstruisant l’habitation disparue et en transformant la surface du rural étendue au-delà du logement démoli en un espace intermédiaire, entre intérieur et extérieur. Les deux autres appartements occupent quant à eux les anciennes écuries, permettant à la fourragère, convertie en espace de distribution, de conserver sa spatialité.
La recomposition du logement disparu s’opère par analogie avec ses principes initiaux, tout en intégrant des éléments contemporains afin d’optimiser la luminosité du plan et ses qualités spatiales. Le mur central, reconstruit en béton, est largement ouvert afin de favoriser la relation entre les espaces du rez-de-chaussée, tandis que la façade nord, réédifiée, voit ses ouvertures agrandies jusqu’au seuil entre mur maçonné percé et grille structurelle.
Les appartements occupant les écuries s’ancrent dans la logique de la façade sud. Bien que rurale, celle-ci intégrait dès l’origine une série de fenêtres au-dessus des ouvertures pour le bétail, lui conférant une dimension domestique. Sa modénature suggère la présence de deux maisonnettes de part et d’autre de la fourragère — lecture que le projet prolonge en adoptant une organisation correspondante.










Copyright général des photographies: David BARD






Copyright général des plans / schémas / graphiques: BARD YERSIN architectes
Textes Critères de Davos
Gouvernance
Aucune information n'a été fournie pour ce critère.
Fonctionnalité
La réorganisation de la ferme répond aux besoins contemporains d’habitat tout en respectant la structure historique. Les logements offrent des espaces lumineux, confortables et adaptables, organisés autour de circulations lisibles. La fourragère conservée comme espace de distribution assure une fonctionnalité claire, tandis que la transformation de la partie nord de l’ancien rural en espace intermédiaire renforce la qualité d’usage et la relation au site.
Environnement
Le projet privilégie la réutilisation du bâti existant afin de limiter l’impact environnemental et la consommation de ressources. La densification mesurée, l’optimisation de l’enveloppe et l’amélioration de l’apport lumineux contribuent à l’efficacité énergétique. Les interventions constructives, sobres et durables, participent à la préservation du paysage culturel et à une gestion responsable du sol.
Économie
La transformation de la ferme constitue un investissement à long terme fondé sur la valorisation du patrimoine existant. La conservation des structures, l’adaptation des volumes et le recours à des matériaux pérennes assurent une économie de moyens et une durabilité accrue. Le projet renforce la valeur du bâti par une affectation adaptée, garantissant une exploitation efficiente et évolutive dans le temps.
Diversité
La création de trois logements aux typologies distinctes favorise une diversité d’usages et de modes d’habiter. L’organisation autour d’espaces partagés, notamment la fourragère, encourage les interactions et une appropriation collective du lieu. Le projet prolonge la lecture domestique existante de la ferme et participe à une culture de l’habitat inclusive et contextualisée.
Contexte
Le projet dialogue étroitement avec le contexte rural et bâti de la ferme fribourgeoise du XVIIIe siècle. Il articule patrimoine et intervention contemporaine par analogie typologique, respect des proportions et continuité matérielle. Les façades, les volumes et l’organisation spatiale prolongent les logiques existantes tout en affirmant une lecture actuelle et cohérente de l’ensemble.
Esprit du lieu
En restituant une organisation disparue et en révélant les qualités spatiales originelles, le projet renforce l’identité du lieu. La mise en valeur de la fourragère, des volumes généreux et des relations entre intérieur et extérieur favorise une expérience sensible et dialectique de l’histoire du lieu. L’intervention permet une appropriation durable du site et renouvelle le lien affectif entre habitants et bâtiment.
Beauté
Aucune information n'a été fournie pour ce critère.
Caractéristiques
Lieu
Route du Banneret 49, 1666 Grandvillard
Catégorie d'ouvrage (SIA 102)
Habitat
Type de tâche
Transformation
Type de procédure
Mandat direct
Coût de construction en CHF (SIA 416)
2’150’000
Surface de plancher en m² (SIA 416)
1’195
Planification
2021 → 2022
Réalisation
2022 → 2024
Année de mise en service
2024
Soumissionnaire(s) | Intervenants
Génie civil
Daniel BARD