...
Fotomuseum Winterthur

Copyright: Lucas Peters
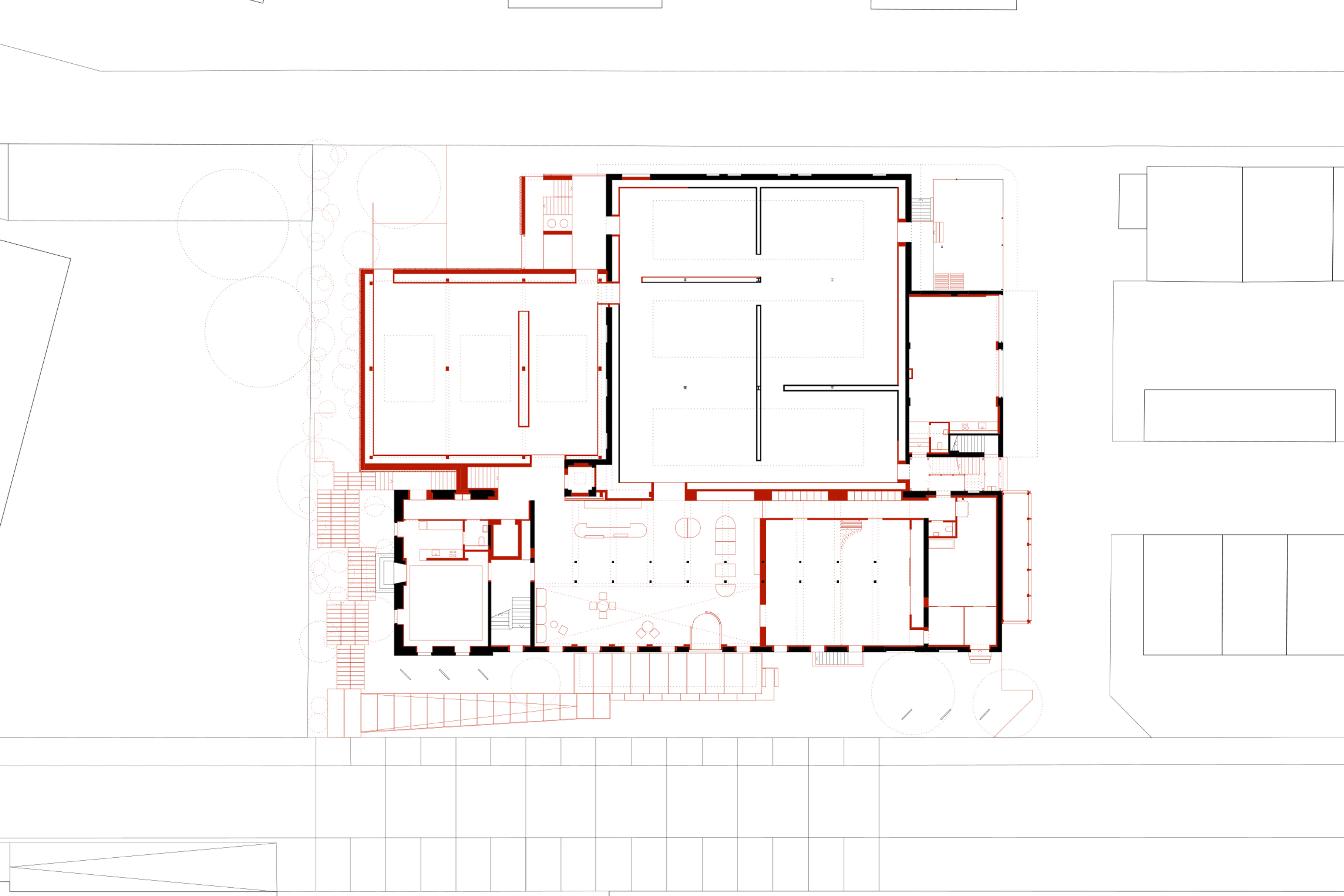
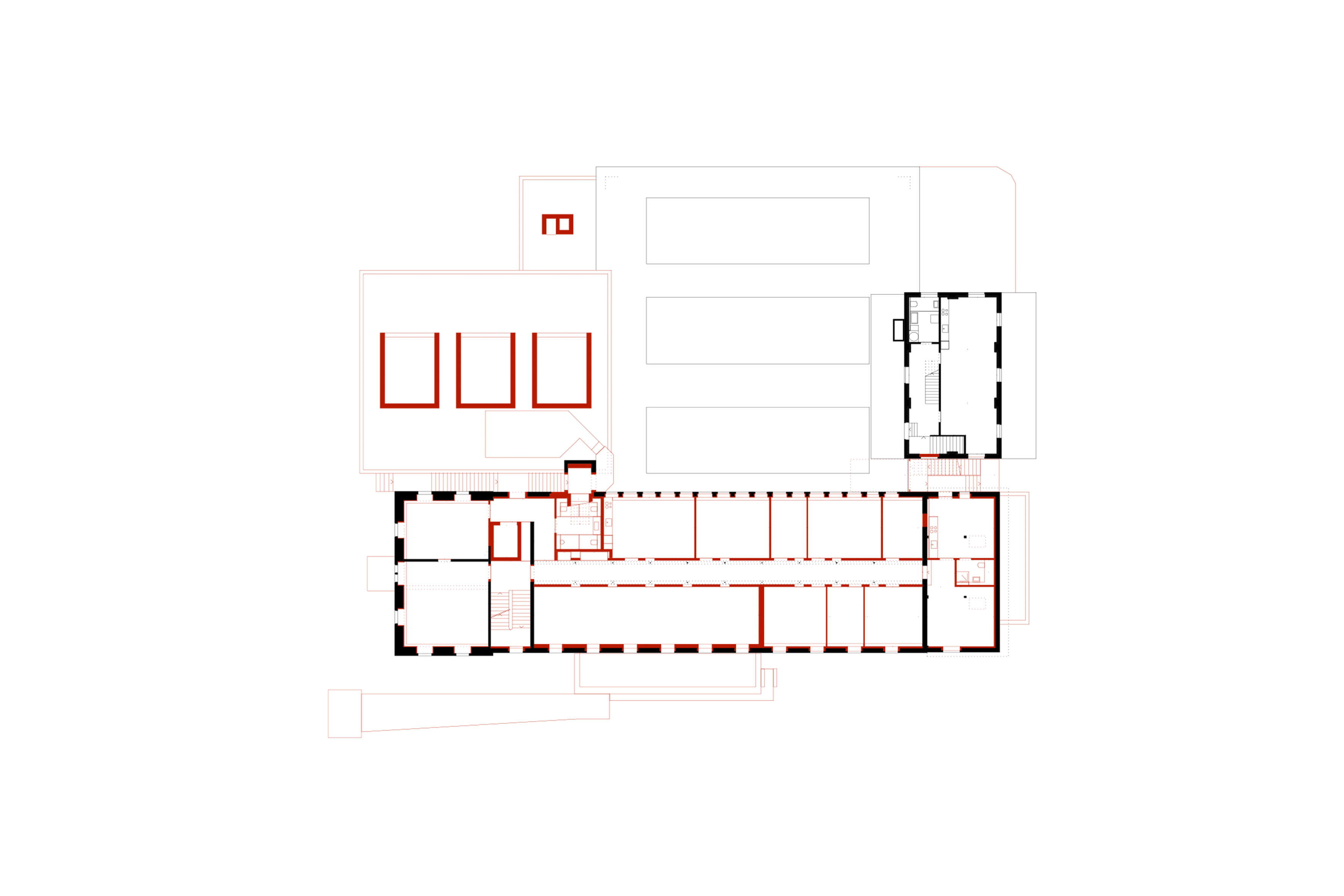
Das Fotomuseum Winterthur besteht aus einem historisch gewachsenen Konglomerat aus vier Gebäudeteilen: Kopfbau, Längsbau, Wohnhaus und Fabriksaal mit Sheddächern. Der Bestand wird den aktuellen Normen und betrieblichen Bedürfnissen entsprechend erneuert. Das Geviert zwischen Grüzen- und Töpferstrasse wird in der nordwestlichen Ecke mit Ausstellungs- und Werkstattflächen ergänzt. Sowohl der Industriecharakter als auch das Kredo des bewussten Einsatzes der Mittel zeichnet die Erneuerung aus. Die Massnahmen sind: mit einem Spiegeldach gedeckter Aussenraum für Erschliessung und Aufenthalt mit klarer Adresse; zweigeschossiges, multifunktionales Foyer als repräsentatives Zentrum mit Treppe ins Obergeschoss und zuschaltbaren Flächen zur Kunstvermittlung; Neustrukturierung der Erschliessung, Büro- und Infrastrukturflächen im Kopf- und Längsbau; strukturelle Anpassungen der Shedhalle; Erweiterung mit Ausstellungsfläche, Werkstatt und Anlieferung; Aktualisierung der Wohnraumflächen im Dachgeschoss; gebäudetechnische Erneuerung inklusive PV-Anlage. Die Erweiterung ist strukturell ein Holzbau mit vier Binderachsen auf einem Recycling-Beton-Sockel. Das adaptive Grundrisslayout ist mit drei Oberlichtaufbauten für natürliches Licht und einem Fenster mit Blick ins Freie komplettiert. Die äussere Erscheinung ist durch die patinierte Trapezblechfassade aus Cortenstahl geprägt, Fassadenelementen des 2022 rückgebauten Winterthurer Schulhauses Wallrüti, einem ikonografischen Zeitzeugen aus den 70er Jahren. Um dem klaren Volumen einen präzisen Schliff zu verleihen, sind Dach- und Sockelabschlüsse durch neue, feuerverzinkte Stahlprofile definiert. Weitere präzis in die Fassadenfläche gesetzte Profile verorten das neue Volumen mit Bezug zum Kontext. Es entsteht ein changierendes Bild zwischen einer als Ausstellungsraum genutzten Industriehalle und einem industriell erscheinenden Ausstellungspavillon, welches das ursprüngliche Ensemble inhaltlich wie äusserlich kohärent vervollständigt.












Copyright général des photographies: Lucas Peters












Copyright général des plans / schémas / graphiques: RWPA
Textes Critères de Davos
Gouvernance
Das Fotomuseum Winterthur hat sich als Kulturinstitution eine faire, nachhaltige und inklusive Weiterentwicklung als Prämisse auferlegt. Sämtliche baulichen Veränderungen basieren auf diesen Grundsätzen, welche sowohl durch die Bauträgerin als auch die Planer während des Planungs- und Realisierungsprozesses befolgt wurden. Klare Bestellung, strukturierte Bearbeitung, transparente Entscheidungsfindung und effiziente Umsetzung ergänzten den formellen Projektablauf.
Fonctionnalité
Das Fotomuseum Winterthur als zeitgenössisches Kulturhaus beinhaltet neben der Kunstausstellung mit Räumen für den künstlerischen und administrativen Betrieb weitere Nutzungen, die für ein Funktionieren notwendig sind. Insbesondere die Kunstvermittlung nimmt einen grossen Anteil am Betrieb ein. Besonders ist, dass auch mehrere Mietwohnungen dazugehören. Grosses Ziel war, die diversen Nutzer logistisch sinnvoll nebeneinander zu führen und mit guten spezifischen Räumen zu bedienen.
Environnement
So wenig wie möglich, so viel wie nötig. Zuweilen abgedroschen, beim Fotomuseum jedoch von Beginn an ein entscheidendes Argument. Was konnte, wurde erhalten, was neu dazu kam, wurde möglichst umweltgerecht konzipiert: die Schraubenfundamente der Eingangsrampe/-terrasse oder der neue Ausstellungsraum als einfache dreischiffige Holzbox oder die sichtbar belassenen, statisch bedingten OSB-Verkleidungen der neuen Holzsystemwände im Bestand oder die ReUse-Fassadenverkleidung der Erweiterung.
Économie
Das ressourcenbewusste Verhalten im ökologischen Sinn geht einher mit der wirtschaftlichen Reduktion aufs Wesentliche, ohne jedoch den substanziellen Mehrwert für die Liegenschaft zu missen. Die vollzogenen Massnahmen bilden die nachhaltige und zukunftsorientierte Basis für einen wirtschaftlichen Betrieb des Fotomuseums: stabile und adaptierbare Struktur, suffiziente und effiziente Technik, robuste und atmosphärische Materialien.
Diversité
Die diversen Nutzungen im Haus erzeugen eine natürliche Vielfalt. Von den vielen Mitarbeiter:innen mit ihren unterschiedlichen Berufen, die den Museumsbetrieb gewährleisten, über die zahlreichen Schüler, welche die Kunstvermittlung besuchen, die Drittnutzer:innen der zu mietenden Räume, die Mieter:innen der Wohnungen, bis hin zu den wichtigsten und die vielfältigsten, den Museumsbesuchern. Die soziale Inklusion als Projektziel wird tagtäglich gelebt.
Contexte
Das Fotomuseum Winterthur besteht aus einem historisch gewachsenen Konglomerat aus vier Gebäudeteilen: Kopfbau, Längsbau, Wohnhaus und Fabriksaal mit Sheddächern. Das Geviert zwischen Grüzen- und Töpferstrasse wird in der nordwestlichen Ecke mit Ausstellungs- und Werkstattflächen in einem einfachen Kubus generisch ergänzt. Die ReUse-Fassade mit dem Trapezblech aus Corten-Stahl ordnet sich mit Farbe und Patina selbstverständlich und kontextuell ins Industrieensemble ein.
Esprit du lieu
Das Fotomuseum prägt seit seiner Entstehung in den 90er-Jahren das Bild an der Grüzenstrasse. Durch die Umbaumassnahmen mit diversifiziertem Vorbereich, Spiegeldach, grosszügiger Rampe und Terrasse sowie dem Entfernen der Brüstungen der Foyerfenster, wird diese Prägung verstärkt. Zusammen mit der Fotostiftung vis-à-vis entsteht ein präsenter stimmiger Ort. Auf der anderen Seite des Ensembles setzt der Erweiterungsbau und die fein kuratierte Bepflanzung einen neuen Akzent im Quartier.
Beauté
Die collageartige Zusammensetzung des Fotomuseum Ensembles vermittelt ein sowohl diversifiziertes als auch ausgewogenes Bild. Die Materialfarbe des Sichtbacksteins wird neu mit dem blauen Anstrich des Kopfbaus kontrastiert. Das rostrot-braun des Erweiterungsbaus und dessen grüne Oberlichter sowie das orangerot der Geländer komplettieren die harmonische Farbigkeit der Gebäudegruppe. Die Farben von aussen reflektieren im Inneren und evozieren eine unaufdringliche Schönheit.
Caractéristiques
Lieu
Winterthur
Catégorie d'ouvrage (SIA 102)
Culture et vie sociale
Type de tâche
Agrandissement
Type de procédure
Concours
Type de concours
Concours sélectifs
Coût de construction en CHF (SIA 416)
17'000'000
Surface de plancher en m² (SIA 416)
3'780
Planification
2020 → 2023
Réalisation
2023 → 2025
Année de mise en service
2025
Soumissionnaire(s) | Intervenants
Architecture du paysage
Génie civil
Maître d'ouvrage
Technique du bâtiment
Conception électrique
Directions des travaux
Signalétique