...
Umnutzung des Gemeindehauses Oekolampad, Basel

Copyright: Wibrandis Stiftung, Basile Bornand
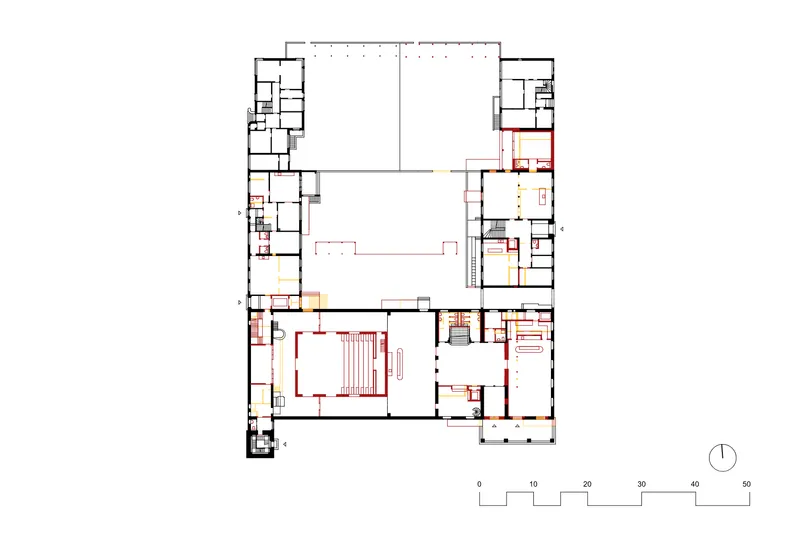
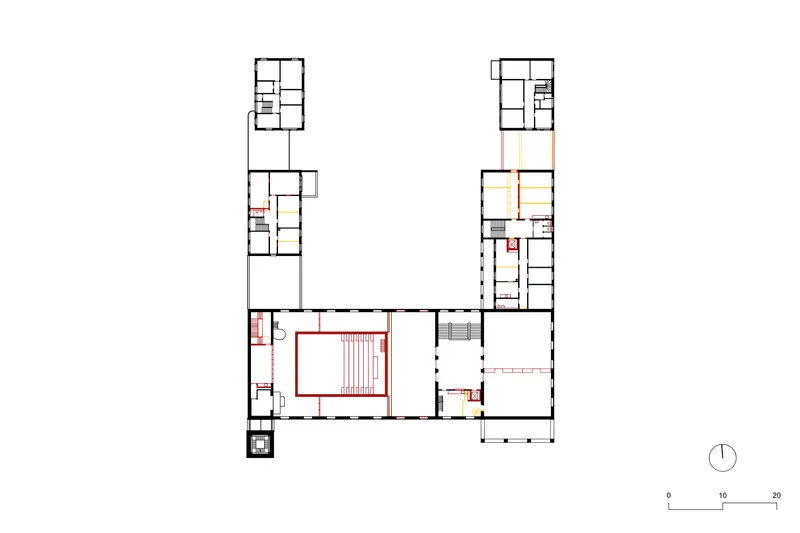
Das Gemeindehaus Oekolampad ist seit seiner Einweihung 1931 ein Ort für die Gemeinschaft und eignet sich auch heute noch für eine gemischte Nutzung durch soziale Einrichtungen und Kulturbetriebe. Der soziale Geist des ehemalig protestantischen Kirchgemeindehauses kann von profanen, gemeinnützigen Institutionen weitergeführt werden ohne grosse Eingriffe in die denkmalgeschützte Bausubstanz. Grundsätzlich folgt das Projekt der Devise, die bestehenden Vorzüge des Bestandes zu nutzen und diese wo nötig behutsam zu ergänzen. Der Einbau einer Theaterbox inmitten des ehemaligen Kirchensaals erlaubt weiterhin die Erfahrbarkeit der alten Raumdimension und schafft gleichzeitig neue, gut proportionierte Räume. Am Allschwilerplatz entsteht ein Stück ‘Fun Palace’, dank einem Raumangebot, das von ganz unterschiedlichen Menschen genutzt werden kann und ein Ort des lebendigen Austauschs wird.












Copyright général des photographies: Wibrandis Stiftung, Basile Bornand












Copyright général des plans / schémas / graphiques: Vécsey*Schmidt Architekt*innen
Copyright: SRF
Textes Critères de Davos
Gouvernance
Die Wibrandis Stiftung, gegründet 2020, folgt dem Leitgedanken «Aller Anfang ist Begegnung». Benannt nach Wibrandis Rosenblatt (1504–1564, Ehefrau des Basler Reformators Johannes Oekolampad), die das reformierte Pfarrhaus als Ort der Begegnung und der Fürsorge neu definiert hat, bezweckt die Stiftung die Förderung gemeinnütziger oder öffentlicher Projekte in Basel-Stadt, der Bereiche Bildung, Karitatives, Kirche, Kultur und Soziales.
Fonctionnalité
Grundsätzlich folgt unser Umbauprojekt der Devise, die bestehenden Vorzüge des Bestandes zu nutzen und diese wo nötig behutsam zu ergänzen. Die Herausforderung war, in das grosse, seit 1996 unter kantonalem Denkmalschutz stehende Gebäudeensemble punktuell adäquate bauliche Eingriffe zu integrieren, die das grosse Ganze nicht stören oder fragmentieren, sondern es vielmehr komplementieren und bereichern und eine zeitgemässe Nutzung mit hoher Funktionalität ermöglichen.
Environnement
Die Gebäudestruktur und grosse Teile des Ausbaus werden beibehalten und sorgen für eine hohe Einsparung grauer Energie. Die Verwendung nachhaltiger Materialien sowie eine Minimierung technisch aufwändiger Lüftungsinstallationen sorgen in der Erstellung und im Betrieb für einen geringen Energiebedarf. Die Entsiegelung von Teilen des Vorplatzes und des Innenhofes und die Schaffung eines die Artenvielfalt fördernden Gartens verankern naturnahe Räume im gesamten Projekt.
Économie
Die Wibrandisstiftung folgt in diesem Projekt dem Grundsatz, dass wirtschaftliche Nachhaltigkeit über kurzfristiges Renditedenken hinaus reicht. Alle Eingriffe wurden im Hinblick auf Dauerhaftigkeit, Reparierbarkeit und geringen Unterhalt ausgeführt. Der wirtschaftliche Mehrwert geht über das eigentliche Projekt hinaus und wirkt auf das ganze Quartier, in dem es zu einem Anziehungs- und Treffpunkt der Bewohner*innen wird.
Diversité
Das Bild des Fun-Palace passt zum umgenutzten Gemeindehaus: Vielfalt zeigt sich an den Institiutionen, die das Ensemble mit Leben füllen und sich auch diverse Räume teilen: Eine Tagesbetreung für Demenzkranke, ein Verlag für ein Magazin für Mädchen, das Vorstadttheater Basel, ein Bistro und der Quartierzentrum des Stadtteils. Foyers, Hof und Garten sorgen für vielfältige Beziehungen. Die konsequente Umsetzung barrierfreier Erschliessung erlaubt auch ganz praktisch eine umfassende Teilhabe.
Contexte
Im genauen Studium des Bestands wurde eine Logik gesucht, die sich für zeitgemässe Eingriffe weiterentwickeln lässt. Dies gilt sowohl für die gut sichtbaren Elemente (wie den Einbau der Theaterbox, den neuen Anbau eines Gartenzimmers, die Umgestaltung der Fassade am Hauptportal) als auch für die subtileren Elemente (Bartresen, neue Leuchten, Signaletik). Der Hof wurde in einen die Sinne anregenden Garten transformiert, der von der Tagesstätte für demenzkranken Menschen intensiv genutzt wird.
Esprit du lieu
Das Projekt fokusiert auf die Qualitäten des vorgefunden Ensembles und steigert sie durch neue Eingriffe: neue Türen und das Bistro im EG öffnen das Gebäude zum Platz mit einer einladenden Geste. Der Hof wird einerseits als Werkstatthof gedeutet und andererseits als grosser Garten gestaltet- ein Verweis auf Vereinbarkeit unterschiedlicher Bedürfnisse. Die Grosszügigkeit der Räume wird durch Farbgebung und Präzisierung von Raumbeziehungen (durch frühere Eingriffe verunklärt) hervorgehoben.
Beauté
Die Schönheit des Gebäudes ist unmittelbar erlebbar: Es ist ganztags geöffnet ohne Konsumzwang. Die baulichen Eingriffe folgen sowohl im Äusseren als auch im Inneren den Gestaltungsprinzipien des Bestandes und interpretieren sie – wo angemessen – neu, im Grossen wie im Kleinen. So wurde direkt aus dem bauzeitlichen Schriftzug über dem Haupteingang ein eigener Schrifttyp namens «Reformator» entwickelt, der in ernster Blattvergoldung und poppigem Pink für die Signaletik zum Einsatz kommt.
Caractéristiques
Lieu
Basel
Catégorie d'ouvrage (SIA 102)
Culture et vie sociale
Type de tâche
Réutilisation
Type de procédure
Concours
Type de concours
Concours sur invitation
Coût de construction en CHF (SIA 416)
21.7 Mio CHF
Surface de plancher en m² (SIA 416)
4'609
Planification
2020 → 2023
Réalisation
2022 → 2024
Année de mise en service
2024
Soumissionnaire(s) | Intervenants
Maître d'ouvrage
Architecture du paysage
Directions des travaux
Génie civil
Technique du bâtiment
Technique du bâtiment
Technique du bâtiment
Conception électrique
Conception lumière
Ingénierie acoustique
Génie et planification de l'environnement
Physique du bâtiment
Géomatique/sondage
Restauration
Signalétique
Conservation du patrimoine
Designer couleur
Gestion des coûts et planification des coûts
Photographie
Autre
Autre
Autre
Autre
Autre