...
Bâtiment communal et Auberge-restaurant Port Gitana, Bellevue

Copyright: atelier ba.le
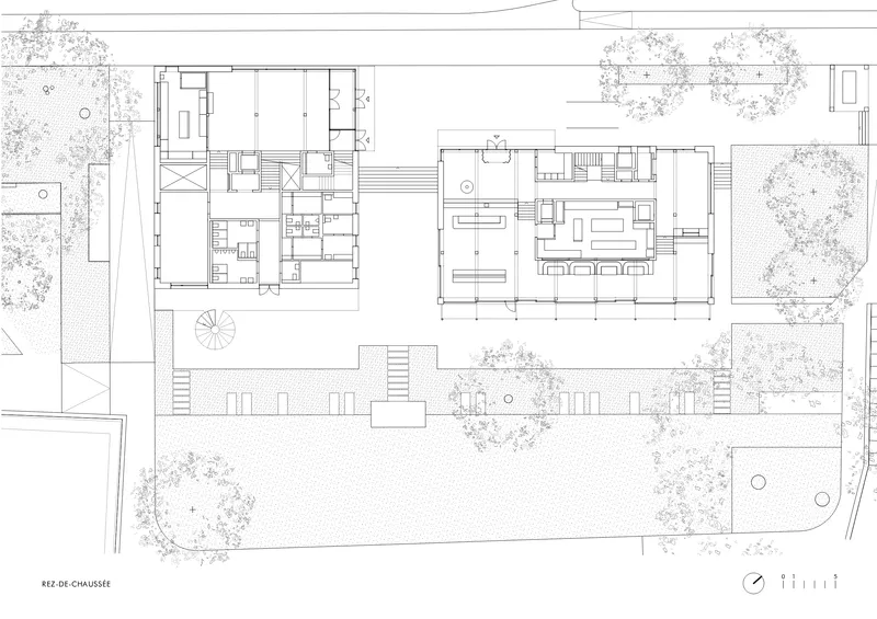
Situé au bord du Léman à Bellevue, Port Gitana se voit doté d’un nouvel ensemble constitué d’un double programme : un bâtiment communal et une auberge-restaurant créant pour la commune un nouveau lieu de vie et de rencontre face au lac et aux Alpes.
Positionnés pour créer un parvis et une nouvelle percée, les deux nouveaux bâtiments relient ainsi plus fortement le centre du village et le parc, encore séparés par la route cantonale.
Entourant ce nouveau passage, deux grands avant-toits triangulaires accueillent les visiteurs et marquent les entrées principales. Les volumes aux géométries simples s’intègrent aux constructions environnantes en reprenant leur échelle et leur colorimétrie. Inspirés des maisons de bain en bois, ils évoquent un univers lacustre et établissent ainsi un nouveau lien entre le village et les rives du lac.
L’auberge et le bâtiment communal s’insèrent dans le parc et épousent sa topographie en répondant par des demi-niveaux aux différentes fonctions du programme : ainsi les utilisateurs bénéficient depuis la grande salle polyvalente d’une vue en surplomb sur le lac et à l’étage inférieur d’espaces dédiés à la plage. Dans l’auberge, les clients du restaurant profitent d’un contact direct avec le parc et sa terrasse.
La structure et le revêtement en bois s’évasant vers le bas offre une légèreté à l’ensemble tandis que la minéralité des socles ancre les volumes dans le parc, reprenant ainsi le thème des murets existants.
Ce sont deux maisons – l’une de face, l’autre de profil – qui se répondent et forment un ensemble. Une nouvelle polarité pour le village de Bellevue et un lieu de rencontre, de loisir et de culture pour l’agglomération genevoise. Leur caractère unique, entre construction villageoise et cabine de bain, confère au lieu une nouvelle identité tout en laissant aussi bien à l’intérieur qu’à l’extérieur toute la place au paysage grandiose qui les entoure.
Positionnés pour créer un parvis et une nouvelle percée, les deux nouveaux bâtiments relient ainsi plus fortement le centre du village et le parc, encore séparés par la route cantonale.
Entourant ce nouveau passage, deux grands avant-toits triangulaires accueillent les visiteurs et marquent les entrées principales. Les volumes aux géométries simples s’intègrent aux constructions environnantes en reprenant leur échelle et leur colorimétrie. Inspirés des maisons de bain en bois, ils évoquent un univers lacustre et établissent ainsi un nouveau lien entre le village et les rives du lac.
L’auberge et le bâtiment communal s’insèrent dans le parc et épousent sa topographie en répondant par des demi-niveaux aux différentes fonctions du programme : ainsi les utilisateurs bénéficient depuis la grande salle polyvalente d’une vue en surplomb sur le lac et à l’étage inférieur d’espaces dédiés à la plage. Dans l’auberge, les clients du restaurant profitent d’un contact direct avec le parc et sa terrasse.
La structure et le revêtement en bois s’évasant vers le bas offre une légèreté à l’ensemble tandis que la minéralité des socles ancre les volumes dans le parc, reprenant ainsi le thème des murets existants.
Ce sont deux maisons – l’une de face, l’autre de profil – qui se répondent et forment un ensemble. Une nouvelle polarité pour le village de Bellevue et un lieu de rencontre, de loisir et de culture pour l’agglomération genevoise. Leur caractère unique, entre construction villageoise et cabine de bain, confère au lieu une nouvelle identité tout en laissant aussi bien à l’intérieur qu’à l’extérieur toute la place au paysage grandiose qui les entoure.












Copyright général des photographies: atelier ba.le












Copyright général des plans / schémas / graphiques: atelier ba.le
Textes Critères de Davos
Gouvernance
La commune de Bellevue a depuis 1977 entamé le rachat des parcelles privées pour les rendre publiques et offrir à tous un accès au lac. En 2019, elle lance un concours ouvert pour la transformation de Port Gitana en nouveau lieu de vie et de détente au bord du lac.
C’est un site important, tant pour la population que pour le visage des rives du Léman et des villages qui le bordent. La coordination avec de nombreux acteurs cantonaux a permis une belle évolution et adaptation du projet au site.
C’est un site important, tant pour la population que pour le visage des rives du Léman et des villages qui le bordent. La coordination avec de nombreux acteurs cantonaux a permis une belle évolution et adaptation du projet au site.
Fonctionnalité
En inversant la position originelle de l’auberge (avant côté Genève) le projet propose la mise en exergue de la fonction institutionnelle de l’ensemble. Se dégage ainsi une place d’accueil pour l’auberge (livraisons, taxi) et pour des évènements ayant lieu dans le bâtiment communal. Le passage entre les bâtiments offre un nouvel accès au parc et renforce le lien entre lac et village. A l’intérieur, les demi-niveaux permettent une utilisation maximale des espaces tout en minimisant les volumes.
Environnement
L’empreinte du projet est minime pour laisser le plus de place au parc et à la végétation.
Les bâtiments sont en structure bois et le béton n’est utilisé qu’au sous-sol et dans les cœurs de circulation. L’ensemble répond au standard THPE.
Grâce à la proximité du lac, la chaleur est produite par une PAC eau/eau du lac, proposant en été le rafraîchissement des locaux. Les surfaces des toitures sont entièrement dédiées à la production d’électricité.
Des nids d’hirondelles ornent les façades pignon.
Les bâtiments sont en structure bois et le béton n’est utilisé qu’au sous-sol et dans les cœurs de circulation. L’ensemble répond au standard THPE.
Grâce à la proximité du lac, la chaleur est produite par une PAC eau/eau du lac, proposant en été le rafraîchissement des locaux. Les surfaces des toitures sont entièrement dédiées à la production d’électricité.
Des nids d’hirondelles ornent les façades pignon.
Économie
Les nouvelles infrastructures remplacent des constructions existantes qui n’offraient pas des fonctions attractives pour les communiers. Le bâtiment communal leur permet de reprendre possession des rives du lac tandis que l’auberge-restaurant offre un rayonnement au-delà de la commune, étant un des seuls établissement « les pieds dans l’eau » des rives du Léman.
L’ensemble est construit principalement en bois et propose des matériaux sobres et résistants, laissant la place à la vue et au paysage
L’ensemble est construit principalement en bois et propose des matériaux sobres et résistants, laissant la place à la vue et au paysage
Diversité
Grâce à ses deux grandes fonctions – une vouée à la communauté, l’autre à l’hébergement et la gastronomie, le projet offre des lieux de rencontre qui se complètent. L’ensemble se mêle au parc et favorise les échanges entre l’intérieur et l’extérieur afin de créer un lieu toujours dynamique : terrasse du restaurant, vestiaires pour la plage, volée d’escalier centrale du nouveau passage comme espace de rencontre, balcon de la grande salle polyvalente relié au parc par l’escalier en colimaçon, etc.
Contexte
Le centre de Bellevue est scindé par la route cantonale mais un cœur de village subsiste et requiert le plus grand soin. Le nouvel ensemble s’insère dans ce contexte villageois malgré l’attente d’un programme dense : volumétries simples et modestes, toitures à deux pans, façades pleines, de couleur claire, avec des menuiseries de contraste colorées. Et côté lac le balcon filant des chambres d’hôtel s’inspire des constructions filigranes en métal des villas avoisinantes de la fin du 19ème siècle.
Esprit du lieu
Réunir l’ambiance du cœur de village et celle de la baignade est au centre du projet. Tout en respectant le contexte environnant, les nouveaux bâtiments proposent une colorimétrie et des matériaux qui rappellent les maisons de bain se trouvant au bord des lacs et des rivières suisses : un bardage vertical recouvert d’une peinture couvrante, des fenêtres bleu-vert évoquant l’eau du lac les jours d’été et à l’intérieur du bois clair. L’univers lacustre pénètre ainsi dans Bellevue et vice-versa.
Beauté
Le site est empreint d’une beauté naturelle : le bord du lac et sa couleur turquoise, la vue sur le Mont-Blanc en arrière-plan, les platanes majestueux du parc. Mais il comporte aussi son lot de complexités : la proximité de la route, le tissu villageois scindé en deux par cette route, la présence de nombreuses et petites constructions dans le parc. L’ensemble apporte des réponses sobres aux problèmes actuels et propose un nouveau langage afin de reconnecter le village aux rives du lac.
Caractéristiques
Lieu
Route de Lausanne 316-318, 1293 Bellevue
Catégorie d'ouvrage (SIA 102)
Loisirs, sport et détente
Type de tâche
Nouvelle construction
Type de procédure
Concours
Type de concours
Concours ouvert
Coût de construction en CHF (SIA 416)
BKP 1-9: 24'9 Mio.
Surface de plancher en m² (SIA 416)
3'100
Planification
2019 → 2025
Réalisation
2022 → 2025
Année de mise en service
2025
Soumissionnaire(s) | Intervenants
Maître d'ouvrage
Directions des travaux
Génie civil
Génie civil
Architecture du paysage
Architecture d'intérieur
Technique du bâtiment
Conception électrique
Technique du bâtiment
Ingénierie acoustique
Physique du bâtiment
Géologie/géotechnique
Géomatique/sondage
Signalétique