...
Hôtâ Hôtel St-Imier

Copyright: ©GINAA architectes Sàrl
Né de la volonté de renforcer l’offre hôtelière du vallon, le concept Hôtâ Hôtel s’inscrit dans le fort potentiel touristique de St-Imier, au cœur du Parc Chasseral. Adapté à cette petite ville, il propose une grande diversité d’hébergements de différents standings. L’ensemble est orienté vers un tourisme plus écologique, local et authentique.
Le projet architectural s’est développé dans le cadre d’une procédure qualifiée afin de garantir une intégration harmonieuse. Reconnue d’importance nationale dans l’Inventaire des sites construits de Suisse (ISOS), St-Imier est un témoin unique et préservé de l’urbanisme horloger du XIXe siècle qui se caractérise par une mixité de bâtiments d’habitation et de manufactures horlogères, ainsi qu’une architecture compacte et répétitive.
Conscient de la valeur de ce patrimoine, le projet Hôtâ Hôtel s’insère délicatement en bordure du cœur historique de la ville. L’architecture proposée souligne le patrimoine historique de la ville tout en le réinterprétant. Sa volumétrie simple rappelle les bâtiments d’habitation des ouvriers horlogers, tandis que l’expression des façades s’inspire des ateliers d’horlogerie.
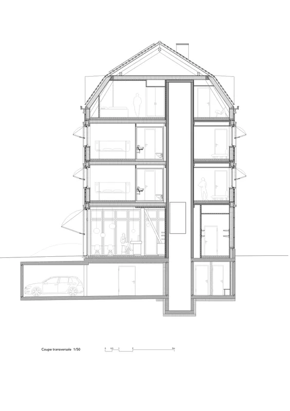
Le bâtiment de quatre étages est construit avec des éléments préfabriqués en bois, stabilisés par le noyau de la cage d'escalier. Les unités de salle de bain ont également été préfabriquées. La technique se compose d’un chauffage à pellets en sous-sol. Les monoblocs de ventilation sont discrètement installés dans les combles. Une surface de 105m² de panneaux photovoltaïques complète ces installations.
Implanté dans un parc public existant, le projet développe de nouveaux cheminements piétons reliant les principaux lieus de la ville, notamment la gare et la salle de spectacle, à travers le parc de l’hôtel. Cette promenade, ponctuée d’arbres « marqueurs » équipés d’assises, invite au délassement et à la rencontre, tandis que le café de l’hôtel contribue à stimuler ce nouvel espace public pour St-Imier.
Le projet architectural s’est développé dans le cadre d’une procédure qualifiée afin de garantir une intégration harmonieuse. Reconnue d’importance nationale dans l’Inventaire des sites construits de Suisse (ISOS), St-Imier est un témoin unique et préservé de l’urbanisme horloger du XIXe siècle qui se caractérise par une mixité de bâtiments d’habitation et de manufactures horlogères, ainsi qu’une architecture compacte et répétitive.
Conscient de la valeur de ce patrimoine, le projet Hôtâ Hôtel s’insère délicatement en bordure du cœur historique de la ville. L’architecture proposée souligne le patrimoine historique de la ville tout en le réinterprétant. Sa volumétrie simple rappelle les bâtiments d’habitation des ouvriers horlogers, tandis que l’expression des façades s’inspire des ateliers d’horlogerie.
Le bâtiment de quatre étages est construit avec des éléments préfabriqués en bois, stabilisés par le noyau de la cage d'escalier. Les unités de salle de bain ont également été préfabriquées. La technique se compose d’un chauffage à pellets en sous-sol. Les monoblocs de ventilation sont discrètement installés dans les combles. Une surface de 105m² de panneaux photovoltaïques complète ces installations.
Implanté dans un parc public existant, le projet développe de nouveaux cheminements piétons reliant les principaux lieus de la ville, notamment la gare et la salle de spectacle, à travers le parc de l’hôtel. Cette promenade, ponctuée d’arbres « marqueurs » équipés d’assises, invite au délassement et à la rencontre, tandis que le café de l’hôtel contribue à stimuler ce nouvel espace public pour St-Imier.












Copyright général des photographies: ©GINAA architectes Sàrl












Copyright général des plans / schémas / graphiques: ©GINAA architectes Sàrl
Textes Critères de Davos
Gouvernance
L’intervention, située en bordure d’un site ISOS, a été conduite dans le cadre d’une procédure qualifiée garantissant une gouvernance orientée vers la qualité du projet. Le processus a mobilisé des représentants communaux, des architectes membres du Patrimoine bernois et de la CPS, ainsi qu’un architecte paysagiste. Quatre ateliers ont favorisé un dialogue interdisciplinaire continu, assurant une prise de décision partagée et une intégration cohérente du projet dans son contexte.
Fonctionnalité
Le projet répond au besoin d’une offre hôtelière adaptée aux besoins touristiques et économiques du Vallon de Saint-Imier. Le rez-de-chaussée ouvert organise de manière lisible les flux piétons entre la gare et le parc, tandis que les niveaux supérieurs garantissent des espaces de séjour calmes et confortables. La préfabrication bois permet une construction rationnelle et durable. L’ensemble du dispositif assure une accessibilité sûre et cohérente pour l’ensemble des usagers.
Environnement
Le projet s’insère dans un parc public existant et vise à limiter l’emprise bâtie, garantissant un maximum de surfaces végétales et perméables. La requalification du parc renforce la biodiversité par une variété de plantations adaptées au site. La proximité de la gare favorise les déplacements en transports publics, tandis que la mobilité douce est renforcée par l’ajout d’un nouveau passage. La compacité du volume et le recours à une préfabrication bois permettent de limiter l’impact du projet.
Économie
Le projet repose sur un dimensionnement maîtrisé, au plus proche des besoins réels du Vallon de Saint-Imier, évitant toute surenchère programmatique. L’implantation dans un parc public existant permet une mutualisation des espaces et des infrastructures, limitant les investissements superflus. L’offre hôtelière diversifiée favorise une occupation continue et une exploitation stable dans le temps.
Diversité
Le projet s’adresse à une diversité d’usagers : Les habitants bénéficient d’un parc public animé par une place de jeu et un café-bar. Les touristes journaliers profitent d’un point de départ vers les parcs du Chasseral et du Doubs. L’offre hôtelière différenciée permet d’accueillir familles, groupes, cyclistes, voyageurs à budget restreint ou en quête de confort supérieur, ainsi que des visiteurs professionnels. Cette pluralité d’usages favorise la mixité et les interactions au sein du site.
Contexte
Inscrite à l’Inventaire fédéral des sites construits d’importance nationale ISOS, Saint-Imier constitue un ensemble cohérent d’urbanisme horloger du XIXe siècle, caractérisé par une architecture compacte et répétitive, ainsi qu’une mixité entre habitat et manufactures. Le projet s’implante en bordure du cœur historique en reprenant les principes urbains existants : bâtiment aligné à la rue, jardins au sud et volumétrie simple, assurant une continuité spatiale et typologique avec le tissu bâti.
Esprit du lieu
Conscient de la valeur du patrimoine imérien, le projet s’insère en bordure du cœur historique de la ville dans une posture de continuité. La volumétrie simple du bâtiment réinterprète l’archétype des logements d’ouvriers horlogers, tandis que l’expression des façades évoque les ateliers d'horlogerie. Ces références locales, traduites de manière contemporaine, permettent une appropriation du lieu facilitée, porteuse de sens et d’attachement pour les usagers.
Beauté
La beauté du projet repose sur la justesse de son implantation, de ses proportions et de sa relation au parc. La diversité des essences végétales et les floraisons saisonnières participent à une perception sensible et apaisée du lieu. Les façades en bois pré-grisaillé, aux reflets gris-métallisés subtils, offrent une apparence homogène dès les premiers jours, puis laissera place à la patine naturelle du matériau. L’ensemble compose une atmosphère calme et équilibrée.
Caractéristiques
Lieu
St-Imier
Catégorie d'ouvrage (SIA 102)
Hôtellerie et tourisme
Type de tâche
Nouvelle construction
Type de procédure
Concours
Type de concours
Concours sur invitation
Coût de construction en CHF (SIA 416)
7'814'600.00 CHF
Surface de plancher en m² (SIA 416)
2'362
Planification
2021 → 2023
Réalisation
2023 → 2024
Année de mise en service
2024
Soumissionnaire(s) | Intervenants
Directions des travaux
Génie civil
Construction bois
Technique du bâtiment
DLH Techniques CVS
Architecture du paysage
Emma Voit Architecture du Paysage Sàrl
Architecture d'intérieur
Studio d'Istria