...
Domaine de Marsillon

Copyright: CSDK Architectes Sàrl
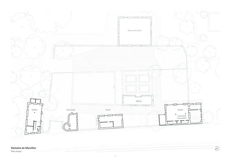
Le Domaine de Marsillon, à Troinex, est un ensemble patrimonial du XVIIᵉ siècle composé d’une maison de maître et de quatre corps de ferme inscrits à l’inventaire du patrimoine genevois.
Le projet en propose la reconversion en logements contemporains sans extension foncière, selon une logique de densification douce et qualitative.
L’intervention repose sur une réinterprétation critique du bâti rural, conciliant conservation, performance énergétique et qualité d’usage. Chaque bâtiment a été dépouillé des ajouts successifs, restauré selon les méthodes traditionnelles, puis consolidé par des profils métalliques apparents, assumés comme expression contemporaine du renforcement structurel.
Un réseau centralisé à pellets, installé dans l’ancienne écurie, alimente désormais l’ensemble du domaine, remplaçant les anciennes chaudières fossiles. Les réseaux techniques ont été intégrés sous fortes contraintes patrimoniales, avec préservation des sols historiques, des arbres centenaires et des allées en têtes de chat.
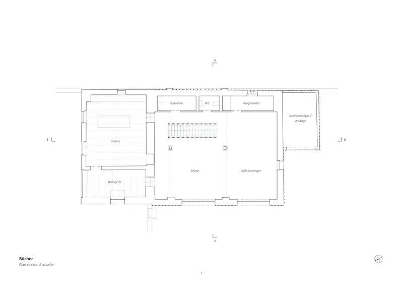
À l’intérieur, la réorganisation spatiale révèle la richesse des volumes : hauteurs sous plafond, charpentes apparentes, diversité des ouvertures. Les espaces de vie s’ouvrent sur le paysage, tandis que les pièces de nuit se logent derrière les claire-voies, retrouvant l’esprit du lieu.
Marsillon conjugue ainsi valeur patrimoniale, innovation constructive et durabilité. En réhabilitant sans bâtir, le projet démontre qu’il est possible de répondre à la crise du logement sans artificialiser, en transformant l’existant. Il incarne une culture du bâti responsable, ancrée dans la continuité historique, environnementale et sociale du territoire.
Le projet en propose la reconversion en logements contemporains sans extension foncière, selon une logique de densification douce et qualitative.
L’intervention repose sur une réinterprétation critique du bâti rural, conciliant conservation, performance énergétique et qualité d’usage. Chaque bâtiment a été dépouillé des ajouts successifs, restauré selon les méthodes traditionnelles, puis consolidé par des profils métalliques apparents, assumés comme expression contemporaine du renforcement structurel.
Un réseau centralisé à pellets, installé dans l’ancienne écurie, alimente désormais l’ensemble du domaine, remplaçant les anciennes chaudières fossiles. Les réseaux techniques ont été intégrés sous fortes contraintes patrimoniales, avec préservation des sols historiques, des arbres centenaires et des allées en têtes de chat.
À l’intérieur, la réorganisation spatiale révèle la richesse des volumes : hauteurs sous plafond, charpentes apparentes, diversité des ouvertures. Les espaces de vie s’ouvrent sur le paysage, tandis que les pièces de nuit se logent derrière les claire-voies, retrouvant l’esprit du lieu.
Marsillon conjugue ainsi valeur patrimoniale, innovation constructive et durabilité. En réhabilitant sans bâtir, le projet démontre qu’il est possible de répondre à la crise du logement sans artificialiser, en transformant l’existant. Il incarne une culture du bâti responsable, ancrée dans la continuité historique, environnementale et sociale du territoire.












Copyright général des photographies: CSDK Architectes Sàrl












Copyright général des plans / schémas / graphiques: CSDK Architectes Sàrl
Copyright: CSDK Architectes Sàrl
Textes Critères de Davos
Gouvernance
Processus participatif réunissant le maître d’ouvrage, les autorités patrimoniales et une équipe pluridisciplinaire. Les décisions ont été prises de manière collégiale, fondées sur des études historiques, structurelles et énergétiques croisées. Cette gouvernance ouverte a permis d’équilibrer les exigences patrimoniales, techniques et économiques, garantissant une démarche responsable et transparente tout au long du projet, de la conception à la gestion post-travaux.
Fonctionnalité
Les logements résultent d’une relecture fine du bâti agricole. Une stratégie hiérarchisée de percements (réemploi des contrevents, ouvertures discrètes dans le bardage, percements ponctuels en maçonnerie, tabatières en toiture) apporte lumière et ventilation sans altérer les façades. Les espaces de vie s’ouvrent sur les jardins tandis que les zones techniques se situent côté route. L’organisation révèle la richesse et la diversité spatiale du bâti existant.
Environnement
Le projet atteint le zéro artificialisation nette : toutes les interventions s’inscrivent dans le volume bâti. La production de chaleur renouvelable par biomasse a remplacé les énergies fossiles. Le réemploi des matériaux, la conservation des murs et des charpentes, la réduction des déchets et la préservation du paysage réduisent fortement l’empreinte carbone. Marsillon incarne une sobriété constructive et un usage responsable des ressources.
Économie
La transformation du bâti existant offre une rentabilité durable sans coût foncier. Le coût global est inférieur à celui d’une construction neuve équivalente, tout en valorisant le patrimoine et le territoire. Les matériaux ont été réemployés, les entreprises locales mobilisées. L’économie du projet repose sur la durabilité, la qualité artisanale et la maîtrise des coûts d’exploitation à long terme, dans une logique d’économie circulaire.
Diversité
Les quatre bâtiments accueillent des typologies variées, générées par la non-uniformité du bâti rural. Les différences de niveaux, d’échelles et de matériaux produisent des logements uniques, mais cohérents. Le projet favorise une mixité sociale et générationnelle, réactivant un ensemble rural en déclin. Il démontre que la diversité constructive et humaine peut être un levier de durabilité et de qualité architecturale.
Contexte
Marsillon s’inscrit dans la continuité historique du domaine et du paysage genevois. L’intervention respecte la volumétrie, les matériaux et les teintes d’origine. Les façades sont recrépies à la chaux, les toitures restaurées à l’identique, et les bardages ajourés réinterprètent les motifs vernaculaires. Le projet s’intègre dans le site sans imitation ni rupture, en prolongeant la cohérence spatiale et culturelle du lieu.
Esprit du lieu
L’architecture révèle la mémoire constructive du domaine : charpentes apparentes, murs en pierre, bois et lumière naturelle. Les profils métalliques noirs et les barreaudages contemporains dialoguent avec les matériaux anciens, affirmant une intervention respectueuse et lisible. Ce dialogue entre passé et présent crée une émotion et une identité forte, réactivant l’attachement au lieu et la dimension sensible du patrimoine rural.
Beauté
La beauté de Marsillon naît de la sobriété et de la cohérence. La matérialité brute, la lumière naturelle et la continuité entre intérieur et paysage instaurent une harmonie apaisée. Chaque détail traduit une attention à la proportion, à la texture et à la main de l’artisan. Le projet renforce le sentiment d’appartenance et démontre que la durabilité peut être aussi un acte esthétique et poétique.
Caractéristiques
Lieu
Troinex
Catégorie d'ouvrage (SIA 102)
Habitat
Type de tâche
Transformation
Type de procédure
Mandat direct
Coût de construction en CHF (SIA 416)
6'100'000
Surface de plancher en m² (SIA 416)
965
Planification
2017 → 2021
Réalisation
2021 → 2023
Année de mise en service
2023
Soumissionnaire(s) | Intervenants
Génie civil
Physique du bâtiment
Ingénierie acoustique
Planair SA
Technique du bâtiment
BTS Napolillo Sàrl
Autre