...
VER - Carèsg

Copyright: ©ph:SIMONE BOSSI ©prog: ATELIER RAMPAZZI
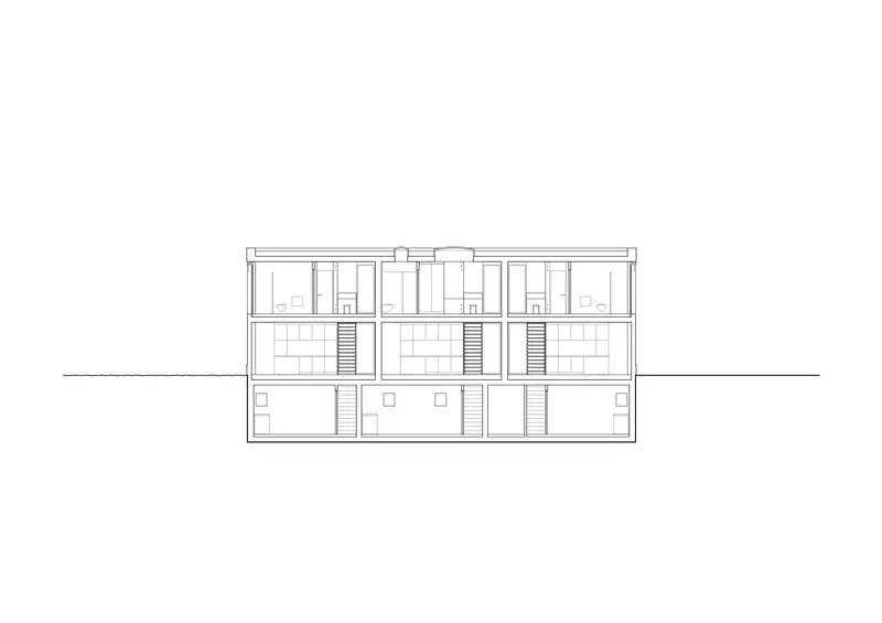
Il progetto prevede la realizzazione di un nuovo edificio residenziale composto da tre unità abitative sviluppate su due piani fuori terra con cantine interrate. La forma rettangolare e compatta dell’edificio deriva principalmente dall’orientamento solare, in dialogo con l’andamento dei filari di vigne presenti nel contesto adiacente.
Per garantire un inserimento armonioso in un ambito architettonico eterogeneo, si è scelto di lavorare su un concetto di unitarietà materica e formale, generando un guscio coeso in cemento armato che racchiude al suo interno tre abitazioni caratterizzate da superfici lignee e pareti verdi verticali. La suddivisione attenta del volume principale consente di distinguere in modo non invasivo le tre unità, alleggerendo la percezione dell’edificio e mantenendo una scala coerente con il contesto circostante, prevalentemente composto da edifici di piccole dimensioni.
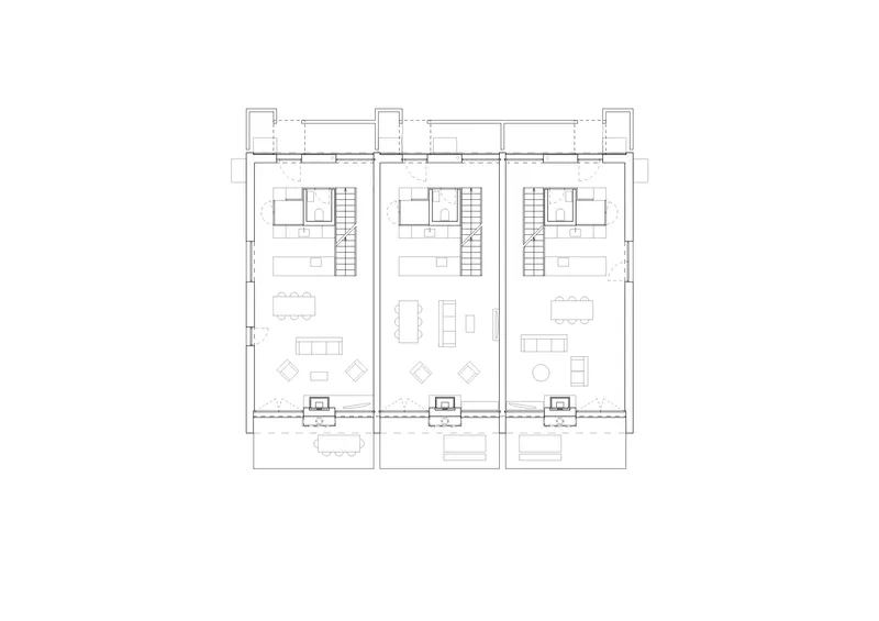
Gli ingressi, collocati a nord, sono separati e riconoscibili, ciascuno dotato di un piccolo patio esterno che funge da atrio privato. Un ampio camminamento principale conduce ai posteggi, disposti perpendicolarmente alla strada comunale e arretrati rispetto alla carreggiata, garantendo la sicurezza dei percorsi pedonali.
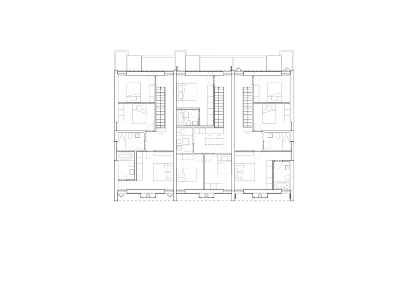
I giardini si sviluppano a sud e costituiscono lo spazio esterno principale, verso il quale si orientano le zone giorno al piano terreno. Internamente, ogni unità presenta un nucleo centrale formato da ingresso, servizio ospiti, cucina e scala, che funge da diaframma tra esterno e soggiorno con camino, favorendo una fruizione fluida degli spazi. Al piano superiore trovano posto due camere, un bagno e una camera padronale con servizio privato, oltre a uno spazio centrale illuminato zenitalmente destinato a studio o area giochi.
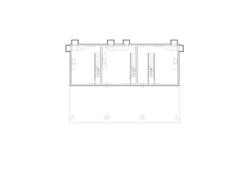
Al piano cantina sono collocati i locali tecnici e i depositi, mentre in copertura trovano spazio i pannelli solari, gli sfiati di ventilazione e, per l’unità centrale, aperture zenitali per illuminazione e ventilazione naturale.
Per garantire un inserimento armonioso in un ambito architettonico eterogeneo, si è scelto di lavorare su un concetto di unitarietà materica e formale, generando un guscio coeso in cemento armato che racchiude al suo interno tre abitazioni caratterizzate da superfici lignee e pareti verdi verticali. La suddivisione attenta del volume principale consente di distinguere in modo non invasivo le tre unità, alleggerendo la percezione dell’edificio e mantenendo una scala coerente con il contesto circostante, prevalentemente composto da edifici di piccole dimensioni.
Gli ingressi, collocati a nord, sono separati e riconoscibili, ciascuno dotato di un piccolo patio esterno che funge da atrio privato. Un ampio camminamento principale conduce ai posteggi, disposti perpendicolarmente alla strada comunale e arretrati rispetto alla carreggiata, garantendo la sicurezza dei percorsi pedonali.
I giardini si sviluppano a sud e costituiscono lo spazio esterno principale, verso il quale si orientano le zone giorno al piano terreno. Internamente, ogni unità presenta un nucleo centrale formato da ingresso, servizio ospiti, cucina e scala, che funge da diaframma tra esterno e soggiorno con camino, favorendo una fruizione fluida degli spazi. Al piano superiore trovano posto due camere, un bagno e una camera padronale con servizio privato, oltre a uno spazio centrale illuminato zenitalmente destinato a studio o area giochi.
Al piano cantina sono collocati i locali tecnici e i depositi, mentre in copertura trovano spazio i pannelli solari, gli sfiati di ventilazione e, per l’unità centrale, aperture zenitali per illuminazione e ventilazione naturale.












Copyright général des photographies: SIMONE BOSSI ©











Copyright général des plans / schémas / graphiques: ATELIER RAMPAZZI ©
Textes Critères de Davos
Gouvernance
I giovani promotori hanno dimostrato una chiara consapevolezza del valore della qualità architettonica, comprendendo come l’attenzione al disegno, alla scelta materica e al controllo dei dettagli non comporti necessariamente un incremento dei costi. Attraverso un dialogo costante con i progettisti, il processo decisionale ha permesso di ottimizzare risorse, esigenze abitative e obiettivi economici, garantendo un esito equilibrato e responsabile.
Fonctionnalité
Il progetto si fonda su una razionalizzazione volumetrica e distributiva che favorisce un uso efficiente degli spazi, sia a livello abitativo sia sociale. Le tre unità sono concepite come entità autonome ma parte di un insieme coerente, capace di conciliare individualità e vita collettiva, assicurando comfort, chiarezza funzionale e una relazione misurata con il contesto insediativo circostante.
Environnement
Particolare attenzione è stata dedicata all’inserimento paesaggistico e alla sistemazione del verde, inteso come elemento strutturante del progetto. Le aree esterne contribuiscono alla qualità ambientale, al benessere degli abitanti e alla biodiversità locale, rafforzando il rapporto tra costruito e natura e mitigando l’impatto dell’intervento in un contesto sensibile.
Économie
Fin dalle fasi iniziali il costo complessivo, contenuto, ha rappresentato un tema centrale del progetto. L’impiego di materiali semplici e durevoli ha permesso di ottenere un’elevata qualità architettonica con risorse limitate. Dal punto di vista manutentivo, nel tempo è previsto unicamente il ritinteggio dei pannelli in legno, garantendo sostenibilità economica ed ecologica per le famiglie.
Diversité
Il progetto promuove una forma abitativa capace di accogliere differenti modi di vivere, evitando soluzioni standardizzate. Le unità, pur simili per linguaggio e materiali, consentono appropriazioni individuali e relazioni diversificate con gli spazi esterni e comuni. Questa flessibilità favorisce l’inclusione sociale e una pluralità di usi, rafforzando il senso di appartenenza degli abitanti.
Contexte
L’intervento si inserisce in un tessuto debolmente densificato, caratterizzato da villette speculative, distinguendosi per misura, chiarezza e coerenza. L’uso di materiali essenziali e una volumetria compatta permettono un dialogo rispettoso con l’intorno, evitando mimetismi eccessivi e proponendo un’alternativa consapevole alla dispersione edilizia tipica del contesto.
Esprit du lieu
La Residenza Caresg interpreta il luogo attraverso un equilibrio misurato tra cemento, legno e superfici verdi, stabilendo una chiara identità architettonica. Pur non essendo immediatamente compresa da tutti, la costruzione è stata apprezzata da molti abitanti per la sua coerenza materica e per la capacità di distinguersi senza prevaricare, rafforzando il carattere del sito.
Beauté
La bellezza del progetto emerge dalla relazione serena con il paesaggio: la linearità dei vigneti, la direzionalità della valle e l’orientamento degli edifici guidano le scelte compositive. Questa integrazione tra forma, luce e materia contribuisce all’efficienza energetica e al comfort abitativo, generando una qualità estetica sobria, duratura e profondamente legata al luogo.
Caractéristiques
Lieu
Verscio
Catégorie d'ouvrage (SIA 102)
Habitat
Type de tâche
Nouvelle construction
Type de procédure
Mandat direct
Coût de construction en CHF (SIA 416)
1'500'000
Surface de plancher en m² (SIA 416)
450
Planification
2021 → 2021
Réalisation
2022 → 2023
Année de mise en service
2023
Soumissionnaire(s) | Intervenants
Génie civil
Gulisano Franco
Conception électrique
Construction bois
Construction acier