...
GIG - Rondinella

Copyright: ph: SIMONE BOSSI © prog: ATELIER RAMPAZZI©
Il progetto ha previsto la ristrutturazione e l’ampliamento di un’abitazione secondaria nella periferia residenziale di Ascona, borgo del Locarnese immerso nella vegetazione e caratterizzato da edifici indipendenti con ampi spazi verdi in prossimità del lago. L’edificio originale era una casa monofamiliare su un unico piano, con spazi ridotti, accessi esterni separati e condizioni di conservazione precarie. La volumetria risultava frammentata e priva di una chiara intenzione architettonica, condizione che, insieme ai vincoli normativi e ambientali legati alla zona di esondazione del Lago Maggiore, ha portato a un intervento radicale e di riordino complessivo.
Nel rispetto dell’ampliamento massimo consentito del 30%, si è scelto un approccio compatto e materico, ispirato all’immagine di un cespuglio verde poggiato su una roccia. Questa visione si traduce in un volume “roccioso” alla base, affiancato da corpi in cemento armato che richiamano i massi erratici del delta del fiume Maggia, e da un volume superiore più astratto, definito dal verde della terrazza pergolata, con l’obiettivo di ridurre la percezione dell’edificio nel paesaggio.
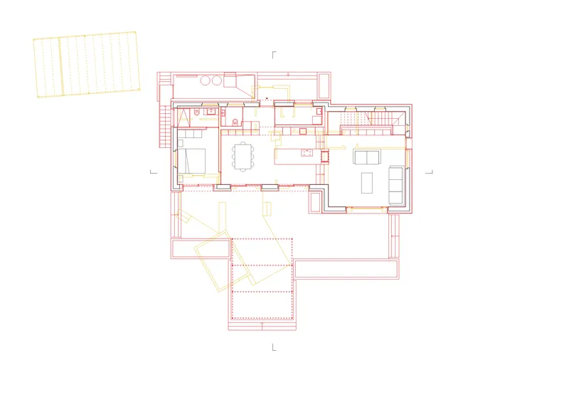
Il piano terreno ospita le principali funzioni della vita diurna, affiancate da una camera ospiti e dai locali essenziali. La zona giorno è strutturata da una lunga dorsale lignea che integra armadi e cucina e da un’isola con camino bifacciale che diventa il fulcro simbolico della casa, generando relazioni visive verso il giardino attraverso alte aperture ritmate e continuità materiche tra interno ed esterno.
Al primo piano si trova la camera padronale, organizzata attorno a un nucleo centrale in legno e aperta su una terrazza protetta da parapetto pieno e pergola vegetale, concepita come spazio intimo in continuità con il paesaggio e la vegetazione circostante.
Nel rispetto dell’ampliamento massimo consentito del 30%, si è scelto un approccio compatto e materico, ispirato all’immagine di un cespuglio verde poggiato su una roccia. Questa visione si traduce in un volume “roccioso” alla base, affiancato da corpi in cemento armato che richiamano i massi erratici del delta del fiume Maggia, e da un volume superiore più astratto, definito dal verde della terrazza pergolata, con l’obiettivo di ridurre la percezione dell’edificio nel paesaggio.
Il piano terreno ospita le principali funzioni della vita diurna, affiancate da una camera ospiti e dai locali essenziali. La zona giorno è strutturata da una lunga dorsale lignea che integra armadi e cucina e da un’isola con camino bifacciale che diventa il fulcro simbolico della casa, generando relazioni visive verso il giardino attraverso alte aperture ritmate e continuità materiche tra interno ed esterno.
Al primo piano si trova la camera padronale, organizzata attorno a un nucleo centrale in legno e aperta su una terrazza protetta da parapetto pieno e pergola vegetale, concepita come spazio intimo in continuità con il paesaggio e la vegetazione circostante.












Copyright général des photographies: SIMONE BOSSI ©












Copyright général des plans / schémas / graphiques: ATELIER RAMPAZZI ©
Textes Critères de Davos
Gouvernance
Il progetto si è sviluppato grazie a una collaborazione attenta e paziente tra committenti e progettista, fondata su dialogo e ascolto reciproco. Questa relazione ha permesso scelte mirate, coerenti e ponderate, in cui ogni dettaglio risponde a esigenze condivise, trasformando la ristrutturazione in un processo partecipativo e integrato, rispettoso della storia e dell’identità dell’edificio.
Fonctionnalité
La ristrutturazione mantiene l’involucro esistente ma ridefinisce gli spazi interni per migliorare comfort, sicurezza e fruibilità quotidiana. Gli ambienti giorno e notte dialogano tra loro attraverso assi visivi e percorsi chiari, mentre collegamenti verticali e terrazze facilitano movimento e accesso, garantendo continuità interna ed esterna senza compromettere la leggibilità della casa.
Environnement
L’edificio si integra con il paesaggio circostante, sfruttando giardini, pergole vegetate e tetti verdi per armonizzare costruzione e natura. La scelta di spazi aperti, vasche, aiuole spontanee e percorsi verdi riduce l’impatto sul terreno, valorizza la biodiversità e crea microclimi confortevoli, trasformando la casa in un’architettura immersa nel verde e rispettosa del contesto naturale.
Économie
La progettazione è stata calibrata per contenere l’impatto volumetrico, limitando l’ampliamento al necessario e scegliendo materiali durevoli. L’intervento riduce manutenzione futura e ottimizza risorse, evitando volumi superflui. Il risultato è un equilibrio tra investimento e qualità architettonica, che consente di ottenere spazi comodi, sicuri e raffinati senza sprechi o interventi eccessivamente formali.
Diversité
Pur essendo privata, la casa propone una varietà di esperienze spaziali, con percorsi, terrazze e aperture differenziate. Zone intime, aree panoramiche e scorci interni dialogano tra loro, creando movimento e varietà nella fruizione. L’orientamento dei volumi e l’articolazione dei giardini permettono interazioni con l’esterno, stimolando percezioni visive e sensoriali diverse ad ogni passo.
Contexte
L’edificio risponde al contesto residenziale di pregio attraverso volumi articolati, terrazze sovrapposte e materiali naturali. Cemento facciavista, intonaco grezzo dialogano con la vegetazione. Le viste strategiche verso lago, golf e giardini creano continuità con l’ambiente circostante, integrando la casa in modo armonico e rispettoso dello spazio urbano e naturale.
Esprit du lieu
L’edificio nasce dalla lettura del sito: il terreno alluvionale, la vicinanza al lago e la vegetazione secolare guidano la forma dei volumi e la loro disposizione. La casa si adatta alle quote del terreno, mimetizzandosi tra massi, piante e giardini, trasformandosi in parte integrante del paesaggio. La scelta dei materiali e dei percorsi accentua l’esperienza sensoriale del luogo, rendendo l’edificio “figlio del sito”.
Beauté
Le volumetrie disallineate creano una facciata dinamica, alleggerita da fasce orizzontali decorative e dalla sequenza di terrazze. L’uso dell’intonaco rigato e del cemento facciavista conferisce identità e mutevolezza: da lontano l’insieme appare uniforme, da vicino ogni dettaglio genera unicità. La casa, così, si percepisce come un organismo vivo, capace di cambiare con la luce e le stagioni, in armonia con il contesto.
Caractéristiques
Lieu
Ascona
Catégorie d'ouvrage (SIA 102)
Habitat
Type de tâche
Rénovation
Type de procédure
Mandat direct
Coût de construction en CHF (SIA 416)
1'800'000
Surface de plancher en m² (SIA 416)
175
Planification
2021 → 2021
Réalisation
2022 → 2023
Année de mise en service
2023
Soumissionnaire(s) | Intervenants
Génie civil
Conception électrique
Construction acier
Génie hydraulique
Physique du bâtiment