...
Alte Ziegelei, Kriens

Copyright: Seiler Linhart Architekten
Baugeschichte und Ausgangslage
Die Alte Ziegelei Kriens wurde 1895 als Dampfziegelei erbaut und mehrfach umgebaut. Nach häufigen Eigentümerwechseln erfolgte 1925 der Umbau zum Wohnhaus: In die zweigeschossige Maschinenhalle wurde eine Hourdisdecke eingezogen; Erd- und erstes Obergeschoss blieben gewerblich genutzt, die oberen Geschosse dienten dem Wohnen. Vor Projektbeginn bestand erheblicher Sanierungsbedarf an Gebäudehülle und Infrastruktur, zugleich waren Erd- und erstes Obergeschoss untergenutzt und boten Potenzial für neue Wohn- und Gewerbeflächen.
Denkmalpflegerisches Konzept und Baukörper
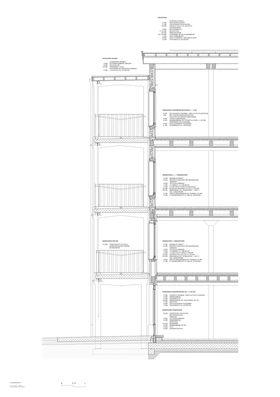
Das Projekt versteht die Ziegelei als gewachsenes Baudenkmal und entwickelt sie auf Basis einer präzisen Bestandsanalyse weiter. Ziel ist nicht Konservierung oder Rekonstruktion, sondern die Schärfung vorhandener Qualitäten im Dialog mit heutigen Anforderungen. Die Tragstruktur bleibt erhalten und wird punktuell ergänzt. Erdgeschossfassaden werden rekonstruiert, Innenhof und Laterne bewahrt und geöffnet. An Ost- und Westseite ergänzen leichte, viergeschossige Betonstrukturen den Kernbau und schaffen neue Außenräume.
Aussenraum und Erschliessung
Der Freiraum gliedert das Areal in differenzierte Kompartimente. Ein umlaufendes Belagsband erschließt das Gebäude und verbindet Vorfahrt und Parkierung im Osten, Aufenthaltsbereiche im Süden, einen Platz im Westen sowie Gärten im Nordwesten.
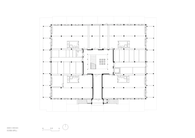
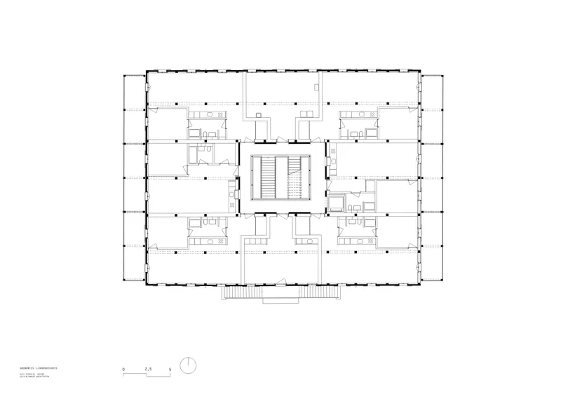
Grundrisse, Nutzung und Ausdruck
Die Grundrisse folgen dem bestehenden Stützenraster und einem konzentrischen Erschließungskonzept. Im Erdgeschoss entstehen flexibel teilbare Gewerberäume; der hindernisfreie Haupteingang führt in einen zentral belichteten Treppenraum mit Lift. In den Obergeschossen werden 18 Wohnungen erschlossen, ergänzt durch private Außenräume in neuen Lauben. Konstruktion und Ausdruck bewahren den Holzskelettbau mit Backsteinfüllungen; Putz, Dämmung und Details werden instandgesetzt und zeitgemäß ergänzt.
Die Alte Ziegelei Kriens wurde 1895 als Dampfziegelei erbaut und mehrfach umgebaut. Nach häufigen Eigentümerwechseln erfolgte 1925 der Umbau zum Wohnhaus: In die zweigeschossige Maschinenhalle wurde eine Hourdisdecke eingezogen; Erd- und erstes Obergeschoss blieben gewerblich genutzt, die oberen Geschosse dienten dem Wohnen. Vor Projektbeginn bestand erheblicher Sanierungsbedarf an Gebäudehülle und Infrastruktur, zugleich waren Erd- und erstes Obergeschoss untergenutzt und boten Potenzial für neue Wohn- und Gewerbeflächen.
Denkmalpflegerisches Konzept und Baukörper
Das Projekt versteht die Ziegelei als gewachsenes Baudenkmal und entwickelt sie auf Basis einer präzisen Bestandsanalyse weiter. Ziel ist nicht Konservierung oder Rekonstruktion, sondern die Schärfung vorhandener Qualitäten im Dialog mit heutigen Anforderungen. Die Tragstruktur bleibt erhalten und wird punktuell ergänzt. Erdgeschossfassaden werden rekonstruiert, Innenhof und Laterne bewahrt und geöffnet. An Ost- und Westseite ergänzen leichte, viergeschossige Betonstrukturen den Kernbau und schaffen neue Außenräume.
Aussenraum und Erschliessung
Der Freiraum gliedert das Areal in differenzierte Kompartimente. Ein umlaufendes Belagsband erschließt das Gebäude und verbindet Vorfahrt und Parkierung im Osten, Aufenthaltsbereiche im Süden, einen Platz im Westen sowie Gärten im Nordwesten.
Grundrisse, Nutzung und Ausdruck
Die Grundrisse folgen dem bestehenden Stützenraster und einem konzentrischen Erschließungskonzept. Im Erdgeschoss entstehen flexibel teilbare Gewerberäume; der hindernisfreie Haupteingang führt in einen zentral belichteten Treppenraum mit Lift. In den Obergeschossen werden 18 Wohnungen erschlossen, ergänzt durch private Außenräume in neuen Lauben. Konstruktion und Ausdruck bewahren den Holzskelettbau mit Backsteinfüllungen; Putz, Dämmung und Details werden instandgesetzt und zeitgemäß ergänzt.
























Textes Critères de Davos
Gouvernance
Die Entwicklung der Ziegelei folgt einer baukulturell getragenen Haltung: Bestand wird nicht verdrängt, sondern als kulturelle Ressource aktiviert. Analyse, Denkmalpflege und zeitgemässe Nutzung greifen zu einem verantwortungsvollen Transformationsprozess ineinander.
Fonctionnalité
Die neue Erschliessung, der geöffnete Hof und flexible Grundrisse machen die historische Struktur dauerhaft nutzbar. Funktion wird als Fähigkeit des Gebäudes verstanden, sich wandelnden Lebens- und Arbeitsformen über Generationen hinweg anzupassen.
Environnement
Die Weiterverwendung der Tragstruktur und der Backstein-Holz-Hybridbau reduzieren Materialverbrauch, Energieaufwand und Emissionen. Nachhaltigkeit entsteht hier durch Erhalten, Reparieren und Weiterbauen statt durch Ersatzneubau.
Économie
Die Umnutzung aktiviert bestehende Bausubstanz und erschliesst neues Wohn- und Arbeitsvolumen ohne zusätzlichen Bodenverbrauch. Langlebige Konstruktionen und flexible Typologien sichern ökonomische Stabilität über den gesamten Lebenszyklus.
Diversité
Die Mischung aus Gewerbe, Gemeinschaftsnutzungen und unterschiedlich grossen Wohnungen schafft soziale, räumliche und funktionale Vielfalt. Architektur wird zum Rahmen für eine heterogene, lebendige Bewohnerschaft.
Contexte
Die Alte Ziegelei wird nicht isoliert, sondern als Teil des Stadtraums weitergebaut. Freiraumkompartimente, umlaufende Erschliessung und neue Lauben vernetzen das Gebäude mit seiner Umgebung und übersetzen die industrielle Typologie in einen urbanen Wohn- und Arbeitsort.
Esprit du lieu
Die Ziegelei bleibt als industrieller Ort lesbar: Struktur, Materialität und Hofräume tragen die Erinnerung weiter. Neue Eingriffe verstärken diese Identität, statt sie zu überdecken – der Ort erzählt seine Geschichte in zeitgemässer Sprache.
Beauté
Die Schönheit entsteht aus der Klarheit von Struktur, Proportion und Material. Sichtbares Fachwerk, Backstein, Putz und die neuen Lauben verbinden historische Substanz mit zeitgenössischer Präzision und erzeugen eine ruhige, kraftvolle architektonische Präsenz.
Caractéristiques
Lieu
Kriens
Catégorie d'ouvrage (SIA 102)
Habitat
Type de tâche
Transformation
Type de procédure
Concours
Type de concours
Concours sélectifs
Coût de construction en CHF (SIA 416)
CHF 12 Mio.
Surface de plancher en m² (SIA 416)
2'589
Planification
2021 → 2023
Réalisation
2023 → 2025
Année de mise en service
2025
Soumissionnaire(s) | Intervenants
Directions des travaux
Génie civil
Construction bois
Technique du bâtiment
Conception électrique
Architecture du paysage
Photographie