...
MOSSO, bâtiment artisanal

Copyright: Paola Corsini
Érigé sur une parcelle familiale autrefois occupée par l’imprimerie du grand-père du maître d’ouvrage, Mosso est un bâtiment de six étages accueillant des activités mixtes en lien avec l’artisanat contemporain. Implanté au cœur du nouveau quartier de Chêne-Bourg, en pleine mutation autour de la gare du Léman Express, le projet se conçoit comme un outil mis à disposition de ses usagers. Son approche se veut résolument low-tech et durable, tant dans la conception que dans la mise en œuvre.
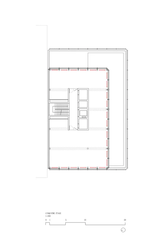
La structure porteuse hybride bois/béton s’appuie sur de grandes poutres en frêne lamellé-collé, ponctuées de perforations permettant le passage des techniques et limitant leur impact sur les plateaux. Cette organisation constructive vise à restituer un maximum de surface libre, favorisant la flexibilité et la diversité des usages.
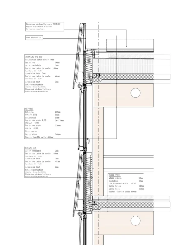
Les façades, largement vitrées, offrent un apport généreux de lumière naturelle aux espaces de travail. Elles sont composées de verre et de panneaux en fibrociment, assemblés volontairement de manière visible, selon une esthétique de mécano qui facilite la maintenance et le remplacement des éléments. Aux angles du bâtiment, l’inclinaison et la mise en quinconce des panneaux révèlent la finesse de la composition, évoquant un château de cartes en hommage au passé du site lié au papier. Ce dispositif permet également l’intégration discrète des stores, sans caisson apparent.
Labellisé THPE, le bâtiment intègre des panneaux photovoltaïques sur les trois derniers niveaux, en substitution du fibrociment, la géométrie de façade contribuant à l’optimisation de leur rendement. Les aménagements intérieurs adoptent un langage brut et artisanal, associant chapes de béton poncées, briques silico-calcaires, bois, panneaux isolants apparents, acier galvanisé et murs en briques de terre compressée. Enfin, une attention particulière est portée au réemploi, avec la récupération de luminaires et de cloisons vitrées issus de bâtiments voués à la démolition.
La structure porteuse hybride bois/béton s’appuie sur de grandes poutres en frêne lamellé-collé, ponctuées de perforations permettant le passage des techniques et limitant leur impact sur les plateaux. Cette organisation constructive vise à restituer un maximum de surface libre, favorisant la flexibilité et la diversité des usages.
Les façades, largement vitrées, offrent un apport généreux de lumière naturelle aux espaces de travail. Elles sont composées de verre et de panneaux en fibrociment, assemblés volontairement de manière visible, selon une esthétique de mécano qui facilite la maintenance et le remplacement des éléments. Aux angles du bâtiment, l’inclinaison et la mise en quinconce des panneaux révèlent la finesse de la composition, évoquant un château de cartes en hommage au passé du site lié au papier. Ce dispositif permet également l’intégration discrète des stores, sans caisson apparent.
Labellisé THPE, le bâtiment intègre des panneaux photovoltaïques sur les trois derniers niveaux, en substitution du fibrociment, la géométrie de façade contribuant à l’optimisation de leur rendement. Les aménagements intérieurs adoptent un langage brut et artisanal, associant chapes de béton poncées, briques silico-calcaires, bois, panneaux isolants apparents, acier galvanisé et murs en briques de terre compressée. Enfin, une attention particulière est portée au réemploi, avec la récupération de luminaires et de cloisons vitrées issus de bâtiments voués à la démolition.












Copyright général des photographies: Paola Corsini







Copyright général des plans / schémas / graphiques: NOMOS
Textes Critères de Davos
Gouvernance
Mosso illustre une gouvernance claire et participative : le maître d’ouvrage familial pilote le projet avec les architectes et les futurs usagers, assurant la cohérence entre les besoins des artisans, les contraintes urbaines et les exigences techniques. Les décisions sont transparentes et inclusives, de la conception à la mise en œuvre, garantissant un suivi rigoureux et une responsabilité partagée qui ancre le projet dans son territoire et dans le temps.
Fonctionnalité
Le bâtiment offre des plateaux modulables et libres, pensés pour accueillir des activités artisanales, industrielles légères et des bureaux. Les espaces combinent confort thermique et visuel, sécurité, lumière naturelle et circulation fluide. La flexibilité des aménagements permet de répondre à des besoins variés et évolutifs, offrant une adaptabilité exceptionnelle tout en valorisant l’héritage industriel du site et le savoir-faire artisanal.
Environnement
Mosso est un exemple de conception durable : structure hybride bois-béton, panneaux photovoltaïques intégrés, matériaux biosourcés et récupérés, et techniques apparentes favorisant la maintenance et le recyclage. La performance énergétique THPE, la récupération de luminaires et cloisons, ainsi que le choix de procédés constructifs limitant l’usage de colle et de soudure, garantissent un impact environnemental réduit tout en améliorant le confort et la durabilité du bâtiment.
Économie
Le projet mise sur la durabilité et la valeur à long terme : matériaux robustes, structure modulable, techniques apparentes et réparables. Cette approche minimise les coûts de maintenance et optimise la durée de vie. Les plateaux polyvalents accueillant plusieurs activités permettent une occupation flexible, garantissant la pérennité économique pour le maître d’ouvrage et les locataires, tout en respectant le contexte urbain et les potentialités du site.
Diversité
Mosso favorise la mixité des usages et la richesse sociale : artisans, bureaux et petites industries cohabitent dans un même lieu. Les espaces flexibles et modulables permettent l’installation de différents acteurs, stimulant l’interaction, la collaboration et le partage de responsabilités. Le projet soutient ainsi la cohésion sociale et spatiale, tout en incarnant une vision inclusive et ouverte de l’activité économique locale.
Contexte
Le bâtiment s’inscrit dans le tissu historique et urbain de Chêne-Bourg, respectant l’échelle du quartier, le patrimoine industriel et l’évolution du site depuis l’ouverture de la gare du Léman Express. La composition en volumes superposés, l’usage de matériaux et la modularité des façades créent un dialogue subtil avec l’existant et préfigurent l’avenir du quartier, tout en mettant en valeur les caractéristiques locales et l’histoire du lieu.
Esprit du lieu
Mosso génère un fort attachement grâce à sa structure visible, ses détails artisanaux et sa lumière naturelle abondante. Les matériaux bruts, les modules inclinés et les choix constructifs créent une identité singulière, tout en facilitant l’expérience sensorielle et émotionnelle des usagers. Le bâtiment devient ainsi un point de repère dans le quartier, avec un esprit clair, accueillant et reconnaissable, ancré dans son histoire et son contexte.
Beauté
La beauté de Mosso réside dans l’articulation entre esthétique et fonction : les panneaux inclinés et modulaires, la structure bois-béton, les assemblages apparents et la mise en scène des matériaux révèlent une rigueur constructive et une attention minutieuse aux détails. Chaque élément contribue à une perception sensorielle harmonieuse, renforçant l’identité du lieu et offrant aux usagers un environnement stimulant et agréable à vivre, où la simplicité industrielle devient élégance manifeste.
Caractéristiques
Lieu
Chemin de la Gravière 16
Catégorie d'ouvrage (SIA 102)
Industrie et artisanat
Type de tâche
Nouvelle construction
Type de procédure
Mandat direct
Coût de construction en CHF (SIA 416)
13,6 mio. CHF
Surface de plancher en m² (SIA 416)
4'114
Planification
2018 → 2022
Réalisation
2022 → 2024
Année de mise en service
2024
Soumissionnaire(s) | Intervenants
Génie civil
Maître d'ouvrage
Technique du bâtiment
Ingénierie acoustique
Géologie/géotechnique
Géomatique/sondage
Directions des travaux
Photographie