...
Internat et lieu de vie à St-Cergue

Copyright: David Gagnebin-de Bons
L’Ecole Protestante d’Altitude (EPA) de St-Cergue accueille en internat, semi-externat ou externat, des enfants rencontrant des difficultés scolaires.
Elle compte aujourd’hui, sur son site, plusieurs constructions : un bâtiment récent abritant le groupe scolaire, trois bâtiments vétustes abritant les groupes de vie et un bâtiment de services.
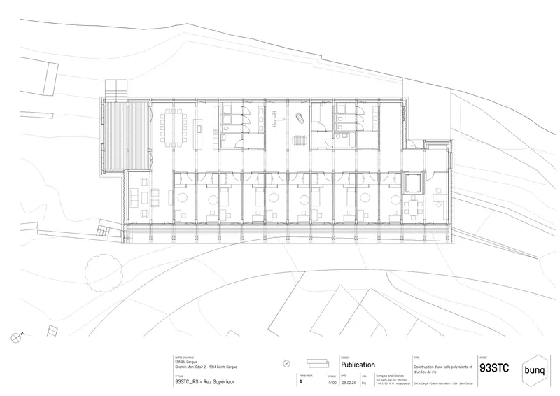
La pratique du sport étant une activité clé sur leur plan éducatif, l’EPA désirait réaliser sur son site un nouvel espace multifonctionnel pouvant accueillir des cours de sport ainsi que toute manifestation en lien avec l’école. Le site étant densement bâti, et comportant une topographie à forte déclivité, le projet s’implante en lieu et place d’un bâtiment obsolète abritant un groupe de vie. Le programme de ce dernier occupe la charpente du bâtiment.
Adossée à la pente le bâtiment s’implante entre le mur de soutènement existant et la roche. Sa structure est faite de cadres de bois franchissant la largeur de l’espace de la salle de sport et dont la hauteur statique est occupée par les espaces de vie de l’internat. L’espace bénéficie de la lumière du sud tamisée par la structure et des lames de bois horizontales. L’internat trouve un accès indépendant en lien avec les autres lieux de vie. Ses espaces sont définis par la charpente. Les pentes du toit mènent la lumière naturelle au cœur du bâtiment. Les chambres s’ouvrent des balcons donnant sur les montagnes et les maisons de St-Cergue en contre-bas.
L’expression architecturale est simple, utilisant des matériaux bruts mettant en valeur la construction et la répétition des fermes. Chaque élément qui compose le bâtiment est ainsi facilement identifiable. Le mur, la structure, les façades en lames de bois prégrisaillées qui s’inscrivent entre les cadres, et des tôles de fibro-ciment ondulés qui protègent les pignons du vent et forment les pans des toitures.
Elle compte aujourd’hui, sur son site, plusieurs constructions : un bâtiment récent abritant le groupe scolaire, trois bâtiments vétustes abritant les groupes de vie et un bâtiment de services.
La pratique du sport étant une activité clé sur leur plan éducatif, l’EPA désirait réaliser sur son site un nouvel espace multifonctionnel pouvant accueillir des cours de sport ainsi que toute manifestation en lien avec l’école. Le site étant densement bâti, et comportant une topographie à forte déclivité, le projet s’implante en lieu et place d’un bâtiment obsolète abritant un groupe de vie. Le programme de ce dernier occupe la charpente du bâtiment.
Adossée à la pente le bâtiment s’implante entre le mur de soutènement existant et la roche. Sa structure est faite de cadres de bois franchissant la largeur de l’espace de la salle de sport et dont la hauteur statique est occupée par les espaces de vie de l’internat. L’espace bénéficie de la lumière du sud tamisée par la structure et des lames de bois horizontales. L’internat trouve un accès indépendant en lien avec les autres lieux de vie. Ses espaces sont définis par la charpente. Les pentes du toit mènent la lumière naturelle au cœur du bâtiment. Les chambres s’ouvrent des balcons donnant sur les montagnes et les maisons de St-Cergue en contre-bas.
L’expression architecturale est simple, utilisant des matériaux bruts mettant en valeur la construction et la répétition des fermes. Chaque élément qui compose le bâtiment est ainsi facilement identifiable. Le mur, la structure, les façades en lames de bois prégrisaillées qui s’inscrivent entre les cadres, et des tôles de fibro-ciment ondulés qui protègent les pignons du vent et forment les pans des toitures.



.jpg)







Copyright général des photographies: David Gagnebin-de Bons






Copyright général des plans / schémas / graphiques: bunq architectes
Textes Critères de Davos
Gouvernance
L’EPA accorde une grande importance dans son programme éducatif, à la réalisation du sport et aux lieux de vie chaleureux « comme à la maison ». Le projet s’est ainsi développé en rapport étroit avec la direction et l’équipe éducative. Les usagers ont été impliqués dans chaque étape du projet. Les décisions sont prises en considérant les besoins et les retours des parties prenantes, afin d’assurer une appropriation durable des lieux par les utilisateurs.
Fonctionnalité
La superposition des fonctions génère une bonne compacité du bâti. La charpente habitée, combinée à l’insertion du volume dans la pente, permet une organisation fonctionnelle simple et efficace : chaque usage dispose d’un accès individuel de plein pied, garantissant autonomie et fluidité des circulations. Le rythme structurel, clair et ordonné, fédère les espaces du lieu de vie en assurant une lisibilité spatiale immédiate, et une facilité d’usage quotidien des espaces.
Environnement
Le projet s’intègre entre la paroi rocheuse et le mur en pierre. La construction est faite en bois suisse, avec des sections de charpente dimensionnées pour optimiser la matière. Un chauffage centralisé à bois assure la gestion énergétique du site. Un système de récupération d’eau de pluie est installé pour l’alimentation des toilettes. La salle de gymnastique est équipée d’une ventilation entièrement naturelle limitant les besoins en énergie et améliorant le confort par des moyens passifs.
Économie
La superposition des fonctions dans un seul bâtiment génère une économie structurelle : compacité réduisant les coûts, la matière et la consommation énergétique. Les installations techniques « low tech » (ventilation naturelle, récupération eau, chauffage groupé) renforcent cette sobriété. Les façades, conçues différemment selon leur exposition (protection solaire, isolation, durabilité) sont pensées pour minimiser l’entretien et prolonger la durée de vie du bâti.
Diversité
Le programme du bâtiment correspond à l’engagement de l’EPA. Il participe à la réintégration des élèves, en rupture scolaire, via le sport. Le bâtiment, au cœur du site, devient un lieu central de la vie quotidienne. Sa localisation en amont du village donne visibilité à l’institution, renforçant son rôle social et sa reconnaissance territoriale. Il est un lieu de transition, d’ouverture et de lien. Son architecture incarne cette mission : lieu d’accueil, de réunion, à la fois refuge et pont.
Contexte
Le projet complète l’ensemble bâti du site. Sa morphologie, entre la falaise et mur, dialogue avec la topographie et la vue. Sa façade en bois reprend le langage architectural de la moyenne montagne, oscillant entre chalet alpin et constructions rurales jurassiennes : clins horizontaux, pignons protégés de la pluie battante, murs en pierre sèche. Ce vocabulaire local ancre le bâtiment dans son contexte, tout en affirmant une identité contemporaine respectueuse du paysage et du patrimoine.
Esprit du lieu
Par sa position centrale, le projet relie la partie scolaire au pôle de vie, devenant le cœur battant de la vie quotidienne. Il intègre les activités sportives — intérieures et extérieures — dans un continuum spatial fluide. Sa présence proéminente dans le village redonne à l’institution une visibilité, affirmant son rôle social et éducatif.
En reprenant des caractéristiques architecturales et vernaculaires régionales, le bâtiment affirme son attachement à ce contexte de moyenne montagne.
En reprenant des caractéristiques architecturales et vernaculaires régionales, le bâtiment affirme son attachement à ce contexte de moyenne montagne.
Beauté
Chaque élément — structure, façade, toiture, sous-construction— est exprimé distinctement et traité avec soin. Cette logique constructive participe au langage architectural simple et « appréhensible ». La recherche de proportions harmonieuses dans la structure traduit une attention constante à la qualité formelle. L’architecture ne cache rien : elle expose, ordonne, éclaire. Ce parti favorise une beauté fonctionnelle, accessible, inhérente à la clarté, à l’honnêteté des matériaux.
Caractéristiques
Lieu
Saint-Cergue
Catégorie d'ouvrage (SIA 102)
Autre
Type de tâche
Nouvelle construction
Type de procédure
Mandat direct
Coût de construction en CHF (SIA 416)
5'800'000.-
Surface de plancher en m² (SIA 416)
Planification
2021 → 2022
Réalisation
2022 → 2023
Année de mise en service
2023
Soumissionnaire(s) | Intervenants
Génie civil
INGPHI
Génie et planification de l'environnement
Perenzia
Géologie/géotechnique
DeCerenville