...
Recupero e valorizzazione delle Fornaci di Riva San Vitale

Copyright: Marcelo Villada
Il progetto prevede il riuso-restauro degli edifici storici esistenti (antiche fornaci + ex-essiccatoio) e l’edificazione di un nuovo volume "casa dei forni".
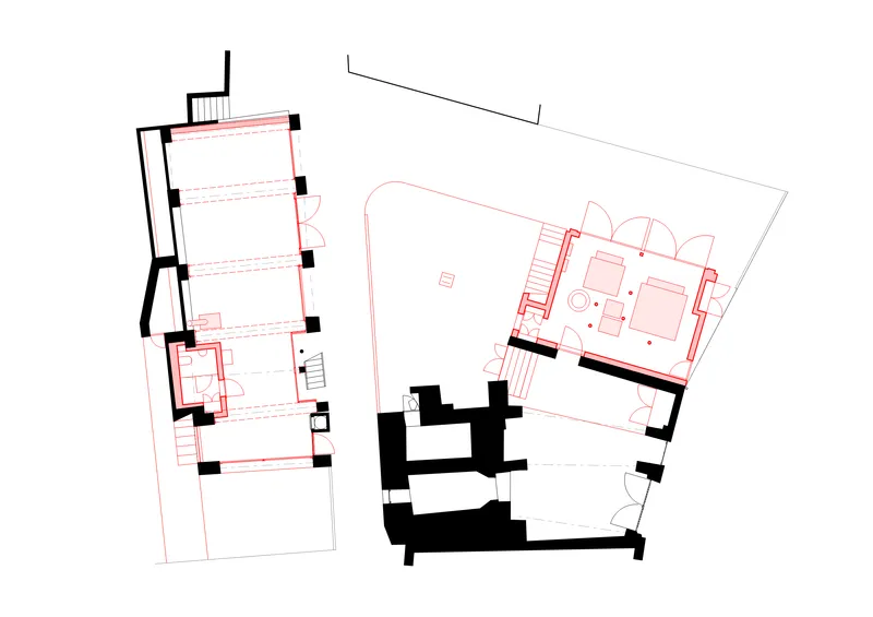
La ristrutturazione dell’edificio storico ex-essiccatoio, trasformato in laboratorio, prevede la costruzione di una nuova struttura metallica posizionata all’interno dell’edificio esistente, per consolidare le antiche murature, legare i solai esistenti e sorreggere la nuova copertura in struttura metallica che permette di scaricare e conservare le antiche capriate originali, estremamente caratteristiche. La nuova struttura metallica è composta da montanti (profili in mezza IPE240), da architravi (HEB120) per i solai e da profili HEB140 a formare le capriate della nuova copertura. L’edificio è stato chiuso con grandi vetrocamere posate direttamente sulla struttura portante, evitando ulteriori profili per i serramenti.
La "casa dei forni" è nuovo edificio con struttura metallica prefabbricata rivestito di laterizi riusati (vecchi coppi originali spezzati e posati in corsi orizzontali tipo "opus testaceum"). Il fronte principale dell’edificio è composto da quattro portoni metallici in ferro ossidato naturale, dietro ai quali sono installati due forni a gas realizzati appositamente per questo progetto per la cottura di ceramica anche di grande dimensioni. I forni sono muniti di due camini (ciminiere) di forma esagonale e rivestiti anch’essi in coppi spaccati riusati.
Si tratta di una realizzazione molto particolare. Il risultato valorizza l’edificio storico grazie alla snellezza dei montanti e alla finitura “ossidato naturale” (arrugginito) di tutti i profili. La totalità della costruzione metallica (struttura portante, copertura, serramenti/davanzali) è stata realizzata “artigianalmente” misurando tutto in cantiere e producendo ogni singolo componente che doveva adeguarsi alle irregolarità dell’edificio storico.
La ristrutturazione dell’edificio storico ex-essiccatoio, trasformato in laboratorio, prevede la costruzione di una nuova struttura metallica posizionata all’interno dell’edificio esistente, per consolidare le antiche murature, legare i solai esistenti e sorreggere la nuova copertura in struttura metallica che permette di scaricare e conservare le antiche capriate originali, estremamente caratteristiche. La nuova struttura metallica è composta da montanti (profili in mezza IPE240), da architravi (HEB120) per i solai e da profili HEB140 a formare le capriate della nuova copertura. L’edificio è stato chiuso con grandi vetrocamere posate direttamente sulla struttura portante, evitando ulteriori profili per i serramenti.
La "casa dei forni" è nuovo edificio con struttura metallica prefabbricata rivestito di laterizi riusati (vecchi coppi originali spezzati e posati in corsi orizzontali tipo "opus testaceum"). Il fronte principale dell’edificio è composto da quattro portoni metallici in ferro ossidato naturale, dietro ai quali sono installati due forni a gas realizzati appositamente per questo progetto per la cottura di ceramica anche di grande dimensioni. I forni sono muniti di due camini (ciminiere) di forma esagonale e rivestiti anch’essi in coppi spaccati riusati.
Si tratta di una realizzazione molto particolare. Il risultato valorizza l’edificio storico grazie alla snellezza dei montanti e alla finitura “ossidato naturale” (arrugginito) di tutti i profili. La totalità della costruzione metallica (struttura portante, copertura, serramenti/davanzali) è stata realizzata “artigianalmente” misurando tutto in cantiere e producendo ogni singolo componente che doveva adeguarsi alle irregolarità dell’edificio storico.
.jpg)























Copyright général des plans / schémas / graphiques: enrico sassi architetto
Copyright: Digital Flow
Textes Critères de Davos
Gouvernance
Tutti i processi sono stati orientati alla qualità, il progetto è specifico e si è sviluppato sotto la direzione di un team composto da persone molto qualificate, sia dal punto di vista tecnico (architetto, ingegnere e team di progettazione) sia dal punto di vista amministrativo (Ente Sviluppo Regionale ERS-MB, Cantone Ticino, Comune di Riva San Vitale). Durante tutto il percorso il progetto è stato partecipativo e inclusivo coinvolgendo la popolazione e prendendosi cura del luogo.
Fonctionnalité
Alcune delle soluzioni adottate sono state elaborate appositamente per questo particolare progetto. La soddisfazione dei bisogni umani di salute, comfort, sicurezza e accessibilità è stata una delle linee guida della progettazione. Il progetto ha prodotto risultati duraturi e contemporaneamente adattabili alle diverse destinazioni d’uso presenti e future, previste dal programma (formazione, produzione, esposizione, divulgazione) salvaguardano e valorizzando il patrimonio costruito.
Environnement
Il progetto preserva l’ambiente conservando le risorse naturali della biodiversità, mitigando gli effetti dei cambiamenti climatici e favorendo la sostenibilità. È stato creato un nuovo spazio pubblico verde (giardino), preservando un importante albero ad alto fusto (Dyospiros kaki) e inverdendo l’area. Parte delle acque meteoriche non sono canalizzate e vengono disperse per infiltrazione. I materiali utilizzati sono in parte riusati e considerano l’intero ciclo di vita.
Économie
Il progetto genera valore economico privilegiando i valori culturali che caratterizzano la memoria del luogo e la tradizione della lavorazione dell’argilla, attività che da sempre ha caratterizzato il comparto. L’investimento è a lungo termine e ad alto valore aggiunto, proponendo attività legate alla ceramica . In sintonia con l’ubicazione, la configurazione e le vocazioni del luogo il progetto propone modalità d’uso durevoli. La sostenibilità economica è stata parte fondamentale del progetto.
Diversité
Il progetto connette le persone ed è inclusivo. I corsi di ceramica sono tenuti da diversi artisti e aperti al pubblico. I locali sono accessibili anche a persone con mobilità ridotta (motulesi). Il laboratorio al piano terreno dell’essiccatoio è pensato anche come spazio per il lavoro condiviso (coworking).
Contexte
Il progetto ha riqualificato edifici e spazi pubblici e ha generato luoghi altamente riconnessi con il contesto, gli affetti e la memoria storica. Il recupero e la riqualifica degli stabili ha mantenuto i caratteri principali dei fabbricati destinandoli però alla produzione artistica contemporanea, in dialogo con la memoria e le caratteristiche del luogo con particolare attenzione alla conservazione della materialità originale.
Esprit du lieu
Il progetto Fornaci è nato dall’idea di riportare in vita lo “spirito della terracotta” che da sempre ha caratterizzato questo comparto, dove fino agli anni ’50 si producevano laterizi fabbricati a mano (mattoni, coppi, pianelle). L’attività di fornaciaio è attestata in questa zona fino dal medioevo. Il fulcro del progetto è sempre stato quello di promuovere e preservare la memoria e di suscitare attaccamento al luogo attraverso il rispetto delle preesistenze e degli edifici tradizionali.
Beauté
Il luogo che è stato fabbricato è particolarmente bello e suggestivo. Suscita nella popolazione e nei visitatori ammirazione e consenso. Anche gli utilizzatori (docenti, ceramisti, artisti) testimoniano che il luogo e gli stabili sono molto accoglienti e affascinati. Le Fornaci sono un luogo regolarmente oggetto di visite guidate e di lezioni di presentazione richieste da scuole di architettura, sia nazionali che internazionali.
Caractéristiques
Lieu
Riva San Vitale - Ticino CH
Catégorie d'ouvrage (SIA 102)
Culture et vie sociale
Type de tâche
Réutilisation
Type de procédure
Mandat direct
Coût de construction en CHF (SIA 416)
2'640'000 CHF (iva incl.)
Surface de plancher en m² (SIA 416)
460
Planification
2014 → 2024
Réalisation
2024 → 2025
Année de mise en service
2025
Soumissionnaire(s) | Intervenants
Architecture
Maître d'ouvrage
Génie civil
Giorgio Galfetti
Technique du bâtiment
Conception électrique
Autre
Physique du bâtiment
Directions des travaux
Géologie/géotechnique
Génie et planification de l'environnement
Autre
Géomatique/sondage
Photographie
Photographie
Photographie
Photographie