...
Courtyard Housing

Copyright: © Federal Studio
Comment intégrer un immeuble de logements dans une zone villageoise tout en préservant l’âme du lieu ? Tel est le défi de ce projet résidentiel à Eysins. Avec sa cour intérieure et ses toits à pignons, Courtyard Housing revisite les éléments fondamentaux de l’architecture vernaculaire pour densifier le tissu rural avec subtilité et respect du contexte existant.
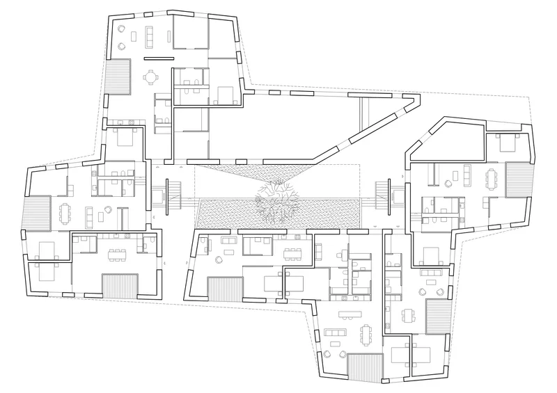
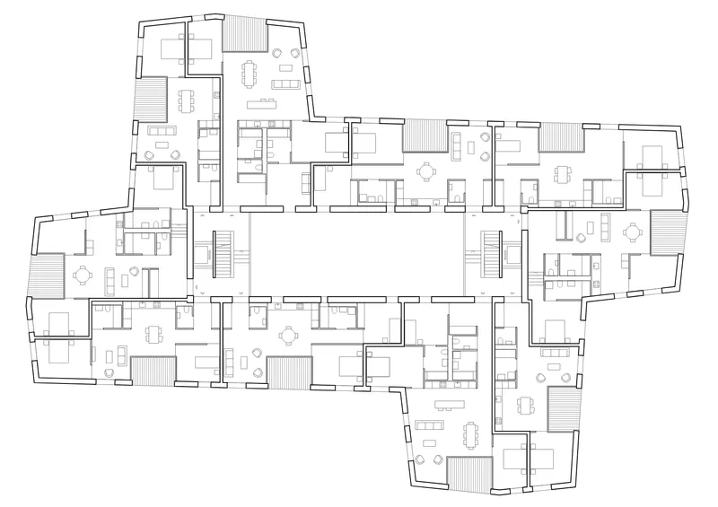
La composition du bâtiment s’organise autour de quatre axes majeurs, privilégiant une fragmentation volumétrique qui valorise les pignons. Ceux-ci accueillent de larges ouvertures, favorisant l’apport de lumière naturelle. La toiture homogène et continue accentue la cohésion entre les volumes et l’intégration au tissu villageois. Elle intègre des panneaux solaires photovoltaïques constituant le revêtement même de la toiture, combinant esthétique traditionnelle et production d’énergie renouvelable.
La forme du projet découle d’une logique contextuelle. Les façades, légèrement pliées, s’articulent selon des angles obtus, modifiant subtilement la perception du bâti et atténuant l’impact du volume global. L’implantation préserve l’intimité des logements en limitant les vis-à-vis et en favorisant des percées visuelles côté sud.
Élément structurant du projet, la cour intérieure s’inspire des cours villageoises. Retirée de la rue, elle constitue un espace central perméable, conçu comme un lieu de vie et de rencontre. Elle accueille les accès aux logements et assure un apport généreux en lumière naturelle.
Les façades sont réalisées en briques Capo 425 Lana, garnies de laine de mouton suisse, un isolant naturel et renouvelable assurant une excellente performance thermique.
Chaque logement, du 2 au 5 pièces, s’organise autour d’une loggia. Alternative au balcon, elle crée un espace extérieur intégré, jouant un rôle de filtre entre intérieur et extérieur.
La composition du bâtiment s’organise autour de quatre axes majeurs, privilégiant une fragmentation volumétrique qui valorise les pignons. Ceux-ci accueillent de larges ouvertures, favorisant l’apport de lumière naturelle. La toiture homogène et continue accentue la cohésion entre les volumes et l’intégration au tissu villageois. Elle intègre des panneaux solaires photovoltaïques constituant le revêtement même de la toiture, combinant esthétique traditionnelle et production d’énergie renouvelable.
La forme du projet découle d’une logique contextuelle. Les façades, légèrement pliées, s’articulent selon des angles obtus, modifiant subtilement la perception du bâti et atténuant l’impact du volume global. L’implantation préserve l’intimité des logements en limitant les vis-à-vis et en favorisant des percées visuelles côté sud.
Élément structurant du projet, la cour intérieure s’inspire des cours villageoises. Retirée de la rue, elle constitue un espace central perméable, conçu comme un lieu de vie et de rencontre. Elle accueille les accès aux logements et assure un apport généreux en lumière naturelle.
Les façades sont réalisées en briques Capo 425 Lana, garnies de laine de mouton suisse, un isolant naturel et renouvelable assurant une excellente performance thermique.
Chaque logement, du 2 au 5 pièces, s’organise autour d’une loggia. Alternative au balcon, elle crée un espace extérieur intégré, jouant un rôle de filtre entre intérieur et extérieur.












Copyright général des photographies: © Federal Studio






Copyright général des plans / schémas / graphiques: © FdMP
Textes Critères de Davos
Gouvernance
Implanté sur une parcelle familiale, le projet est conçu comme un patrimoine destiné à être transmis aux générations futures. Les maîtres d’ouvrage, un frère et une sœur, ont privilégié la qualité architecturale, la durabilité et l’utilisation de matériaux suisses. Situé en zone de bourg protégé, le projet a nécessité une collaboration étroite avec la municipalité et un dialogue avec le voisinage, afin d’assurer une intégration respectueuse et partagée.
Fonctionnalité
La conception du bâtiment s’organise autour d’une cour centrale, inspirée des cours de bourg, qui devient le cœur du projet et l’espace principal de distribution. Tous y accèdent, et les cages d’escalier extérieures participent à la circulation et aux échanges. Cette cour améliore l’habitabilité grâce à un apport lumineux naturel, rend les logements traversants, favorise la ventilation naturelle et garantit le calme des espaces de nuit, assurant ainsi un confort accru pour les habitants.
Environnement
Le choix constructif s’est porté sur des ressources 100% locales, durables et respectueuses de l’environnement. La structure porteuse est réalisée en briques monolithiques de terre cuite, isolée en laine de mouton suisse, offrant une mise en œuvre simple et performante. L’ensemble du bois de l charpente provient des forêts suisses. Ces choix permettent de limiter l’empreinte environnementale du projet sur l’ensemble de son cycle de vie.
Économie
Malgré les choix de matériaux exclusivement suisses, le coût global de l’ouvrage est resté relativement bas grâce à une conception simple et une forte rationalité technique. La construction monolithique a permis d’éviter l’accumulation de couches constructives, réduisant ainsi les coûts de mise en œuvre et de détail. Cette approche favorise une exécution efficace, tout en garantissant une simplicité constructive et le maintien d’une qualité architecturale soignée.
Diversité
Grâce à sa forme en étoile, le projet propose une grande diversité typologique de logements. Tous les appartements bénéficient de bi ou tri-orientations et sont traversants sur la cour centrale, garantissant qualité d’usage et variété de situations. La diversité typologique, du 2P au 6P, crée un véritable microcosme en sein du bâtiment. La cour et les loggias assurent une relation équilibrée entre espaces semi-publics et privés, favorisant l’appropriation et la diversité des usages.
Contexte
Le projet s’inscrit dans un contexte villageois sensible. Sa volumétrie particulière permet de réduire son impact visuel. Le bâtiment n’est jamais perçu dans son ensemble, ce qui atténue la lecture de son échelle et favorise une meilleure intégration. Cette fragmentation volumétrique permet également une mise à distance judicieuse avec le voisinage proche. Enfin, les dégagements générés autorisent une végétalisation périphérique généreuse du site ainsi que de la cour.
Esprit du lieu
L’esprit du lieu repose sur la préservation du caractère familiale du site. La démolition de la maison existante a permis la construction d’un nouveau bâtiment destiné à retranscrire les valeurs et l’histoire de la famille. La cour centrale s’est organisée autour d’un arbre situé au cœur de la parcelle, auquel la famille était attachée. Comme un symbole, un arbre occupe le centre de la cour du projet, incarnant une dimension poétique, humaine et mémorielle.
Beauté
La beauté du projet réside dans son humilité face au contexte villageois. Le bâtiment cherche à s’effacer en s’inscrivant dans la continuité esthétique des constructions environnantes. Le crépi à la chaux se fond dans les teintes du village et renforce cette intégration discrète. L’effet de surprise du projet se cache dans la cour, de teinte verte, véritable poumon végétal, qui affirme une contemporanéité assumée tout en enrichissant la qualité sensible du lieu.
Caractéristiques
Lieu
Eysins, VD
Catégorie d'ouvrage (SIA 102)
Habitat
Type de tâche
Nouvelle construction
Type de procédure
Mandat direct
Coût de construction en CHF (SIA 416)
17 mio
Surface de plancher en m² (SIA 416)
5'546
Planification
2019 → 2020
Réalisation
2020 → 2024
Année de mise en service
2024
Soumissionnaire(s) | Intervenants
Maître d'ouvrage
Privé
Architecture
Maître d'ouvrage