...
Banque Raiffeisen Genève Lac

Copyright: © Federal Studio
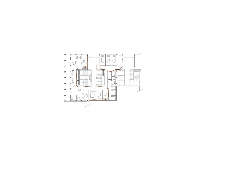
Bordée par une moraine glaciaire reliant le plateau de Pinchat à l’éperon de la Bâtie, la plaine alluviale de l’Arve fut longtemps occupée par des pâtures sillonnées de cours d’eau. Sur ce territoire au passé agricole se planifie la Genève de demain. C’est au cœur du secteur Praille-Acacias-Vernets, dans le quartier de l’Étoile, que la Banque Raiffeisen a choisi de s’implanter. Issue de la fusion des banques Raiffeisen d’Arve & Lac et du Salève, cette nouvelle agence « Genève Lac » inscrit Raiffeisen comme un acteur du PAV. Située au pied d’une des nouvelles tours de l’Esplanade Pont-Rouge, elle a pignon sur rue.
Le projet revisite l’archétype de l’arcade ouverte en dialogue avec la métropole verticale en devenir, tout en considérant l’histoire du site. Il remet en question l’image hermétique de la banque-coffre-fort au profit d’un lieu ouvert, accessible et transparent. L’élément narratif du projet, un mur de 77 mètres en terre crue, révèle le passé agricole du site et celui de Raiffeisen, historiquement liée au monde paysan et à l’économie locale. À la croisée d’un attachement territorial, historique et identitaire, l’architecture matérialise les valeurs de proximité, de convivialité et de durabilité.
Lauréat du concours sur invitation organisé en 2021 par la Banque Raiffeisen, le projet est né d’une idée audacieuse : construire un mur en terre à géométrie variée. Grâce à l’abnégation et au savoir-faire des artisans locaux, il est devenu une réalité. Cette création collective, mêlant technique ancestrale et technologie contemporaine, incarne l’innovation chère au bureau FdMP architectes. Ouvert au public, le projet se découvre du rez-de-chaussée aux étages administratifs supérieurs.
Le projet revisite l’archétype de l’arcade ouverte en dialogue avec la métropole verticale en devenir, tout en considérant l’histoire du site. Il remet en question l’image hermétique de la banque-coffre-fort au profit d’un lieu ouvert, accessible et transparent. L’élément narratif du projet, un mur de 77 mètres en terre crue, révèle le passé agricole du site et celui de Raiffeisen, historiquement liée au monde paysan et à l’économie locale. À la croisée d’un attachement territorial, historique et identitaire, l’architecture matérialise les valeurs de proximité, de convivialité et de durabilité.
Lauréat du concours sur invitation organisé en 2021 par la Banque Raiffeisen, le projet est né d’une idée audacieuse : construire un mur en terre à géométrie variée. Grâce à l’abnégation et au savoir-faire des artisans locaux, il est devenu une réalité. Cette création collective, mêlant technique ancestrale et technologie contemporaine, incarne l’innovation chère au bureau FdMP architectes. Ouvert au public, le projet se découvre du rez-de-chaussée aux étages administratifs supérieurs.












Copyright général des photographies: © Federal Studio






Copyright général des plans / schémas / graphiques: © FdMP
Textes Critères de Davos
Gouvernance
Afin de garantir la qualité architecturale et la maîtrise des coûts, le maître d’ouvrage, la banque Raiffeisen, a organisé un concours dans le cadre de ce projet. Cette démarche a permis de sélectionner la meilleure proposition, conciliant exigences architecturales, qualité esthétique et performance économique. Le projet retenu véhicule l’identité propre au lieu et les valeurs de la marque, assurant une gouvernance fondée sur la transparence et l’excellence du processus de décision.
Fonctionnalité
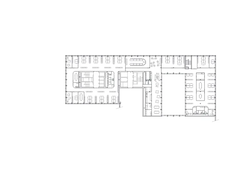
Le projet d’aménagement administratif est conçu pour s’adapter aux évolutions dans le temps et aux besoins spécifiques des usagers. Il préserve comme fil conducteur et élément structurant le mur en terre, qui participe pleinement à l’image et au caractère du lieu. Les espaces sont pensés pour le confort des utilisateurs, à travers le choix de matériaux chaleureux et une attention portée à l’apport de lumière naturelle pour les postes, garantissant des conditions de travail durables.
Environnement
Le mur en terre se veut un manifeste écoresponsable, alliant qualité esthétique et utilisation d’un matériau local. La terre fait écho à l’histoire de la banque, initialement destinée aux paysans, tout en s’inscrivant comme un matériau durable à faible empreinte carbone. Dans un contexte urbain dense, le projet crée une parenthèse écologique. La régulation hygrométrique assurée par le mur en terre contribue à la qualité de l’air intérieur et au bien-être des usagers.
Économie
Plus qu’un simple espace de travail, le projet devient un lieu de vie. Le mur en terre reflète une politique d’investissement durable et à long terme de la banque, matérialisant ses valeurs jusque dans l’architecture de ses locaux. Les économies d’échelle sont assurées par la proximité du matériau et par le recours à des entreprises artisanales locales, favorisant une économie régionale tout en maîtrisant les coûts et en garantissant une qualité d’exécution élevée.
Diversité
Le projet est pensé comme un lieu convivial favorisant le mélange des usagers. L’organisation en open-spaces et la transparence des espaces renforcent la cohésion spatiale et encouragent les échanges informels. Cette configuration permet une diversité d’usages, entre travail individuel, collaboration et moments de rencontre. Le lien soutient ainsi une culture de partage et de transversalité, tout en offrant une flexibilité adaptée aux différents modes de travail.
Contexte
Situé dans le quartier de Pont-Rouge, en plein développement et marqué par des bâtiments de grande hauteur au caractère minéral, le projet s’insère en proposant une parenthèse en lien avec la nature. L’usage de la terre fait écho au passé agricole du site, avant son urbanisation. Le projet prend ainsi le contrepied du contexte immédiat pour réinterpréter l’histoire du lieu, tout en participant à l’évolution du quartier.
Esprit du lieu
L’esprit du lieu s’inscrit dans une logique de palimpseste, où le passé agricole du site ressurgit pour devenir matière et architecture. Ce retour aux origines fait écho à la fois aux racines paysannes de la banque et à l’histoire du lieu d’implantation du nouveau siège. Cet ancrage au sol, à la terre et aux racines donne tout son sens au projet, affirmant une relation forte entre mémoire, identité et architecture contemporaine.
Beauté
La beauté du projet naît de la rencontre entre matière, mémoire et contemporanéité. Le mur en terre, élément central et manifeste, confère au lieu une présence à la fois brute et sensible, reliant le passé à une expression architecturale actuelle. Dans un contexte urbain minéral, cette matérialité crée une atmosphère chaleureuse et apaisée. La simplicité des espaces et la cohérence des choix constructifs participent à une esthétique durable, ancrée dans le sol et tournée vers l’avenir.
Caractéristiques
Lieu
Grand-Lancy, GE
Catégorie d'ouvrage (SIA 102)
Commerce et administration
Type de tâche
Nouvelle construction
Type de procédure
Concours
Type de concours
Concours sur invitation
Coût de construction en CHF (SIA 416)
7 mio
Surface de plancher en m² (SIA 416)
920
Planification
2021 → 2023
Réalisation
2023 → 2024
Année de mise en service
2024
Soumissionnaire(s) | Intervenants