...
Extension du Collège des Parcs et salles de sport

Copyright: Paola Corsini
Le projet comprend l’extension de l’école des Parcs et la construction de deux salles de sport. Il crée un lieu d’apprentissage contemporain, adapté aux besoins actuels et futurs, tout en respectant le patrimoine architectural de la ville. L’extension, construite derrière le collège historique, adopte un plan symétrique. Au centre, un espace de circulation traversant facilite l’orientation des élèves. Des vestiaires forment un espace tampon entre les circulations et les salles de classe, qui bénéficient d’un éclairage naturel généreux et d’ouvertures sur l’ancien collège et le lac.
Les balcons couverts le long de la façade sud prolongent les salles vers l’extérieur et offrent des espaces pour activités éducatives et ludiques tout au long de l’année. La façade réinterprète le langage de l’ancien collège et ses couleurs : le jaune de la pierre d’Hauterive et le blanc du calcaire du Jura. À l’intérieur, les matériaux sont chaleureux et ludiques : parquet en chêne formant un damier géant, terrazzo rouge doux sur l’escalier, et meubles verts aimantés dans les salles de classe pour accueillir les dessins des élèves.
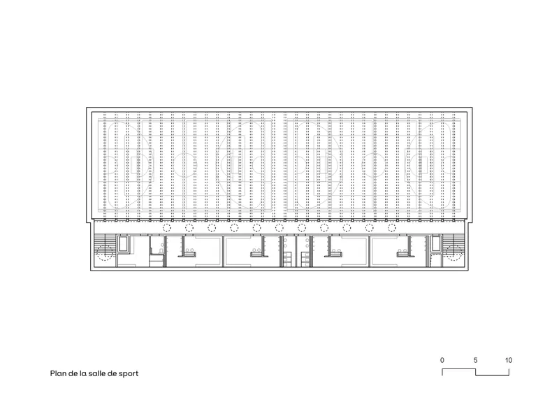
La salle de sport est intégrée dans le socle, directement sous la façade de l’ancien collège, afin de préserver le mur de vigne caractéristique de la rue des Parcs. Sa toiture devient la cour de récréation. L’entrée se fait par le pavillon dans la cour, puis on descend dans la colonnade qui offre une vue plongeante sur les salles de sport et dessert les vestiaires. Le plan symétrique et les contacts visuels facilitent l’orientation dans tout le bâtiment, offrant un espace clair, fonctionnel et accueillant
Les balcons couverts le long de la façade sud prolongent les salles vers l’extérieur et offrent des espaces pour activités éducatives et ludiques tout au long de l’année. La façade réinterprète le langage de l’ancien collège et ses couleurs : le jaune de la pierre d’Hauterive et le blanc du calcaire du Jura. À l’intérieur, les matériaux sont chaleureux et ludiques : parquet en chêne formant un damier géant, terrazzo rouge doux sur l’escalier, et meubles verts aimantés dans les salles de classe pour accueillir les dessins des élèves.
La salle de sport est intégrée dans le socle, directement sous la façade de l’ancien collège, afin de préserver le mur de vigne caractéristique de la rue des Parcs. Sa toiture devient la cour de récréation. L’entrée se fait par le pavillon dans la cour, puis on descend dans la colonnade qui offre une vue plongeante sur les salles de sport et dessert les vestiaires. Le plan symétrique et les contacts visuels facilitent l’orientation dans tout le bâtiment, offrant un espace clair, fonctionnel et accueillant












Copyright général des photographies: Paola Corsini








Copyright général des plans / schémas / graphiques: Stoa architectes
Textes Critères de Davos
Gouvernance
La culture du bâti a guidé le projet dès le concours ouvert, qui a réuni 124 équipes et a été jugé par un jury professionnel. Inscrit dans un cadre de marché public, le projet garantit transparence, qualité et égalité de traitement pour le choix des mandataires et entreprises, complété par le pourcent culturel. La commission d’urbanisme, les services du patrimoine et les utilisateurs ont été associés. Le projet est porté par une équipe transdisciplinaire à toutes les étapes du projet.
Fonctionnalité
La nouvelle école repose sur un plan symétrique et une organisation rationnelle des circulations et des locaux. Un hall central traversant lumineux dessert les étages et distribue des salles de classe protégées du bruit par des espaces tampons. Des balcons complètent les classes, offrant un lieu de pause supplémentaire et d'apprentissage autre. Du côté de la salle de sport, une colonnade longe la salle de sport et dessert les vestiaires, offrant une orientation claire pour toutes utilisateurs.
Environnement
Le projet adopte un usage responsable du sol en densifiant le site et en plaçant la salle de sport en souterrain, ce qui libère la cour d’école en surface et limite l’impact bâti. Cette implantation réduit les volumes visibles, protège le paysage et diminue les besoins en façades et en matériaux. Les zones en pleine terre accueillent arbres et arbustes favorisant la biodiversité, choisis avec un architecte paysagiste impliqué à toutes les phases. Les choix constructifs intègrent du béton recyclé
Économie
L’attractivité du site est renforcée par sa proximité du centre-ville, ses cheminements publics et l’accès aux services. La densification de la parcelle optimise l’usage du sol tout en préservant la cour de jeu. Les systèmes constructifs simples, durables et réparables réduisent les coûts d’entretien, tandis que les balcons, jouant le rôle de brise-soleil, limitent la surchauffe. L’investissement public vise ainsi une valeur durable et une viabilité économique à long terme.
Diversité
L’inclusion et la mixité sociale sont encouragées grâce à un accès PMR et à une cour sécurisée garantissant égalité et liberté de jeu. L’école et la salle de sport, utilisées par les clubs et ouvertes aux familles le week-end, génèrent des usages variés et dynamiques. Des zones de jeu et de pause offrent des lieux de rencontre confortables, tandis qu’un site ouvert sans barrières favorise le mélange des usagers et renforce la cohésion et la résilience sociale.
Contexte
Le projet s’ancre dans son contexte bâti et naturel, analysé dès le concours. Inspiré des bâtiments classiques, il adopte un socle, deux niveaux de fût et une couronne en attique, dialoguant avec l’ancien collège par une palette harmonisée (jaune pierre d’Hauterive, blanc calcaire du Jura). Le mur de vigne au sud est préservé et les espaces verts accessibles rehaussent la qualité du lieu, conciliant création contemporaine et héritage local.
Esprit du lieu
L’esprit du lieu se manifeste par une forte identité et des références locales : palette de couleurs et fenêtres vertes rappelant les bâtiments historiques, colonnade classique et couvert de la salle de sport appropriables par les usagers, anciennes fontaines réinstallées. Bois chaleureux et sols rouges créent confort et convivialité. L’école favorise l’attachement et la cohésion sociale, offrant un lieu marquant pour l’apprentissage et la vie quotidienne.
Beauté
Par sa composition claire et symétrique, la nouvelle école offre une lecture spatiale apaisante. Les proportions maîtrisées, la lumière naturelle et le choix des matériaux génèrent des ambiances confortables et stimulantes pour les élèves. La colonnade et balcons couverts renforcent le lien avec l’extérieur et le lac et enrichissent l’expérience sensible du lieu. L’architecture propose ainsi une esthétique équilibrée et maitrisée, contribuant au bien-être et à la qualité de vie des usagers.
Caractéristiques
Lieu
Neuchâtel
Catégorie d'ouvrage (SIA 102)
Enseignement, formation, recherche
Type de tâche
Nouvelle construction
Type de procédure
Concours
Type de concours
Concours ouvert
Coût de construction en CHF (SIA 416)
23'000
Surface de plancher en m² (SIA 416)
3'500
Planification
2021 → 2023
Réalisation
2023 → 2025
Année de mise en service
2025
Soumissionnaire(s) | Intervenants
Maître d'ouvrage
Directions des travaux
Génie civil
Architecture du paysage
Technique du bâtiment
Technique du bâtiment
Technique du bâtiment
Physique du bâtiment
Signalétique
Autre
Conception de façade