...
Mehrfamilienhäuser an der Limmat

Copyright: Schaub Zwicky Architekt:innen
Das sorgsame Weiterbauen an der Stadt ist nicht nur Aufgabe von Genossenschaften und der öffentlichen Hand, sondern auch der Zivilgesellschaft. Der An- und Umbau zweier Wohnhäuser in Zürich zeigt, wie durch das gemeinsame Engagement von Architekt:innen und zwei privaten Eigentümern ein Ensemble aus dem frühen 20. Jahrhundert weitergedacht werden kann: orientiert am Wert des Bestands und der Parzellierung, architektonisch aufeinander abgestimmt, aber doch individuell.
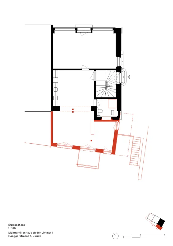
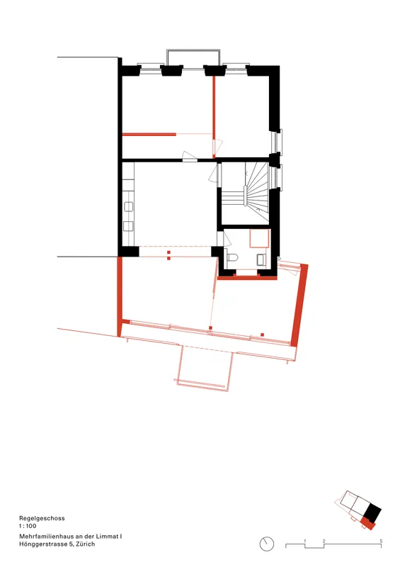
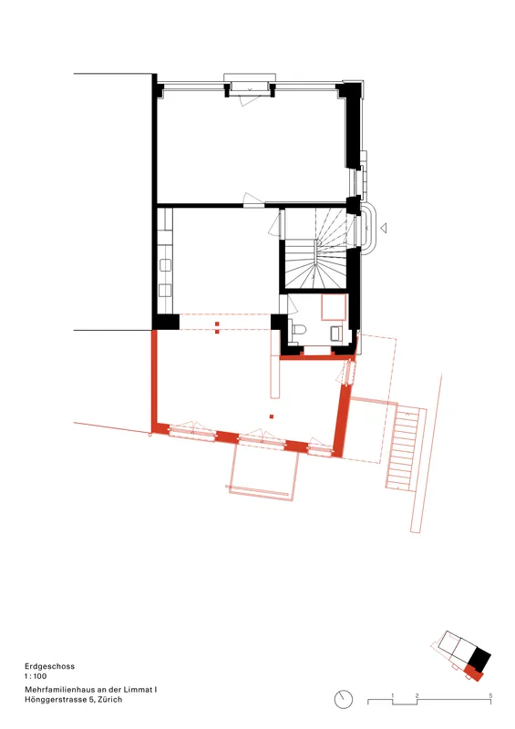
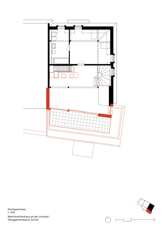
Die Projekte für die Hönggerstrasse 7 (2022-24) und die Hönggerstrasse 5 (2023-25) sind Beiträge zur innerstädtischen Verdichtung und Beispiele für konsequenten Bestandserhalt. Wenige kostengünstige Massnahmen schaffen dabei ein Maximum an neuem bezahlbaren Wohnraum. Beide Häuser werden mit einem flussseitigen Anbau ergänzt, der sich an der parallel zur Limmat verlaufenden Grundstücksgrenze orientiert. Aus den traditionell geschnittenen Vier-Zimmer-Wohnungen an der Hönggerstrasse 7 werden vielseitig bewohnbare Fünf-Zimmer-Wohnungen mit einem grosszügigen Wohnraum, der vom Blick auf Limmat und Löwenbräuareal profitiert. Die Wohnungen an der Hönggerstrasse 5, die vor etwas mehr als zehn Jahren saniert und neu organisiert worden sind, öffnen sich nun mit einem grossen Wohnraum zum Fluss und erhalten lateral ein zusätzliches Schlafzimmer. Hatten sich die historischen Gebäude vom damals lärmigen Industrieareal abgewandt und Treppe und Nebenräume auf der Flussseite platziert, weist die neue Raumschicht auf den veränderten urbanen Kontext hin.
Die Eingriffe in den Bestand sind auf allen Ebenen minimal. Die statische Struktur bleibt erhalten, die Raumdisposition fast unverändert. Folglich sind die Anbauten als statisch unabhängige Platten-Stützen-Bauten konzipiert, die den Bestand nicht beanspruchen. Diese Strategien tragen nicht nur zu einer markanten Reduktion grauer Energie bei, sie schaffen auch eine charakteristische Architektur, die aus der Dialektik von Alt und Neu ihren besonderen Reiz bezieht.
Die Projekte für die Hönggerstrasse 7 (2022-24) und die Hönggerstrasse 5 (2023-25) sind Beiträge zur innerstädtischen Verdichtung und Beispiele für konsequenten Bestandserhalt. Wenige kostengünstige Massnahmen schaffen dabei ein Maximum an neuem bezahlbaren Wohnraum. Beide Häuser werden mit einem flussseitigen Anbau ergänzt, der sich an der parallel zur Limmat verlaufenden Grundstücksgrenze orientiert. Aus den traditionell geschnittenen Vier-Zimmer-Wohnungen an der Hönggerstrasse 7 werden vielseitig bewohnbare Fünf-Zimmer-Wohnungen mit einem grosszügigen Wohnraum, der vom Blick auf Limmat und Löwenbräuareal profitiert. Die Wohnungen an der Hönggerstrasse 5, die vor etwas mehr als zehn Jahren saniert und neu organisiert worden sind, öffnen sich nun mit einem grossen Wohnraum zum Fluss und erhalten lateral ein zusätzliches Schlafzimmer. Hatten sich die historischen Gebäude vom damals lärmigen Industrieareal abgewandt und Treppe und Nebenräume auf der Flussseite platziert, weist die neue Raumschicht auf den veränderten urbanen Kontext hin.
Die Eingriffe in den Bestand sind auf allen Ebenen minimal. Die statische Struktur bleibt erhalten, die Raumdisposition fast unverändert. Folglich sind die Anbauten als statisch unabhängige Platten-Stützen-Bauten konzipiert, die den Bestand nicht beanspruchen. Diese Strategien tragen nicht nur zu einer markanten Reduktion grauer Energie bei, sie schaffen auch eine charakteristische Architektur, die aus der Dialektik von Alt und Neu ihren besonderen Reiz bezieht.












Copyright général des photographies: Schaub Zwicky Architekt:innen











Copyright général des plans / schémas / graphiques: Schaub Zwicky Architekt:innen
Textes Critères de Davos
Gouvernance
Das Projekt zeichnet sich durch die Zusammenarbeit der Planenden mit den beiden Hauseigentümern aus, die sich erst durch den Prozess näher kennengelernt haben. Der gemeinsame Anspruch, die historische Bauzeile sorgsam zu erweitern, führte zu einem Projekt, das dem Charakter von Ort, Bestand und Bewohnerschaft verpflichtet ist. Dazu gehörte auch die Rücksicht auf die Mieterschaft, die nach dem Umbau teils zurückgekehrt ist oder – im Fall der unveränderten Dachwohnung - gar nie ausziehen musste.
Fonctionnalité
Beide Wohnhäuser erfahren durch den An- und Umbau eine funktionale Aufwertung. Nicht nur wird an zentraler Lage neuer bezahlbarer Wohnraum geschaffen, vor allem erhalten die vormals zur Strasse gerichteten Wohnungen eine neue Orientierung zu Licht und Grün, zu Weitsicht und Flussraum. Sie ermöglichen vielfältige Wohnungen von der Atelier- über die WG- bis zur klassischen Familiennutzung.
Environnement
Das Projekt trägt zu einer qualitätsvollen inneren Verdichtung bei und ermöglicht an zentraler Lage ein Leben mit wenig Mobilität. Der konsequente Bestandserhalt trägt zu einer markanten Reduktion der grauen Energie bei. Bäume und Pflanzen im Grünstreifen zwischen Häusern und Uferweg konnten weitgehend erhalten bleiben.
Économie
Der An- und Umbau führt die beiden Häuser in einen neuen Lebenszyklus. Die neu entstandenen Wohnungsgrundrisse bieten nicht nur mehr Fläche, sondern antworten auch auf veränderte Wohn- und Lebensvorstellungen und schaffen so einen langfristigen Wertgewinn. Gleichzeitig konnte der Wert des Bestehenden durch die Instandsetzung erhalten werden.
Diversité
Beide Wohnhäuser zeichnen sich durch die Vielfalt möglicher Wohn- und Lebensformen aus: Klassische 4- und 5 Zimmer-Wohnungen werden durch kleinere Dach- und Atelierwohnungen ergänzt, die zum Wohnen und Arbeiten genutzt werden können. Die Erdgeschosse werden weiterhin als Gewerbe- oder Atelierräume vermietet und öffnen sich zum Quartier. Die durchlässigen Gartenflächen sowie ein Gemeinschaftsraum an der Hönggerstrasse 5 tragen zum Austausch unter den Bewohnenden und mit der Nachbarschaft bei.
Contexte
Die beiden aufeinander Bezug nehmenden, aber doch individuell ausgeführten Umbauten führen die Idee der historischen Parzellierung fort und treten als zusammenhängende Zeile aus einzelnen Bauten in Erscheinung. Der Erhalt des Bestands führt in Zusammenspiel mit dem kostengünstigen Anbau zu einem Projekt, das auch im gesellschaftlichen Kontext des Orts gut verankert ist und sowohl mit dem Swissmill-Tower gegenüber als auch mit der Alternativ-Kultur des benachbarten Restaurants in Dialog tritt.
Esprit du lieu
Die «Mehrfamilienhäuser an der Limmat" verweisen auf den Genius loci und dessen Wandel im Lauf der Zeit. Früher wandten sich die Häuser von Limmat und Industriequartier ab. Zur historischen repräsentativen Strassenfassade gesellt sich nun als zeitgemässes Pendant die Flussfassade mit grosszügig öffenbaren Fenstern und Balkonen. Alt und Neu erzählen so von einem unverwechselbaren Ort zwischen Industriemonumenten, Stadtfragmenten des 19. Jahrhunderts und dem Grün und Blau des Flussufers.
Beauté
Minimale Eingriffe in den Bestand und ein klar formulierter neuer Anbau schaffen gemeinsam eine charakteristische Architektur, die aus der Dialektik von Alt und Neu ihren besonderen Reiz bezieht.
Die Eigenheiten des Bestands und baurechtliche Vorgaben machen aus dem einfachen Konzept eine reiche, situativ reagierende Architektur, die nicht zuletzt die Schönheiten des Ortes zur Geltung kommen lässt.
Die Eigenheiten des Bestands und baurechtliche Vorgaben machen aus dem einfachen Konzept eine reiche, situativ reagierende Architektur, die nicht zuletzt die Schönheiten des Ortes zur Geltung kommen lässt.
Caractéristiques
Lieu
Zürich
Catégorie d'ouvrage (SIA 102)
Habitat
Type de tâche
Agrandissement
Type de procédure
Mandat direct
Coût de construction en CHF (SIA 416)
3'800'000
Surface de plancher en m² (SIA 416)
1'270
Planification
2022 → 2025
Réalisation
2025 → 2025
Année de mise en service
2025
Soumissionnaire(s) | Intervenants
Architecture
Maître d'ouvrage
Markus Nöthiger
Maître d'ouvrage
Micha Lewinsky
Directions des travaux
Génie civil
Physique du bâtiment
Physique du bâtiment