...
Revitalisierung Betriebsgebäude Eichhof Luzern

Copyright: buan architekten
Das Gebäude von Carl Griot Junior zählt architektonisch zu den herausragendsten öffentlichen Kleinbauten der Stadt Luzern. Es stammt aus der Epoche des Neuen Bauens der 1930er-Jahre und zeichnet sich durch eine markante städtebauliche Präsenz an seinem Standort an der Obergrundstrasse aus.
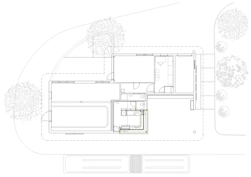
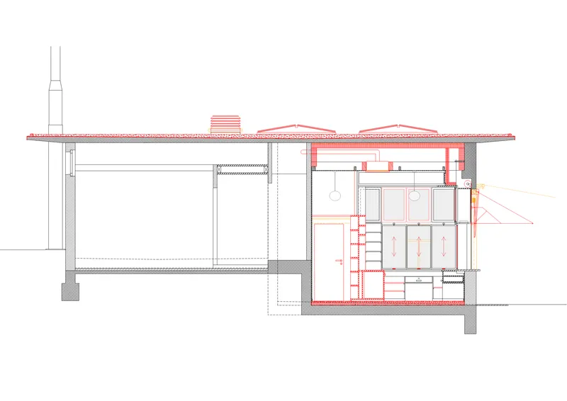
Das Betriebsgebäude – bestehend aus Kiosk, Trafostation und Lagerräumen für das Strasseninspektorat – wurde denkmalpflegerisch sorgfältig restauriert. Die originalen Innenausbauten wurden instandgesetzt und mit neuen, passenden Einbauten ergänzt.
Heute erstrahlt der Kulturkiosk in neuem Glanz und lädt Passanten*innen sowie Quartierbewohner*innen zu einem kurzen Halt in der Wartehalle ein – begleitet vom Wandgemälde «Dünkelweiher» des Künstlers Alfred Sidler.
Der Quartierkiosk Eichhof wird von der Stadt Luzern betrieben. Die Mitarbeiter werden über das Arbeitsintegrationsprogramm ReFIT rekrutiert und haben dort die Möglichkeit, Kompetenzen im Bereich Verkauf und Gastronomie zu erwerben.
Das Betriebsgebäude – bestehend aus Kiosk, Trafostation und Lagerräumen für das Strasseninspektorat – wurde denkmalpflegerisch sorgfältig restauriert. Die originalen Innenausbauten wurden instandgesetzt und mit neuen, passenden Einbauten ergänzt.
Heute erstrahlt der Kulturkiosk in neuem Glanz und lädt Passanten*innen sowie Quartierbewohner*innen zu einem kurzen Halt in der Wartehalle ein – begleitet vom Wandgemälde «Dünkelweiher» des Künstlers Alfred Sidler.
Der Quartierkiosk Eichhof wird von der Stadt Luzern betrieben. Die Mitarbeiter werden über das Arbeitsintegrationsprogramm ReFIT rekrutiert und haben dort die Möglichkeit, Kompetenzen im Bereich Verkauf und Gastronomie zu erwerben.












Copyright général des photographies: Philipp Mächler




Copyright général des plans / schémas / graphiques: buan architekten
Textes Critères de Davos
Gouvernance
Die Gouvernanz liegt bei der Stadt Luzern, als Eigentümerin des Gebäudes. Der Umbau des Baudenkmals wurde seitens der Grundeigentümerin vom Strasseninspektorat in Zusammenarbeit mit den Sozialen Diensten gesteuert. Das Projekt verbindet Denkmalpflege mit Sozialpolitik: Der Betrieb erfolgt durch das Arbeitsintegrationsprogramm ReFIT, welches Stellen für Erwerbslose schafft. Fachlich begleitet wurde die Sanierung durch das Büro buan architekten in engem Austausch mit der Denkmalpflege.
Fonctionnalité
Gelegen an einem Knotenpunkt des öffentlichen Verkehrs vereint das Projekt als hybrider Kleinbau technische, soziale und öffentliche Funktionen. Der wieder eröffnete Kiosk mit angrenzender Wartehalle fungiert als Quartiertreffpunkt und Bushaltestelle, wobei der hintere Teil des Gebäudes weiterhin als Trafostation und Lager für das Strasseninspektorat dient. Das Programm ReFIT betreibt den Kulturkiosk als soziale Ausbildungsstätte zur Vermittlung von Kompetenzen in Verkauf und Gastronomie.
Environnement
Durch die Instandsetzung der bestehenden Substanz wurde die graue Energie des Baus bewahrt, wobei der Fokus auf ressourcenschonender Denkmalpflege liegt. Bauzeitliche und schützenswerte Einbauten und Oberflächen wurden erhalten, restauriert und mit neuen passenden Einbauten ergänzt. Die Gebäudehülle wurde bestmöglich energetisch saniert. Mit der Revitalisierung des Kulturkiosks wertet die Stadt Luzern das städtebauliche Umfeld an der Obergrundstrasse ökologisch und sozial auf.
Économie
Wirtschaftlich kombiniert das Projekt Werterhalt mit effizienter Sozialinvestition: Durch die Sanierung sicherte die Stadt Luzern langfristig den Wert einer öffentlichen Immobilie. Der Betrieb via ReFIT senkt durch die Arbeitsmarktintegration langfristig die Sozialausgaben. Zudem generiert der Kiosk Eichhof lokale Wertschöpfung und bietet eine kostengünstige Infrastruktur für Gastronomie und technischen Unterhalt an zentraler Lage.
Diversité
Das Projekt fördert Vielfalt durch die Verknüpfung unterschiedlicher Lebenswelten: Sozial durch ReFIT, das Menschen mit diversen Biografien integriert, und räumlich als niederschwelliger Treffpunkt für Quartierbewohner*innen und Passant*innen. Funktional bricht das Gebäude durch die Kombination von Technik, Gastronomie und Kunst monotone Strukturen auf. Die Architektur des Neuen Bauens bereichert zudem die ästhetische Vielfalt des Stadtbilds.
Contexte
Das Projekt schafft räumliche Kohärenz, indem das Erbe des Neuen Bauens präzise in den modernen städtebaulichen Kontext der Obergrundstrasse integriert wird. Die Sanierung bewahrt Typologie und Materialität der 1930er-Jahre und ergänzt sie durch zeitgenössische Einbauten, die den Dialog zwischen Gestern und Heute stärken. Das Wandgemälde von Alfred Sidler vertieft den lokalen Bezug, während die Nutzung des Kulturkiosk den Ort als lebendigen Treffpunkt im Quartier neu verankert.
Esprit du lieu
Der Genius Loci verbindet die Ästhetik der Moderne mit sozialem Leben. Die Architektur von Carl Griot Junior und Sidlers Kunst bewahren die historische Identität des Ortes und verfügen über eine markante städtebauliche Präsenz. Mit seiner diversen Nutzung als Traforaum, Wartehalle und Quartierkiosk bleibt der Geist des Dienstes am Gemeinwesen lebendig. Das Arbeitsintegrationsprogramm transformiert die einstige Funktionalität in eine zeitgemässe, soziale und kulturelle Relevanz.
Beauté
Die Schönheit des Projekts erwächst aus der Harmonie von funktionaler Klarheit und stimmiger Detaillösungen. Die Stadt Luzern hat durch die Restaurierung des Baus von Carl Griot Junior die ästhetische Kraft des Neuen Bauens revitalisiert. Das Zusammenspiel von originalen Innenausbauten, modernen Ergänzungen und Sidlers Wandgemälde schaffen eine stimmige Atmosphäre. Die elegante Erscheinung des Gebäudes und die hohe architektonische Qualität werden durch die Instandsetzung erhalten und gestärkt.
Caractéristiques
Lieu
Luzern
Catégorie d'ouvrage (SIA 102)
Autre
Type de tâche
Rénovation
Type de procédure
Mandat direct
Coût de construction en CHF (SIA 416)
400'000.-
Surface de plancher en m² (SIA 416)
145
Planification
2022 → 2024
Réalisation
2024 → 2025
Année de mise en service
2025
Soumissionnaire(s) | Intervenants
Maître d'ouvrage
Conservation du patrimoine
Physique du bâtiment
Photographie