...
Maison des Séniors - Résidence Christinger

Copyright: acau architecture sa
La résidence Christinger offre à la location quinze appartements destinés aux seniors. Le projet s’inscrit dans les attentes du lègue de Mme Christinger, qui a transmis à la commune une parcelle de 1’933 m² ainsi que la villa construite dans les années 40. Ce geste généreux, explicitement dédié aux séniors de la commune, a conduit la commune de Pregny-Chambésy à engager une réflexion sur la typologie des logements attendus par une population dont l’autonomie décline, tout en maintenant un haut niveau de confort, d’indépendance et de qualité d’habitat.
Le projet commence par le jardin. La renaturation du ruisseau et l’ouverture du jardin au public participent au maillage du réseau piétonnier de la commune. Le nouveau cheminement sur la rive droite du nant des Châtaigniers permet de relier les équipements scolaires de la commune au centre sportif (piscine communale et équipements sportifs) par un parcours piéton sécurisé. Cette séquence qui se poursuit après le centre sportif, connecte le parcours piéton existant qui descend vers la rive du Lac Léman.
La parcelle est ouverte au public et le ruisseau renaturé, associe l’intervention paysagère au concept typologique du bâtiment.
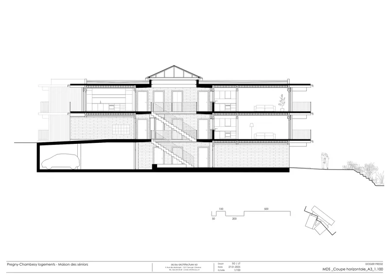
Le bâtiment s’articule autour d’un patio central qui invite le prolongement du jardin à l’intérieur du projet. Ce cœur du dispositif, qui entretient l’ambiguïté entre l’extérieur et l’intérieur évite les codes d’un bâtiment institutionnel. La circulation extérieure rejoint le patio et distribue des appartements indépendants. Des seuils progressifs marquent la transition entre espaces partagés et sphère privée. L’ensemble compose des parcours lisibles, favorisant l’autonomie de chacun et le partage des espaces communs.
Plusieurs espaces communs — cuisine commune, salle de sport, bibliothèque, buanderie, chambre d’amis et jardin — s’ajoutent au patio et renforcent la vie collective.
Le projet commence par le jardin. La renaturation du ruisseau et l’ouverture du jardin au public participent au maillage du réseau piétonnier de la commune. Le nouveau cheminement sur la rive droite du nant des Châtaigniers permet de relier les équipements scolaires de la commune au centre sportif (piscine communale et équipements sportifs) par un parcours piéton sécurisé. Cette séquence qui se poursuit après le centre sportif, connecte le parcours piéton existant qui descend vers la rive du Lac Léman.
La parcelle est ouverte au public et le ruisseau renaturé, associe l’intervention paysagère au concept typologique du bâtiment.
Le bâtiment s’articule autour d’un patio central qui invite le prolongement du jardin à l’intérieur du projet. Ce cœur du dispositif, qui entretient l’ambiguïté entre l’extérieur et l’intérieur évite les codes d’un bâtiment institutionnel. La circulation extérieure rejoint le patio et distribue des appartements indépendants. Des seuils progressifs marquent la transition entre espaces partagés et sphère privée. L’ensemble compose des parcours lisibles, favorisant l’autonomie de chacun et le partage des espaces communs.
Plusieurs espaces communs — cuisine commune, salle de sport, bibliothèque, buanderie, chambre d’amis et jardin — s’ajoutent au patio et renforcent la vie collective.












Copyright général des photographies: acau architecture / Fédéral Studio










Copyright général des plans / schémas / graphiques: acau architecture sa
Textes Critères de Davos
Gouvernance
Le projet trouve son origine dans le lègue de Mme Christinger, destiné aux séniors de la commune qui a conduit une réflexion sur la typologie des logements adaptés à une population vieillissante.
Une collaboration avec l’EMS voisin est engagée, portant sur l’intégration de la parcelle au réseau piéton et l’accès à des services à la personne
La démarche de réemploi a sollicité les filières locales et les services communaux (voirie, social, espaces verts).
Une collaboration avec l’EMS voisin est engagée, portant sur l’intégration de la parcelle au réseau piéton et l’accès à des services à la personne
La démarche de réemploi a sollicité les filières locales et les services communaux (voirie, social, espaces verts).
Fonctionnalité
La résidence s’organise autour d’un patio central qui prolonge les espaces extérieurs et structure la distribution des appartements. Son climat n’est pas contrôlé : la température est déphasée par l’apport solaire en hiver et par une ventilation naturelle en été.
Le patio entretient l’ambiguïté d’un lieu intermédiaire, entre distribution, lieu de rencontre et espace fédérateur. Le projet favorise un usage intuitif des communs, soutient l’autonomie des habitants et assure leur intimité.
Le patio entretient l’ambiguïté d’un lieu intermédiaire, entre distribution, lieu de rencontre et espace fédérateur. Le projet favorise un usage intuitif des communs, soutient l’autonomie des habitants et assure leur intimité.
Environnement
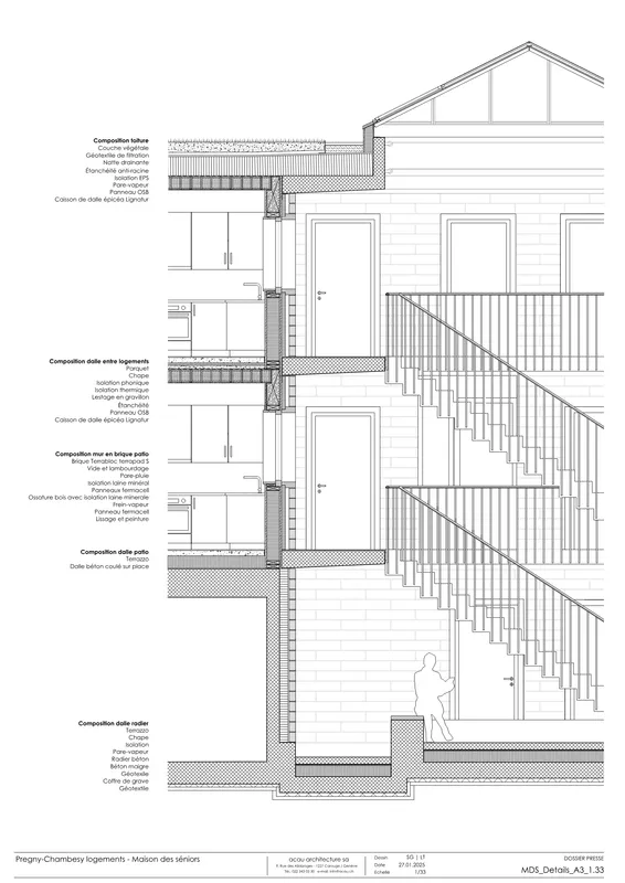
Le projet mobilise des matériaux biosourcés issus des filières locales. La renaturation du ruisseau réintroduit un élément écologique majeur dans le site, soutient la biodiversité et participe à la gestion naturelle des eaux météores captées par le bâtiment.
Le patio crée un climat intermédiaire, régulé par les briques de terre crue et la ventilation naturelle. La toiture végétalisée atténue les îlots de chaleur et optimise le rendement des panneaux solaires.
Le patio crée un climat intermédiaire, régulé par les briques de terre crue et la ventilation naturelle. La toiture végétalisée atténue les îlots de chaleur et optimise le rendement des panneaux solaires.
Économie
Toute la construction sollicite les filières locales. Le bâtiment est certifié « Bois Suisse ». La sobriété constructive et le recours à des solutions passives renforcent une économie durable.
La démarche de réemploi, précédée d’une analyse coût carbone–coût financier, réduit les charges matérielles. Le fonctionnement climatique du patio – plus chaud en hiver, plus frais en été – génère des économies d’exploitation et offre un lieu de vie hors surface de référence énergétique.
La démarche de réemploi, précédée d’une analyse coût carbone–coût financier, réduit les charges matérielles. Le fonctionnement climatique du patio – plus chaud en hiver, plus frais en été – génère des économies d’exploitation et offre un lieu de vie hors surface de référence énergétique.
Diversité
Des usages variés sont organisés autour du patio et des espaces communs : cuisine commune, salle de sport, bibliothèque, buanderie et chambre d’amis. Cette diversité répond aux besoins des habitants et favorise les sociabilités. La gradation entre espaces partagés et logements permet des pratiques différenciées et un cadre de vie inclusif.
Le jardin et son verger, intégrés au parcours des écoliers vers le centre sportif, renforcent la diversité des usages et les synergies intergénérationnelles.
Le jardin et son verger, intégrés au parcours des écoliers vers le centre sportif, renforcent la diversité des usages et les synergies intergénérationnelles.
Contexte
Le contexte est valorisé par la renaturation du ruisseau. L’élément paysager participe à ordonner l’usage du jardin et réserve la privacité des terrasses des appartements du rez-de-chaussée.
La rive droite du nant est ouverte au public, offre un verger de fruits comestibles et étend le maillage du réseau piéton de la commune.
La rive droite du nant est ouverte au public, offre un verger de fruits comestibles et étend le maillage du réseau piéton de la commune.
Esprit du lieu
Le projet vise à éviter le caractère institutionnel d’un équipement médico-social en travaillant finement les seuils, par leur matérialité et leur climat, afin de préserver l’autonomie et la dignité des résidents.
Organisés autour du patio, les appartements et les espaces communs favorisent les liens sociaux, renforcés par des fenêtres intérieures créant une relation visuelle bienveillante entre les logements et le patio.
Organisés autour du patio, les appartements et les espaces communs favorisent les liens sociaux, renforcés par des fenêtres intérieures créant une relation visuelle bienveillante entre les logements et le patio.
Beauté
L’esthétique du projet repose sur l’association de matières contrastées et cohérentes : terrazzo, terre crue et cuivre brut, mélèze, chêne et épicéa lasuré. Cette mise en œuvre soignée valorise la simplicité constructive.
Les matériaux minéraux prolongent les aménagements extérieurs à l’intérieur, tandis que le bois confère le caractère des espaces privés.
L’harmonie des textures et la clarté architecturale produisent une beauté sobre, ancrée dans la matérialité du site et l’usage quotidien.
Les matériaux minéraux prolongent les aménagements extérieurs à l’intérieur, tandis que le bois confère le caractère des espaces privés.
L’harmonie des textures et la clarté architecturale produisent une beauté sobre, ancrée dans la matérialité du site et l’usage quotidien.
Caractéristiques
Lieu
Chemin des Chataigners / 1292 Chambésy
Catégorie d'ouvrage (SIA 102)
Habitat
Type de tâche
Nouvelle construction
Type de procédure
Appel d'offre
Coût de construction en CHF (SIA 416)
Surface de plancher en m² (SIA 416)
1'825 m2
Planification
2021 → 2023
Réalisation
2023 → 2025
Année de mise en service
2025
Soumissionnaire(s) | Intervenants
Construction bois
Construction béton
Architecture du paysage
Physique du bâtiment