...
(a)round corners

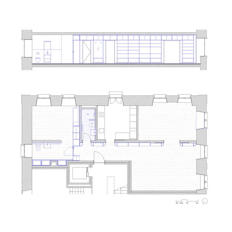
Das Projekt ist der Umbau einer Wohnung am See. Der Entwurf untersucht die Transformation von Bestandswohnungen mit minimalen Eingriffen in den Rohbau sowie das Potenzial von Inneneinbauten zur Anpassung zeitgenössischer Wohnformen.
Ausgangspunkt war der Wunsch, die Wohnung nicht nur zu sanieren, sondern ihr eine klare räumliche Ordnung und einen eigenständigen Charakter zu geben. Ziel war eine offene Wohnstruktur, die durch integrierte Einbauten vielzählige Einzelmöbel ersetzt und die Qualitäten traditioneller Einbauschränke mit der Flexibilität heutigen Wohnens verbindet.
Die Wohnung in Erlenbach wurde nicht nur erneuert, sondern neu interpretiert. Oberflächen wurden überarbeitet, der Boden ersetzt und die Räume durch präzise Einbauten neu gegliedert. Zentrales Element ist eine durchgehende Möbelstruktur, die sich als dünne Schicht durch die Wohnung zieht. Je nach Raum übernimmt sie unterschiedliche Funktionen – als Regal, Durchgang, Garderobe oder Arbeitsnische – und verbindet die Räume miteinander. Übergänge erfolgen nicht über harte Kanten, sondern entlang gerundeter Leibungen. Der Weg durch die Wohnung wird so zu einer fliessenden Raumfolge.
Die Einbauten sind furniert und in einem mattblauen Ton gebeizt, der die Lichtfarbe der Lage am See aufnimmt und je nach Lichteinfall variiert. Die Struktur des Eichenfurniers bleibt sichtbar und tritt in Dialog mit dem neuen Parkett aus langen Eichendielen. Bestehende Fensternischen, Radiatoren und Leibungen wurden in einem hellen Taubengrau zusammengefasst. Im Bad erzeugt ein mineralischer Naturputz eine materielle Präsenz, gerundete Ecken betonen die Weichheit und Plastizität des Raums.
Ausgangspunkt war der Wunsch, die Wohnung nicht nur zu sanieren, sondern ihr eine klare räumliche Ordnung und einen eigenständigen Charakter zu geben. Ziel war eine offene Wohnstruktur, die durch integrierte Einbauten vielzählige Einzelmöbel ersetzt und die Qualitäten traditioneller Einbauschränke mit der Flexibilität heutigen Wohnens verbindet.
Die Wohnung in Erlenbach wurde nicht nur erneuert, sondern neu interpretiert. Oberflächen wurden überarbeitet, der Boden ersetzt und die Räume durch präzise Einbauten neu gegliedert. Zentrales Element ist eine durchgehende Möbelstruktur, die sich als dünne Schicht durch die Wohnung zieht. Je nach Raum übernimmt sie unterschiedliche Funktionen – als Regal, Durchgang, Garderobe oder Arbeitsnische – und verbindet die Räume miteinander. Übergänge erfolgen nicht über harte Kanten, sondern entlang gerundeter Leibungen. Der Weg durch die Wohnung wird so zu einer fliessenden Raumfolge.
Die Einbauten sind furniert und in einem mattblauen Ton gebeizt, der die Lichtfarbe der Lage am See aufnimmt und je nach Lichteinfall variiert. Die Struktur des Eichenfurniers bleibt sichtbar und tritt in Dialog mit dem neuen Parkett aus langen Eichendielen. Bestehende Fensternischen, Radiatoren und Leibungen wurden in einem hellen Taubengrau zusammengefasst. Im Bad erzeugt ein mineralischer Naturputz eine materielle Präsenz, gerundete Ecken betonen die Weichheit und Plastizität des Raums.
round%20corners.jpg)












Textes Critères de Davos
Gouvernance
Der Umbau der Wohnung ist ein Eingriff im Bestand, der sowohl den spezifischen Bedürfnissen der Bauherrschaft als auch den vorhandenen Qualitäten der bestehenden Bausubstanz Rechnung trägt.
Bauherrschaft und Architekten entwickelten Materialität, Farbigkeit und Details gemeinsam. Ein enger Austausch mit den Handwerkern stellte die präzise Umsetzung sicher. Hochwertige Einbauten gliedern und erweitern die Räume und stärken sowohl die räumliche als auch die sinnliche Qualität der Wohnung.
Bauherrschaft und Architekten entwickelten Materialität, Farbigkeit und Details gemeinsam. Ein enger Austausch mit den Handwerkern stellte die präzise Umsetzung sicher. Hochwertige Einbauten gliedern und erweitern die Räume und stärken sowohl die räumliche als auch die sinnliche Qualität der Wohnung.
Fonctionnalité
Die neue Raumordnung folgt einer klaren, intuitiven Logik. Eine durchgehende Möbelstruktur übernimmt unterschiedliche Funktionen, verbindet die Räume und bildet eine fliessende Raumfolge. Stauraum, Arbeitsnischen und Übergänge sind integraler Bestandteil dieser Struktur. Das Möbel dient als neues Rückgrat der Wohnung und steigert Übersichtlichkeit, Nutzungsqualität und räumlichen Charakter.
Environnement
Der Umbau setzt auf Weiterbauen im Bestand. Ein multifunktionales Möbel ordnet die Nutzung und reduziert den Bedarf an zusätzlichen Einzelmöbeln. Bestehende Bauteile wurden erhalten und eine Auswahl langlebiger Materialien ermöglicht eine nachhaltige Nutzung und eine einfache Pflege über viele Jahre.
Die Einbauten sind reversibel und reparierbar und berücksichtigen damit den baulichen Lebenszyklus. Im Bad wurden ein Naturputz für die Wände und Feinsteinzeug für den Boden eingesetzt.
Die Einbauten sind reversibel und reparierbar und berücksichtigen damit den baulichen Lebenszyklus. Im Bad wurden ein Naturputz für die Wände und Feinsteinzeug für den Boden eingesetzt.
Économie
Gezielte Eingriffe und eine klare Gestaltung schaffen hohen Mehrwert. Die bestehenden Räume werden optimal genutzt, die neue Möbelstruktur übernimmt Funktionen, die sonst von zahlreichen Einzelmöbeln wahrgenommen würden. Investiert wurde in handwerkliche Qualität, Dauerhaftigkeit und eine präzise Ausführung.
Diversité
Die Möbelstruktur zoniert flexibel und ermöglicht unterschiedliche Nutzungen. Arbeiten, Wohnen und Rückzug können sich überlagern. Fliessende Übergänge fördern Offenheit auf kompakter Fläche.
Contexte
Der Umbau greift minimal in den Rohbau ein und respektiert die bestehende Gebäudestruktur. Die räumliche Logik und die Ausrichtung zum See werden dadurch gestärkt. Die ruhige Farbigkeit nimmt Bezug auf die Lichtstimmung am Wasser. Sichtbares Holz und präzise Details treten in Dialog mit der hochwertigen Bestandsbaute und verleihen der Wohnung einen kraftvollen Charakter im Bestand.
Esprit du lieu
Der Umbau entwickelt durch präzise Einbauten im Bestand eine eigenständige Identität. Die durchgehende Möbelstruktur, gerundete Leibungen und handwerklich bearbeitete Oberflächen erzeugen eine prägnante räumliche Atmosphäre. Sichtbare Holzoberflächen und die haptische Qualität mineralischer Putze betonen die natürliche Materialität. Die Lage am Zürichsee spiegelt sich in der Identität der Wohnung wider.
Beauté
Die Schönheit liegt in der Klarheit der Idee und der sinnlichen Materialqualität. Farbe, Materialität, Licht und Proportionen sind fein aufeinander abgestimmt. Gerundete Kanten, ruhige Flächen und präzise Details schaffen eine stille, selbstverständliche Atmosphäre und steigern die Wohnqualität.
Caractéristiques
Lieu
Erlenbach ZH
Catégorie d'ouvrage (SIA 102)
Habitat
Type de tâche
Transformation
Type de procédure
Mandat direct
Coût de construction en CHF (SIA 416)
Keine Angabe
Surface de plancher en m² (SIA 416)
120
Planification
2025 → 2025
Réalisation
2025 → 2025
Année de mise en service
2025
Soumissionnaire(s) | Intervenants