...
3 TINY HOUSES

Copyright: @Paola_Corsini+ KLR ARCHITECTES
Implanté sur les pentes de Charmey, au cœur des Préalpes fribourgeoises, ce projet se compose de trois volumes modestes perchés sur un terrain abrupt. Répondant au souhait du client de réunir trois générations, l'architecture privilégie la simplicité, la durabilité et l'authenticité dans une démarche de sobriété assumée.
À l'inverse des implantations habituelles suivant les courbes de niveau, les bâtiments s'insèrent ici perpendiculairement à la pente. Ce parti pris libère des coulées vertes, préserve la perméabilité vers le village et intègre harmonieusement les habitations au sein d’un verger existant.
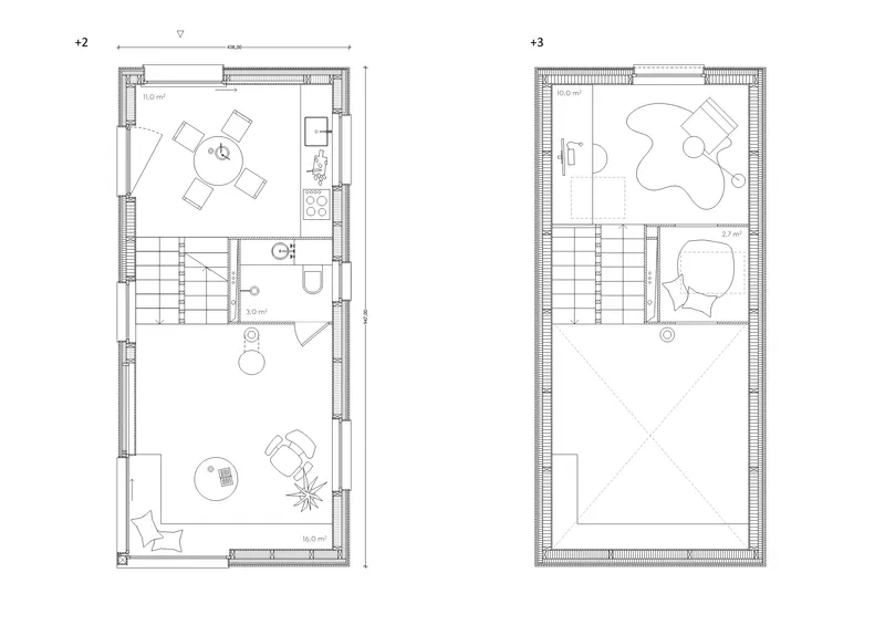
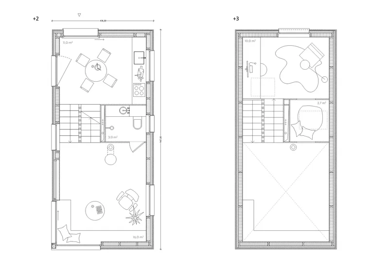
L’emprise au sol minimale (4 m x 10 m) limite l’impact sur le site et renoue avec les proportions des constructions en bois traditionnelles. La structure en ossature bois, les dalles en bois massif local et la façade en bois brûlé, ainsi que l’absence de parements intérieurs, affirment la radicalité constructive du projet.
À l'intérieur, l'espace s'articule sur six demi-niveaux reliés par un escalier ajouré, optimisant chaque mètre carré au profit de volumes de vie ouverts et fluides. Un plateau extérieur entre les trois volumes met en relation de plain-pied l’aval des deux volumes du haut (entrées) avec l’amont du volume du bas (cuisine) et crée ainsi un espace extérieur de rencontre pour les habitant-e-s.
À l'inverse des implantations habituelles suivant les courbes de niveau, les bâtiments s'insèrent ici perpendiculairement à la pente. Ce parti pris libère des coulées vertes, préserve la perméabilité vers le village et intègre harmonieusement les habitations au sein d’un verger existant.
L’emprise au sol minimale (4 m x 10 m) limite l’impact sur le site et renoue avec les proportions des constructions en bois traditionnelles. La structure en ossature bois, les dalles en bois massif local et la façade en bois brûlé, ainsi que l’absence de parements intérieurs, affirment la radicalité constructive du projet.
À l'intérieur, l'espace s'articule sur six demi-niveaux reliés par un escalier ajouré, optimisant chaque mètre carré au profit de volumes de vie ouverts et fluides. Un plateau extérieur entre les trois volumes met en relation de plain-pied l’aval des deux volumes du haut (entrées) avec l’amont du volume du bas (cuisine) et crée ainsi un espace extérieur de rencontre pour les habitant-e-s.












Copyright général des photographies: @Paola_Corsini


.pdf.webp)






.pdf.webp)
Copyright général des plans / schémas / graphiques: @KLR ARCHITECTES
Textes Critères de Davos
Gouvernance
Le projet illustre une gouvernance exemplaire par une collaboration étroite et de confiance avec le maître d'ouvrage pour un habitat intergénérationnel. L'engagement envers un artisanat local renforce la valeur partagée et la qualité du processus. Les échanges avec la commune, bien que revendiquant des valeur terriennes et traditionnelles, ont donné lieu à un soutien de la part des autorités enversun projet qui cherche à réinterpréter le partimoine traditionnel du village et à le faire évoluer.
Fonctionnalité
L'organisation en demi-niveaux et l'absence de dégagements optimisent chaque mètre carré pour répondre aux besoins d'une vie simple. Tous les espaces sont en relation directe et rapide d'accès. Chaque geste du quotien demande peu d'énergie.
Environnement
Le projet préserve l'environnement par une emprise au sol minimale et l'usage de bois local. L'absence de parements et le bois brûlé limitent l'énergie grise, s'inscrivant dans une démarche de sobriété écologique. Le choix initiale de limiter la surface habitable, défend une utilisation rationnelle des ressources en terrain.
Économie
En privilégiant le bois du village voisin, le projet soutient l'économie régionale et réduit les coûts de cycle de vie. Cette architecture durable privilégie l'investissement à long terme sur le gain immédiat.
Diversité
La conception pour trois générations favorise la mixité sociale et le lien intergénérationnel. Les espaces ouverts et le plateau collectif créent des lieux de rencontre inclusifs au sein du verger.
Contexte
L'implantation perpendiculaire à la pente respecte la topographie tout en créant des coulées vertes. Le projet dialogue avec l'image villageoise de Charmey en réinterprétant la construction bois traditionnelle. La vue vers le village montre la silouhette des PIgnons et non les lignes horzontales d'une architecture optimisées pour rendre la vue depuis l'intérieur des logment la plus étendue possible.
Esprit du lieu
L'insertion dans un verger et le recours aux matériaux bruts renforcent l'identité locale. Le projet suscite un attachement émotionnel en s'inscrivant avec modestie dans le paysage fribourgeois
Beauté
La beauté du projet réside dans sa justesse constructive et son esthétique épurée. L'harmonie entre les trois volumes et le site naturel procure un bien-être sensoriel et une qualité visuelle durable.
Caractéristiques
Lieu
CHARMEY
Catégorie d'ouvrage (SIA 102)
Habitat
Type de tâche
Nouvelle construction
Type de procédure
Mandat direct
Coût de construction en CHF (SIA 416)
environ 650 000 CHF/maison
Surface de plancher en m² (SIA 416)
120 m2 / maison
Planification
2021 → 2025
Réalisation
2024 → 2025
Année de mise en service
2025
Soumissionnaire(s) | Intervenants