...
Kindergarten Untervaz

Copyright: Laura Egger
Der Kindergarten in Untervaz soll für die Kinder ein Ort der Geborgenheit sein, an dem sie ihren natürlichen Bewegungsdrang ausleben und sich ihre Umwelt selbständig aneignen können. Natürliche Materialien schaffen eine sinnliche Atmosphäre, die sich positiv auf die Entwicklung der Kinder in dieser prägenden Lebensphase auswirkt. Die Architektur unterstützt die pädagogische Arbeit der Lehrpersonen. Hanfkalk, einheimische Hölzer, Lehmputz und Schafwollfilz erzeugen im Inneren eine beruhigende Raumstimmung. Aussen ermöglichen Sand und Steine, Wasser sowie Gräser, Sträucher und Bäume anregende Naturerfahrungen. Sonnenlicht und Schatten werden unmittelbar erlebt, der Wandel der Jahreszeiten sinnlich erfahrbar gemacht.
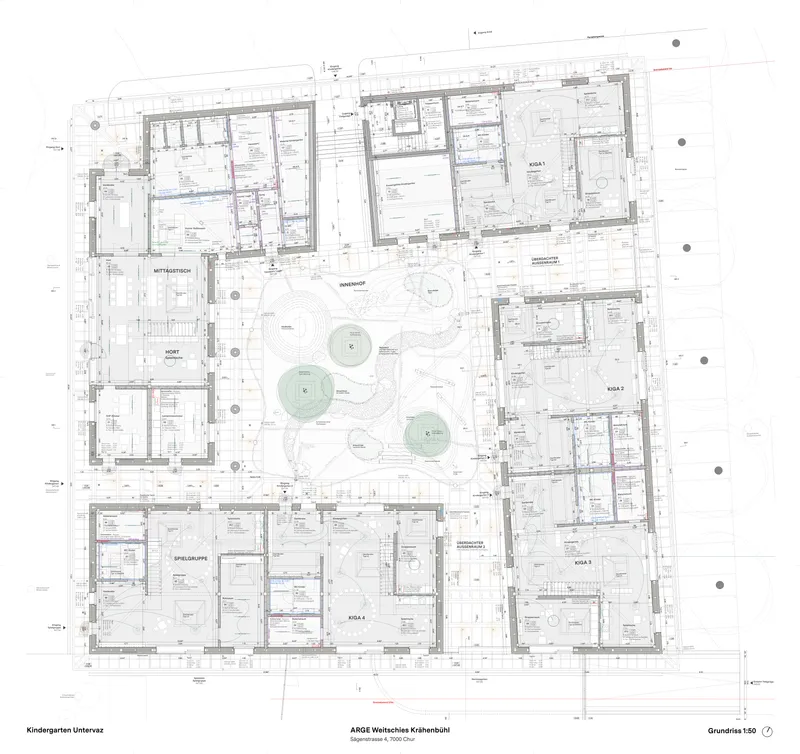
Der Neubau bildet den Auftakt zum zentralen Schulareal und schliesst es gegen Osten ab. Durch die Eingeschossigkeit, das umlaufende Satteldach und die Gliederung der Fassaden gelingt es, trotz des grossen Volumens zwischen den Schulbauten und den angrenzenden Einfamilienhäusern zu vermitteln und eine kindgerechte Massstäblichkeit zu erzeugen.
Kindergarten, Mittagstisch/Hort und Spielgruppe gruppieren sich um einen Innenhof unter grossem Dach. Dazwischen entstehen grosszügige, überdachte Aussenräume. Durch die leicht abfallende Topographie entsteht ein Sockelgeschoss mit Dorf-Parkgarage. Die vier Kindergärten werden über den Innenhof erschlossen, jeder mit eigener Eingangstür. Der Mittagstisch/Hort orientiert sich zum Schulareal und bildet zusammen mit dem neuen Sportplatz einen zusätzlichen Aufenthaltsort mit Brunnen, Tischen und Bänken. Die Spielgruppe richtet sich nach Süden zum öffentlichen Spielplatz aus.
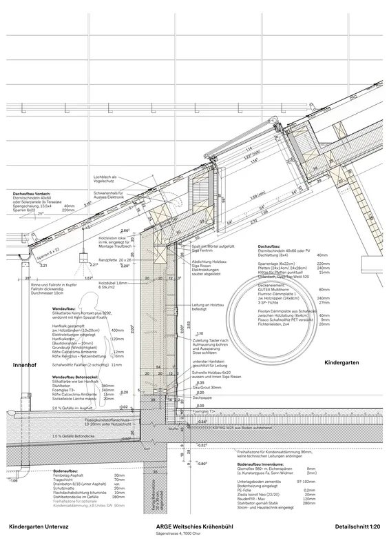
Die 52 cm dicke, diffusionsoffene Wand aus Hanfkalk übernimmt Raumabschluss und Wärmedämmung zugleich. Das Holz für Tragstruktur und Innenausbau stammt aus dem Wald der Gemeinde und ist unverleimt. Schafwolle, Holz und Lehmputz sorgen für eine angenehme Raumakustik. Das Gebäude kommt mit wenig Technik aus, ohne mechanische Lüftung und ohne Kühlung.
Der Neubau bildet den Auftakt zum zentralen Schulareal und schliesst es gegen Osten ab. Durch die Eingeschossigkeit, das umlaufende Satteldach und die Gliederung der Fassaden gelingt es, trotz des grossen Volumens zwischen den Schulbauten und den angrenzenden Einfamilienhäusern zu vermitteln und eine kindgerechte Massstäblichkeit zu erzeugen.
Kindergarten, Mittagstisch/Hort und Spielgruppe gruppieren sich um einen Innenhof unter grossem Dach. Dazwischen entstehen grosszügige, überdachte Aussenräume. Durch die leicht abfallende Topographie entsteht ein Sockelgeschoss mit Dorf-Parkgarage. Die vier Kindergärten werden über den Innenhof erschlossen, jeder mit eigener Eingangstür. Der Mittagstisch/Hort orientiert sich zum Schulareal und bildet zusammen mit dem neuen Sportplatz einen zusätzlichen Aufenthaltsort mit Brunnen, Tischen und Bänken. Die Spielgruppe richtet sich nach Süden zum öffentlichen Spielplatz aus.
Die 52 cm dicke, diffusionsoffene Wand aus Hanfkalk übernimmt Raumabschluss und Wärmedämmung zugleich. Das Holz für Tragstruktur und Innenausbau stammt aus dem Wald der Gemeinde und ist unverleimt. Schafwolle, Holz und Lehmputz sorgen für eine angenehme Raumakustik. Das Gebäude kommt mit wenig Technik aus, ohne mechanische Lüftung und ohne Kühlung.











Copyright général des photographies: Laura Egger








Copyright général des plans / schémas / graphiques: ARGE Weitschies Krähenbühl
Textes Critères de Davos
Gouvernance
Ein ordentlich durchgeführter Wettbewerb mit kompetenter Jury stand am Anfang des Projekts. Die demokratischen Strukturen machen den Neubau zu einem Werk des ganzen Dorfes: Die Bevölkerung sagte Ja zum Projekt und den begleitenden Entscheidungsträgern. Schulwart und Kindergärtnerinnen waren in die Planung eingebunden und prüften fortlaufend die Alltagstauglichkeit. Die Gemeinde übernahm Verantwortung und realisierte einen vorbildlichen Bau im öffentlichen Interesse.
Fonctionnalité
Hoftyp, Grundriss und natürliche Materialien schaffen für Kinder einen geschützten, gesunden Entwicklungsort und unterstützen die Lehrpersonen im Alltag. Das Dorf gewinnt qualitätsvolle Aussenräume. Die fünf Kindergarteneinheiten sind flexibel nutzbar und gleichen Einwohnerschwankungen aus. Und wenn eine Kindergärtnerin begeistert von ihrem über 3m hohen Christbaum erzählt, zeigt dies die Qualität und Anpassungsfähigkeit der hohen Räume. Zukünftige Nutzungsanpassungen scheinen denkbar.
Environnement
Mit den natürlichen und kreislauffähigen Materialien Holz und Hanfkalk wurde ein konstruktiv einfaches Haus mit wenig Technik gebaut. Das Holz trägt, der Hanfkalk dämmt und schützt. 71% von dem 443m3 verbauten Holz stammt aus dem Gemeindewald. Neben den ökologischen Vorteilen schafft Holz aus dem eigenen Wald eine starke emotionale Verbindung und ein Bewusstsein für Materialkreisläufe. Einheimische Sträucher und Bäume schaffen wertvolle Lebensräume und sensibilisieren die Kinder für Umwelthemen.
Économie
Die enge Zusammenarbeit zwischen Baumanagement und Architekten stärkte das Vertrauen seitens Bauherrschaft in die Baukosten und half, alle Entscheidungen fundiert fällen zu können. Diese Konstellation im Zusammenspiel mit einer kompetenten Bauherrenvertretung führte zu einer deutlichen Einhaltung des bewilligten Kredits.
Über 800m2 PV-Module und 57 Parkplätze generieren Einnahmen und die Verwendung des eigenen Holzes stärkt die lokale Holzwertschöpfung.
Über 800m2 PV-Module und 57 Parkplätze generieren Einnahmen und die Verwendung des eigenen Holzes stärkt die lokale Holzwertschöpfung.
Diversité
Der Kindergarten nimmt die Verantwortung als öffentliches Gebäude wahr und ermöglicht das Zusammenkommen und schafft Orte der Begegnung. Für Kinder wurden vielfältige Orte zum Spielen und Entdecken geschaffen, sowohl geschützt im Innern als auch öffentlich im Aussenraum mit dem Spielplatz, Sportplatz und dem neu geschaffenen Platz mit Brunnen, Tischen und Bänken.
Contexte
Der Neubau vermittelt zwischen den Einfamilienhäusern und Schulbauten. Trotz beachtlicher Grösse fügt er sich selbstverständlich in die Umgebung ein und nutzt die Hanglage geschickt für die Einstellhalle im Sockel.
Lokale Handwerker und Planer mit einer Offenheit für neue Konstruktionen prägten den Bauprozess. Menschen, die den Ort und ihre Konstruktionen kennen, mutig weiterdenken und teils langwierige Verhandlungen der Baukultur mit dem Bauherrn nicht scheuten.
Lokale Handwerker und Planer mit einer Offenheit für neue Konstruktionen prägten den Bauprozess. Menschen, die den Ort und ihre Konstruktionen kennen, mutig weiterdenken und teils langwierige Verhandlungen der Baukultur mit dem Bauherrn nicht scheuten.
Esprit du lieu
In einer für Kinder sehr wichtigen Entwicklungsphase soll der Kindergarten zum Resonanzraum werden. Die reichhaltige Architektur und haptischen Materialien wecken Emotionen und Lust am Spielen und Entdecken. Die Kinder füllen den Raum mit ihrem Tun mit Leben und geben etwas zurück. Diese Wechselbeziehung erzeugt eine starke Verbundenheit und Identitität, die weit über das Kindergartenalter hinaus einen Ort im kollektiven Bewusstsein schafft.
Beauté
Der Kindergarten zeigt, wie gut proportionierte und durchdachte Räume sowie sinnstiftende und natürliche Materialien einen Ort verbessern können. Die Architektur ermöglicht Beziehungen und Berührungen auf unterschiedlichen Ebenen, die helfen, flüchtige Momente der Schönheit verfügbar zu machen. Haptische Erfahrungen, differenzierte Lichtstimmungen, räumliche Komplexität, Wahrnehmung der Umwelteinflüsse und die Neugierde von Kindern waren treibende Entwurfsfaktoren.
Caractéristiques
Lieu
7204 Untervaz
Catégorie d'ouvrage (SIA 102)
Enseignement, formation, recherche
Type de tâche
Nouvelle construction
Type de procédure
Concours
Type de concours
Concours sélectifs
Coût de construction en CHF (SIA 416)
BKP 1-9: 12'400'000 Kindergarten mit Einstellhalle, 900'000 Sportplatz
Surface de plancher en m² (SIA 416)
3'338
Planification
2022 → 2025
Réalisation
2024 → 2025
Année de mise en service
2025
Soumissionnaire(s) | Intervenants
Architecture
Architecture du paysage
Génie civil
Maître d'ouvrage
Technique du bâtiment
Conception électrique
Construction béton
Construction bois
Construction bois
Directions des travaux
Géologie/géotechnique
Physique du bâtiment