...
AVS Amt für Verbraucherschutz Kanton Aargau

Copyright: Federico Farinatti
Das Amt für Verbraucherschutz (AVS) gewährleistet den Schutz der Gesundheit von Menschen und Tieren. Rund 80 Mitarbeitende führen Betriebskontrollen durch, analysieren Proben in eigenen Laboren und bearbeiten Meldungen aus der Bevölkerung. Geprüft werden unter anderem Lebensmittel, die Wasserqualität öffentlicher Schwimmbäder sowie die Gesundheit importierter Tiere. Nach über 100 Jahren an verschiedenen Standorten bezog das AVS im Oktober 2024 einen Neubau auf der neuen Campusanlage des Kantons Aargau in Unterentfelden.
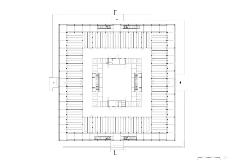
Der zweigeschossige Neubau ist als kompakter, quadratischer Solitär mit 50 Metern Seitenlänge konzipiert. Er wurde in einer hybriden Holz-Betonbauweise realisiert. Ein zentraler Betonkern nimmt die hochsensiblen Messlabore auf und sorgt für die statische Aussteifung. Labore und Büros sind konzentrisch darum angeordnet und weitgehend in Holzbauweise ausgeführt. Rund 2600 Kubikmeter Holz aus dem Aargauer Staatswald sowie ein hoher Anteil Recyclingbeton prägen die Konstruktion. Fotovoltaik, eine Grundwasserwärmepumpe und biodivers gestaltete Aussenräume ermöglichen die Zertifizierung nach Minergie-P-Eco.
Als freistehender Pavillon bildet das Gebäude den Auftakt zur Campusanlage. Die niedrige Gebäudehöhe fügt sich in die kleinmassstäbliche Umgebung ein, während der grosse Fussabdruck erlaubt, sämtliche Labore auf einem Geschoss anzuordnen. Ein umlaufender Laubengang umschliesst das Gebäude und verbindet Innen- und Aussenräume.
Im Inneren fördern offene, helle Arbeitsbereiche und ein grosszügiges Forum im Zentrum des Erdgeschosses Austausch und informelles Arbeiten. Trotz seiner Ausdehnung wirkt der Baukörper leicht und landschaftlich eingebettet. Die rötlich lasierte Fassade schützt das Holz und verleiht dem Gebäude eine prägnante Erscheinung. Die Umgebung mit Baumgruppen und Aufenthaltsorten öffnet das Amt zur Nachbarschaft und schafft einen öffentlich wirksamen Ort, der über die Funktion eines Verwaltungs- und Laborbaus hinausgeht im Quartier.
Der zweigeschossige Neubau ist als kompakter, quadratischer Solitär mit 50 Metern Seitenlänge konzipiert. Er wurde in einer hybriden Holz-Betonbauweise realisiert. Ein zentraler Betonkern nimmt die hochsensiblen Messlabore auf und sorgt für die statische Aussteifung. Labore und Büros sind konzentrisch darum angeordnet und weitgehend in Holzbauweise ausgeführt. Rund 2600 Kubikmeter Holz aus dem Aargauer Staatswald sowie ein hoher Anteil Recyclingbeton prägen die Konstruktion. Fotovoltaik, eine Grundwasserwärmepumpe und biodivers gestaltete Aussenräume ermöglichen die Zertifizierung nach Minergie-P-Eco.
Als freistehender Pavillon bildet das Gebäude den Auftakt zur Campusanlage. Die niedrige Gebäudehöhe fügt sich in die kleinmassstäbliche Umgebung ein, während der grosse Fussabdruck erlaubt, sämtliche Labore auf einem Geschoss anzuordnen. Ein umlaufender Laubengang umschliesst das Gebäude und verbindet Innen- und Aussenräume.
Im Inneren fördern offene, helle Arbeitsbereiche und ein grosszügiges Forum im Zentrum des Erdgeschosses Austausch und informelles Arbeiten. Trotz seiner Ausdehnung wirkt der Baukörper leicht und landschaftlich eingebettet. Die rötlich lasierte Fassade schützt das Holz und verleiht dem Gebäude eine prägnante Erscheinung. Die Umgebung mit Baumgruppen und Aufenthaltsorten öffnet das Amt zur Nachbarschaft und schafft einen öffentlich wirksamen Ort, der über die Funktion eines Verwaltungs- und Laborbaus hinausgeht im Quartier.












Copyright général des photographies: Federico Farinatti







Copyright général des plans / schémas / graphiques: Markus Schietsch Architekt:innen
Textes Critères de Davos
Gouvernance
Nach 100 Jahren in verschiedenen Räumlichkeiten wurde das Amt für Verbraucherschutz unter einem Dach vereint. Der Neubau basiert ursprünglich auf einem Wettbewerbsverfahren. Mit dem Neubau auf dem kantonseigenen Areal in Unterentfelden verfolgt der Kanton eine langfristige Immobilienstrategie, die das öffentliche Interesse wahrt und Synergien mit benachbarten Verwaltungsabteilungen nutzt.
Fonctionnalité
Alle Labore sind auf einem Geschoss angeordnet. Die schwingungsempfindlichen Labore befinden sich im zentralen Betonkubus. Weitere Labore und die Büros sind in einer Holzstruktur konzentrisch um die Mitte angeordnet. Unter dem Betonkubus befindet sich das zentrale Forum. Es dient dem informellen Austausch. Die Zonierung um die Mitte optimiert Betriebsabläufe. Barrierefreiheit, Transparenz, kurze Wege und Anpassungsfähigkeit gewährleisten eine hohe Gebrauchstauglichkeit.
Environnement
Für den Holzbau wurden 2600 Kubikmeter Holz aus dem Aargauer Staatswald verwendet. Die Betonarbeiten wurden mit 80 % Recyclingbeton bewerkstelligt. Der Betrieb erfolgt heute nahezu autark durch eine Grundwasserwärmepumpe sowie eine Photovoltaikanlage, deren Energie in einem Salzspeicher zwischengelagert wird. Der Aussenraum fördert aktiv die Biodiversität durch Totholz, Ruderalflächen und ProSpecieRara-Obstbäume.
Économie
Die Zusammenlegung der verschiedenen Standorte des AVS unter einem Dach optimiert Kosten und Nutzen. Bauliche Ressourcen wurden respektvoll eingesetzt. Ein Teil der Wertschöpfung verblieb so in der Region. Die Holz-Beton-Hybridbauweise ist robust und sichert niedrige Betriebs- und Unterhaltskosten über den Lebenszyklus.
Diversité
Umlaufende Laubengänge schaffen Orte der Begegnung. Im Erdgeschoss bieten Sitzbänke unter dem Laubengang Raum für Aufenthalt. Mitarbeiter, Nachbarn, Schüler oder Passanten nutzen den Ort für Begegnung oder Kontemplation. Die Laubengänge lösen die hermetische Grenze eines reinen Zweckbaus auf und vernetzen den Verwaltungsbau mit der Nachbarschaft. Das mittige Forum im Inneren bietet Raum für Austausch über Abteilungsgrenzen hinweg.
Contexte
Städtebaulich fügt sich der zweigeschossige Solitär als flacher Pavillon in die kleinmassstäbliche Nachbarschaft und den Grünraum entlang der Suhre ein. Er bildet den Auftakt einer neuen Campusstruktur auf dem ehemaligen BZU-Areal und folgt einem städtebaulichen Leitbild, das freistehende Bauten vorsieht. Die architektonische Setzung respektiert die bestehenden Grünzüge und vernetzt das Areal durch neue Wegesysteme mit dem Quartier.
Esprit du lieu
Der «rote Pavillon» verleiht dem Ort Identität. Die sichtbare, farbige Holzkonstruktion erzeugt eine spezifische Atmosphäre. Die Einbindung in den Landschaftsraum mit Themenbäumen wie Eichen und Nussbäumen verankert das Gebäude in der Natur. Das Amt ist sichtbar und ein authentischer öffentlicher Ort. Das Forum, die Laubengänge mit Sitzbänken und das «grüne Sitzungszimmer» sind ein Angebot, welches unabhängig von Öffnungszeiten von Mitarbeitern und der Öffentlichkeit genutzt wird.
Beauté
Die Ästhetik des Baus resultiert aus dem ehrlichen Dialog der Materialien: Die warme Haptik des Holzes kontrastiert mit dem kühlen Sichtbeton des Kerns. Ein differenziertes Farbkonzept, das von der roten Fassade bis zu farbigen Böden im Inneren reicht, erzeugt eine anregende räumliche Wirkung. Die klare geometrische Ordnung des konzentrischen Grundrisses und das Lichtspiel durch die Oberlichter verleihen dem Zweckbau eine atmosphärische Qualität.
Caractéristiques
Lieu
Unterentfelden
Catégorie d'ouvrage (SIA 102)
Autre
Type de tâche
Nouvelle construction
Type de procédure
Concours
Type de concours
Concours sélectifs
Coût de construction en CHF (SIA 416)
46.582 (BKP 1-9)
Surface de plancher en m² (SIA 416)
6'115
Planification
2019 → 2021
Réalisation
2022 → 2024
Année de mise en service
2024
Soumissionnaire(s) | Intervenants
Maître d'ouvrage
Architecture
Directions des travaux
Génie civil
Génie civil
Architecture du paysage
Conception de façade
Physique du bâtiment
Technique du bâtiment
Conception électrique
Designer couleur
Art dans le bâtiment et dans l'espace public
Autre
Autre