...
Gynäkologische Praxis Blasenzentrum der Frau

Copyright: Studio Archimed
Die gynäkologische Praxis Blasenzentrum der Frau befindet sich im Erdgeschoss der Wohnüberbauung Lindenweg in Frauenfeld auf dem ehemaligen Werkareal der Firma Herzog. Entworfen und realisiert wurde diese Überbauung vom Architekturbüro Diagonal AG aus Winterthur.
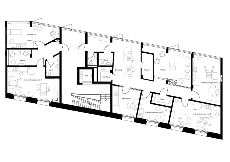
Im Erdgeschoss sind die medizinischen Räumlichkeiten untergebracht. Hier befinden sich der Haupteingang mit Empfang, ein Wartebereich, ein Labor, eine Apotheke sowie vier Untersuchungszimmer. Ein zweiter, klar abgegrenzter Bereich ist speziell für Blasenuntersuchungen eingerichtet – das Spezialgebiet der Praxis. Für diese Untersuchungen stehen ein separates Patienten-WC sowie ein Untersuchungsraum mit speziell ausgestatteten Geräten zur Verfügung.
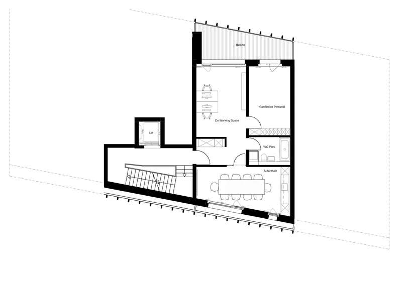
Das erste Obergeschoss beherbergt die Aufenthaltsräume und Garderoben für das Personal sowie die administrativen Bereiche. Zusätzlich wurde hier ein Multifunktionsraum vorgesehen, der für Schulungen, interne Besprechungen oder Vorträge genutzt werden kann.
Die Gestaltung der Praxisräume verfolgt ein klares Konzept: Während der halböffentliche Bereich – also Empfang, Wartebereich und Korridore – so gestaltet ist, dass er eher an ein Hotel als an eine klassische Arztpraxis erinnert, sind die Untersuchungsräume funktional und in Anlehnung an Spitalstandards eingerichtet. Die Besprechungsbereiche hingegen bieten durch Sitzgelegenheiten der Firma freifra eine angenehme und einladende Atmosphäre.
Ein zentrales gestalterisches Element ist der durchgehende CAF-Bodenbelag, der mit Nussbaumholzeinsätzen im Empfangs- und Wartebereich einen warmen Kontrast bildet. Zwei Patiententoiletten und der Wartebereich werden zusätzlich durch charakteristische Tapeten aufgewertet und geben den Räumen eine individuelle Note.
Im Erdgeschoss sind die medizinischen Räumlichkeiten untergebracht. Hier befinden sich der Haupteingang mit Empfang, ein Wartebereich, ein Labor, eine Apotheke sowie vier Untersuchungszimmer. Ein zweiter, klar abgegrenzter Bereich ist speziell für Blasenuntersuchungen eingerichtet – das Spezialgebiet der Praxis. Für diese Untersuchungen stehen ein separates Patienten-WC sowie ein Untersuchungsraum mit speziell ausgestatteten Geräten zur Verfügung.
Das erste Obergeschoss beherbergt die Aufenthaltsräume und Garderoben für das Personal sowie die administrativen Bereiche. Zusätzlich wurde hier ein Multifunktionsraum vorgesehen, der für Schulungen, interne Besprechungen oder Vorträge genutzt werden kann.
Die Gestaltung der Praxisräume verfolgt ein klares Konzept: Während der halböffentliche Bereich – also Empfang, Wartebereich und Korridore – so gestaltet ist, dass er eher an ein Hotel als an eine klassische Arztpraxis erinnert, sind die Untersuchungsräume funktional und in Anlehnung an Spitalstandards eingerichtet. Die Besprechungsbereiche hingegen bieten durch Sitzgelegenheiten der Firma freifra eine angenehme und einladende Atmosphäre.
Ein zentrales gestalterisches Element ist der durchgehende CAF-Bodenbelag, der mit Nussbaumholzeinsätzen im Empfangs- und Wartebereich einen warmen Kontrast bildet. Zwei Patiententoiletten und der Wartebereich werden zusätzlich durch charakteristische Tapeten aufgewertet und geben den Räumen eine individuelle Note.










Textes Critères de Davos
Gouvernance
Die Planung und Umsetzung der gynäkologischen Praxis erfolgte in enger Abstimmung zwischen Bauherrschaft, Eigentümer, Fachplanenden und dem Architekturbüro Diagonal AG. Die frühzeitige Einbindung der medizinischen Anforderungen ermöglichte eine funktionale sowie gestalterische Lösung. Grundlagen bilden klare Zuständigkeiten und die konsequente Orientierung an langfristiger Nutzbarkeit.
Fonctionnalité
Die Praxis ist klar strukturiert und logisch organisiert. Öffentlich zugängliche Bereiche, medizinische Funktionen sowie Personal- und Verwaltungsräume sind eindeutig voneinander getrennt. Die Erdgeschosslage ermöglicht eine barrierearme Erschliessung und kurze Wege für Patientinnen. Ein speziell abgetrennter Bereich für Blasenuntersuchungen gewährleistet Diskretion und effiziente Abläufe.
Environnement
Die Integration der Praxis in eine bestehende Überbauung trägt zur effizienten Flächennutzung und zur Verdichtung nach innen bei. Robuste, langlebige Materialien wie der durchgehende CAF-Bodenbelag gewährleisten eine lange Lebensdauer und reduzieren den Unterhaltsaufwand. Die klare Zonierung unterstützt einen effizienten Betrieb.
Économie
Die Praxisräume sind wirtschaftlich geplant und auf langfristige Nutzung ausgelegt. Die Grundrissstruktur ermöglicht flexible Anpassungen bei sich verändernden Anforderungen. Die Kombination aus standardisierten medizinischen Bereichen und hochwertig gestalteten halböffentlichen Zonen stellt ein ausgewogenes Verhältnis zwischen Investitionskosten, Betriebssicherheit und Aufenthaltsqualität her.
Diversité
Die Praxis berücksichtigt unterschiedliche Bedürfnisse von Patientinnen, Personal und Besuchenden. Die räumliche Differenzierung zwischen halböffentlichen, funktionalen und kommunikativen Bereichen schafft eine Vielfalt an Atmosphären. Unterschiedliche Materialien, Oberflächen und Möblierungen tragen zu einer differenzierten Raumerfahrung bei.
Contexte
Als Teil der Wohnüberbauung Lindenweg auf dem ehemaligen Werkareal der Firma Herzog reagiert die Praxis auf den städtebaulichen Kontext eines transformierten Industrieareals. Die Nutzung des Erdgeschosses für eine medizinische Einrichtung stärkt die Durchmischung des Quartiers und belebt den Aussenraum. Die Praxis unterstützt deren funktionale Vielfalt.
Esprit du lieu
Der Entwurf nimmt Bezug auf den Wandel des Ortes von der industriellen Nutzung hin zu einem zeitgemässen Wohn- und Dienstleistungsstandort. Die Kombination aus funktionaler Klarheit und warmen, wohnlichen Elementen spiegelt diesen Übergang wider. Die Praxis interpretiert den Ort nicht historisierend, sondern übersetzt seine Entwicklung in eine zeitgemässe, ruhige und präzise Innenarchitektur.
Beauté
Die gestalterische Qualität der Praxis zeigt sich in der sorgfältigen Materialwahl, der klaren Linienführung und der atmosphärischen Differenzierung der Räume. Der durchgehende Bodenbelag mit gezielten Holzeinsätzen, die akzentuierenden Tapeten sowie die hochwertige Möblierung schaffen eine ruhige, vertrauensvolle und zugleich eigenständige Identität.
Caractéristiques
Lieu
Frauenfeld
Catégorie d'ouvrage (SIA 102)
Santé et institutions sociales
Type de tâche
Nouvelle construction
Type de procédure
Mandat direct
Coût de construction en CHF (SIA 416)
906 000
Surface de plancher en m² (SIA 416)
290 m²
Planification
2024 → 2025
Réalisation
2024 → 2025
Année de mise en service
2025
Soumissionnaire(s) | Intervenants
Technique du bâtiment
Conception électrique
Conception lumière
Autre
Autre
Autre
Photographie