...
Campus Rieter

Copyright: Foto: Carina Castro
Der Campus Rieter steht für den Wandel der Maschinenindustrie in der Schweiz. Wo früher produziert wurde, konzentriert sich der Konzern heute auf einen kleinen Teil des Areals. Forschung und Entwicklung sowie die Leitung des Unternehmens bleiben am Gründungsstandort. Das Rieterareal wird weiter transformiert und geöffnet. Dabei steht weiterhin eine gewerbliche Nutzung im Vordergrund.
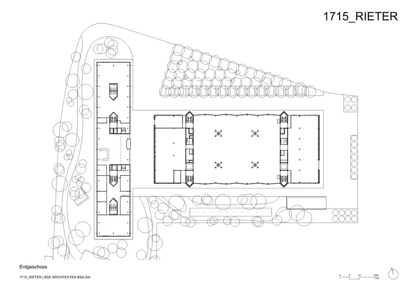
Der Neubau für den Hauptsitz der Rieter AG bildet einen markanten Kopf an der Stadteinfahrt in Winterthur Töss. Das neue Technologiezentrum und das Bürogebäude bilden eine Einheit, die linearen Volumen sind auf zwei Geschossen miteinander verbunden, der Austausch unter den Mitarbeitenden wird gefördert.
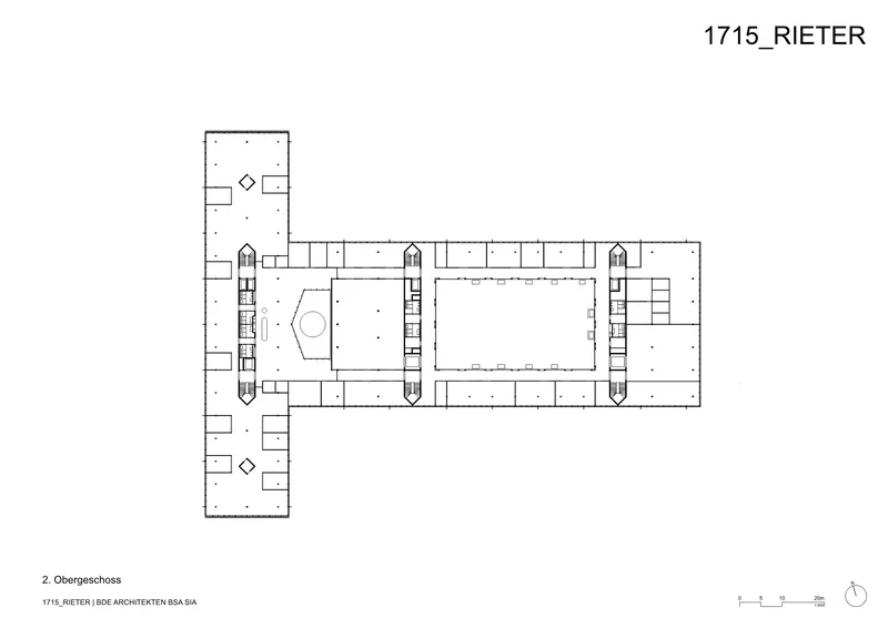
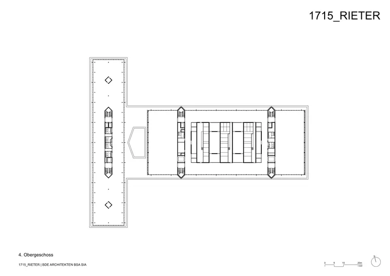
In der Schnittstelle der T-förmigen Komposition etabliert sich der Haupteingang mit Sichtachse zu Töss und Klostermühle. Zur Klosterstrasse hin entsteht eine neue Platzsituation mit publikumswirksamer Fassade. Die Erscheinung des Hauptsitzes verkörpert technisches Wissen durch die strenge Gliederung der Gebäudevolumen und die schlicht konstruierte Fassade. Diese bildet eine feine Haut aus abgekanteten und gestanzten Blechen und assoziiert in ihrer Wirkung textiles Gewebe. Die Variation der Transparenz regelt Ein- und Ausblicke und sorgt für optimierte Beschattung. Zwischen konzentriert organisierten Erschliessungskernen stapeln sich mit grossen Spannweiten zenital belichtete Räume für Forschung und Entwicklung. Die Kraftableitung in der Schnittfigur übernimmt ein vielfältiges Tragwerk, in dem Scheiben, Raumfachwerk und Baumstützen Raum und Konstruktion begreifbar machen.
Der Neubau für den Hauptsitz der Rieter AG bildet einen markanten Kopf an der Stadteinfahrt in Winterthur Töss. Das neue Technologiezentrum und das Bürogebäude bilden eine Einheit, die linearen Volumen sind auf zwei Geschossen miteinander verbunden, der Austausch unter den Mitarbeitenden wird gefördert.
In der Schnittstelle der T-förmigen Komposition etabliert sich der Haupteingang mit Sichtachse zu Töss und Klostermühle. Zur Klosterstrasse hin entsteht eine neue Platzsituation mit publikumswirksamer Fassade. Die Erscheinung des Hauptsitzes verkörpert technisches Wissen durch die strenge Gliederung der Gebäudevolumen und die schlicht konstruierte Fassade. Diese bildet eine feine Haut aus abgekanteten und gestanzten Blechen und assoziiert in ihrer Wirkung textiles Gewebe. Die Variation der Transparenz regelt Ein- und Ausblicke und sorgt für optimierte Beschattung. Zwischen konzentriert organisierten Erschliessungskernen stapeln sich mit grossen Spannweiten zenital belichtete Räume für Forschung und Entwicklung. Die Kraftableitung in der Schnittfigur übernimmt ein vielfältiges Tragwerk, in dem Scheiben, Raumfachwerk und Baumstützen Raum und Konstruktion begreifbar machen.



















Textes Critères de Davos
Gouvernance
Der Campus Rieter steht für den Wandel der Maschinenindustrie in der Schweiz. Wo früher produziert wurde, konzentriert sich der Konzern heute auf einen kleinen Teil des Areals. Forschung und Entwicklung sowie die Leitung des in 40 Ländern tätigen Unternehmens bleiben am Gründungsstandort. Die freiwerdenden Flächen werden der Öffentlichkeit zugänglich gemacht, ein neues Quartier entwickelt sich.
Fonctionnalité
Das Haus gliedert sich in zwei Gebäudeteile mit klar differenzierten Funktionen: ein Innovationscenter für die Entwicklung der Maschinen und ein Bürogebäude als Firmenhauptsitz. Die zeichenhafte Industriearchitektur ist präsent im öffentlichen Raum und macht Prozesse sichtbar. Gleichzeitig schaffen introvertierte Entwicklungsbereiche mit zenitalem Tageslicht Arbeitsräume ohne äußere Einblicke. Eine ringförmige Erschliessung verknüpft beide Teile räumlich und fördert Austausch und Kommunikation.
Environnement
Entlang der Klosterstrasse wird ein urbaner Platz ausgebildet, dessen chaussierte Mitte von einer hochstämmigen Baumhalle gefasst wird. Lockere Gehölzpflanzungen aus dem Artenspektrum der Auenvegetation verankern das Projekt im «Naturraum Töss». Durch den Rückbau nachträglicher Terrainschüttungen wird um die Mühle das historische Geländeniveau wieder freigelegt und lesbar gemacht.
Économie
Das Areal der Maschinenfabrik Rieter in Töss befindet sich im Wandel. Mit dem Verkauf von 75’000 m² im Jahr 2023 wurden die betrieblichen Nutzungen in einem Gebäude gebündelt. Der neue Bau für rund 700 Mitarbeitende ist grosszügig verglast und mit silbern geschuppten Metallplatten bekleidet. Er schafft Identifikation für die Belegschaft und wirkt als prägnantes Aushängeschild am Stadteingang von Winterthur. Repräsentation verbindet sich mit einer einfachen, wirtschaftlichen Industriearchitektur.
Diversité
Neu ist die Öffnung des Areals: Im Erdgeschoss werden Spinnmaschinen wie Preziosen in einem Showroom gezeigt, darüber liegen introvertierte Forschungs- und Entwicklungshallen ohne Einblick. Eine flexible Stützenstruktur ist Grundlage des Grundrisses. Drei Raumstreifen gliedern den Forschungsbereich quer und den Bürobau längs und teilen die zenital belichteten Hallen in unterschiedlich große Einheiten. Die Lasten des Baukörpers werden über ein elaboriertes Tragwerk und Baumstützen abgeleitet.
Contexte
Das T-förmige Gebäude markiert den Stadteingang von Winterthur. Verwaltung und Entwicklung sind klar gegliedert: Die Büros liegen zur Autobahn, die Werkhallen zum Quartier. Der Neubau führt die Geschichte des Industriestandorts fort und symbolisiert gleichzeitig den Wandel vom Industrie- zum Technologieunternehmen.
Esprit du lieu
Der traditionsreiche Industriestandort mit grossmassstäblichen Gebäuden prägt den Ort zwischen Wohnquartier und Autobahn. Die zuvor geschlossene Stadt öffnet sich, die alte Klostermühle und die Töss werden wieder zugänglich. Zum Geist des Ortes gehört stetiger Wandel, ein Anpassen an neue Bedürfnisse, Geschichte bleibt lesbar, Arbeit und neue Öffentlichkeit treffen aufeinander.
Beauté
Die Fassade des Hauses verkörpert technische Präzision. Eine feine Haut aus abgekanteten, gestanzten Blechen weckt gleichzeitig Assoziationen an textile Gewebe und stellt die Verbindung zur Tätigkeit von Rieter her. Unterschiedliche Transparenz steuert Ein- und Ausblicke und lässt das Gebäude je nach Tageszeit und Wetter geschlossener oder offener wirken.
Caractéristiques
Lieu
Klosterstrasse 15, 8406 Winterthur
Catégorie d'ouvrage (SIA 102)
Industrie et artisanat
Type de tâche
Nouvelle construction
Type de procédure
Concours
Type de concours
Concours sur invitation
Coût de construction en CHF (SIA 416)
80 Mio
Surface de plancher en m² (SIA 416)
28'000
Planification
2017 → 2023
Réalisation
2021 → 2024
Année de mise en service
2024
Soumissionnaire(s) | Intervenants
Architecture du paysage
Maître d'ouvrage
Entreprise générale
Génie civil
Conception électrique
Technique du bâtiment
Physique du bâtiment
Conception de façade