...
2226 Hybrid Sanierung Universitätstrasse Zürich

Copyright: Jürg Zimmermann
Den prägenden Bau aus den 1970er-Jahren an der Universitätstrasse galt es durch eine qualitative und energetische Sanierung sensibel in einen neuen Lebenszyklus zu überführen, ohne den Charakter des Gebäudes zu verlieren. Aus der intensiven Auseinandersetzung mit dem Ort und seiner Geschichte entstand ein architektonisch sowie energetisch nachhaltiges Bürogebäude. Die Sanierung erfolgte gemäss dem Prinzip 2226 Hybrid. Dadurch konnten die Haustechnik, der Energieverbrauch und somit auch die Treibhausgasemissionen massiv reduziert werden, was nicht zuletzt zu tiefen Betriebs- und Wartungskosten führt. Ein weiteres Augenmerk lag auf der Ausgestaltung der im Zuge der energetischen Optimierung zu erneuernden Gebäudehülle: Die mit dem Amt für Städtebau besprochene Materialisierung der Fassade orientiert sich am Bestand. So zeigt das Gebäude exemplarisch, wie viel Potenzial in anspruchsvollen Gebäudebeständen steckt, wenn man Masse, Material und Raum als aktive Klimakomponenten versteht.












Copyright général des photographies: Jürg Zimmermann
.pdf.webp)
.pdf.webp)
.pdf.webp)
.pdf.webp)
.pdf.webp)
.pdf.webp)
.pdf.webp)
.pdf.webp)
.pdf.webp)
.pdf.webp)
Copyright général des plans / schémas / graphiques: Baumschlager Eberle Zürich AG
Textes Critères de Davos
Gouvernance
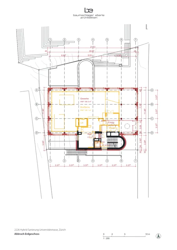
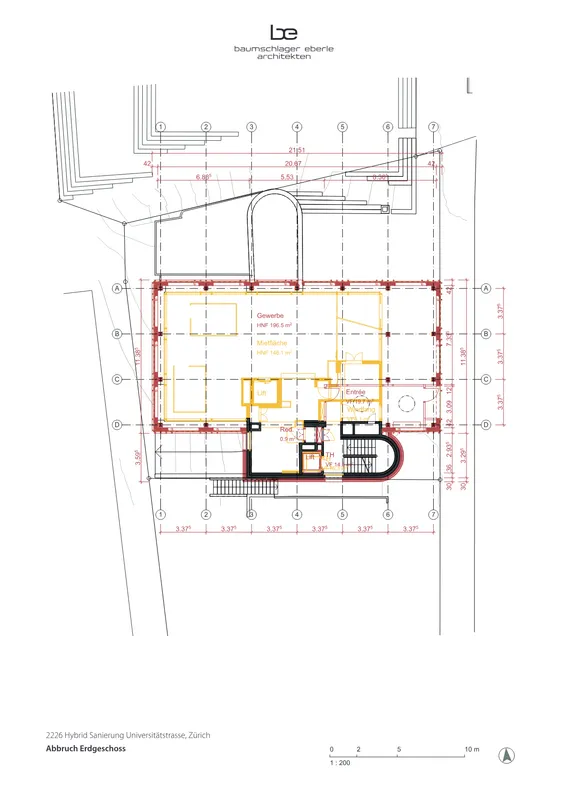
Die zentrale, prominente Lage und die unmittelbare Nähe zu denkmalgeschützten Bauten verlangten nach einer sensiblen Auseinandersetzung mit dem Kontext. Im Hinblick auf die Baueingabe erfolgte mit dem Amt für Städtebau ein sorgfältiges Abwägen zwischen Erhalt und Auflösen des bestehenden Portikus entlang der Universitätstrasse zugunsten der Erhöhung von Nutzfläche. Gemeinsam konnten gestalterische Lösungen gefunden werden, die der Architektur gerecht werden und ihre Akzeptanz fördern.
Fonctionnalité
Durch den Rückbau der abgehängten Decken entstand eine überzeugende Raumhöhe. Biobasierte Materialien wie Lehmbauplatten sowie Lehmputz schaffen ein angenehmes und gesundes Raumklima. Ein intelligentes System steuert automatisch die schmalen Fensterlüftungsflügel gemäss dem Prinzip 2226, versorgt den Raum mit natürlicher Frischluft und sorgt ganzjährig für eine optimale Luftfeuchtigkeit, Temperatur und CO2-Konzentration. Eine Sonnenschutzbeschichtung verbessert den sommerlichen Wärmeschutz.
Environnement
Nachhaltiges Gebäudekonzept: Der Rückbau der abgehängten Decken legte die nötige Speichermasse frei, um Wärme effizient zu speichern oder abzugeben. Die mechanische Lüftung wich einer gesteuerten Fensterlüftung. Im Sommer wird die Nachtauskühlung genutzt, im Winter reduziert die Abwärme von Menschen, Beleuchtung und Geräten den Energieverbrauch für Heizung und Kühlung auf ein absolutes Minimum. Opake Fassadenelemente vermindern den Glasanteil, was der sommerlichen Überhitzung entgegenwirkt.
Économie
Erstes für das Label BREEAM Refurb Outstanding nominiertes Gebäude der Schweiz: Dank 2226 Hybrid konnte der Betriebsenergiebedarf massiv reduziert werden. Eine mit Geothermie betriebene Wärmepumpe dient einzig dazu, die Spitzenabdeckung für Heizen und Kühlen zu gewährleisten. Mit einem Heizwärmebedarf von 15Kwh/m2/Jahr und einer Kühlleistung von 1kwh/m2/Jahr konnten sehr tiefe Betriebskosten erreicht werden. Eine im Treppenturm integrierte PV-Anlage trägt zur Abdeckung des Strombedarfs bei.
Diversité
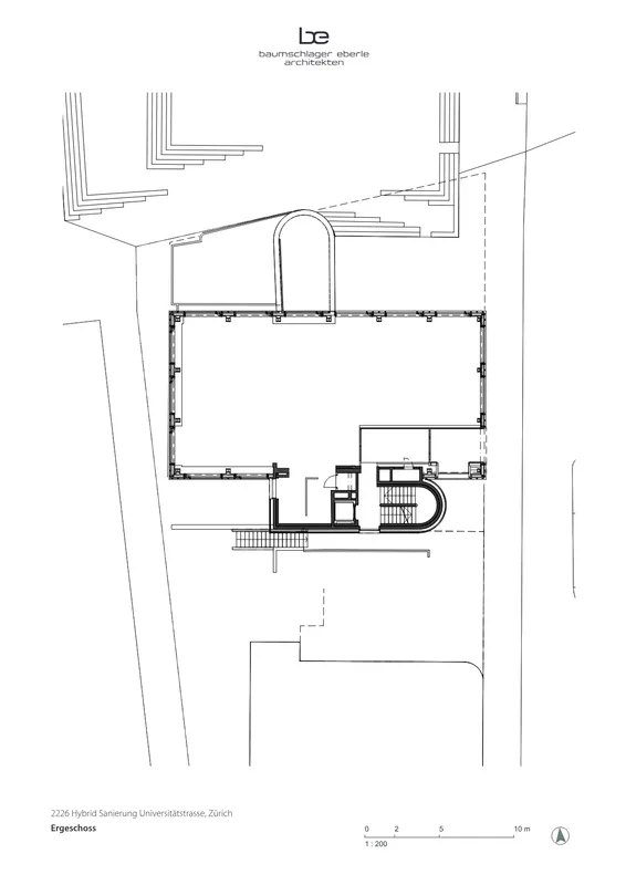
Nebst der Überführung in einen neuen Lebenszyklus wurde während der Sanierung grossen Wert auf die Flexibilität gelegt: Es entstanden komplett stützenfreie Geschosse, die eine hohe Nutzungsvielfalt sowie Adaptierbarkeit über die Zeit erlauben. Die offenen Grundrisse wurden für den Mieterausbau bereitgestellt. Zudem lassen die flexiblen Grundrisse und Erschliessung eine Nutzung des Gebäudes als Ganzes oder nur einzelner Geschosse zu. Es wurde eine öffentlichkeitswirksame EG-Nutzung angestrebt.
Contexte
Das im Zeitgeist eines aufstrebenden Stadtquartiers erbaute Bürogebäude aus den 1970er-Jahren galt es sensibel in einen neuen Lebenszyklus zu überführen, ohne den Charakter des Gebäudes zu verlieren. Im Zuge einer intensiven Auseinandersetzung mit dem Ort und seiner Geschichte sowie erhöhten gestalterischen Anforderungen seitens Amt für Städtebau entstand ein Gebäude, das sich am Bestand orientiert und gleichwohl zeitgemässe Nutzungen aufnehmen kann – und dies ressourcenschonend und dauerhaft.
Esprit du lieu
Die grossen Fensterflächen konnten trotz Reduzierung des Glasanteils erhalten werden und öffnen sich zum vorgelegten Platz und den Strassenräumen hin. Die Dachterrasse des Gebäudes wurde begrünt und dient als Aufenthalts- und Erholungsraum mit freiem Blick auf Stadt, See und Berge. Biodiverse Grünflächen und Nistplätze für Mauersegler unterstreichen den Aussenraumbezug, tragen zu einem angenehmen Klima und nicht zuletzt zu einer positiven Wahrnehmung des Ortes bei.
Beauté
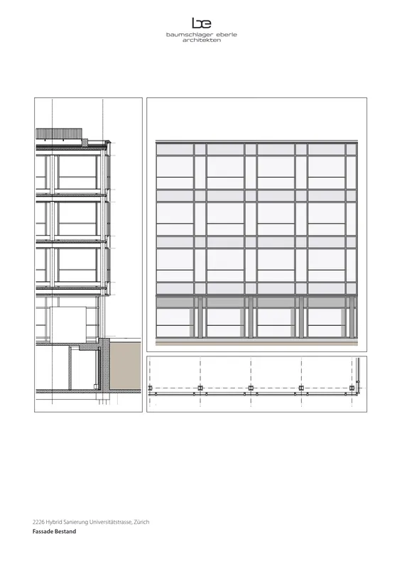
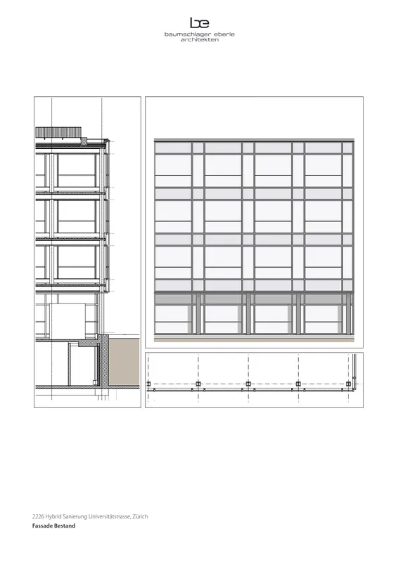
Die mit dem Amt für Städtebau besprochene Materialisierung der Fassaden orientiert sich am Bestand: ein rhythmisiertes Fassadenkleid; ein durch ein umlaufendes Band vom restlichen Gebäude abgesetztes Erdgeschoss. Zur besseren Integration des Bestandgebäudes in den Kontext nimmt die Überlagerung von stark profilierten horizontalen und vertikalen Lisenen Bezug zu traditionellen Gesimsen und Lisenen. Farblich fein abgestimmte Elemente aus eloxiertem Aluminium und opakem Glas prägen die Fassade.
Caractéristiques
Lieu
Zürich
Catégorie d'ouvrage (SIA 102)
Commerce et administration
Type de tâche
Rénovation
Type de procédure
Mandat direct
Coût de construction en CHF (SIA 416)
6 Mio.
Surface de plancher en m² (SIA 416)
2'372 m2
Planification
2023 → 2024
Réalisation
2024 → 2025
Année de mise en service
2025
Soumissionnaire(s) | Intervenants
Maître d'ouvrage
Entreprise générale
Autre
Architecture du paysage
Génie civil
Technique du bâtiment
Conception électrique
Autre
Physique du bâtiment