...
Werkhof 29

Copyright: Martin Zeller
Das Projekt Werkhof 29 im Industriequartier Zürich Binz transformiert einen mehrfach umgebauten Industriebau von 1934 zu einem vielfältigen Arbeitskomplex. Ziel ist es, durch minimale Eingriffe eine weitere Nutzungsperiode zu ermöglichen und gleichzeitig maximale Vielfalt und Flexibilität für das Gewerbe zu schaffen. Das Projekt bildet einen weiteren Baustein in der seit 10 Jahren laufenden Verdichtung des Areals.
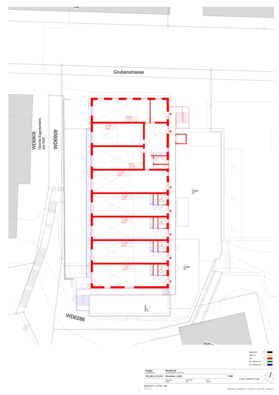
Die Aufstockung erfolgt als vorgefertigter Holzelementbau mit lehmverputzter Strohballendämmung. Ein Holzfachwerk leitet die Lasten gezielt auf das bestehende, robuste Tragwerk und entlastet die Aussenwände. Die Aufstockung ist das Ergebnis dessen, was der Bestand mit geringem Eingriff tragen kann. Dachflächen werden durch eine gemeinschaftlich nutzbare Terrasse und biodiverse Dachgärten aufgewertet.
Zentrales Konzept ist die Verwendung von vorhandenen Materialien. Den grössten Anteil leistet der Bestand selbst. Fassadenbleche, Fenster, Türen, Küchen, Radiatoren und Dämmstoffe stammen aus Rückbauobjekten. Ergänzend kommen regenerative Baustoffe wie Holz, Stroh und Lehm zum Einsatz. Sichtbare Gebrauchsspuren werden bewusst als architektonische Qualität eingesetzt und unterstreichen die Erzählung des nahtlosen Weiterbauens.
Die Materialisierung folgt klaren Nachhaltigkeitsprinzipien: Vieles beliess man roh, damit die Mieterschaft in Eigenregie ausbauen kann. Minimierung des Neubedarfs, langlebige, reparable Konstruktionen und die energieeffiziente Aufstockung reduzieren CO₂-Emissionen. Fassadenbegrünung, die Pflege alter Bäume und ökologische Aufwertung der Umgebung schonen das Stadtklima, während das auf Nachbardächer ausgeweitete Arealkraftwerk den Solarstrom liefert.
Das Projekt zeigt exemplarisch, dass Verdichtung auch anders geht. Nicht gegen, sondern mit dem Ort, mit den Nutzenden, mit den Materialien. Das Gebäude entwickelt sich so zu einem nachhaltigen, zirkulären Arbeitsort, der die industrielle Geschichte des Quartiers zeitgemäss weiterschreibt.
Die Aufstockung erfolgt als vorgefertigter Holzelementbau mit lehmverputzter Strohballendämmung. Ein Holzfachwerk leitet die Lasten gezielt auf das bestehende, robuste Tragwerk und entlastet die Aussenwände. Die Aufstockung ist das Ergebnis dessen, was der Bestand mit geringem Eingriff tragen kann. Dachflächen werden durch eine gemeinschaftlich nutzbare Terrasse und biodiverse Dachgärten aufgewertet.
Zentrales Konzept ist die Verwendung von vorhandenen Materialien. Den grössten Anteil leistet der Bestand selbst. Fassadenbleche, Fenster, Türen, Küchen, Radiatoren und Dämmstoffe stammen aus Rückbauobjekten. Ergänzend kommen regenerative Baustoffe wie Holz, Stroh und Lehm zum Einsatz. Sichtbare Gebrauchsspuren werden bewusst als architektonische Qualität eingesetzt und unterstreichen die Erzählung des nahtlosen Weiterbauens.
Die Materialisierung folgt klaren Nachhaltigkeitsprinzipien: Vieles beliess man roh, damit die Mieterschaft in Eigenregie ausbauen kann. Minimierung des Neubedarfs, langlebige, reparable Konstruktionen und die energieeffiziente Aufstockung reduzieren CO₂-Emissionen. Fassadenbegrünung, die Pflege alter Bäume und ökologische Aufwertung der Umgebung schonen das Stadtklima, während das auf Nachbardächer ausgeweitete Arealkraftwerk den Solarstrom liefert.
Das Projekt zeigt exemplarisch, dass Verdichtung auch anders geht. Nicht gegen, sondern mit dem Ort, mit den Nutzenden, mit den Materialien. Das Gebäude entwickelt sich so zu einem nachhaltigen, zirkulären Arbeitsort, der die industrielle Geschichte des Quartiers zeitgemäss weiterschreibt.












Copyright général des photographies: Martin Zeller







Copyright général des plans / schémas / graphiques: baubüro in situ
Textes Critères de Davos
Gouvernance
Nachdem die Stadt Zürich die ursprüngliche Idee, auf dem Areal überwiegend Wohnungen zu erstellen, zugunsten der Förderung von städtischer Produktion abgelehnt hatte, setzt sich die Eigentümerin Modissa aktiv für den Erhalt kleingewerblicher Strukturen ein. Seit 2015 entwickelt baubüro in situ das Areal in einem iterativen Prozess mit Nutzenden, Spezialisten und Eigentümerin, wobei es auf seine langjährige Expertise in diesem Bereich zurückgreift.
Fonctionnalité
Das Areal wird behutsam weiterentwickelt, um langfristig nutzbare, bezahlbare Räume für Kleingewerbe, Ateliers und Büros zu sichern. Die Räume sind in unterschiedlichem Masse roh belassen, damit die Mietenden sie in Eigenregie ausbauen und aneignen können.
Die gute Erreichbarkeit – das Quartier ist auch ohne Auto gut erschlossen – und die Vernetzung mit den umliegenden Wohnquartieren sichern die Attraktivität für unterschiedlichste Nutzungen.
Die gute Erreichbarkeit – das Quartier ist auch ohne Auto gut erschlossen – und die Vernetzung mit den umliegenden Wohnquartieren sichern die Attraktivität für unterschiedlichste Nutzungen.
Environnement
Ressourcenschonung als Ausgangslage: Der Bestand wird erhalten und seine Lastreserve durch Aufstockung optimal genutzt ohne zusätzlichen Boden zu bean-spruchen. Fassaden- und Dachbegrünung, Entsiegelung sowie Fledermaus- und Vogelkästen fördern die Biodiversität. Natürliche Materialien wie Holz, Stroh, lokaler Aushublehm und Re-Use-Bauteile reduzieren die CO₂-Emissionen. Dank Geo-Cooling mittels Erdsonden und Wärmepumpe kann mit einfachen Mitteln auf die Veränderung des Klimas reagiert werden.
Économie
Die Weiternutzung des Bestands und die Wiederverwendung rückgebauter Elemente im Gebäude senkt die Erstellungskosten. Der Einsatz robuster und langlebiger Bauteile reduziert langfristig den Unterhaltsaufwand. Dank Erträgen aus den Büroflächen mit Galerien in der Aufstockung und minimalen Eingriffen im Bestand können die Mieten des produzierenden Gewerbes im Erdgeschoss beibehalten werden. Durch den bedeutenden Re-Use Anteil fliesst die Wertschöpfung ins lokale Handwerk statt in neues Material.
Diversité
Das Projekt ermöglicht eine lebendige Mischung von Nutzungen – von handwerklichen Betrieben und Ateliers im EG bis zu Büroflächen in der Aufstockung. Gemeinschaftsräume, eine Dachterrasse auf der Werkhalle und vielfältige Aussenräume fördern Begegnung, während private Mietflächen Rückzug, Ruhe und eine Entflechtung der Nutzungen ermöglichen. Verdichtet wird nicht gegen, sondern mit dem Ort und den Menschen, die schon da sind. Damit es in unseren Städten auch in Zukunft Platz für alle hat.
Contexte
Mit seiner Massstäblichkeit, der gewachsenen Struktur und der vielfältigen Begrünung vermittelt das am Quartierrand liegende Areal zwischen den unterschiedlichen Stadtstrukturen. Das kleinteilige, durchgrünte Wohnquartier findet Anknüpfungspunkt und physische Verbindung zu den grossmassstäblichen Dienstleistungs- und Gewerbebauten, die heute einen Grossteil des ehemaligen Industriequartiers prägen.
Esprit du lieu
Die Einbindung vor Ort tätiger Handwerksbetriebe und das Interesse der Eigentümerin – zugleich Nachbarin der Liegenschaft – an einem vielfältigen Ort stärken die Identifikation des Projekts mit seinem Umfeld. Die Entwicklung des Areals schreibt die Geschichte des einstigen Industriequartier fort: von der Ziegelproduktion über Handwerkskollektive bis zu Kleinstgewerben und urbaner Produktion. Behutsame Eingriffe respektieren die Atmosphäre und führen die handwerklich-gewerbliche Tradition fort.
Beauté
Das Areal lebt von der Atmosphäre des kontinuierlichen Weiterbauens und dem Ineinandergreifen von Alt und Neu. Das stimmungsvolle Ensemble vereint Bauten von fast 100 Jahren, die laufend an wechselnde Nutzungen angepasst wurden und dabei starke Raumqualitäten sowie überraschende Nebeneinander erzeugen. Die mit blauem Reuse-Trapezblech verkleidete Aufstockung referenziert klassische Industriebauten, überrascht durch ihre Farbigkeit und hat einen hohen Wiedererkennungswert.
Caractéristiques
Lieu
Zürich
Catégorie d'ouvrage (SIA 102)
Industrie et artisanat
Type de tâche
Agrandissement
Type de procédure
Mandat direct
Coût de construction en CHF (SIA 416)
7'900'000
Surface de plancher en m² (SIA 416)
2'864
Planification
2021 → 2025
Réalisation
2024 → 2025
Année de mise en service
2025
Soumissionnaire(s) | Intervenants
Maître d'ouvrage
modissa Immobilien
Maître d'ouvrage
Directions des travaux
Génie civil
Génie civil
Technique du bâtiment
Conception électrique
Ruckstuhl Bau und Elektroprojekt
Physique du bâtiment
Autre
Autre
Architecture du paysage
Construction bois
Construction acier
Autre
Autre
Autre