...
Baugewerbliche Berufsschule Zürich

Copyright: Foto: Federico Farinatti
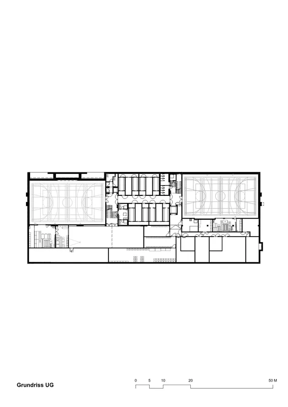
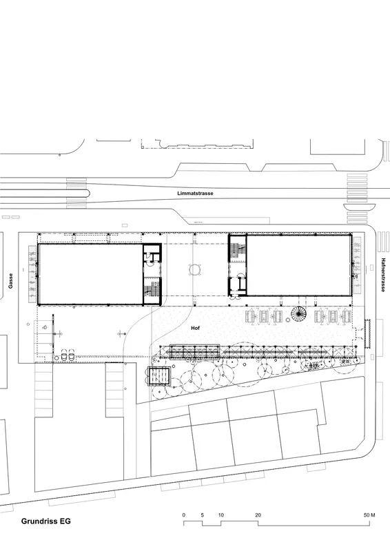
Die neue Baugewerbliche Berufsschule Zürich liegt zentral unweit des Hauptbahnhofs. Durch die Platzierung des schlanken Gebäuderiegels direkt an der Strasse entsteht ein grosszügiger, begrünter Hofraum, der sowohl der Schule als auch dem Quartier dient. So integriert sich die Schule in den Stadtraum, statt sich von ihr abzugrenzen. Die abgesenkten Turnhallen mit ihrem Luftraum im Erdgeschoss werden auch ausserhalb der Schulzeiten von Vereinen genutzt und beleben am Abend den Stadtraum. Diese Stapelung bedingt, dass die Kräfte der Obergeschosse über den Turnhallen abgefangen werden müssen. Um hohe Unterzüge zulasten des Schulraums zu vermeiden, wird das gesamte erste Obergeschoss als Fachwerkträger ausgebildet. Die diagonalen Stäbe dieser Fachwerke verleihen dem Piano nobile seine spezifische räumliche Identität. Während die Klassengeschosse darüber sehr flächeneffizient organisiert sind, bildet das Piano nobile eine offene, flexibel nutzbare Landschaft. Das Herz dieser Landschaft ist die Werkhalle – ein multifunktionaler Unterrichts-, Ausstellungs- und Veranstaltungsraum –, die in engem Austausch mit den Nutzenden entwickelt wurde.
Die Architektur des Gebäudes basiert nicht auf fertigen Bildern, sondern macht die Logik und Prozesse des Bauens zum Thema. Das rohe Betongitter der sichtbaren Tragstruktur bildet ein stabiles Gerüst, das sich nach innen beliebig ausbauen und verfeinern lässt. Dieses Baukastensystem lässt sich fortlaufend an die Bedürfnisse seiner Nutzung anpassen. Zusammen mit der hohen Flächeneffizienz und Nutzungsdichte, der zugänglichen Gebäudetechnik, der einfachen Bauweise und der robusten Materialisierung entsteht so ein Gebäude, das strukturell nachhaltig ist. Architektonisch formuliert der Bausatz ein Vokabular, das der Schule eine spezifische Identität verleiht und dennoch Raum für Aneignung und Anpassung lässt.
Die Architektur des Gebäudes basiert nicht auf fertigen Bildern, sondern macht die Logik und Prozesse des Bauens zum Thema. Das rohe Betongitter der sichtbaren Tragstruktur bildet ein stabiles Gerüst, das sich nach innen beliebig ausbauen und verfeinern lässt. Dieses Baukastensystem lässt sich fortlaufend an die Bedürfnisse seiner Nutzung anpassen. Zusammen mit der hohen Flächeneffizienz und Nutzungsdichte, der zugänglichen Gebäudetechnik, der einfachen Bauweise und der robusten Materialisierung entsteht so ein Gebäude, das strukturell nachhaltig ist. Architektonisch formuliert der Bausatz ein Vokabular, das der Schule eine spezifische Identität verleiht und dennoch Raum für Aneignung und Anpassung lässt.












Copyright général des photographies: Foto: Federico Farinatti












Copyright général des plans / schémas / graphiques: Gunz & Künzle Architekt*innen
Copyright: Hochbauamt Kanton Zürich
Textes Critères de Davos
Gouvernance
Das Projekt wurde in einem offenen Wettbewerb gemäss SIA-Ordnung 142 von einer Fachjury aus über 100 Beiträgen ausgewählt.In der Planungsphase wurden von Anfang an die Bedürfnisse der Nutzenden und Anwohner einbezogen. Anhand von Workshops konnten neben den Lehrpersonen auch die Schüler und Schülerinnen ihre Ideen und Wünsche einbringen. Mittels Baustellenführung wurde der Bauprozess für die zukünftigen Bauspezialist*inne der Berufsschule sichtbar gemacht und in den Unterricht integriert.
Fonctionnalité
Im Zentrum des Entwurfs steht der Anspruch, optimale Bedingungen für den Unterricht zu schaffen. Die 31 Klassenzimmer erfüllen bezüglich Tageslicht, Raumakustik und -klima höchste Anforderungen. Darüber hinaus stehen flexibel nutzbare Räume für den erweiterten Unterrichten im 1. Obergeschoss, in den Korridornischen und auf dem Dach zur Verfügung. Die Gebäudestruktur kommt in den Unterrichtsgeschossen mit wenigen tragenden Stützen aus und schafft so eine hohe Flexibilität.
Environnement
Durch die effiziente Organisation kann das Programm mit weniger Bauvolumen erstellt werden ohne Abstriche bei der räumlichen Qualität zu machen. Dadurch werden Ressourcen gespart und ein begrünter Hofraum wird ermöglicht. Es wurden robuste und langlebige Materialien gewählt und eine konsequente Systemtrennung umgesetzt. Die Haustechnik ist zugänglich und austauschbar.
Das Gebäude ist nach dem Standard Minergie-P-Eco zertifiziert und erreicht als erstes Schulhaus im Kanton Zürich auch SNBS Gold.
Das Gebäude ist nach dem Standard Minergie-P-Eco zertifiziert und erreicht als erstes Schulhaus im Kanton Zürich auch SNBS Gold.
Économie
Die Wirtschaftlichkeit des Projekts ergibt sich aus seiner Langlebigkeit.
Es kommen ausschliesslich robuste und unterhaltsarme Materialien zum Einsatz, die breit verfügbar sind und einfach unterhalten werden können. Auf Sonderanfertigungen und aufwendige Konstruktionsdetails wird verzichtet. Materialien mit kürzeren Lebenszyklen wurden als additive Elemente behandelt und können einfach ausgetauscht werden. Bei der Fassade wurde auf einen guter Witterungsschutz geachtet.
Es kommen ausschliesslich robuste und unterhaltsarme Materialien zum Einsatz, die breit verfügbar sind und einfach unterhalten werden können. Auf Sonderanfertigungen und aufwendige Konstruktionsdetails wird verzichtet. Materialien mit kürzeren Lebenszyklen wurden als additive Elemente behandelt und können einfach ausgetauscht werden. Bei der Fassade wurde auf einen guter Witterungsschutz geachtet.
Diversité
Das Schulhaus bietet eine Vielzahl von informellen Aufenthaltsräumen in denen Lehrende und Lernende sich begegnen können. Die Lernnischen wurden in Zusammenarbeit mit den Lernenden farbig, divers und lebendig eingerichtet.
Das flexibel nutzerbare 1. Obergeschoss ist über die Loggia und die grosse Wendeltreppe direkt mit dem Hofraum verbunden. So kann die Öffentlichkeit, während und ausserhalb der Unterrichtszeiten, in vielfältiger Weise mit den Aktivitäten der Schule in Austausch treten.
Das flexibel nutzerbare 1. Obergeschoss ist über die Loggia und die grosse Wendeltreppe direkt mit dem Hofraum verbunden. So kann die Öffentlichkeit, während und ausserhalb der Unterrichtszeiten, in vielfältiger Weise mit den Aktivitäten der Schule in Austausch treten.
Contexte
Die schlichte Gebäudekörper führt die Fassadenflucht entlang der Limmatstrasse weiter. Der Klingenpark, diagonal versetzt auf der anderen Strassenseite, wird in der ursprünglichen stadträumlichen Absicht erhalten.
Die zweigeschossige Sockelpartie ist sehr innerstädtisch wie bei
Häusern aus dem 19. Jahrhundert an der Hafnerstrasse. Die beidseitigen Kolonnaden und dem Durchgang verweben das Gebäude mit dem Stadtraum und schaffen in alle Richtungen neue Vernetzungen im Quartier.
Die zweigeschossige Sockelpartie ist sehr innerstädtisch wie bei
Häusern aus dem 19. Jahrhundert an der Hafnerstrasse. Die beidseitigen Kolonnaden und dem Durchgang verweben das Gebäude mit dem Stadtraum und schaffen in alle Richtungen neue Vernetzungen im Quartier.
Esprit du lieu
Aus dem einst düsteren, unwirtlichen Innenhof wird ein offener, einsehbaren Aufenthaltsraum. Beschattete Sitzgelegenheiten und ein Basketballplatz laden Schüler*innen und Leute, die im Quartier wohnen oder arbeiten, zum Essen und Verweilen ein. Die schlichte Ausstattung und rohe Materialisierung lehnen sich an typische Hofsituationen im Kreis 5 an. Der "Hinterhof" im ehemaligen Industriequartier wird als offener, angstfreier und begrünter Stadtraum neu interpretiert.
Beauté
Schönheit wird hier nicht als statisches Bild verstanden sondern als bewegter Ausdruck des Lebens. Die statischen Gegebenheiten bilden im 1. Obergeschoss eine prägnante räumliche Struktur, die aber sehr zurückhaltend materialisiert ist. Farblich prägnant sind dagegen die durch die Nutzer beweg- und anpassbaren Möbel und Vorhänge.
Die Schönheit ergibt sich nicht als Diktat der Architektur sondern im Zusammenspiel eines räumlichen Angebots mit seiner Aneignung durch die Nutzenden.
Die Schönheit ergibt sich nicht als Diktat der Architektur sondern im Zusammenspiel eines räumlichen Angebots mit seiner Aneignung durch die Nutzenden.
Caractéristiques
Lieu
Limmatstrasse 53, 8005 Zürich
Catégorie d'ouvrage (SIA 102)
Enseignement, formation, recherche
Type de tâche
Nouvelle construction
Type de procédure
Concours
Type de concours
Concours ouvert
Coût de construction en CHF (SIA 416)
50.5 Mio.
Surface de plancher en m² (SIA 416)
10'198
Planification
2019 → 2023
Réalisation
2023 → 2025
Année de mise en service
2025
Soumissionnaire(s) | Intervenants
Maître d'ouvrage
Directions des travaux
Architecture du paysage
Génie civil
Technique du bâtiment
Conception électrique
Conception de façade
Physique du bâtiment
Art dans le bâtiment et dans l'espace public
Art dans le bâtiment et dans l'espace public
Laurent Güdel, Michal Florence Schorro, Giona Bierens de Haan & Raphael Raccuia
Signalétique