...
HORTUS

Copyright: Maris Mezulis
HORTUS steht für House of Research, Technology, Utopia and Sustainability. Es ist ein Bürogebäude für ca. 600 Arbeitsplätze und bietet gleichzeitig öffentliche Nutzung im EG an. Zum Zeitpunkt der Planung waren die Nutzer unbekannt, daher war Flexibilität eine Grundvoraussetzung für ein erfolgreiches Investorenprojekt. HORTUS setzt den Fokus auf innovative und ambitionierte Nachhaltigkeitskonzepte. So unterlag der Entwurfsprozess einer ausgeprägt analytisch-akademischen Materialanalyse, bei der Baumaterialien auf ihre ökologischen und physikalischen Eigenschaften geprüft und verglichen wurden. Ein Hauptkriterium dabei war, dass der Ursprung möglichst natürlich und aus nachwachsenden Rohstoffen sein sollte. Ganz im Sinne des Cradle-to-Cradle-Prinzips sollen alle verwendeten Bauteile katalogisiert und im ökologischen Kreislaufsystem für eine Wiederverwertung zur Verfügung stehen.
Eine reduzierte Palette aus erneuerbaren Materialien wie Holz, Lehm und Zellulose unterstreichen den ökologischen Grundgedanken des mehrgeschossigen Holzrahmenbaus. Das Raster ist modular und Holzverbindungen werden gesteckt, um auf Metallverbindungen zu verzichten und am Ende der Nutzungszeit leicht demontierbar und wiederverwertbar zu sein. Der Stampflehm an Decken und Brüstungen sorgt für ein behagliches und gesundes Raumklima. In Zusammenarbeit mit ZPF-Ingenieuren haben H&dM ein Deckensystem aus rechteckigen Holzelementen mit gestampftem Lehm aus dem eignen Aushub entwickelt. Ein Deckenelement besteht aus einem Holzrahmen mit eingelegten Massivholzbalken zwischen denen Lehm in Form eines Gewölbes eingestampft wird. Der dichte Lehm wirkt dabei als Brandschutz und sorgt gleichzeitig für ein gutes Raumklima, da er Feuchtigkeitsschwankungen auszugleichen vermag. Im Sommer dient der Lehm als thermische Masse, um überschüssige Hitze aufzunehmen. Die Erstellung der HORTUS Decke verursacht 10-mal weniger CO2 Emissionen als eine konventionelle Flachdecke aus Beton. HORTUS hinterlässt 6.8kg CO2/m2a
Eine reduzierte Palette aus erneuerbaren Materialien wie Holz, Lehm und Zellulose unterstreichen den ökologischen Grundgedanken des mehrgeschossigen Holzrahmenbaus. Das Raster ist modular und Holzverbindungen werden gesteckt, um auf Metallverbindungen zu verzichten und am Ende der Nutzungszeit leicht demontierbar und wiederverwertbar zu sein. Der Stampflehm an Decken und Brüstungen sorgt für ein behagliches und gesundes Raumklima. In Zusammenarbeit mit ZPF-Ingenieuren haben H&dM ein Deckensystem aus rechteckigen Holzelementen mit gestampftem Lehm aus dem eignen Aushub entwickelt. Ein Deckenelement besteht aus einem Holzrahmen mit eingelegten Massivholzbalken zwischen denen Lehm in Form eines Gewölbes eingestampft wird. Der dichte Lehm wirkt dabei als Brandschutz und sorgt gleichzeitig für ein gutes Raumklima, da er Feuchtigkeitsschwankungen auszugleichen vermag. Im Sommer dient der Lehm als thermische Masse, um überschüssige Hitze aufzunehmen. Die Erstellung der HORTUS Decke verursacht 10-mal weniger CO2 Emissionen als eine konventionelle Flachdecke aus Beton. HORTUS hinterlässt 6.8kg CO2/m2a












Copyright général des photographies: Maris Mezulis












Copyright général des plans / schémas / graphiques: Herzog & de Meuron
Copyright: Herzog & de Meuron
Textes Critères de Davos
Gouvernance
Westlich des Hegenheimermattwegs in Allschwil ist ein globaler Standort für innovative Unternehmen aus dem Life-Science-Bereich entstanden, der Switzerland Innovation Park. HORTUS trägt zur Attraktivität des neuen Ortes bei. Zum Zeitpunkt der Eröffnung 2025, war das Gebäude zu 100% vermietet. Die Nutzer sind Technologiefirmen, die sich gezielt in der Metropolitanregion Basel ansiedeln.
Fonctionnalité
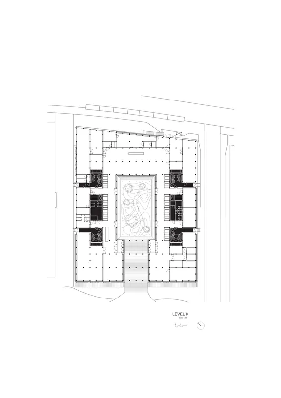
Der Entwurf greift das Thema des innovativen und produktiven Gedankenaustauschs auf und bezieht seine offenen Grundrisse aus Ideen zu modernen Büroarbeitsplätzen, die ein grosses Mass an Flexibilität und unterschiedliche Nutzungsweisen ermöglichen. Ein begrüntes Atrium dient den Mitarbeitenden und Arealbesuchenden als Erholungsort. Neben (auch für Externe mietbaren) Sitzungsräumen stehen im Erdgeschoss ein Restaurant, ein Gym mit Café-Bar sowie abgeschirmte Sitzgelegenheiten zur Verfügung.
Environnement
Der Entwurf von Hortus basiert auf einer drastischen Minimierung des CO2-Fussabdrucks als entscheidendem Designfaktor und setzt auf ein ganzheitliches Nachhaltigkeitskonzept. Dabei werden Kennwerte für ökologisches Bauen, wie z.B. aus der SIA 2040 noch weit übertroffen. Bis auf kleine Betonstelzen findet man im Gebäude keinen Beton. Auf ein Kellergeschoss wurde verzichtet, wodurch der Bau über dem Boden schwebt und sogar die Erdgeschossplatte aus Holz erstellt werden konnte.
Économie
Eine Geothermie-Anlage versorgt das Haus mit Wärme und Kälte, während eine Photovoltaik-Fläche von ca. 5000m2 auf Dach und Fassade für eine unabhängige Versorgung mit erneuerbarer und ressourcenschonender Solarenergie sorgt. Sie schafft gleichzeitig so viel Überschuss, dass die graue Energie, die für den Bau des Gebäudes benötigt wurde, innerhalb von 31 Jahren wieder auf null abgebaut wird. Ab Tag eins ist HORTUS somit energiepositiv und nach einer Generation ein absolut energiepositives Gebäude
Diversité
Die umlaufenden Raumabfolgen unterstützen den Austausch der Mitarbeitenden untereinander. Die offenen Grundrisse ermöglichen ein grosses Mass an Flexibilität und unterschiedliche Nutzungsweisen. Einige Bereiche werden von den Nutzern geteilt. Jedes Stockwerk verfügt über gemeinschaftlich nutzbare Aufenthaltsräume für Mitarbeiter. Das Erdgeschoss wird mit gastronomischem Angebot öffentlich genutzt und nach Süden öffnet sich das Gebäude mit einer Terrasse zu einem vorgelagerten Park.
Contexte
HORTUS liegt auf dem Areal ehemaliger Schrebergärten und schliesst an den bestehenden Technologie-Park an. Umgeben von Sportanlagen, einem Naherholungsgebiet und einem Wohnviertel schafft der Bau eine moderne, kommunikative und flexible Arbeitswelt für eine neue Generation von Technologiefirmen mit ökologischem Bewusstsein. Ein von den Investoren privat finanzierter Park durchzieht das Gelände und schafft eine öffentlich zugängliche Grünanlage mit sehr hoher Aufenthaltsqualität.
Esprit du lieu
Am Beispiel von Hortus möchten wir zeigen, dass nachhaltige Architektur zugleich ästhetisch, lokal, gesund und nützlich sein kann für Gesellschaft, Umwelt und Wirtschaft. Das Projekt hat erwiesen, wie radikale Nachhaltigkeit in der Architektur möglich ist, um einen attraktiven Ort zu schaffen, an dem das Wohlbefinden des Menschen im Mittelpunkt steht.
Beauté
«Wir müssen neu denken: Nachhaltigkeit sollte bei allem, was wir herstellen – ja überhaupt allem, was wir tun – im Vordergrund sein. Daraus wird unerwartete und überraschende Architektur mit einer eigenen Schönheit entstehen. Das ist eine Herausforderung, aber auch reizvoller Ansporn, weil dies ästhetische Normen in Frage stellt und uns neue Wege eröffnet.»
Jacques Herzog zu HORTUS, Herzog & de Meuron
Jacques Herzog zu HORTUS, Herzog & de Meuron
Caractéristiques
Lieu
Allschwil, Baselland. Gewerbepark 'Switzerland Innovation Park' (ehemals BaseLink) am Hegenheimermattweg
Catégorie d'ouvrage (SIA 102)
Commerce et administration
Type de tâche
Nouvelle construction
Type de procédure
Mandat direct
Coût de construction en CHF (SIA 416)
79'000'000
Surface de plancher en m² (SIA 416)
14'150
Planification
2020 → 2022
Réalisation
2023 → 2025
Année de mise en service
2025
Soumissionnaire(s) | Intervenants
Maître d'ouvrage
Architecture
Génie civil
Construction bois
Autre
Architecture du paysage
Architecture du paysage
Entreprise générale
Conception de façade
Christoph Etter Fassadenplanungen
Autre
Physique du bâtiment
Conception lumière
Conception électrique
Technique du bâtiment
Technique du bâtiment
Signalétique