...
Densification et reconversion du quartier artisanal des Bosquets à Vevey - Étape 1

Copyright: Joël Tettamanti
Les bâtiments des Bosquets ont été construits en plusieurs étapes successives jusqu'en 1964. Situés à Vevey, sur le site de l'entreprise Peter, inventeur du chocolat au lait, ils abritent les ateliers et laboratoires de l'entreprise Produits Dentaires SA fondée en 1940. Le bâtiment principal, haut de 7 étages, et son annexe, sont constitués de dalles et de piliers de béton armé, généreusement dimensionnés. L'ensemble est complété par un bâtiment administratif en pierre datant de 1902, dont le langage est en continuité avec la Rue des Bosquets.
Le projet prévoit dans sa totalité la présente surélévation et réhabilitation de l’annexe transformé en bureaux, ainsi qu’une deuxième phase actuellement en chantier comprenant la rénovation et la surélévation de l’ancien bâtiment administratif avec sa réaffectation en logements. Une étape finale impliquera la réfaction de l’ensemble des façades du bâtiment de production et sa liaison aux niveau supérieurs au bâtiment de bureaux.
Suite à des renforcements des fondations existantes de l'annexe, cette dernière fut surélevée de deux étages. En recouvrant la structure, la nouvelle enveloppe, constituée d'aluminium et de verre, modifie considérablement l'expression originale du bâtiment. Cette mutation nécessaire pour répondre aux questions d'efficience énergétique et de confort est l'occasion de modifier la composition de la façade afin d'accentuer la verticalité du bâtiment, clarifiant ainsi sa position dans un quartier en mutation.
À l'ouest, une nouvelle entrée est mise en place pour alimenter et répondre à l'évolution de l'ancienne voie industrielle qui se transforme peu à peu en Chaussée piétonne, desservant désormais un quartier mixte dans ses affectations, constitué de logements, de bureaux et d'industries.
Le projet prévoit dans sa totalité la présente surélévation et réhabilitation de l’annexe transformé en bureaux, ainsi qu’une deuxième phase actuellement en chantier comprenant la rénovation et la surélévation de l’ancien bâtiment administratif avec sa réaffectation en logements. Une étape finale impliquera la réfaction de l’ensemble des façades du bâtiment de production et sa liaison aux niveau supérieurs au bâtiment de bureaux.
Suite à des renforcements des fondations existantes de l'annexe, cette dernière fut surélevée de deux étages. En recouvrant la structure, la nouvelle enveloppe, constituée d'aluminium et de verre, modifie considérablement l'expression originale du bâtiment. Cette mutation nécessaire pour répondre aux questions d'efficience énergétique et de confort est l'occasion de modifier la composition de la façade afin d'accentuer la verticalité du bâtiment, clarifiant ainsi sa position dans un quartier en mutation.
À l'ouest, une nouvelle entrée est mise en place pour alimenter et répondre à l'évolution de l'ancienne voie industrielle qui se transforme peu à peu en Chaussée piétonne, desservant désormais un quartier mixte dans ses affectations, constitué de logements, de bureaux et d'industries.








Copyright für die Fotografien: Joël Tettamanti












Copyright für die Pläne / Schemata / Grafiken: Rapin Saiz Architectes
Texte Davos Kriterien (Selbstevaluation)
Gouvernanz
Le projet a été développé en collaboration avec les autorités communales intégrant des préoccupations de développement urbain allant au-delà du bâtiment lui-même. Le pool de mandataires a fonctionné de façon collégiale, intégrant parfaitement les différentes spécialités, afin que le projet forme un tout cohérent, flexible dans son usage et performant. Les propriétaires ont été fortement impliqués, ce bâtiment s'inscrivant dans le site de production de leur industrie, en perpétuelle évolution.
Funktionalität
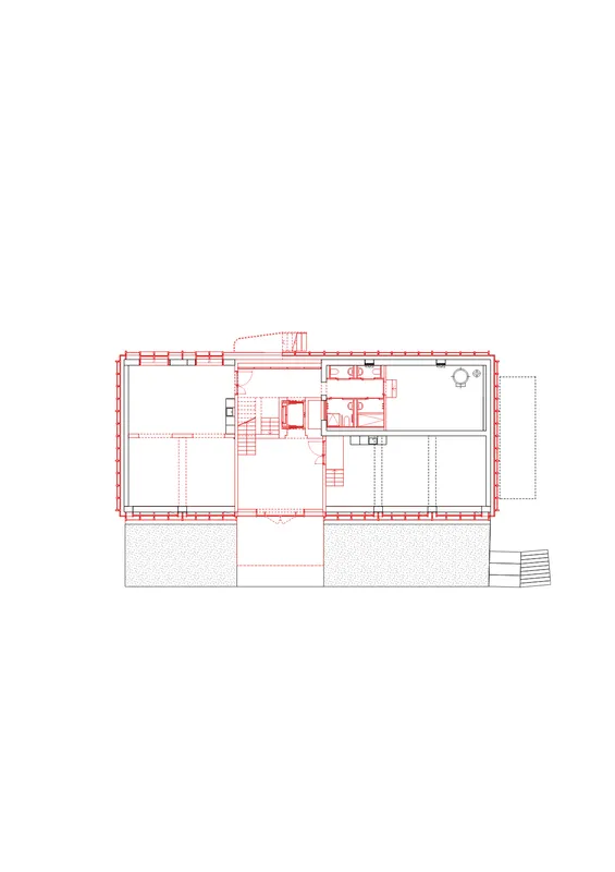
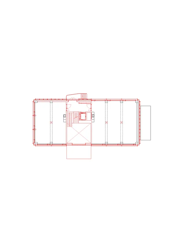
L'intention du projet est celle de reconvertir en bureaux d'anciens ateliers mécaniques dont l’usage était devenu obsolète. Le bâtiment vient ainsi enrichir un quartier à proximité de la gare de Vevey en pleine transformation. Chaque étage comprend deux surfaces de bureaux reliées par une cuisine partagée. L’échelle de la structure ponctuelle de l’atelier d’origine est reprise dans la surélévation, offrant de la flexibilité, des hauteurs sous-plafond généreuses et de larges ouvertures de façade.
Umwelt
Dans une démarche de réemploi de l'existant, la structure ponctuelle en béton armée du bâtiment existant a été conservée et ses fondations renforcées avant d’accueillir deux étages supplémentaires. L'utilisation de la matière a ainsi été réduite au minimum, laissant la structure en béton apparente dans les bureaux. De nouvelles façades isolées ont étés ajoutées afin de munir ce squelette d'une enveloppe énergétiquement performante, incluant des grandes fenêtres aux vitrages triples.
Wirtschaft
La conservation et le réemploi de la structure existante s’inscrivent dans une logique d’économie de ressources et financière. Par l'association entre une structure rationnelle en béton brut apparent, réduite au minimum, et une façade en aluminium soignée avec de larges ouvertures, le choix a été fait de concentrer les investissements sur les éléments les plus susceptibles d’usure, dans une perspective d’économie et de durabilité à long terme.
Vielfalt
Le quartier des Bosquets à Vevey connaît depuis plusieurs années un développement urbain significatif, alliant reconversion de friches industrielles, densification et initiatives sociales. Autrefois lieu de l’activité industrielle, il vit aujourd’hui une transformation profonde. Inscrit dans une stratégie de développement durable et diversification, le projet participe à la transformation de ce site en un quartier d'affectation mixte, résidentielle, bureaux, industrie et espaces d’activités.
Kontext
Le site des Bosquets conserve des traces de son passé industriel, avec des bâtiments en béton, en maçonnerie en métal, construits entre la fin du XIXᵉ siècle et les années 1960. Le bâtiment originel tournait le dos à la chaussée, fonctionnant comme une annexe de l’usine située à l'arrière. Le projet accentue le dialogue avec son contexte par une surélévation du volume existant, de nouvelles façades en aluminium et le retournement de l’entrée principale vers la chaussée devenue piétonne.
Genius Loci
Faisant partie d’une stratégie plus large d’intervention sur l’ensemble des bâtiments de la parcelle, le projet cherche, par une densification ciblée, à renforcer un esprit du lieu déjà très marqué, caractérisé d’un côté par un fort héritage industriel et de l’autre par la présence d'un bosquets. L’ensemble des interventions vise à créer une diversité d’usages au sein du site, tout en consolidant son identité par le choix des matériaux et l'expression architecturale.
Schönheit
Situé à l’extrémité de la chaussée piétonne d’un côté et de la rue des Bosquets de l’autre, le site se compose de trois immeubles aux proportions, usages et caractères distincts. Le projet vise à conférer à chaque volume une identité propre, en lien avec son programme et le contexte. Une cohérence d’ensemble est recherchée, au travers de la diversité. Une expression spécifique et des matériaux adaptés à chacun des bâtiments mis en oeuvre avec grand soin.
Eigenschaften
Ort
Vevey
Baukategorie (SIA 102)
Handel und Verwaltung
Art der Aufgabe
Erweiterung
Art des Verfahrens
Direktauftrag
Baukosten in CHF (SIA 416)
5'189'000
Geschossfläche in m² (SIA 416)
1'984
Planung
2019 → 2020
Fertigstellung
2020 → 2023
Inbetriebnahme
2023
Einreichende | Projektbeteiligte
Bauingenieurwesen
HLKS-Planung
Elektroplanung
Bersier Bernard
Fassadenplanung