...
Erweiterung Bürogebäude Erne, Stein

Copyright: Roger Frei, Zürich
Erne gehört seit Jahren zu den prägenden Akteuren des Schweizer Holzbaus. Das Unternehmen verzeichnete in den vergangenen zehn Jahren ein starkes Wachstum und verdoppelte seine Belegschaft auf rund 330 Mitarbeitende. Um diesem Wachstum und den Anforderungen moderner Arbeitswelten gerecht zu werden, hat Erne am Standort Stein ein neues Bürogebäude realisiert. Der Neubau bindet einen bestehenden Modulbau in ein räumliches Ganzes mit Innenhof ein. Offene Raumsequenzen ergänzen sich mit den Raummodulen des Bestandes zu einer flexiblen Bürowelt. Der Neubau ist ein Holz-Beton-Verbund. Das im Werk vorgefertigte, CO2-arme Hybrid-System kam bereits im ersten Holzhochhaus der Schweiz, dem «Suurstoffi 22» in Risch-Rotkreuz, zum Einsatz und wurde von Burkard Meyer in enger Zusammenarbeit mit Erne weiterentwickelt. Das Hybridsystem folgt dem Design for Disassembly-Gedanken, das heisst, die Fachwerkkonstruktion kann bei Bedarf rückgebaut, sortenrein getrennt und neu aufgebaut werden.












Copyright für die Fotografien: Roger Frei, Zürich










Copyright für die Pläne / Schemata / Grafiken: Burkard Meyer Architekten BSA
Texte Davos Kriterien (Selbstevaluation)
Gouvernanz
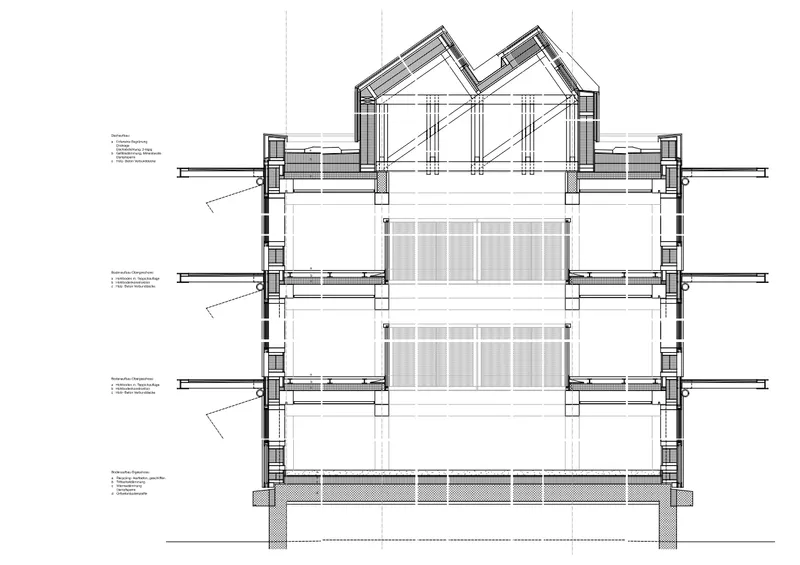
Der Neubau ist ein „Holz-Beton-Verbund“. Das im Werk vorgefertigte, CO2-arme Hybrid-System kam bereits im ersten Holzhochhaus der Schweiz, dem zehnstöckigen «Suurstoffi 22» in Risch-Rotkreuz, zum Einsatz und wurde von Burkard Meyer in enger Zusammenarbeit mit Erne weiterentwickelt.
Funktionalität
Im Hybrid-System wird Holz mit Betonplatten verbunden: Die Tragstruktur besteht aus Lamellenbalken, die mittels Stahl mit einer dünnen Stahlbetonplatte zu Deckenelementen verbunden werden. Diese Elemente wiederum liegen auf Unterzugsbalken, die auf Stützen aus Stabbuche ruhen. In die Deckenfelder werden hybride Systempaneele eingefügt, welche der Kühlung, Heizung, Lüftung und Raumakustik dienen. Ausgeklügelt konstruiert sind auch die eigens entwickelten Verbindungsknoten im Dachfachwerk.
Umwelt
Die Treppenkerne in Stampflehm und der schwindungsarme Recycling-Boden aus Mischabbruch im EG zeugen vom Anspruch, kreislauffähige und ökologische Materialien einzusetzen. Der Stampflehm wurde vor Ort mithilfe von Robotern aus dem Aushub gewonnen. Der Fussboden im Erdgeschoss besteht aus recyceltem Beton, gemischt mit zerkleinerten Ziegelsteinen, an der Oberfläche geschliffen und versiegelt.
Wirtschaft
Die Kombination von Bestands-Modulbau und neuem Skelettbau hat in vielerlei Hinsicht grosse Vorteile. Neben dem variierenden Raumangebot zeigt der Komplex auch zwei sich ergänzende Formen der Vorfertigung und bildet damit die unterschiedlichen Kompetenzfelder von Erne ab. Das in enger Zusammenarbeit von Bauherrschaft und Planern realisierte Gebäude ist sowohl Kondensat der Recherche der letzten Jahre als auch Versprechen für die technologischen und ökologischen Herausforderungen der Zukunft.
Vielfalt
Der offene Grundriss um das Atrium lässt sich flexibel einteilen, im Sinne der Nachhaltigkeit kann so auf Nutzungsänderungen reagiert werden. Zusammen mit dem zum Innenhof ergänzten Aussenbereich ergibt sich ein vielfältiges Angebot unterschiedlich nutzbarer Kollektivräume. Das fein gegliederte Dachtragwerk mit Shedoberlichtern führt zusammen mit dem Sichtbezug in den Gartenhof Tageslicht in das Innere des Baus.
Kontext
Um aktuellem und künftigem Platzbedarf sowie zeitgemässen Organisationsformen gerecht zu werden, investierte das Erne in einen Büroneubau am Standort Stein. Unter Einbezug des bestehenden Modulbaus entstand ein neues räumliches Ganzes mit Innenhof, in dem sich offene Raumsequenzen mit den Raummodulen des Bestandes zu einer flexiblen Bürowelt ergänzen. Der dreigeschossige Neubau setzt mit seiner Erschliessung und der Anordnung der Primärräume die Logik des Bestands fort.
Genius Loci
Die horizontale Erschliessungsfigur bildet zusammen mit der zentral im Atrium liegenden Treppe und den Verbindungsbrücken ein Kontinuum, das die vertikale Verbindung zum im EG liegenden «Marktplatz» schafft. Dieser ist der neue Mittelpunkt des Hauses und bietet durch die offene, geschossübergreifende Räumlichkeit Möglichkeiten für kollaboratives Arbeiten und Veranstaltungen.
Schönheit
Stellvertretend für aktuelle Strategien im Umgang mit einer CO2-reduzierten Bauweise folgt der Neubau dem Design for Disassembly-Gedanken – auch in der äusseren Erscheinung. So wird die filigrane Fassadenstruktur in Aluminium und Glas zweiseitig durch horizontal angeordnete Photovoltaik-Elementen komplettiert, welche dem Gebäude zusammen mit den Ausstellmarkisen eine beinahe spielerische Leichtigkeit verleihen.
Eigenschaften
Ort
Rüchligstrasse 53, 4332 Stein
Baukategorie (SIA 102)
Industrie und Gewerbe
Art der Aufgabe
Neubau
Art des Verfahrens
Direktauftrag
Baukosten in CHF (SIA 416)
k.a.
Geschossfläche in m² (SIA 416)
3'570
Planung
2015 → 2020
Fertigstellung
2021 → 2023
Inbetriebnahme
2023
Einreichende | Projektbeteiligte
Landschaftsarchitektur
Bauherrschaft
Bauingenieurwesen
HLKS-Planung
Elektroplanung
Holzbau
Bauphysik
Akustikplanung
Andere