...
Weiterbauen im Bestand: Reihenhaus Zürich-Bachtobel

Copyright: Studio Gataric Fotografie
Die Bachtobelstrasse 26 ist Teil einer Reihenhauszeile im Zürcher Quartier Wiedikon. Das 1890 erbaute Haus liegt unweit des früheren Industrieareals Binz, das sich um 1900 zusammen mit einfachen Arbeiterhäusern entwickelte und bis heute den Altbaucharme des Viertels mitprägt.
Eine junge Familie initiierte den Umbau des stark gealterten Gebäudes. Ziel war, den historischen Charakter zu bewahren und gleichzeitig zeitgemässen Wohnkomfort zu schaffen. Zunächst wurde die bauliche Substanz umfassend ertüchtigt. Wegen des setzungsempfindlichen Uetliberglehms war das Haus an der hinteren Fassade um rund 24 cm abgesunken. Die Fundation wurde daher mit Mikropfählen und einer neuen Stahlbetonplatte verstärkt.
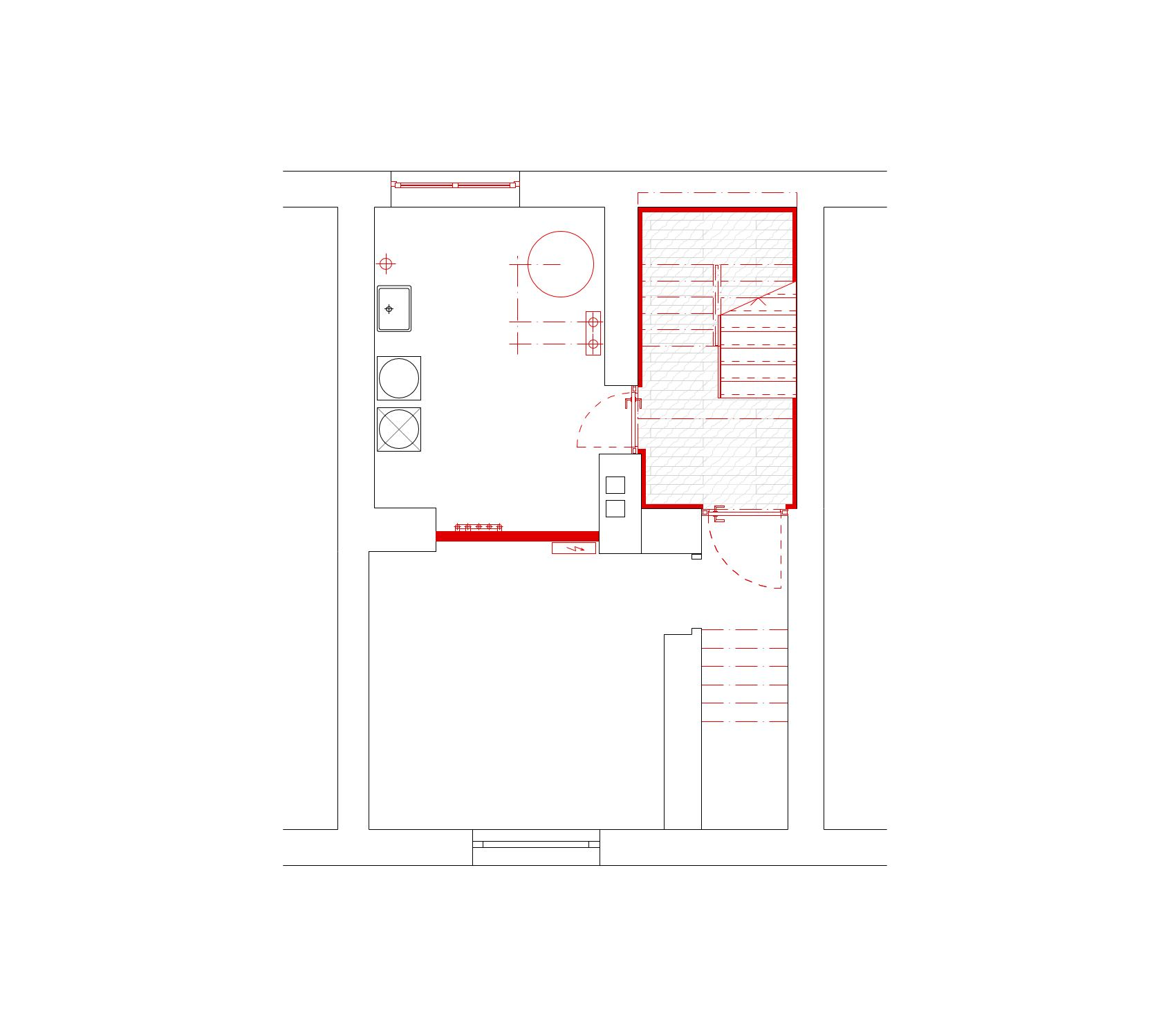
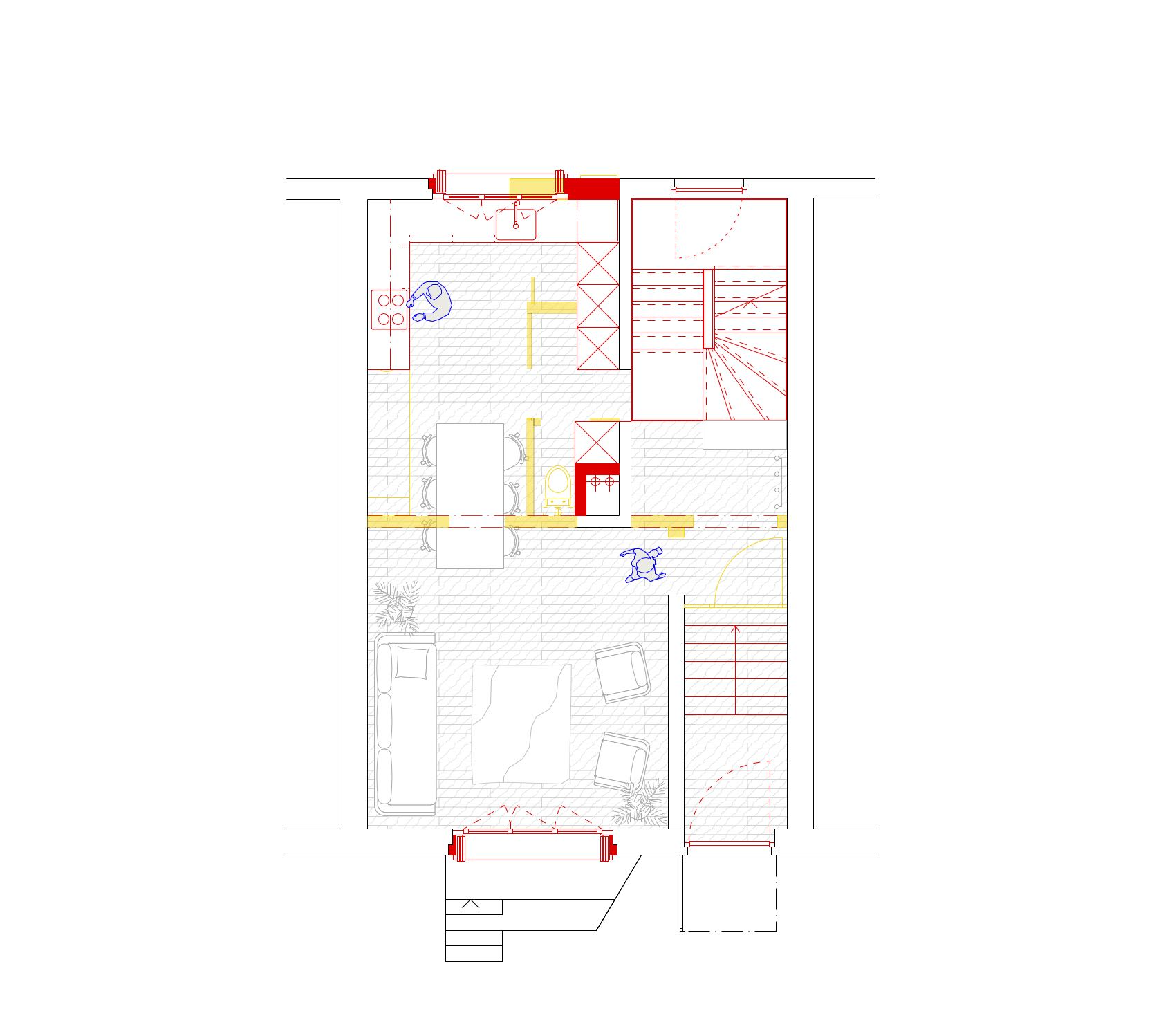
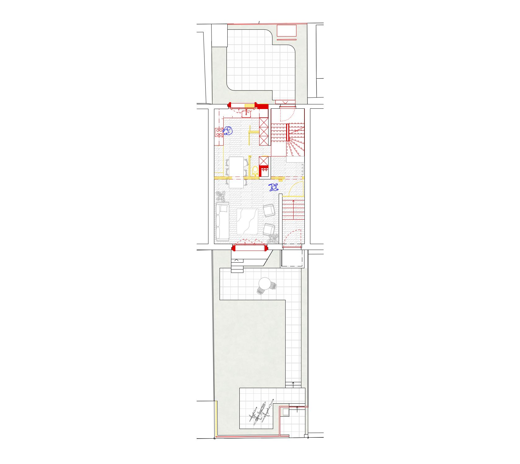
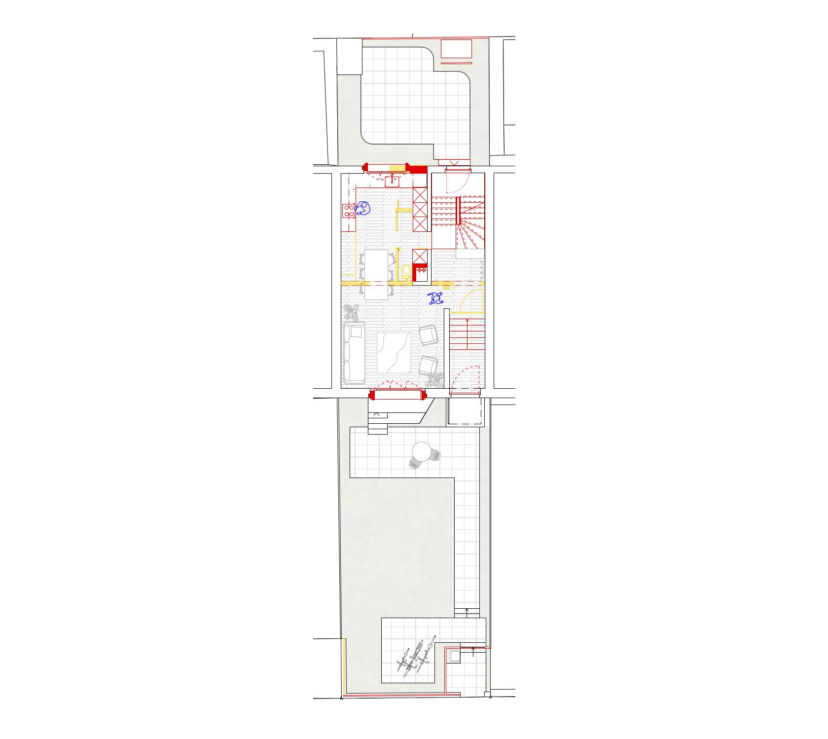
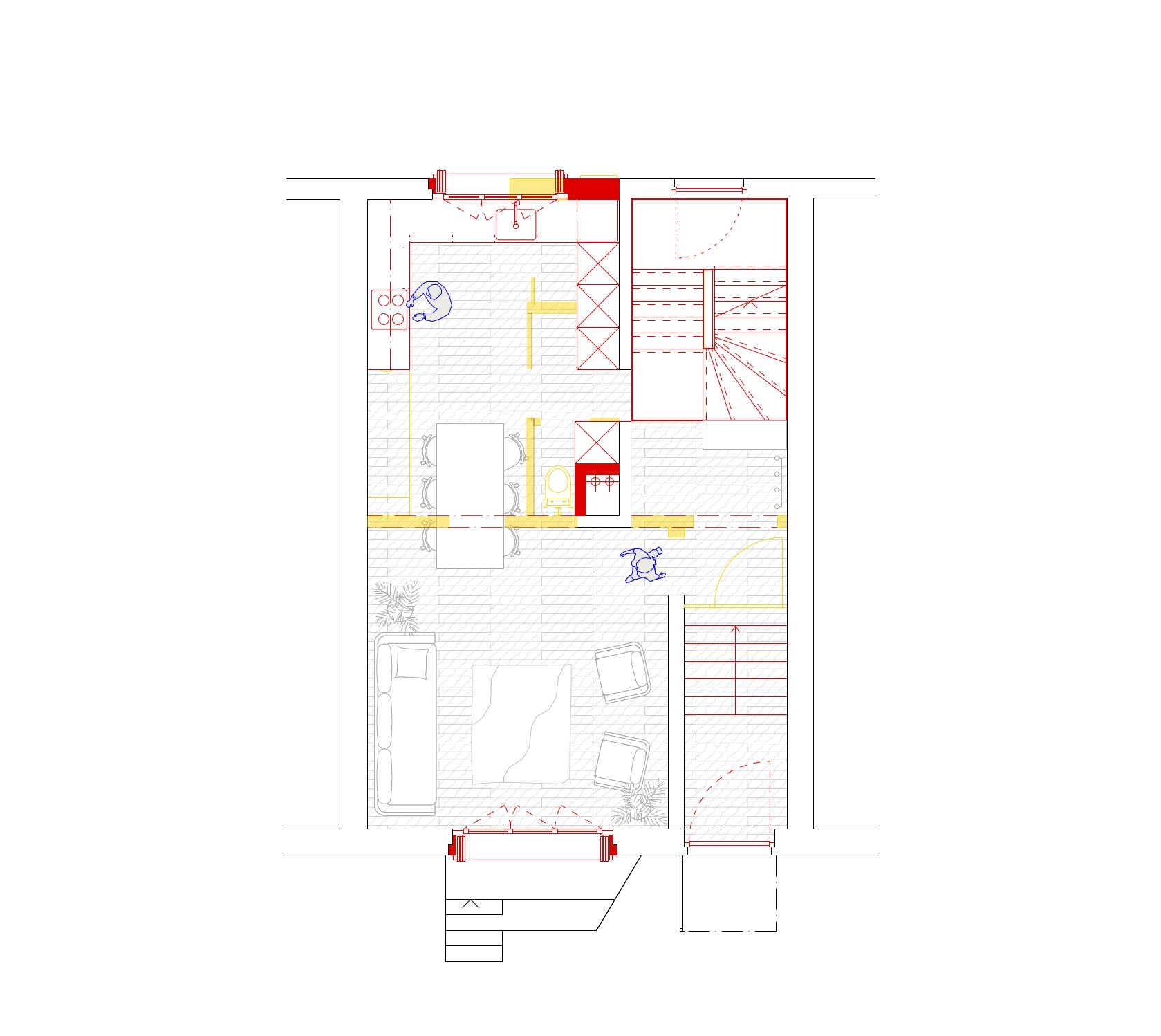
Im Innern wurden die Holzbalkendecken erneuert und statisch verstärkt, um heutigen Anforderungen gerecht zu werden. Eine neue Stahltreppe verbindet alle Geschosse und ersetzt das alte Treppenhaus durch eine leichte, offene Konstruktion. Die neu organisierten Grundrisse schaffen grosszügigere Wohnräume mit direkter Anbindung an den Garten. Im Erdgeschoss öffnen grossflächige Verglasungen den Wohnraum zum Aussenraum und lassen einen fliessenden Übergang zwischen innen und aussen entstehen.
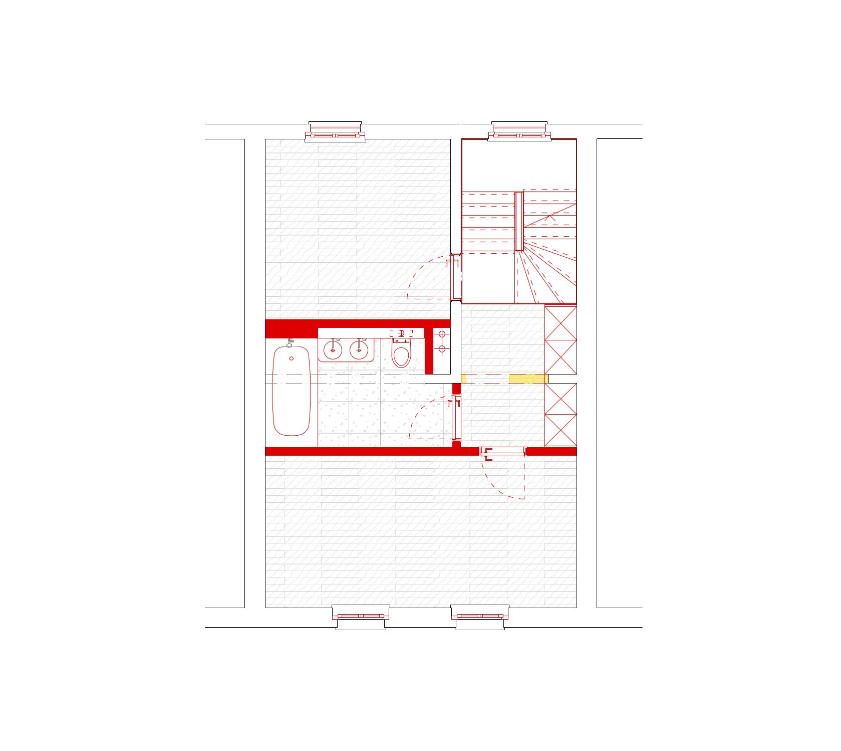
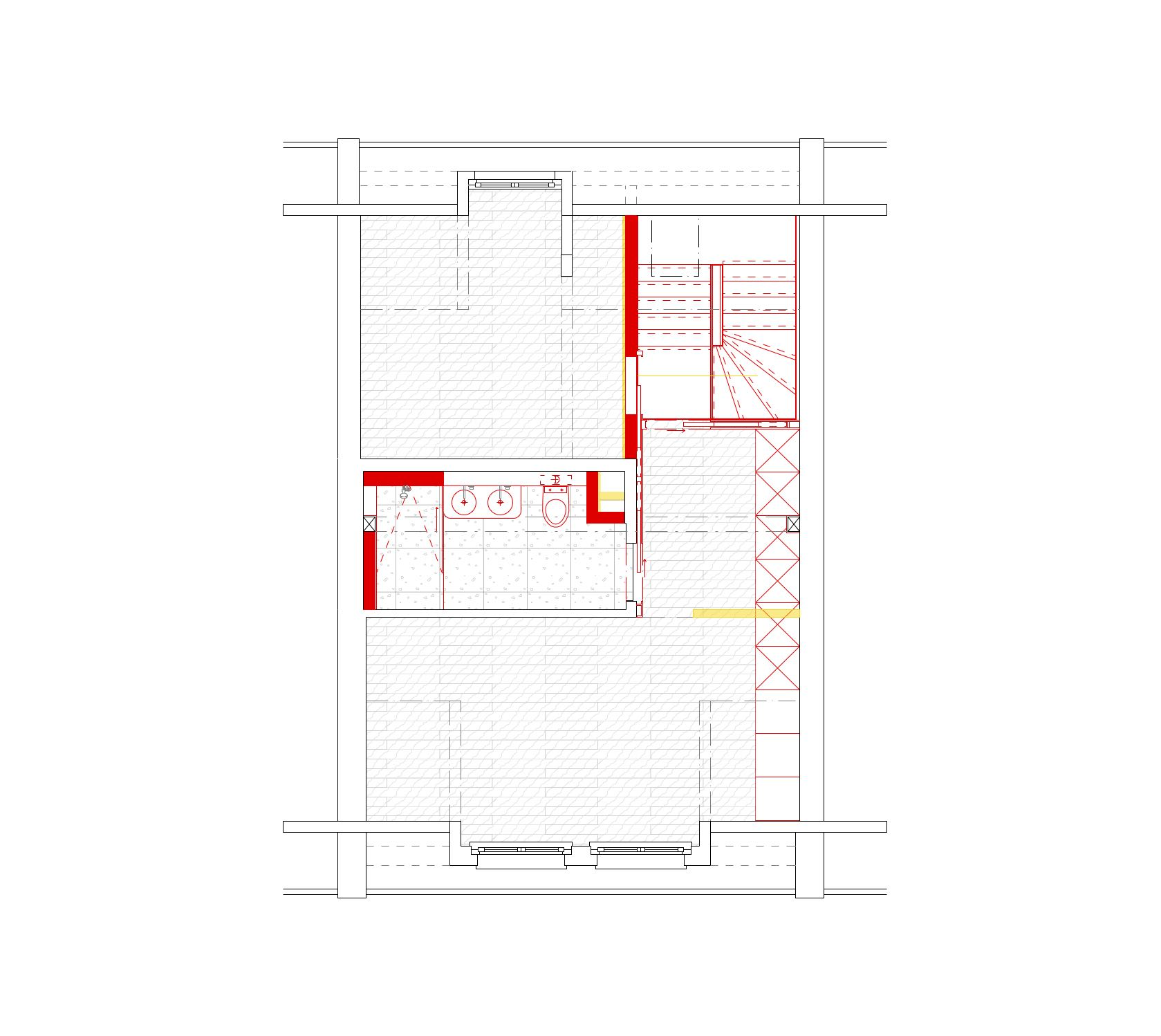
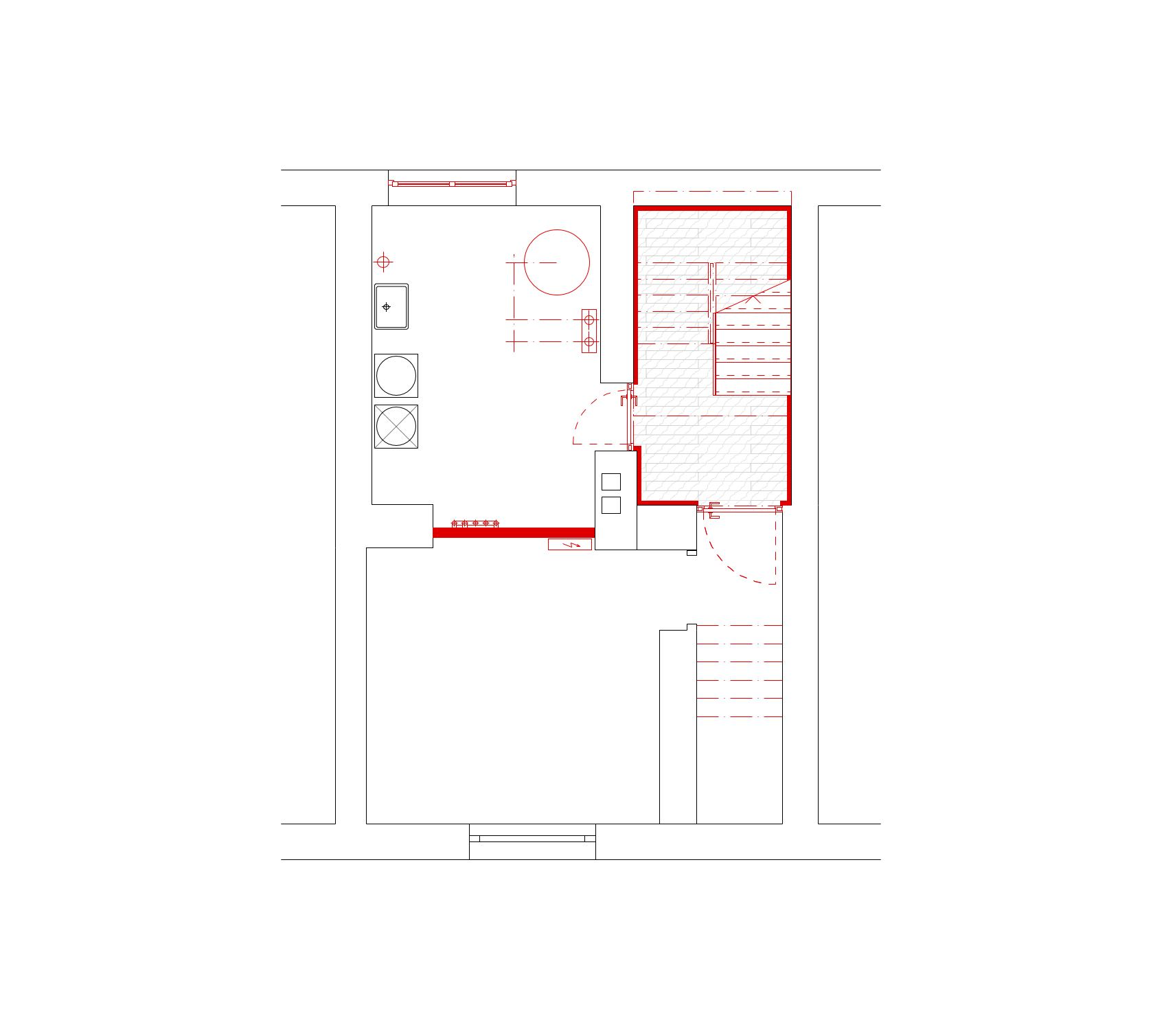
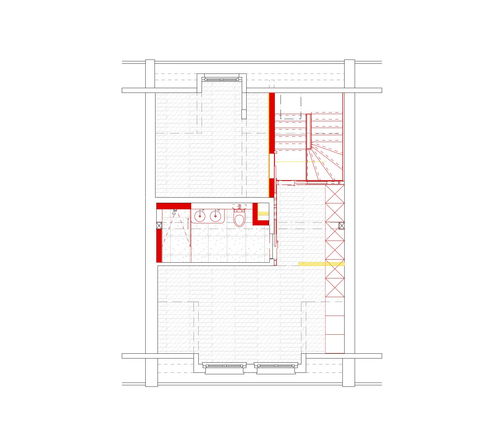
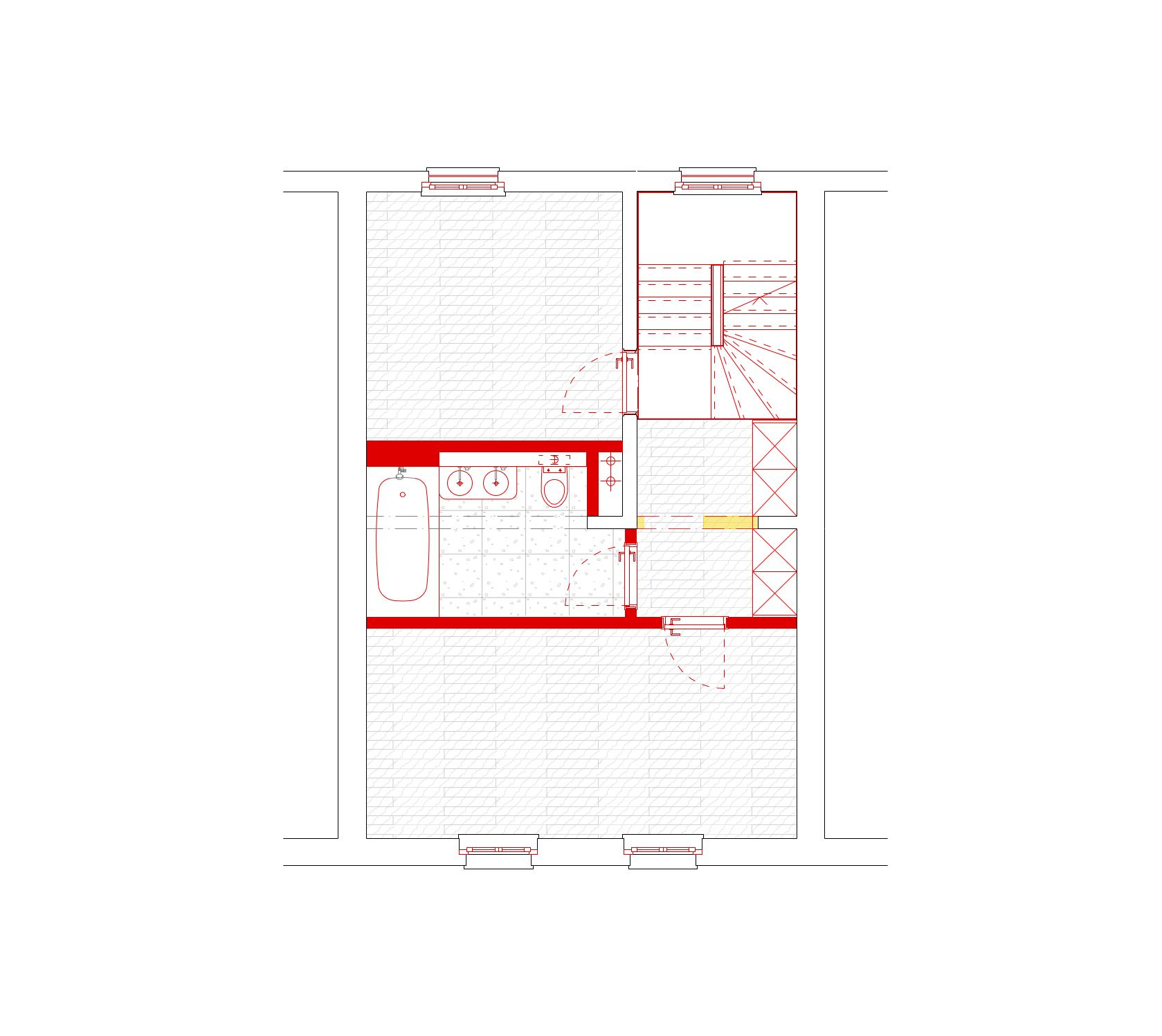
Neue Nasszellen wurden in die bestehende Struktur integriert, um den gestiegenen Komfortansprüchen zu entsprechen. Das gestalterische Konzept setzt auf Zurückhaltung und Authentizität: Eine ruhige, helle Farbwelt und natürliche Materialien prägen die Innenräume und verleihen dem Haus eine freundliche, zeitgemässe Atmosphäre. Historische Details wurden, wo möglich, erhalten oder behutsam neu interpretiert.
Äusserlich bleibt das Haus seiner Entstehungszeit verpflichtet. Die Fassade erhielt einen neuen verputzten Dämmaufbau und Fenster mit integriertem Sonnenschutz. Hinter der historischen Hülle sorgt moderne Haustechnik mit Luft-Wärmepumpe, verbesserter Dämmung und sanierter Dacheindeckung für höhere Energieeffizienz und Wohnkomfort.
Eine junge Familie initiierte den Umbau des stark gealterten Gebäudes. Ziel war, den historischen Charakter zu bewahren und gleichzeitig zeitgemässen Wohnkomfort zu schaffen. Zunächst wurde die bauliche Substanz umfassend ertüchtigt. Wegen des setzungsempfindlichen Uetliberglehms war das Haus an der hinteren Fassade um rund 24 cm abgesunken. Die Fundation wurde daher mit Mikropfählen und einer neuen Stahlbetonplatte verstärkt.
Im Innern wurden die Holzbalkendecken erneuert und statisch verstärkt, um heutigen Anforderungen gerecht zu werden. Eine neue Stahltreppe verbindet alle Geschosse und ersetzt das alte Treppenhaus durch eine leichte, offene Konstruktion. Die neu organisierten Grundrisse schaffen grosszügigere Wohnräume mit direkter Anbindung an den Garten. Im Erdgeschoss öffnen grossflächige Verglasungen den Wohnraum zum Aussenraum und lassen einen fliessenden Übergang zwischen innen und aussen entstehen.
Neue Nasszellen wurden in die bestehende Struktur integriert, um den gestiegenen Komfortansprüchen zu entsprechen. Das gestalterische Konzept setzt auf Zurückhaltung und Authentizität: Eine ruhige, helle Farbwelt und natürliche Materialien prägen die Innenräume und verleihen dem Haus eine freundliche, zeitgemässe Atmosphäre. Historische Details wurden, wo möglich, erhalten oder behutsam neu interpretiert.
Äusserlich bleibt das Haus seiner Entstehungszeit verpflichtet. Die Fassade erhielt einen neuen verputzten Dämmaufbau und Fenster mit integriertem Sonnenschutz. Hinter der historischen Hülle sorgt moderne Haustechnik mit Luft-Wärmepumpe, verbesserter Dämmung und sanierter Dacheindeckung für höhere Energieeffizienz und Wohnkomfort.












Copyright für die Fotografien: Studio Gataric Fotografie








Copyright für die Pläne / Schemata / Grafiken: RAUMTAKT GmbH
Texte Davos Kriterien (Selbstevaluation)
Gouvernanz
Bei der Erneuerung des Reihenhauses an der Bachtobelstrasse 26 arbeitete die private Bauherrschaft eng mit der Architektenschaft, Fachplanenden und den städtischen Behörden zusammen. Entscheidungsprozesse wurden transparent geführt, Varianten gemeinsam diskutiert und ortsspezifische Qualitäten wie die historische Arbeiterhauszeile konsequent in die Planung eingebunden.
Funktionalität
Der Umbau stärkt die Gebrauchstauglichkeit des schmalen Reihenhauses dauerhaft: statisch ertüchtigte Decken, neue Fundation und eine filigrane Stahltreppe verbessern Sicherheit und Erschliessung. Neu organisierte Grundrisse, grosszügige Verglasungen zum Garten und zusätzliche Nasszellen steigern Komfort und ermöglichen eine flexible Nutzung über mehrere Lebensphasen.
Umwelt
Durch die energetische Ertüchtigung von Dach, Fassade und Fenstern sowie den Einsatz einer Luft-Wärmepumpe wird der Energiebedarf des historischen Reihenhauses deutlich reduziert. Die Sanierung setzt auf Substanzerhalt statt Neubau und verlängert so den Lebenszyklus des Bestands, was Materialverbrauch und graue Emissionen minimiert.
Wirtschaft
Die Investition in den Umbau der bauzeitlichen Reihenhausstruktur an der Bachtobelstrasse 26 stärkt den Standort langfristig. Durch die Neuorganisation der Grundrisse, die energetische Verbesserung der Gebäudehülle und den Erhalt der bestehenden Struktur wird der Lebenszyklus des Hauses verlängert. Robuste, wartungsarme Konstruktionen senken Betriebs- und Unterhaltskosten und sichern den Wert der Immobilie nachhaltig.
Vielfalt
Der Umbau stärkt das Zusammenleben einer jungen Familie in der bauzeitlichen Reihenhausstruktur und im Quartier Wiedikon. Die Öffnung zum Garten und die neu geschaffenen Aufenthaltsbereiche innen und aussen fördern Begegnung, gemeinsame Nutzung und nachbarschaftlichen Austausch. Die flexiblen Räume unterstützen unterschiedliche Wohnformen und Lebensphasen.
Kontext
Der Umbau stärkt die bauzeitliche Reihenhausstruktur im Quartier Wiedikon, ohne deren Massstab und Typologie zu verfremden. Die verputzte Fassade, das Steildach und die Gliederung zum Strassenraum bleiben ablesbar, während die hofseitige Öffnung, die neu organisierte Wohnzone und die zurückhaltende Materialwahl einen zeitgenössischen Beitrag leisten, der sich selbstverständlich in das bestehende Ensemble einfügt.
Genius Loci
Der Umbau stärkt den spezifischen Charakter der bauzeitlichen Reihenhausstruktur im Quartier Wiedikon. Die zurückhaltende Material- und Farbsprache, der Erhalt der Strassenfassade und die Öffnung zum Garten nehmen die einfache Wohntypologie des späten 19. Jahrhunderts auf und übersetzen sie in eine helle, zeitgemässe Wohnatmosphäre, mit der sich die junge Familie identifizieren kann.
Schönheit
Die ruhige, helle Farbwelt, der Einsatz natürlicher Materialien und die filigrane neue Treppe schaffen eine freundliche, zeitgemässe Wohnatmosphäre, ohne den Charakter der bauzeitlichen Reihenhausstruktur zu überformen. Grosszügige Öffnungen zum Garten, sorgfältig erhaltene Details und die klare Raumabfolge stärken die sinnliche Wahrnehmung und erhöhen die tägliche Wohnqualität.
Eigenschaften
Ort
Bachtobelstrasse 26, 8045 Zürich
Baukategorie (SIA 102)
Wohnen
Art der Aufgabe
Umbau
Art des Verfahrens
Direktauftrag
Baukosten in CHF (SIA 416)
Geschossfläche in m² (SIA 416)
Planung
2024 → 2025
Fertigstellung
2023 → 2025
Inbetriebnahme
2025
Einreichende | Projektbeteiligte
Bauingenieurwesen
Geologie/Geotechnik
Elektroplanung
Stahlbau
Baumanagement
HLKS-Planung