...
Meisenweg – Weiterbauen im schützenswerten Reihenhaustyp von 1924

Copyright: RAUMTAKT GmbH
In Zürich-Wollishofen wurde ein Haus der denkmalgeschützten Siedlung Meisenweg behutsam umgebaut. Die Renovation verbindet historische Substanz mit zeitgemässem Ausbau – präzise, zurückhaltend und mit Blick auf das Ensemble.
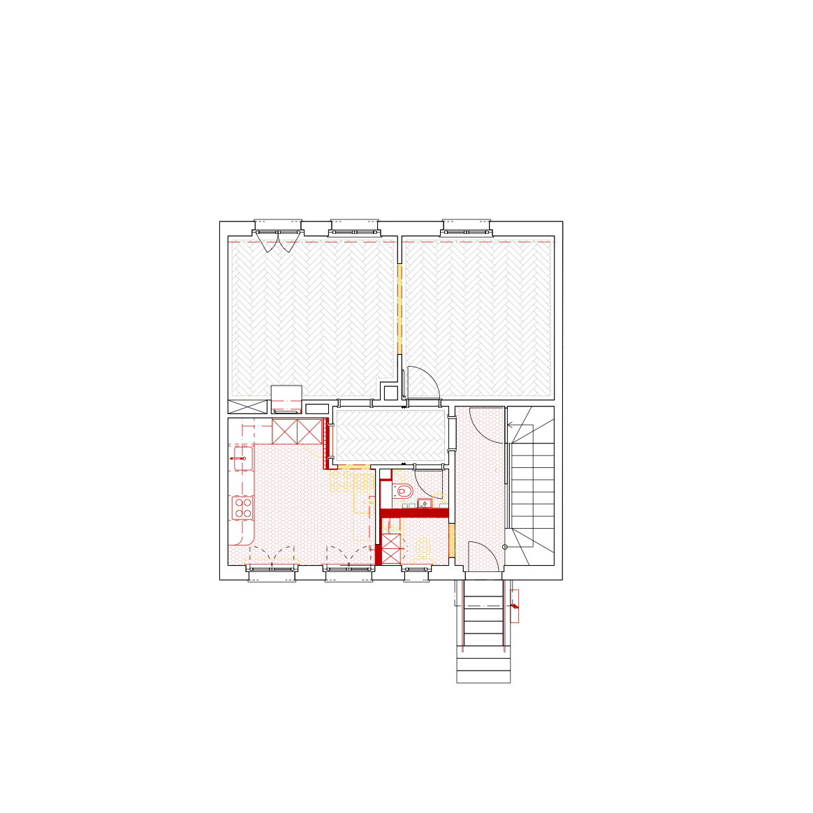
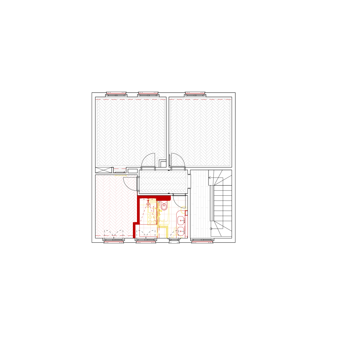
Im Haus Meisenweg 5 wurde die bestehende Struktur unter Berücksichtigung neuer Wohnbedürfnisse weiterentwickelt. Die Renovation für eine junge Familie folgte einem behutsamen Konzept: Eingriffe wurden gezielt und zurückhaltend vorgenommen, die vorhandene Substanz gestärkt und der Ausbau auf einen zeitgemässen Standard gebracht. Charakteristische Elemente wie die Fischgrätböden aus Buchenholz, die markante Treppe aus Eiche oder die bienenwabenförmigen Keramikplatten in der Küche wurden erhalten, ergänzt oder in neuer Form interpretiert. Die gestalterischen Mittel sind fein auf den Bestand abgestimmt und respektieren dessen Ausdruck. Dach und Gebäudehülle wurden energetisch saniert; eine Luft-Wärmepumpe ersetzt die bisherige Gasheizung als ökologischere Heizlösung.
Ein zentraler Eingriff betrifft das zuvor kaum genutzte Dachgeschoss, das vollständig ausgebaut wurde. Durch das Öffnen bis zum First, das Freilegen der Dachbalken und eine durchgehende Untersicht aus Birkenholz gewinnt es an Grosszügigkeit und räumlicher Qualität. Auch im Obergeschoss wurde die Organisation überarbeitet; im Erdgeschoss erzeugt die neue Verbindung von Wohn- und Esszimmer eine zusammenhängende Raumsequenz mit mehr Grosszügigkeit und Blickbezug zum Garten.
Materialien und Details wurden mit Sorgfalt gewählt und präzise auf die historische Substanz abgestimmt. Wo neue Eingriffe sichtbar bleiben, sind sie bewusst differenziert. So bleibt der Charakter des Hauses lesbar, während seine räumlichen und funktionalen Qualitäten zeitgemäss erweitert werden.
Im Haus Meisenweg 5 wurde die bestehende Struktur unter Berücksichtigung neuer Wohnbedürfnisse weiterentwickelt. Die Renovation für eine junge Familie folgte einem behutsamen Konzept: Eingriffe wurden gezielt und zurückhaltend vorgenommen, die vorhandene Substanz gestärkt und der Ausbau auf einen zeitgemässen Standard gebracht. Charakteristische Elemente wie die Fischgrätböden aus Buchenholz, die markante Treppe aus Eiche oder die bienenwabenförmigen Keramikplatten in der Küche wurden erhalten, ergänzt oder in neuer Form interpretiert. Die gestalterischen Mittel sind fein auf den Bestand abgestimmt und respektieren dessen Ausdruck. Dach und Gebäudehülle wurden energetisch saniert; eine Luft-Wärmepumpe ersetzt die bisherige Gasheizung als ökologischere Heizlösung.
Ein zentraler Eingriff betrifft das zuvor kaum genutzte Dachgeschoss, das vollständig ausgebaut wurde. Durch das Öffnen bis zum First, das Freilegen der Dachbalken und eine durchgehende Untersicht aus Birkenholz gewinnt es an Grosszügigkeit und räumlicher Qualität. Auch im Obergeschoss wurde die Organisation überarbeitet; im Erdgeschoss erzeugt die neue Verbindung von Wohn- und Esszimmer eine zusammenhängende Raumsequenz mit mehr Grosszügigkeit und Blickbezug zum Garten.
Materialien und Details wurden mit Sorgfalt gewählt und präzise auf die historische Substanz abgestimmt. Wo neue Eingriffe sichtbar bleiben, sind sie bewusst differenziert. So bleibt der Charakter des Hauses lesbar, während seine räumlichen und funktionalen Qualitäten zeitgemäss erweitert werden.












Copyright für die Fotografien: RAUMTAKT GmbH






Copyright für die Pläne / Schemata / Grafiken: RAUMTAKT GmbH
Texte Davos Kriterien (Selbstevaluation)
Gouvernanz
In der denkmalgeschützten Siedlung Meisenweg erfolgte der Umbau in enger Abstimmung zwischen Bauherrschaft, Denkmalpflege, Planungsteam und Fachplanenden. Die Entscheide wurden konsequent an der Ensemblequalität und der typologischen Klarheit der Siedlung ausgerichtet, während die neuen Wohnbedürfnisse der jungen Familie differenziert in den Bestand integriert wurden.
Funktionalität
Der Umbau verbessert die Gebrauchstauglichkeit des Reihenhauses nachhaltig: Die Neuorganisation von Erd‑, Ober‑ und Dachgeschoss schafft grosszügige, zusammenhängende Wohnbereiche, zeitgemässe Bäder und zusätzliche Zimmer für die wachsende Familie. Der vollwertige Ausbau des Dachgeschosses und die klare Raumabfolge erhöhen Komfort, Flexibilität und langfristige Nutzbarkeit, ohne die typologische Struktur zu überformen.
Umwelt
Im Meisenweg wird der bestehende, im Spezialinventar geführte Reihenhausbestand weitergebaut und damit in seiner Lebensdauer gestärkt, statt zusätzliche Flächen zu beanspruchen. Die energetische Sanierung von Dach und Gebäudehülle sowie der Ersatz der Gasheizung durch eine Luft-Wärmepumpe reduzieren den Energiebedarf und verbessern die ökologische Performance im Betrieb nachhaltig.
Wirtschaft
Der Umbau stärkt den Wert einer im Spezialinventar geführten Wohnsiedlung, indem er die bestehende Bausubstanz erhält und an heutige Bedürfnisse anpasst. Hochwertige, robuste Materialien und die energetische Ertüchtigung von Hülle und Haustechnik senken langfristig Unterhalts- und Betriebskosten und sichern die Attraktivität des Hauses als Wohnort über Generationen.
Vielfalt
Der Umbau eines Hauses innerhalb der Siedlung Meisenweg stärkt das gemeinschaftliche Wohnen im hofartigen Ensemble und unterstützt die langfristige Nutzung durch eine junge Familie. Die neu organisierte Raumstruktur mit erweiterten Wohnbereichen und zusätzlichem Dachgeschoss schafft vielfältige, anpassbare Wohnsituationen, ohne den gemeinschaftlichen Charakter der Siedlung zu schwächen.
Kontext
Der Umbau entwickelt Meisenweg 5 innerhalb des geschlossenen Wohnhof-Ensembles weiter und nimmt dessen Massstab, Typologie und Materialität ernst. Die strassenseitige Erscheinung, Vorgärten und Treppenaufgänge bleiben ablesbar, während Dachausbau und innere Neuorganisation als zeitgemässe Schicht hinzukommen – im Dialog mit Heimatstil, Gartenstadtgedanke und der typologischen Klarheit der Siedlung.
Genius Loci
Der Umbau stärkt den besonderen Charakter des Meisenwegs als hofartige Reihenhaussiedlung im romantisch geprägten Heimatstil. Die sorgfältig erhaltenen Materialien, die lesbare Typologie und die hellen, neu gefassten Räume im Dach- und Erdgeschoss ermöglichen der jungen Familie eine enge Identifikation mit Haus und Ensemble und vertiefen die emotionale Bindung an den Ort.
Schönheit
Die sorgfältig restaurierten Fischgrätböden, die markante Eichentreppe und die warmen Holzoberflächen im Dachgeschoss schaffen eine ruhige, zeitgemässe Atmosphäre, die den Charakter des Hauses stärkt. Grosszügige Raumfolgen, gezielt gesetzte Öffnungen und die feine Abstimmung von Materialien und Farben erhöhen die sinnliche Wahrnehmung im Alltag und damit die Wohnqualität der Bewohnerinnen und Bewohner.
Eigenschaften
Ort
Meisenweg 5, 8038 Zürich
Baukategorie (SIA 102)
Wohnen
Art der Aufgabe
Umbau
Art des Verfahrens
Direktauftrag
Baukosten in CHF (SIA 416)
700'000
Geschossfläche in m² (SIA 416)
746
Planung
2023 → 2024
Fertigstellung
2023 → 2024
Inbetriebnahme
2024
Einreichende | Projektbeteiligte