...
Hôpital des Enfants

Copyright: Ferrari Architectes - Loris Lotti
Le nouvel Hôpital des Enfants du CHUV, conçu en collaboration avec gmp International et HRS, s’inscrit au cœur de Lausanne en créant un lien fort avec la ville. Deux volumes s’articulent : un bâtiment de six niveaux sur la station de métro CHUV, affirmant la présence urbaine, et un corps bas relié à la Maternité par une terrasse végétalisée, prolongeant l’Esplanade. L’architecture généreuse, ponctuée de patios, offre lumière naturelle et espaces conviviaux pour les familles, tout en garantissant une fonctionnalité optimale pour les soignants. Une rue intérieure facilite l’orientation et humanise le parcours. Labellisé Minergie P équivalence ECO, le projet exploite trois sources d’énergie renouvelable et applique la Charte des Droits de l’Enfant hospitalisé, assurant la présence des parents tout au long du parcours de soins. Cette réalisation incarne une vision innovante et humaine : un hôpital pensé comme un lieu de soins, de vie et de réconfort.












Copyright für die Fotografien: Reto Duriet Photography










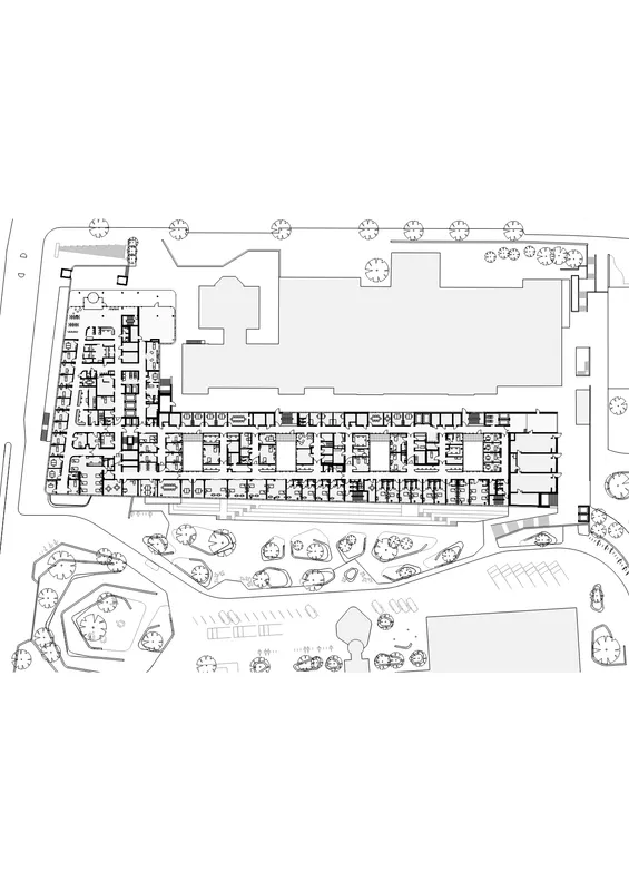
Copyright für die Pläne / Schemata / Grafiken: Ferrari Architectes
Texte Davos Kriterien (Selbstevaluation)
Gouvernanz
Le site dense et en activité a exigé la mise en place d’une gestion de projet pointue pour assurer la réalisation d’un projet conforme au programme complexe. Le processus participatif au CHUV est ancré dans les mœurs de l’institution. Divers groupes de travail réunissant mandataires et interlocuteurs dédiés ont précisé les besoins retranscrits ensuite en plans, carnet de détails, vue 6 faces afin de valider les exigences techniques et les ambiances en fonction des besoins des services.
Funktionalität
Le bâtiment A accueille les unités de soins. Le bâtiment B concentre le plateau technique. Afin de faciliter l’organisation des espaces et l’orientation des patients et du personnel, l’axe est-ouest du bâtiment B est traité comme une rue intérieure, une colonne vertébrale. Cette artère principale se développe sur deux niveaux et est ponctuée de patios lumineux et végétalisés. Cette générosité spatiale articule ainsi espaces de vie pour les familles et outil de travail pour les soignants.
Umwelt
Lors du développement du projet, l’affectation hôpital n’existait pas encore dans la labellisation ECO. Aucune valeur cible n’étant disponible, le projet a été conçu de manière à utiliser les ressources de manière rationnelle et responsable. L’enveloppe thermique respecte les valeurs cibles de la norme SIA 380/1 et les exigences du label Minergie P. Un suivi des fiches produits lors de la réalisation a permis de garantir la mise en oeuvre de matériaux respectant les exigences de Minergie ECO.
Wirtschaft
L’Hôpital des Enfants a été imaginé pour l'avenir. Pour palier à l’évolution rapide de la médecine et lui permettre d’évoluer selon les besoins, il est pensé comme modulable. La structure, partiellement en poteaux/dalles permet d’offrir une bonne flexibilité de réaménagement sur les plateaux. Pour pérenniser son lien à la cité hospitalière existante, une multitude de connexions et de tunnels ont été construits ou réaménagés pour faciliter les flux d’un bâtiment à un autre.
Vielfalt
L’application de la Charte des Droits de l’Enfant hospitalisé établie par l’UNESCO est une démarche innovante. La charte témoigne du droit de l’enfant à avoir ses parents auprès de lui, jour et nuit. Ainsi, dans les chambres, une banquette convertible en lit est conçue pour répondre à ce besoin. Des dispositifs sont également mis en place pour assurer que le parent puisse accompagner son enfant jusqu’à la salle d’induction.
Kontext
Ce nouvel hôpital améliore la prise en charge par la concentration, dans un même périmètre, de toutes les disciplines. Le bâtiment A, construit sur la station de métro, salue la rue du Bugnon et la Ville de Lausanne. Le bâtiment B, à la hauteur plus modeste se glisse au pied de la Maternité. Il crée un lien végétalisé avec l’Esplanade et le bâtiment principal grâce à sa terrasse arborée. Son identité architecturale forte dialogue avec l’existant au langage multigénérationnel.
Genius Loci
Plus qu’un lieu de soins, cet hôpital est un espace de vie, de guérison et de réconfort pour les jeunes patients et leurs familles. La toiture du bâtiment B est traitée comme un plateau paysager qui renforce les liens entre les activités de la Cité hospitalière. Ce jardin sert d’espace de pause pour le personnel et de lieu de jeu et de rééducation pour les patients. La cafétéria profite également de cet espace pour y implanter sa terrasse ouverte à tous les collaborateurs et visiteurs du site.
Schönheit
La thématique de la lumière a été soigneusement étudiée. Couplée à la matérialité chaleureuse et à la signalétique ludique, elle apaise le cadre clinique de l’hôpital. Ingrédient essentiel à la thérapie, la lumière naturelle est favorisée à travers des patios éclairant multitude de locaux et circulation principale. Le niveau -1 du bloc opératoire bénéficie également d’un apport de lumière naturelle grâce à la création d’une cour anglaise.
Eigenschaften
Ort
Lausanne
Baukategorie (SIA 102)
Fürsorge und Gesundheit
Art der Aufgabe
Neubau
Art des Verfahrens
Wettbewerb
Beschaffungsform
Selektives Verfahren
Baukosten in CHF (SIA 416)
200 mio
Geschossfläche in m² (SIA 416)
39’232
Planung
2014 → 2019
Fertigstellung
2020 → 2025
Inbetriebnahme
2025
Einreichende | Projektbeteiligte
Architektur
Architektur
General-/Totalunternehmung
Bauingenieurwesen
Geologie/Geotechnik
HLKS-Planung
Andere
HLKS-Planung
Bauphysik
Vermessung
Akustikplanung
Landschaftsarchitektur
Kunst am Bau
Claudia et Julia Müller
Kunst am Bau
Camille Scherrer
Fotografie