...
KVA Kebag Enova

Copyright: Bruno Augsburger
Kebag Enova – Kehrichtverwertungsanlage und Photovoltaik-Kraftwerk – formt am Jurasüdfuss eine plastisch modellierte Gesamtanlage, die den Neubau zu einer klaren, integrativen Grossform vereint. Durch die starke landschaftliche Einbindung, den sichtbaren Umgang mit Technologie und den charakteristischen Kamin entsteht ein identitätsstiftendes Bauwerk mit hohem Wiedererkennungswert für die Region am Jura Südfuss.
Die Idee für die Formgebung basiert auf zwei wesentlichen Massnahmen: Anlieferungs- und Prozessbunker aus Alt- und Neubauteilen werden nicht wie ursprünglich vorgesehen additiv ertüchtigt und weitergebaut. Ziel war es vielmehr, die damit verbundene Heterogenität zu vermeiden und eine ruhige, kräftige Gesamtform zu entwickeln, welche die unterschiedlichen Teile integriert.
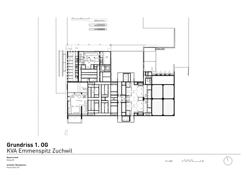
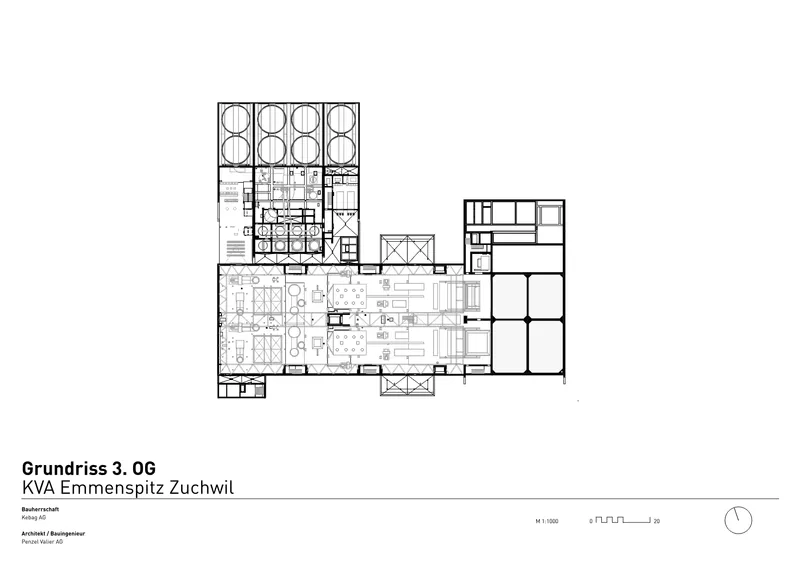
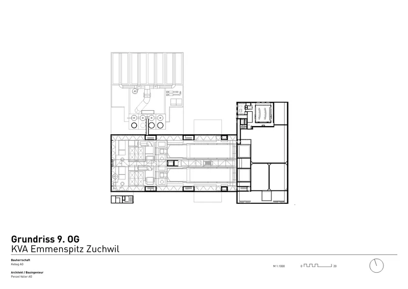
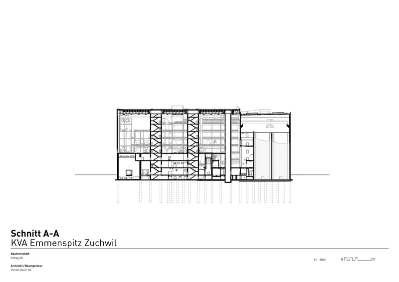
Die Gliederung des Kraftwerks in einen massiven Sockelbau und die darauf stehende Maschine veranschaulicht die funktionalen Verhältnisse und klärt die Proportionen. Die auf dem Sockel aufgebauten Anlagen sind mit einer relativ leichten Hülle umgeben, vergleichbar mit einer Karosserie im Fahrzeugbau. Ein durchgehendes Fensterband zeichnet die Schnittstelle aus und ermöglicht Einblicke in die Maschinenhalle.
Der Kamin entwickelt sich aus dem Sockel und ragt seitlich neben dem Prozessgebäude bis auf eine Höhe von 80 m. An der Spitze des Betonschaftes befindet sich ein Aussichtsraum, der dem Bauwerk einen besonderen Abschluss gibt.
Die Volumetrie wird durch eine plastisch geformte Betonskulptur bestimmt, welche die unterschiedlichen Funktionen integriert. Das Prozessgebäude steht als Kubus im Zentrum der Skulptur. Natursteinbänder geben der Anlage Massstab, repräsentieren die innere Gliederung und kaschieren horizontale Arbeitsfugen. Das Verzahnen von Beton und Naturstein stärkt den lokalen Bezug und verankert das Bauwerk in der Aarelandschaft am Zusammenfluss von Emme und Aare.
Die Idee für die Formgebung basiert auf zwei wesentlichen Massnahmen: Anlieferungs- und Prozessbunker aus Alt- und Neubauteilen werden nicht wie ursprünglich vorgesehen additiv ertüchtigt und weitergebaut. Ziel war es vielmehr, die damit verbundene Heterogenität zu vermeiden und eine ruhige, kräftige Gesamtform zu entwickeln, welche die unterschiedlichen Teile integriert.
Die Gliederung des Kraftwerks in einen massiven Sockelbau und die darauf stehende Maschine veranschaulicht die funktionalen Verhältnisse und klärt die Proportionen. Die auf dem Sockel aufgebauten Anlagen sind mit einer relativ leichten Hülle umgeben, vergleichbar mit einer Karosserie im Fahrzeugbau. Ein durchgehendes Fensterband zeichnet die Schnittstelle aus und ermöglicht Einblicke in die Maschinenhalle.
Der Kamin entwickelt sich aus dem Sockel und ragt seitlich neben dem Prozessgebäude bis auf eine Höhe von 80 m. An der Spitze des Betonschaftes befindet sich ein Aussichtsraum, der dem Bauwerk einen besonderen Abschluss gibt.
Die Volumetrie wird durch eine plastisch geformte Betonskulptur bestimmt, welche die unterschiedlichen Funktionen integriert. Das Prozessgebäude steht als Kubus im Zentrum der Skulptur. Natursteinbänder geben der Anlage Massstab, repräsentieren die innere Gliederung und kaschieren horizontale Arbeitsfugen. Das Verzahnen von Beton und Naturstein stärkt den lokalen Bezug und verankert das Bauwerk in der Aarelandschaft am Zusammenfluss von Emme und Aare.












Copyright für die Fotografien: Bruno Augsburger









.pdf.webp)

PenzelValier.jpg)
Copyright für die Pläne / Schemata / Grafiken: Penzel Valier
Texte Davos Kriterien (Selbstevaluation)
Gouvernanz
Das Projekt Kebag Enova steht für gute Gouvernanz durch eine klare Gesamtidee, entwickelt im Zusammenspiel von Architektur und Technik, dies ermöglicht qualitätsorientierte und transparente Prozesse. Frühzeitige Einbindung aller Fachakteure und nachvollziehbare Entscheidungen führen zu einer robusten, wirtschaftlichen und ortsspezifischen Lösung. Ablesbare Prozesstechnik, ein öffentlicher Aussichtspunkt und die landschaftliche Verankerung stärken Identifikation und Akzeptanz in der Region.
Funktionalität
Die Funktionalität der Anlage ist aus dem Prozess heraus entwickelt und erfüllt ihren Zweck in klarer Weise. Die Gliederung in einen massiven Sockelbau mit darüberliegende Maschine ordnet die komplexen Abläufe, gewährleistet saubere Betriebsprozesse und effiziente Wartung. Tragwerk, Materialisierung und Hülle sind bedarfsgerecht. Gute Belichtung, klare Erschliessung und die Aufstellungsplanung schaffen komfortable, sichere Arbeitsbedingungen und erlauben Anpassungen an zukünftige Entwicklungen.
Umwelt
Der Neubau leistet einen aktiven Beitrag zum Umweltschutz, indem er Funktion, Energieeffizienz und landschaftliche Einbindung verbindet. Die kompakte Grossform reduziert den Flächenverbrauch und schont den Boden. Die robuste, langlebige Konstruktion aus Beton, Stahl und Holz berücksichtigt den gesamten Lebenszyklus. Die Nutzung des regionalen Natursteins, die Energiegewinnung aus Abfall, sowie die sichtbare Photovoltaik Fassadenanlage unterstützen Ressourcenschonung und Klimaschutz.
Wirtschaft
Die Industrieanlage schafft einen nachhaltigen, wirtschaftlichen Mehrwert durch eine langfristig ausgerichtete Strategie. Die klare Grossform, das funktional optimierte Tragwerk und die robuste Materialisierung ermöglichen einen nachhaltigen Bau, sowie einen effizienten, wartungsarmen Betrieb. Hochwertige, langlebige Materialien und eine präzise Ausführung sichern den Werterhalt über den gesamten Lebenszyklus und machen die Anlage zu einer zukunftsfähigen Investition.
Vielfalt
Der Neubau verbindet Menschen, indem er eine technische Infrastrukturbaute als identitätsstiftendes Landmark in der Landschaft sichtbar macht. Ablesbare Prozesstechnik, Einblicke durch das Fensterband und ein Aussichtspunkt fördern Transparenz, Verständnis und Dialog zwischen Betrieb und Öffentlichkeit. Als prägnante Grossform stärkt das Bauwerk den räumlichen Zusammenhalt der Region und unterstützt eine Planungskultur, die gemeinsame Verantwortung und Bewusstsein für Energie und Ressourcen.
Kontext
Das markante Bauwerk schafft räumliche Kohärenz durch die präzise Einbindung in die Aarelandschaft am Jurasüdfuss. Die plastisch geformte Grossform nimmt Massstab und Topografie auf und vereint die vielfältigen technischen Komponenten zu einem ruhigen Ganzen. Regionale Natursteinbänder im massive Betonsockel und die leichte Hülle mit Photovoltaikfassade verankern das zeitgenössische Bauwerk im lokalen baukulturellen und landschaftlichen Kontext und stärken seine Identität.
Genius Loci
Die neue Energiezentrale verstärkt den Genius Loci, indem sie die industrielle Nutzung in eine kraftvolle, unverwechselbare Grossform übersetzt. Die plastisch modellierte Betonskulptur, der markante Kamin und die landschaftliche Einbindung erzeugen ein starkes Bild mit hohem Wiedererkennungswert. Neueste Prozesstechnik, regionale Materialien und der Aussichtspunkt schaffen emotionale Nähe, Identifikation, Stolz und verankern das Bauwerk als zeitgenössisches Wahrzeichen in der Aarelandschaft.
Schönheit
Die Betonskulptur entfaltet ihre Schönheit aus der klaren Einheit von Funktion, Konstruktion und Form. Die plastisch modellierte Grossform, die ruhige Materialität aus Beton und regionalem Naturstein sowie die präzise Gliederung erzeugen eine starke sinnliche Wirkung. Licht, Proportion und Detail vertiefen die Wahrnehmung von Massstab und Technik. So entsteht ein Bauwerk, das industrielle Prozesse in eine ästhetisch überzeugende, identitätsstiftende Architektur übersetzt.
Eigenschaften
Ort
Emmenspitz, 4528 Zuchwil
Baukategorie (SIA 102)
Energieanlagen
Art der Aufgabe
Neubau
Art des Verfahrens
Wettbewerb
Beschaffungsform
Selektives Verfahren
Baukosten in CHF (SIA 416)
512'000'000
Geschossfläche in m² (SIA 416)
44'000
Planung
2017 → 2022
Fertigstellung
2020 → 2025
Inbetriebnahme
2025
Einreichende | Projektbeteiligte